Paarloweg 15
Wonen in alle rust op een prachtige locatie met blijvend vrij uitzicht over landerijen maar toch de dorpse én stadse voorzieningen op korte afstand. Als je hier naar op zoek bent dan is deze woonboerderij aan de Paarloweg misschien wel jouw nieuwe woning. De tijd heeft in deze woning stil gestaan en is toe aan een update naar 2025, zo kun je een woondroom realiseren die volledig op jouw wensen en naar jouw smaak is afgestemd.
Het zeer ruim bemeten perceel van 6.638 m² leent het object zich perfect voor een beroep aan huis, recreatieve doeleinden of het houden van paarden/kleinvee.
Indeling
Begane grond.
Op de oprit is plek voor meerdere auto’s.
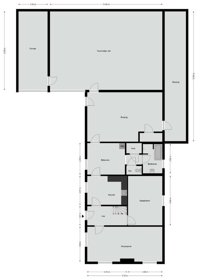
Via de voordeur bereikt men de hal met meterkast en de trap naar eerste verdieping. Vanuit de hal bereikt men de woonkamer (ca. 3,60 m x 7,60 m) voorzien van een laminaatvloer, wanden voorzien van behang en schrootjes een plafond. Tevens is vanuit de hal de slaapkamer (ca. 17 m²) met muurkast bereikbaar welke voorzien is van een laminaatvloer, wanden voorzien van behang en gestuct plafond. Verder is vanuit de hal de keuken (ca. 3,10 m x 4,05 m) met tegelvloer en gestucte wanden en plafond bereikbaar. De keuken is voorzien van een landelijke aanbouwkeuken in een hoekopstelling. Aangrenzend aan de keuken bevindt zich de deels betegelde berging met witgoedaansluitingen. Vanuit de berging heeft men toegang tot het toilet, badkamer met ligbad, douche en wastafel, een proviandkast en de inpandige stal.
Eerste verdieping
Op de eerste verdieping bevinden zich 3 slaapkamers, een kleine kamer en een zolderruimte. De slaapkamers beschikken over een vloerbedekking, gestucte wanden en plafonds. De slaapkamers meten resp. ca. 13 m² en ca. 15 m² en 11 m². De zolderkamer is circa 11 m² groot, hier is ook de cv-ketel opgesteld. Verder bevindt zich op de overloop een ruime bergkast.
Garage/schuur
Inpandig is een voormalige grupstal gesitueerd van ca. 41,50 m² (ca. 7,83 m x 5,30 m). De inrichting van de grupstal is verwijderd en men heeft de vloeren dichtgestort. Op dit moment doet de stal dienst als berging en als achterom. De wanden van de berging zijn voorzien van kunststofschrootjes. Vanuit de berging heeft men toegang tot de aangrenzende afhang (ca. 120 m²) en de achterliggende schuur met garage (ca. 150 m²). De berging, schuur en de aangrenzende afhang zijn, met uitzondering van het achterste gedeelte van de afhang, in dezelfde stijl en bouwwijze als de woning opgetrokken.
Tuin
Het perceel is een blank canvas om volledig naar eigen wens in te richten.
Ligging
De woonboerderij is gelegen in buurtschap “Paarlo” in het buitengebied van Sint Odiliënberg op ca. 3 km van het centrum van Sint Odiliënberg. Sint Odiliënberg is een klein forensendorpje in Midden-Limburg, ten oosten van de Maas en in het Roerdal gelegen. Het dorp is cultuurhistorisch van belang vanwege de romaanse Basiliek van de H.H. Wiro, Plechelmus en Otgerus (11e eeuw) met twee torens en huize Hoosden. Daarnaast brengt het bekende Pieterpad vele toeristen naar Sint Odiliënberg. In Sint Odiliënberg bevindt zich verder ook nog de Molen van Verbeek, een stenen beltmolen die als korenmolen is ingericht. Het dorp van nog geen 4.000 inwoners kende de afgelopen vijftien jaar een flinke groei in de vorm van nieuwbouw. Daarnaast ligt het dorp nabij de nationale en internationale snelwegen A73 en A2 en ook het centrum van Roermond is op slechts 10 autominuten gelegen.
De gemeente Roerdalen ligt in Midden-Limburg en bestaat uit de kernen Herkenbosch, Melick, Montfort, Posterholt, St. Odiliënberg en Vlodrop. Het landschap kenmerkt zich door prachtige bosgebieden, oude rivierarmen, moerasgebieden, uitgestrekte landbouwgebieden en stuifduinen en pittoreske plaatsjes.
Wonen in alle rust op een prachtige locatie met blijvend vrij uitzicht over landerijen maar toch de dorpse én stadse voorzieningen op korte afstand. Als je hier naar op zoek bent dan is deze woonboerderij aan de Paarloweg misschien wel jouw nieuwe woning. De tijd heeft in deze woning stil…

Kenmerken
- Status Beschikbaar
- Vraagprijs € 649.500,- k.k.
- Aanvaarding In overleg
- Soort woonhuis Vrijstaande woning
- Soort bouw Bestaande bouw
- Bouwjaar 1906
- Onderhoud binnen Redelijk
- Onderhoud buiten Redelijk
- Gebruiksoppervlakte wonen ca. 145 m2
- Overige inpandige ruimte ca. 201 m2
- Inhoud ca. 475 m3
- Perceeloppervlakte ca. 6638 m2
- Aantal kamers 8 kamers
- Aantal slaapkamers 4
- Aantal badkamers 1 badkamer
- Aantal woonlagen 2 woonlagen
- Energielabel F
- Isolatie Dakisolatie, gedeeltelijk dubbel glas
- Verwarming Cv ketel
- C.v.-ketel bouwjaar 2023
- Eigendom Eigendom
- Ligging Open ligging, buiten bebouwde kom, landelijk gelegen
- Hoofdtuin Tuin rondom
- Achterom Ja
- Schuur / berging Inpandig
- Garage Inpandig
Plattegronden



Cijfers voor de wijk
Burgerlijke staat
- Gehuwd
- Ongehuwd
- Gescheiden
- Verweduwd
Leeftijd in gemeente
Leeftijd buurtbewoners
- 0-15 13%
- 15-15 10%
- 25-45 19%
- 45-65 33%
- 65+ 26%
Benieuwd naar de waarde van je woning?
Maak dan een afspraak voor een gratis waardebepaling zonder verplichtingen.
Downloads
Even binnenkijken?
Neem vrijblijvend contact met ons op.
