Terug naar overzicht
Sint odiliËnberg

Sint Petrusstraat 9

€ 550.000, - k.k.

Landelijk gelegen in een rustige en groene omgeving ligt deze riante vrijstaande woning. De woning is voorzien van onder andere 4 slaapkamers, waarvan 1 op begane grond, inpandige garage en is geheel onderkelderd waardoor en veel extra mogelijkheden zijn voor hobby of kantoor/praktijk aan huis.

Naast de woning zelf, biedt ook de riante tuin veel mogelijkheden. Denk bijvoorbeeld aan: het houden van kleinvee, tuinieren en het creëren van een moestuin. Door de ligging met een grote diversiteit aan groen, verveelt het uitzicht hier nooit! Geniet van het vrije uitzicht aan de achterkant en zijkant!

Indeling

Souterrain
De woning is geheel onderkelderd en voorzien van verschillende multifunctionele hobbyruimtes en opslagruimtes, deze zijn respectievelijk maar liefst ca. 29 m2, 29 m2, 14 m2 en 18 m2. Dit geeft verschillende mogelijkheden voor hobby aan huis. De ruimtes zijn voorzien van daglichttoetreding en/of radiatoren. Een van de ruimtes is voorzien van aansluitpunten voor het witgoed en opstelling cv-ketel (Bosch, 2007, eigendom). Tevens middels trap toegang tot de achtertuin.

Begane grond
Ruime entree/hal voorzien van een tegelvloer met trap naar verdieping en souterrain, meterkast en toegang tot de woonkamer, keuken, toiletruimte, garage, badkamer en slaapkamer. De toiletruimte is betegeld en voorzien van zwevend closet met fonteintje.
De woonkamer is ruim opgezet (circa 30 m2) en voorzien van een tegelvloer en airco-installatie (2024). Door de grote raampartijen is er prettig lichtinval en is er aan de achterzijde mooi uitzicht over het groen en de achtergelegen weilanden en bosgebied. Gesloten leefkeuken (circa 14 m2) met een keuken in hoekopstelling en de navolgende installaties: inductiekookplaat, vaatwasser, koelkast, afzuigkap, spoelbak en diverse opbergkastjes en lades. De keuken is vorig jaar gerenoveerd en voorzien van nieuwe fronten en apparatuur. Ook vanuit hier profiteer je van het mooie vrije uitzicht.
De slaapkamer begane grond is ruim opgezet (circa 18 m2) en voorzien van een vinylvloer. De badkamer is geheel betegeld en voorzien van een ligbad, douche en wastafel met meubel.
Inpandig bereikbare garage (circa 16 m2) met elektrische sectionaal poort.

Eerste verdieping
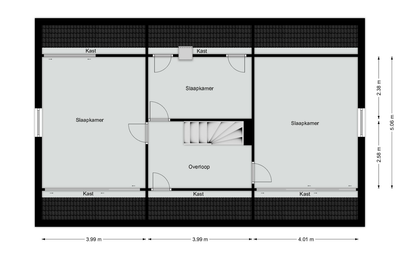
Overloop geeft toegang tot de drie slaapkamers. Deze zijn respectievelijk circa 20 m2, 20 m2 en 10 m2 en voorzien van laminaatvloer of vinylvloer. Een van de slaapkamers is voorzien van een vaste wastafel. Tot slot is er op de verdieping voldoende bergruimte aanwezig door de kasten in de knieschotten.

Tuin
Rondom de woning ligt een heerlijke, grote tuin. Door het ruime overdekte terras, kun je fijn genieten van het buitenleven. De tuin is geheel omheind en biedt volledige privacy en vrijheid. Er zijn namelijk geen directe buren aan de achterkant en zijkant. De tuin is omringd door weilanden en bosgebied in de verte. Verder is de tuin grotendeels voorzien van gazon, gedeeltelijk betegeld en beklinkerd en heeft een verscheidenheid aan beplanting, bomen en groen. Er is een carport aanwezig met aan de rechterzijde een strookje tuin toegankelijk is die ideaal gebruikt kan worden als bijvoorbeeld moestuin of huisweide voor het houden van kleinvee. Ook zijn er twee praktische bergingen aanwezig als opslagruimte. Aan de voorzijde is een oprit aanwezig en de tuin is middels poortje toegankelijk.

Algemeen
– De woning is geheel onderkelderd met verschillende multifunctionele (hobby)ruimtes;
– Gelegen in schitterende woonomgeving, in buitengebied, omringd door bossen en weilanden;
– Grotendeels voorzien van rolluiken;
– Groot perceel van 1659 m2;
– Ideale gezinswoning!
– Vorig jaar zijn er 11 zonnepanelen geplaatst;
– Stukje zijtuin ideaal te gebruiken als moestuin of huisweide voor het houden van kleinvee;
– Gunstige ligging t.o.v. autosnelweg A2 en A73.

Omgeving
De woning is landelijk gelegen in buurtschap ’t Reutje, welke oorspronkelijk valt onder Sint Odiliënberg. Kenmerkend aan ’t Reutje is de rustige en groene ligging en omgeving. Door de directe nabijheid van Posterholt en Sint Odiliënberg en korte afstand tot Roermond, liggen de belangrijkste voorzieningen binnen handbereik. Daarnaast is er ook op 15 minuten bereikbaarheid ten opzichte van de autosnelwegen.

Landelijk gelegen in een rustige en groene omgeving ligt deze riante vrijstaande woning. De woning is voorzien van onder andere 4 slaapkamers, waarvan 1 op begane grond, inpandige garage en is geheel onderkelderd waardoor en veel extra mogelijkheden zijn voor hobby of kantoor/praktijk aan huis. Naast de woning zelf, biedt…

Kenmerken

  • Status Verkocht
  • Vraagprijs € 550.000,- k.k.
  • Aanvaarding In overleg
  • Soort woonhuis Vrijstaande woning
  • Soort bouw Bestaande bouw
  • Bouwjaar 1975
  • Soort dak Zadeldak
  • Onderhoud binnen Goed
  • Onderhoud buiten Goed
  • Gebruiksoppervlakte wonen ca. 200 m2
  • Oppervlakte gebouwgebonden ca. 31 m2
  • Externe bergruimte ca. 11 m2
  • Overige inpandige ruimte ca. 77 m2
  • Inhoud ca. 884 m3
  • Perceeloppervlakte ca. 1659 m2
  • Aantal kamers 9 kamers
  • Aantal slaapkamers 4
  • Aantal badkamers 1 badkamer
  • Badkamervoorzieningen Ligbad, douche, wastafel, wastafelmeubel
  • Aantal woonlagen 3 woonlagen
  • Voorzieningen Rolluiken, tv kabel, airconditioning, zonnepanelen
  • Energielabel C
  • Isolatie Dakisolatie, muurisolatie, gedeeltelijk dubbel glas
  • Verwarming Cv ketel
  • Warm water Cv ketel
  • C.v.-ketel type Gas
  • C.v.-ketel bouwjaar 2007
  • Eigendom Eigendom
  • Ligging Aan bosrand, aan rustige weg, vrij uitzicht, in bosrijke omgeving, landelijk gelegen
  • Hoofdtuin Tuin rondom
  • Achterom Ja
  • Kwaliteit tuin Normaal
  • Schuur / berging Vrijstaand hout
  • Aantal schuren / bergingen 2
  • Parkeerfaciliteiten Openbaar parkeren, op eigen terrein
  • Garage Inpandig
Meer kenmerken Minder kenmerken

Plattegronden

Statistieken

Cijfers voor de wijk

Burgerlijke staat

  • Gehuwd
  • Ongehuwd
  • Gescheiden
  • Verweduwd

Leeftijd in gemeente

Leeftijd buurtbewoners

  • 0-15 13%
  • 15-15 10%
  • 25-45 19%
  • 45-65 33%
  • 65+ 26%

Benieuwd naar de waarde van je woning?

Maak dan een afspraak voor een gratis waardebepaling zonder verplichtingen.

Even binnenkijken?

Neem vrijblijvend contact met ons op.