Terug naar overzicht
Roermond

Kraanpoort 2

€ 220.000, - k.k.

Ben jij op zoek naar een fijne tussenwoning in hartje Roermond? Dan is Kraanpoort 2 misschien wel dé woning voor jou! Alle winkels en dagelijkse voorzieningen liggen op loopafstand en de bruisende Roerkade ligt om de hoek. In de zomer kun je dan ook heerlijk genieten van een drankje aan het water. De woning beschikt onder andere over: een woonkamer, keukenruimte, drie (slaap)kamers, een badkamer en een loggia. Zie jij de potentie?

Begane grond:
Bij binnenkomst merk je direct de praktische indeling. Je treft hier de entree, de meterkast en een handige berging met de witgoedaansluiting. Ideaal voor je wasmachine en droger, maar ook perfect als extra opslagruimte.

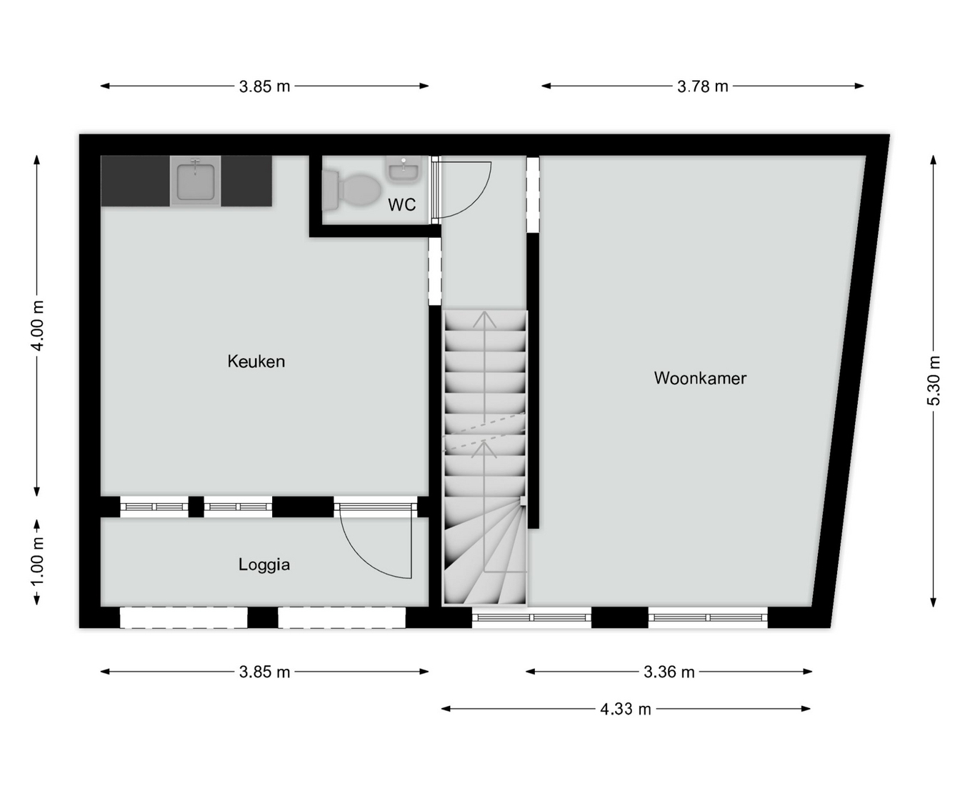
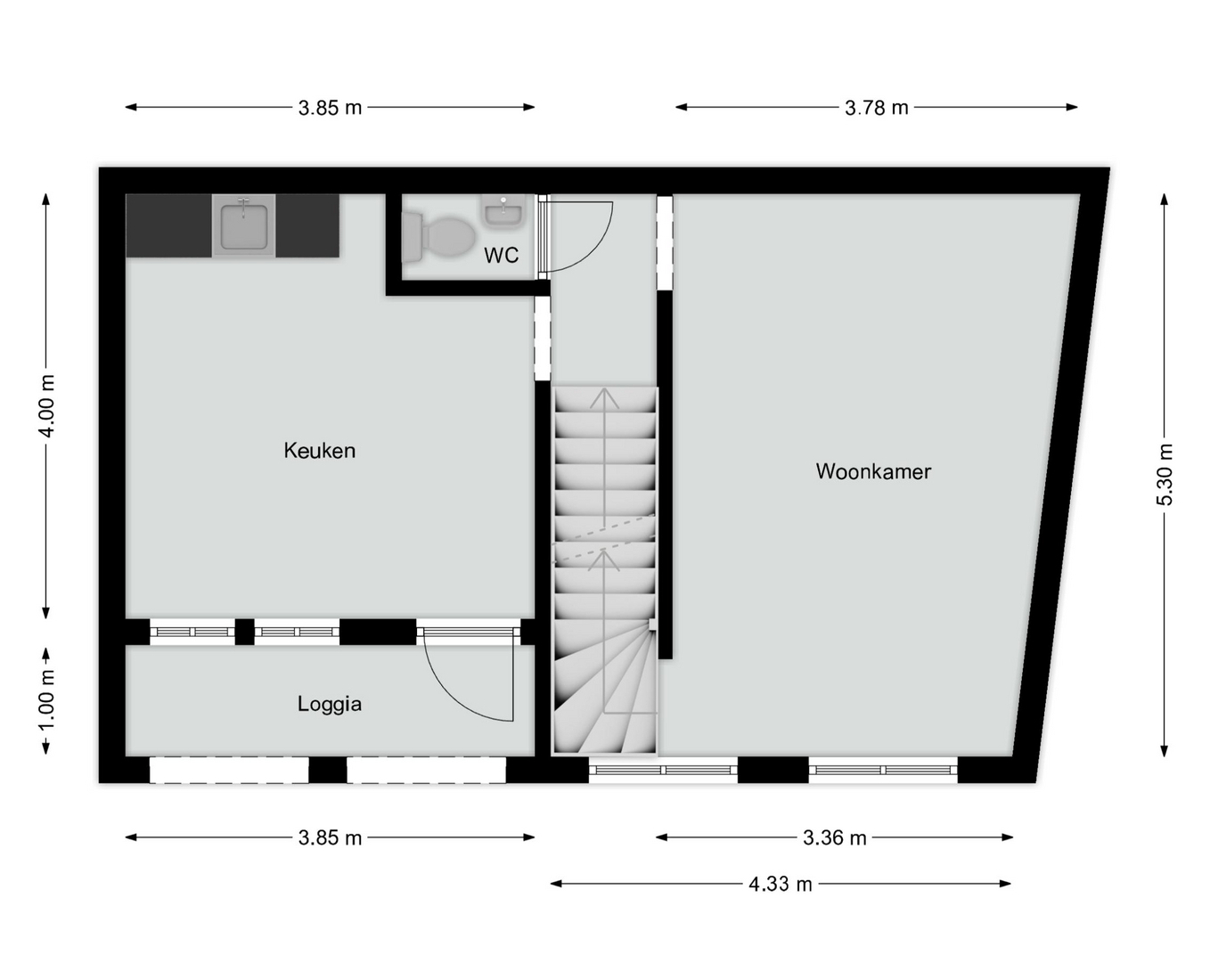
Eerste verdieping:
Via de trap in de entree bereiken we de eerste verdieping. Hier vind je de woonkamer en een aparte dichte keuken. De keuken vraagt nog om realisatie, wat jou de kans geeft om precies jouw stijl en indeling te kiezen om deze ruimte naar eigen wens en behoefte aan te passen. Of je nu droomt van een moderne leefkeuken of juist een functionele kookruimte, hier heb je alle vrijheid om jouw ideale keuken te realiseren.

Vanuit de (toekomstige) keuken heb je toegang tot een loggia, waar je bij een kop koffie of een glas wijn kunt genieten van het uitzicht op de gezellige straat beneden. Hier kun je de dag rustig beginnen of ontspannen na een drukke werkdag.

De overloop is voorzien van een separaat toilet, ideaal voor zowel bewoners als gasten.

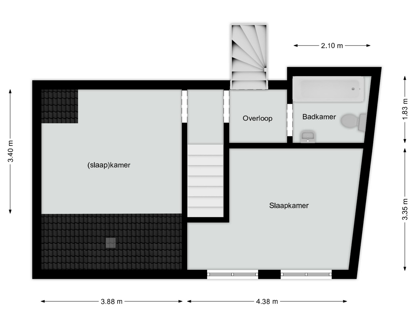
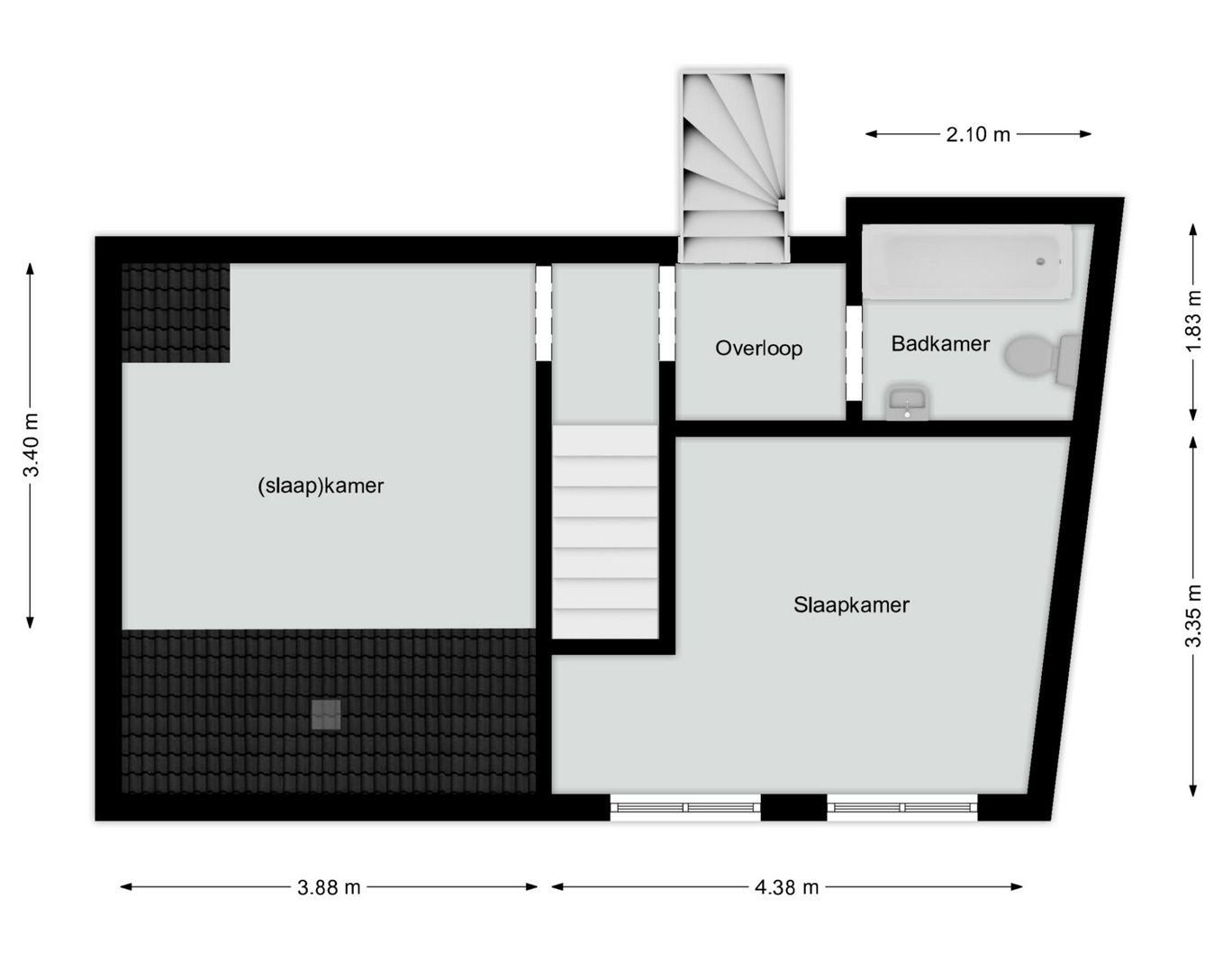
Tweede verdieping:
Op de tweede verdieping bevinden zich twee royale (slaap)kamers en de badkamer. De slaapkamers kun je naar wens inrichten: een ruime ouderslaapkamer en een fijne kinderkamer of thuiskantoor. De badkamer is voorzien van een ligbad, wastafel en toilet, een heerlijke plek om even helemaal tot rust te komen na een lange dag.

Zolder:
De zolder biedt extra mogelijkheden. Hier kun je een extra slaapkamer creëren, een werkruimte inrichten of een hobbyruimte maken. Ook bevindt zich hier de cv-installatie, zodat je technische zaken netjes uit het zicht kunt houden. Met een beetje creativiteit ontstaat hier een multifunctionele ruimte die perfect aansluit bij jouw levensstijl.

Bijzonderheden:
* Fijne tussenwoning met 3 (slaap)kamers.
* Energielabel E.
* Deels dubbel glas.
* Loggia met mooi uitzicht op de straat beneden.
* Gelegen in het centrum van Roermond.
* Alle dagelijkse voorzieningen binnen handbereik.

Omgeving:
Kraanpoort 2 ligt in het hart van de historische binnenstad van Roermond. Alles wat je nodig hebt, ligt binnen handbereik: gezellige winkels, restaurants, cafés en culturele hotspots. Geniet van een ochtendwandeling langs het water of een middag shoppen in de sfeervolle winkelstraten. Dankzij de centrale ligging heb je uitstekende verbindingen naar omliggende steden en natuurgebieden, terwijl je ’s avonds terugkeert naar de rust van je eigen stadswoning. Hier woon je midden in het centrum, zonder in te leveren op comfort en privacy.

Parkeren:
Parkeervergunning/bewonersvergunning mogelijk:
– € 12.- per maand voor 1e auto (jaarlijks gefactureerd, dus € 144.-).
– € 33 voor 2e auto, dus een totaal van € 45 per maand voor 2 auto’s.

NB:
– Dit betreft verkoop van voormalige huurwoning, verkoper heeft er nooit gewoond. Er is geen vragenlijst en lijst van zaken beschikbaar.

Ben jij op zoek naar een fijne tussenwoning in hartje Roermond? Dan is Kraanpoort 2 misschien wel dé woning voor jou! Alle winkels en dagelijkse voorzieningen liggen op loopafstand en de bruisende Roerkade ligt om de hoek. In de zomer kun je dan ook heerlijk genieten van een drankje aan…

Kenmerken

  • Status Beschikbaar
  • Vraagprijs € 220.000,- k.k.
  • Aanvaarding In overleg
  • Soort woonhuis Tussenwoning
  • Soort bouw Bestaande bouw
  • Bouwjaar 1910
  • Soort dak Zadeldak
  • Onderhoud binnen Matig
  • Onderhoud buiten Goed
  • Gebruiksoppervlakte wonen ca. 93 m2
  • Oppervlakte gebouwgebonden ca. 4 m2
  • Overige inpandige ruimte ca. 14 m2
  • Inhoud ca. 312 m3
  • Perceeloppervlakte ca. 51 m2
  • Aantal kamers 6 kamers
  • Aantal slaapkamers 3
  • Aantal badkamers 1 badkamer
  • Badkamervoorzieningen Ligbad, toilet, wastafel
  • Aantal woonlagen 4 woonlagen
  • Voorzieningen Natuurlijke ventilatie
  • Energielabel E
  • Isolatie Gedeeltelijk dubbel glas
  • Verwarming Cv ketel
  • Warm water Cv ketel
  • C.v.-ketel type Gas
  • Eigendom Eigendom
  • Ligging In centrum
  • Parkeerfaciliteiten Betaald parkeren
  • Garage Geen garage
Meer kenmerken Minder kenmerken

Plattegronden

Statistieken

Cijfers voor de wijk

Burgerlijke staat

  • Gehuwd
  • Ongehuwd
  • Gescheiden
  • Verweduwd

Leeftijd in gemeente

Leeftijd buurtbewoners

  • 0-15 10%
  • 15-15 10%
  • 25-45 25%
  • 45-65 29%
  • 65+ 26%

Benieuwd naar de waarde van je woning?

Maak dan een afspraak voor een gratis waardebepaling zonder verplichtingen.

Even binnenkijken?

Neem vrijblijvend contact met ons op.