Maastricht

Scharnerweg 10, Maastricht

€ 299.000 k.k.

Op een toplocatie met veel voorzieningen mogen wij u dit riante object aanbieden gelegen op de begane grond aan de Scharnerweg 10 met veel mogelijkheden.

INDELING

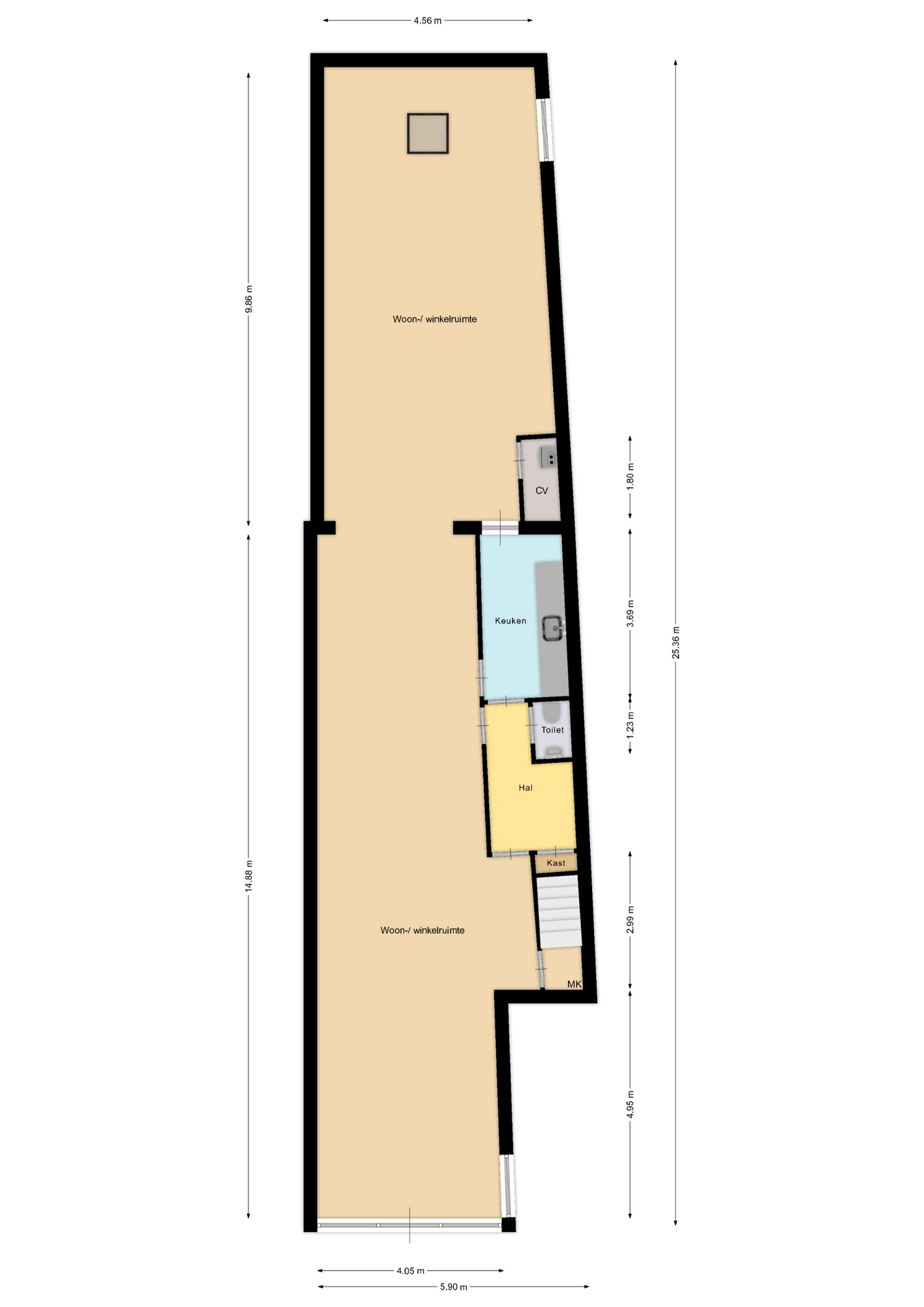
Begane grond:
De ruimte (125,66m²) is momenteel in gebruik als beautysalon, echter deze wordt leeg opgeleverd en biedt tal van mogelijkheden. Meterkast met 3-fasen aansluiting, slimme meters en toegang tot het souterrain. Middels een tussenhal is er toegang tot het toilet met wandcloset en fonteintje. Keukenruimte (ca. 6.5m²) voorzien van keukenblok met wasbak. Kast met Cv-opstelling (Remeha, eigendom). Aan de achterzijde is een dakraam geplaatst.

Souterrain:
Kelder (16,58m²) met een stahoogte van ca. 2,00m.

Bijzonderheden:
– Multifunctioneel object gelegen op de begane grond aan de Scharnerweg 10;
– Volgens RegelsOpDeKaart beschikt het adres over een woonbestemming;
– Eigen Cv-opstelling en eigen meters;
– Voorzien van houten en kunststof kozijnen;
– Alle afmetingen zijn indicatief; hieraan kunnen geen rechten worden ontleend.

Omgeving:
Dit object is gelegen in de wijk Scharn, nabij diverse winkelvoorzieningen zoals Albert Heijn XL, Kruidvat en Gall & Gall. Ook het MUMC+, Vodafone/Ziggo, Mercedes-Benz, de medische universiteit en diverse andere faculteiten zijn op relatief korte afstand gelegen. De bushalte bevindt zich op enkele meters afstand. Het Centraal Station en stadsdeel Wyck zijn binnen circa 5 minuten per fiets bereikbaar. De op- en afritten van de A2 liggen op ongeveer 3 minuten autorijafstand.

Op een toplocatie met veel voorzieningen mogen wij u dit riante object aanbieden gelegen op de begane grond aan de Scharnerweg 10 met veel mogelijkheden. INDELING Begane grond: De ruimte (125,66m²) is momenteel in gebruik als beautysalon, echter deze wordt leeg opgeleverd en biedt tal van mogelijkheden. Meterkast…

Kenmerken

  • Status Beschikbaar
  • Koopprijs € 299.000 k.k.
  • Aanvaarding In overleg
  • Servicekosten -
  • Aanvaarding In overleg
  • Hoofdfunctie Winkelruimte
  • Soort bouw Bestaande bouw
  • Bouwjaar 1930
  • Energielabel A p
  • Onderhoud binnen Goed
  • Onderhoud buiten Goed
Meer kenmerken Minder kenmerken

Plattegronden

Statistieken

Cijfers voor de wijk

Burgerlijke staat

  • Gehuwd
  • Ongehuwd
  • Gescheiden
  • Verweduwd

Leeftijd in gemeente

Leeftijd buurtbewoners

  • 0-15 10%
  • 15-15 25%
  • 25-45 26%
  • 45-65 23%
  • 65+ 16%

Even binnenkijken?

Neem vrijblijvend contact met ons op.

Geïnteresseerd?

Neem contact op