Terug naar overzicht
Roermond

Willem II Singel 38 F

€ 199.000, - k.k.

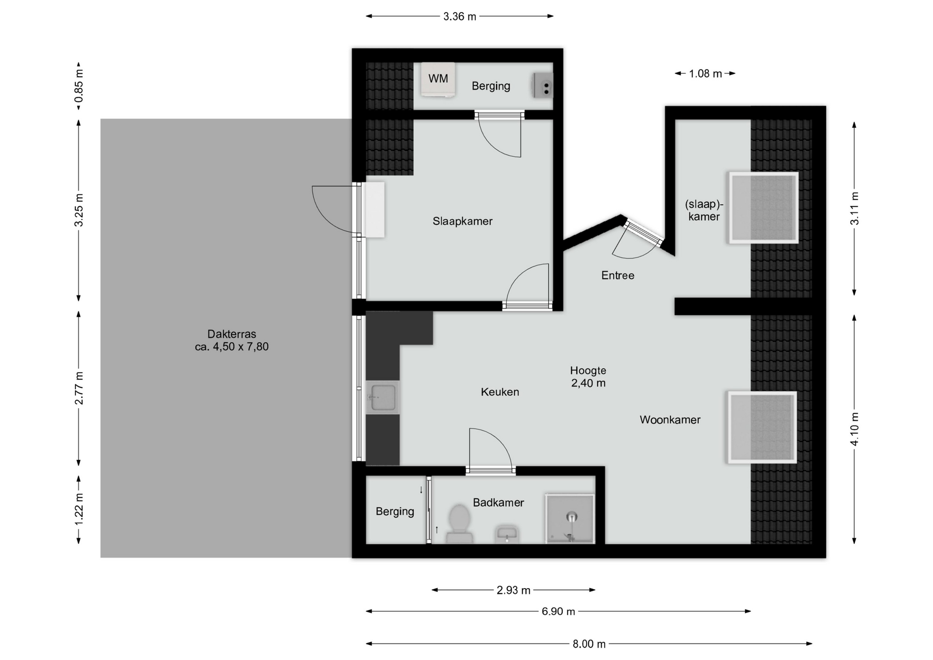
Starters opgelet! Ben jij op zoek naar een fijn appartement in hartje Roermond? Dan is Willem II Singel 38 F misschien wel het appartement voor jou! Alle winkels en dagelijkse voorzieningen liggen op loopafstand en het bruisende stadscentrum ligt om de hoek. In de zomer kun je dan ook heerlijk genieten van een drankje aan het water. Het appartement beschikt onder andere over: een woonkamer, keuken, een slaapkamer, een badkamer, berging en een royaal dakterras.

Indeling:

Wonen:
Wanneer je het appartement binnenkomt, stap je direct in de lichte woonkamer met open keuken. Dit is de plek waar het dagelijkse leven zich afspeelt. Dankzij de open indeling voelt de ruimte knus en gezellig tegelijk.

Hier creëer je eenvoudig een comfortabele zithoek waar je na een lange dag neerploft met een goed boek of een serie. Tegelijkertijd kun je een compacte maar praktische eethoek plaatsen waar je vrienden ontvangt voor een diner of een borrel. De open keuken vormt het sociale middelpunt van de ruimte: terwijl je kookt, blijf je altijd in contact met je gasten.

Vanuit de woonkamer heb je ook toegang tot de badkamer, wat zorgt voor een praktische indeling van het appartement.

Slapen en badderen:
De slaapkamer ligt rustig in het appartement en vormt jouw persoonlijke plek om te ontspannen. Hier richt je eenvoudig een comfortabel bed en een kledingkast in, waardoor een fijne en rustige slaapomgeving ontstaat.

Wat deze slaapkamer extra bijzonder maakt, is de directe toegang tot het dakterras. Op zomerochtenden stap je zo naar buiten met een kop koffie, terwijl de stad langzaam ontwaakt. Het geeft de ruimte een open en luxe gevoel dat je normaal gesproken vooral bij grotere woningen verwacht.

Vanuit de slaapkamer bereik je een aparte berging. Hier bevinden zich de witgoedaansluiting, de cv-installatie en de WTW-installatie. Deze ruimte zorgt ervoor dat technische installaties en wasapparatuur netjes uit het zicht blijven, terwijl je toch alle praktische voorzieningen binnen handbereik hebt. Daarnaast kun je hier ook extra spullen opbergen, zodat je appartement overzichtelijk en opgeruimd blijft.

De badkamer is vanuit de woonkamer bereikbaar en vormt een functionele ruimte waar je de dag rustig begint of juist ontspannen afsluit. Hier kun je kiezen voor een frisse, moderne inrichting waardoor het een fijne plek wordt om je ochtendroutine te starten of na een lange dag even tot rust te komen. De huidige badkamer is voorzien van: een douche, toilet en wastafel.

Dakterras:
Het absolute hoogtepunt van dit appartement is zonder twijfel het royale dakterras. In de binnenstad van Roermond is een buitenruimte van dit formaat een echte luxe.

Hier creëer je moeiteloos jouw eigen buitenoase. Denk aan een gezellige loungeset waar je lange zomeravonden doorbrengt met vrienden, een eettafel voor diners in de buitenlucht of zelfs een groene stadstuin met planten en kruiden. Door de royale afmeting kun je verschillende zithoekjes maken en de ruimte helemaal naar eigen wens indelen.

Of je nu wilt genieten van de zon, rustig wilt werken in de buitenlucht of simpelweg wilt ontspannen met een drankje terwijl je uitkijkt over de stad, dit dakterras maakt het mogelijk. Het voelt als een verlengstuk van je appartement en geeft het appartement een unieke woonbeleving.

Bijzonderheden:
* Fijn (starters) appartement
* Energielabel E.
* Voorzien van dubbel glas en dakramen.
* Royaal dakterras.
* Gelegen in het centrum van Roermond.
* Alle dagelijkse voorzieningen binnen handbereik.

Omgeving:
De mooie, historische Willem II Singel wordt gevormd door statige herenhuizen langs een brede singel. De bereikbaarheid met auto, bus en trein is goed. Alles wat je nodig hebt, ligt binnen handbereik: gezellige winkels, restaurants, cafés en culturele hotspots. Geniet van een ochtendwandeling langs het water of een middag shoppen in de sfeervolle winkelstraten. Dankzij de centrale ligging heb je uitstekende verbindingen naar omliggende steden en natuurgebieden, terwijl je ’s avonds terugkeert naar de rust van je eigen stadswoning. Hier woon je aan de rand van het centrum, zonder in te leveren op comfort en privacy.

Parkeren:
Parkeervergunning/bewonersvergunning mogelijk:
– € 12.- per maand voor 1e auto (jaarlijks gefactureerd, dus € 144.-).
– € 33 voor 2e auto, dus een totaal van € 45 per maand voor 2 auto’s.

NB:
– Dit betreft verkoop van voormalige huurwoning, verkoper heeft er nooit gewoond. Er is geen vragenlijst beschikbaar.

Starters opgelet! Ben jij op zoek naar een fijn appartement in hartje Roermond? Dan is Willem II Singel 38 F misschien wel het appartement voor jou! Alle winkels en dagelijkse voorzieningen liggen op loopafstand en het bruisende stadscentrum ligt om de hoek. In de zomer kun je dan ook heerlijk…

Kenmerken

  • Status Beschikbaar
  • Vraagprijs € 199.000,- k.k.
  • Aanvaarding In overleg
  • Soort bouw Bestaande bouw
  • Bouwjaar 1891
  • Soort dak Zadeldak
  • Onderhoud binnen Redelijk
  • Onderhoud buiten Goed
  • Gebruiksoppervlakte wonen ca. 50 m2
  • Oppervlakte gebouwgebonden ca. 35 m2
  • Inhoud ca. 160 m3
  • Aantal kamers 2 kamers
  • Aantal slaapkamers 1
  • Aantal badkamers 1 badkamer
  • Badkamervoorzieningen Toilet, douche, wastafel
  • Aantal woonlagen 1 woonlagen
  • Voorzieningen Tv kabel, dakraam
  • Energielabel E
  • Isolatie Dubbel glas
  • Verwarming Cv ketel, warmte terugwininstallatie
  • Warm water Cv ketel
  • C.v.-ketel type Gas
  • Eigendom Eigendom
  • Ligging In centrum
  • Parkeerfaciliteiten Betaald parkeren, parkeervergunningen
  • Garage Geen garage
Meer kenmerken Minder kenmerken

Plattegronden

Statistieken

Cijfers voor de wijk

Burgerlijke staat

  • Gehuwd
  • Ongehuwd
  • Gescheiden
  • Verweduwd

Leeftijd in gemeente

Leeftijd buurtbewoners

  • 0-15 10%
  • 15-15 10%
  • 25-45 25%
  • 45-65 29%
  • 65+ 26%

Benieuwd naar de waarde van je woning?

Maak dan een afspraak voor een gratis waardebepaling zonder verplichtingen.

Even binnenkijken?

Neem vrijblijvend contact met ons op.