Terug naar overzicht
Bunde

Vliegenstraat 44

€ 539.000, - k.k.

Bent u op zoek naar een karakteristiek winkel/woonhuis met een grote loods/opslagruimte? Dan is dit vrijstaande object met een sfeervolle bovenwoning een een ruime loods/werkplaats van ca. 345m² in de dorpskern van Bunde wellicht iets voor u. Heeft u interesse in deze woning? Neem dan contact op voor het maken van een afspraak.

Indeling

Onderverdieping:
In de kelder is een appartement van ca. 28m² gerealiseerd. Dit appartement is van buiten via een deur in de zijgevel bereikbaar. Het appartement is voorzien van een toilet, douche, wasmachineaansluitingen en een aanrechtcombinatie met de navolgende apparatuur: inductiekookplaat, afzuigkap en spoelbak.

Begane grond:
Winkelruimte (ca. 54 m²) met een achtergelegen kantoorruimte (ca. 14 m²) voorzien van een toilet. Separate ingang met hal naar de woonruimte op de eerste verdieping. In de hal is de meterkast voorzien van een nieuwe groepenkast (2017) met krachtstroom ten behoeve van de loods. Via de oprit en de achterzijde van de winkel is er toegang tot het achterterrein. Daar staat de royale loods / werkplaats van ca. 345m². Tussen het woon/winkelhuis en de loods is een ruime overkapping (ca. 30m²).

Eerste verdieping:
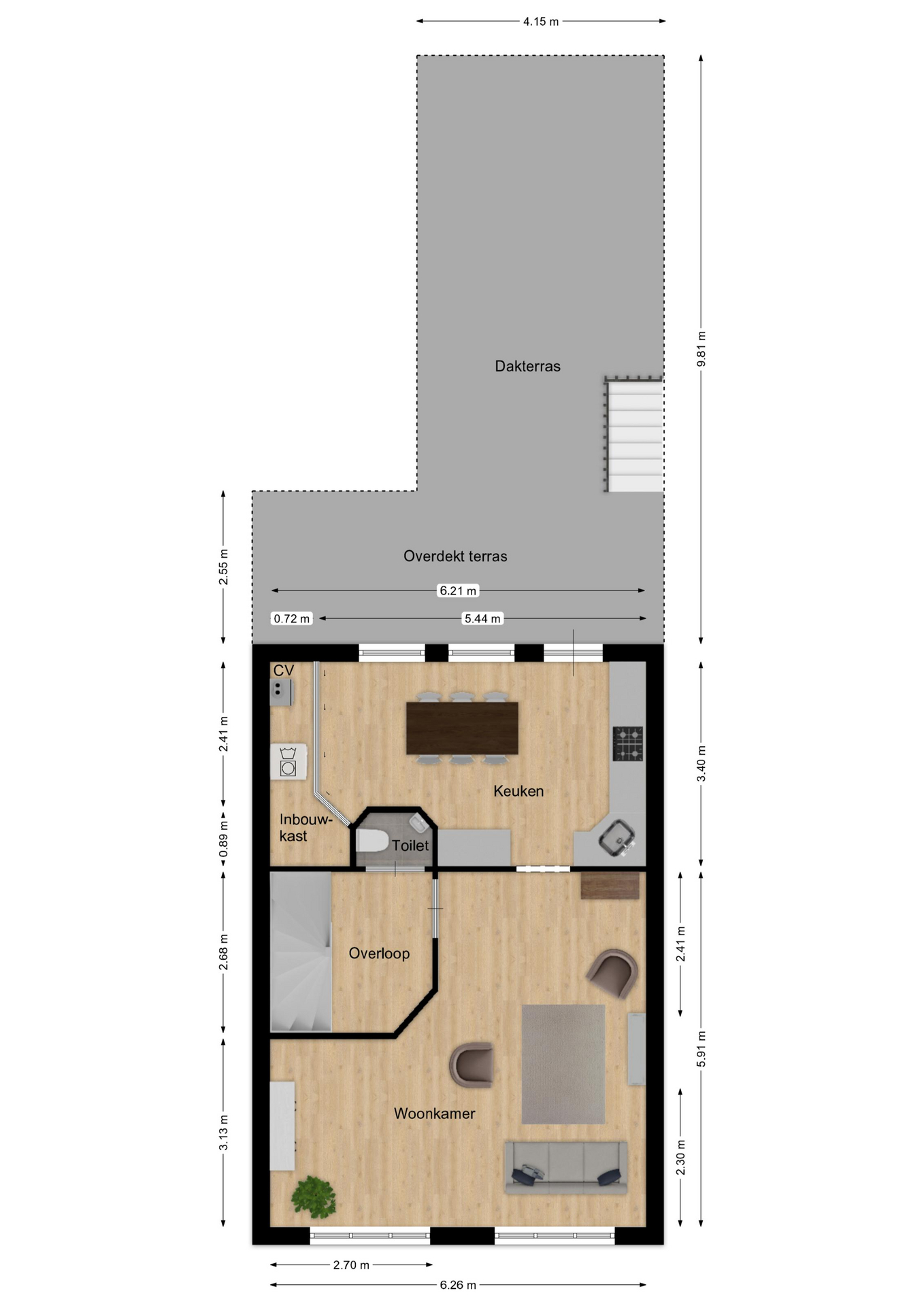
Overloop alwaar toilet met wandcloset en fonteintje. Aan de voorzijde gelegen woonkamer (ca. 29.5 m²) met schoorsteenmantel voorzien van een houtkachel. Tevens is de woonkamer voorzien van grote ramen met veel lichtinval. Keuken (ca. 20 m²) met aanrechtcombinatie voorzien van de volgende apparatuur: 5-pits gasfornuis, afzuigkap, vaatwasser, koelkast, combimagnetron en spoelbak. Daarnaast beschikt de keuken over een airco en een inbouwkast met witgoedaansluitingen en de opstelling van de cv-combiketel (Nefit Trendline, bouwjaar 2022, eigendom). Vanuit de keuken is er toegang tot het ruime dakterras (ca. 47 m²) aan de achterzijde van de woning. Het dakterras is deels voorzien van een glazen overkapping (ca. 15m²).

Tweede verdieping:
Ruime overloop. Drie slaapkamers (ca. 15.5 m², 15.3 m² en 10 m²). Badkamer (ca. 11 m²) met zeer ruime inloopdouche, badmeubel met vaste wastafel en wandcloset.

Zolder:
Via een vaste trap bereikbare zolderruimte.

Nadere bijzonderheden:
– Karakteristiek object met een prachtig afgewerkte bovenwoning;
– Keuken en woonkamer zijn voorzien van elektrische vloerverwarming;
– In de keuken is een airco aanwezig;
– Mooie laminaatvloeren (eerste verdieping) en plankenvloeren (tweede verdieping);
– Voorzien van dakisolatie, dubbel glas (behalve in de winkel) en grotendeels spouwisolatie;
– De vloer tussen de begane grond en de eerste verdieping is geïsoleerd;
– Het pannendak is in 2000 vernieuwd en geïsoleerd;
– Woonoppervlakte 121m², winkelruimte 72m²,
– Ruim dakterras van ca. 47m²;
– Loods /werkplaats van ca. 345m²;
– Multifunctioneel object met combinatie van wonen, werken en opslag.

Bent u op zoek naar een karakteristiek winkel/woonhuis met een grote loods/opslagruimte? Dan is dit vrijstaande object met een sfeervolle bovenwoning een een ruime loods/werkplaats van ca. 345m² in de dorpskern van Bunde wellicht iets voor u. Heeft u interesse in deze woning? Neem dan contact op voor het maken…

Kenmerken

  • Status Beschikbaar
  • Vraagprijs € 539.000,- k.k.
  • Aanvaarding In overleg
  • Soort woonhuis Vrijstaande woning
  • Soort bouw Bestaande bouw
  • Bouwjaar 1929
  • Soort dak Zadeldak
  • Onderhoud binnen Goed
  • Onderhoud buiten Goed
  • Gebruiksoppervlakte wonen ca. 121 m2
  • Oppervlakte gebouwgebonden ca. 47 m2
  • Externe bergruimte ca. 345 m2
  • Overige inpandige ruimte ca. 106 m2
  • Inhoud ca. 870 m3
  • Perceeloppervlakte ca. 720 m2
  • Aantal kamers 6 kamers
  • Aantal slaapkamers 4
  • Aantal badkamers 1 badkamer
  • Badkamervoorzieningen Toilet, wastafel, wastafelmeubel, inloopdouche
  • Aantal woonlagen 5 woonlagen
  • Voorzieningen Rolluiken, airconditioning, rookkanaal, glasvezel kabel, natuurlijke ventilatie
  • Energielabel C
  • Isolatie Dakisolatie, muurisolatie, vloerisolatie, grotendeels dubbelglas
  • Verwarming Cv ketel, vloerverwarming gedeeltelijk
  • Warm water Cv ketel
  • C.v.-ketel type Gas
  • C.v.-ketel bouwjaar 2022
  • Eigendom Eigendom
  • Ligging In centrum, in woonwijk
  • Parkeerfaciliteiten Op eigen terrein
  • Garage Vrijstaand steen
Meer kenmerken Minder kenmerken

Plattegronden

Statistieken

Cijfers voor de wijk

Burgerlijke staat

  • Gehuwd
  • Ongehuwd
  • Gescheiden
  • Verweduwd

Leeftijd in gemeente

Leeftijd buurtbewoners

  • 0-15 16%
  • 15-15 12%
  • 25-45 18%
  • 45-65 34%
  • 65+ 19%

Benieuwd naar de waarde van je woning?

Maak dan een afspraak voor een gratis waardebepaling zonder verplichtingen.

Even binnenkijken?

Neem vrijblijvend contact met ons op.