Veestraat 34
Aan de Veestraat in Linne ligt deze fijne tweekapper. De verzorgde basis in deze woning, zorgt voor een mooi blanco canvas waar je lekker zelf mee aan de slag kunt gaan. De ruime mogelijkheden en gunstige ligging, vormen dat deze woning een heerlijke plek is die garant staat voor jarenlang woonplezier. Door onder andere: een woonkamer, leefkeuken en drie fijne (slaap)kamers, biedt deze woning voldoende leefruimte. Aan bergruimte is ook geen gebrek, door onder andere: twee provisiekelders, een zolder en een garage. Een fijne tuin op het zuidwesten, maakt het woongenot compleet!
Wordt dit de woning waar jij ja op gaat zeggen?
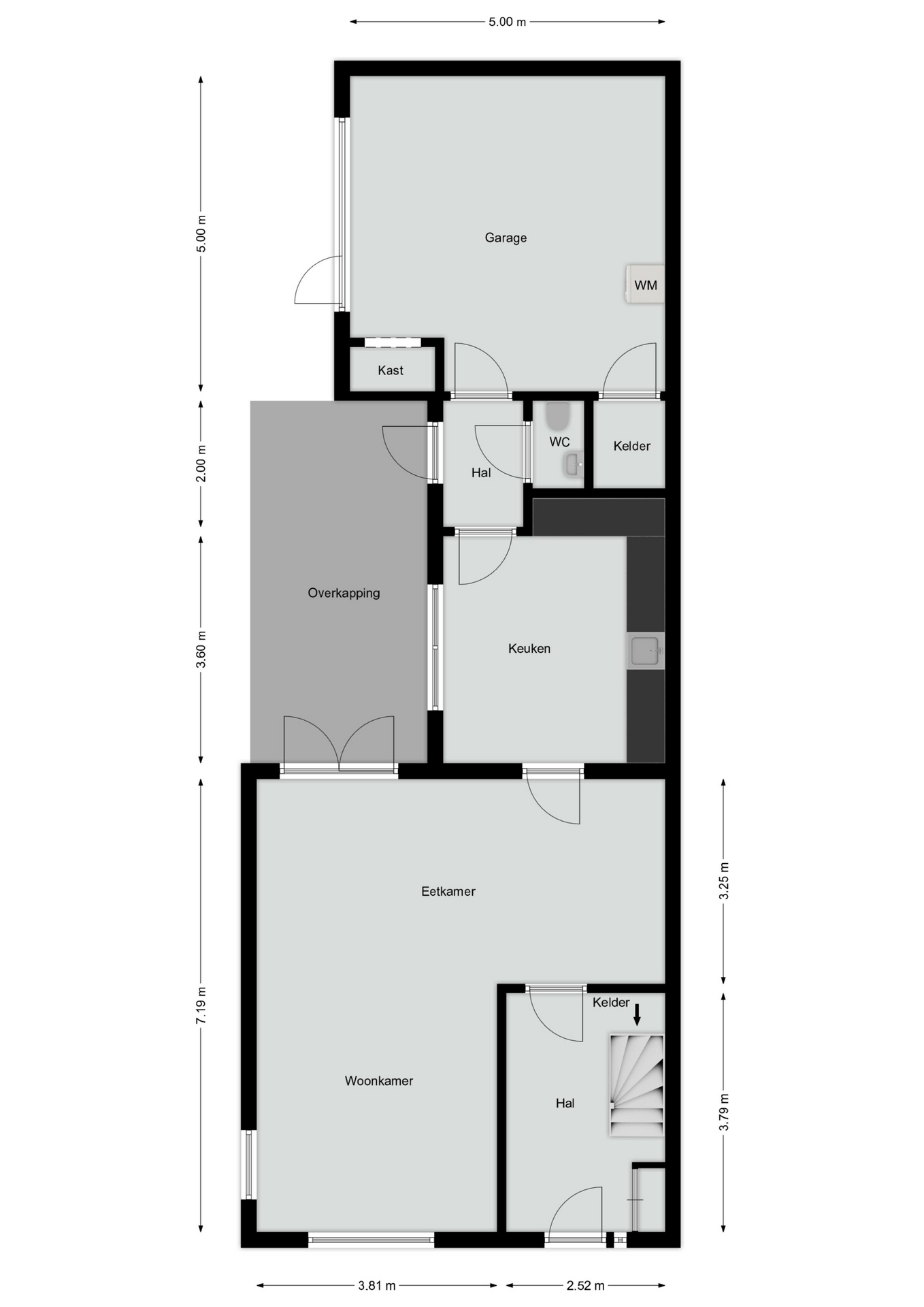
Kelder:
Twee praktische en ruime provisiekelders, bereikbaar via de hal en garage.
Begane grond:
We komen binnen in de hal, waar we de meterkast en de trapopgang naar de eerste verdieping vinden. We lopen door naar de woonkamer. Hier valt direct op hoe aangenaam licht de woonkamer is. Dit is te danken aan de grote raampartijen aan de voor- als achterzijde. Op de vloer ligt een tegelvloer, voorzien van vloerverwarming, en de wanden zijn neutraal afgewerkt. Tevens is de woonkamer voorzien van een airco. De woonkamer is ingedeeld in een praktische L-vorm, waardoor deze meer dan genoeg ruimte biedt voor een zithoek en er nog voldoende plek is voor een lange eettafel, waaraan je gezellig met vrienden en familie kunt plaatsnemen.
Achter de woonkamer vinden we de leefkeuken. De moderne keuken, is geplaatst in een praktische hoekopstelling, waardoor je over meer dan voldoende werk- en opbergruimte beschikt. Daarnaast is het geheel voorzien van alle wenselijke inbouwapparatuur, zoals een kookplaat, afzuigkap, combi-magnetron, vaatwasser en een koelkast.
Vanuit de keuken bereiken we via een tussenhal het toilet en de inpandig bereikbare garage. Hier is tevens de witgoedaansluiting aanwezig. Vanuit de garage bereiken we één van de provisiekelders.
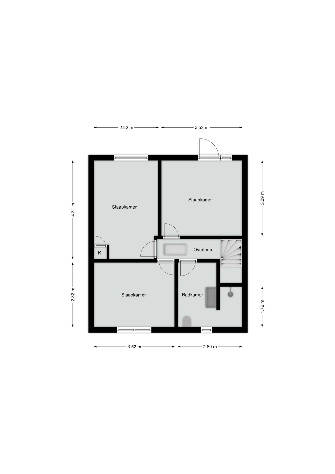
Eerste verdieping:
Via de trap in de hal bereiken we de eerste verdieping. Hier bevinden zich drie slaapkamers en de badkamer. De slaapkamers zijn van goed tot ruim formaat, aangenaam licht en keurig afgewerkt met een blokjes parketvloer en een neutrale afwerking op de wanden.
Een van de slaapkamers is voorzien van een airco. Hierdoor creëer je door de seizoenen heen, een aangenaam slaapklimaat.
Zoals verwacht, voldoet ook de badkamer volledig aan de wensen van deze tijd. De ruimte is modern betegeld in een neutrale kleurstelling en compleet ingericht met een inloopdouche, toilet en een wastafel.
Zolder:
Via een vlizotrap is de bergzolder bereikbaar.
Tuin:
Bij lekker wonen hoort ook lekker buiten kunnen zijn op zijn tijd. In de zijtuin, gelegen op het zuidwesten, moet dat zeker goed komen. Plaats een comfortabele lounge set onder de overkapping en geniet in alle rust van het buitenleven. De tuin is voorzien van: bestrating, borders met diverse soorten (vaste) beplanting en een fijn terras. Dit gaat absoluut een plek worden waar je heerlijk buiten kunt genieten.
Tevens beschikt de tuin over een houten tuinhuisje, ideaal voor het opbergen van tuingerei.
Kortom: een heerlijke toevoeging aan deze fijne woning.
Bijzonderheden:
* 3 (slaap)kamers.
* Ruime inpandige garage.
* Voorzien van muurisolatie en dubbel glas.
* Twee airco’s en deels vloerverwarming.
* Zonnepanelen.
* Alle dagelijkse voorzieningen binnen handbereik.
* Goede bereikbaarheid door de ligging nabij de A73.
Omgeving:
Linne is een geliefd en levendig dorp in de gemeente Maasgouw, gelegen tussen Roermond en Echt. Het dorp biedt een uitstekende combinatie van rust, ruimte en bereikbaarheid. In de directe nabijheid vindt u diverse voorzieningen zoals een basisschool, supermarkt, bakker, sportverenigingen en horecagelegenheden. Linne kent een actief verenigingsleven, waardoor u zich snel thuis zult voelen in deze hechte gemeenschap.
Natuurliefhebbers kunnen hun hart ophalen met de vele wandel- en fietsroutes in de omgeving, waaronder het nabijgelegen natuurgebied ‘De Linnerweerd’ en de Maasplassen. Dankzij de gunstige ligging nabij de A73 en N273 bent u binnen enkele autominuten in Roermond, en ook steden als Maastricht, Venlo en Eindhoven zijn goed bereikbaar.
Aan de Veestraat in Linne ligt deze fijne tweekapper. De verzorgde basis in deze woning, zorgt voor een mooi blanco canvas waar je lekker zelf mee aan de slag kunt gaan. De ruime mogelijkheden en gunstige ligging, vormen dat deze woning een heerlijke plek is die garant staat voor jarenlang…

Kenmerken
- Status Beschikbaar
- Vraagprijs € 369.000,- k.k.
- Aanvaarding In overleg
- Soort woonhuis Twee onder een kapwoning
- Soort bouw Bestaande bouw
- Bouwjaar 1952
- Soort dak Zadeldak
- Onderhoud binnen Goed
- Onderhoud buiten Goed
- Gebruiksoppervlakte wonen ca. 112 m2
- Oppervlakte gebouwgebonden ca. 16 m2
- Overige inpandige ruimte ca. 66 m2
- Inhoud ca. 550 m3
- Perceeloppervlakte ca. 410 m2
- Aantal kamers 4 kamers
- Aantal slaapkamers 3
- Aantal badkamers 1 badkamer
- Badkamervoorzieningen Toilet, wastafel, inloopdouche
- Aantal woonlagen 4 woonlagen
- Voorzieningen Mechanische ventilatie, tv kabel, airconditioning, zonnepanelen
- Energielabel D
- Isolatie Muurisolatie, dubbel glas
- Verwarming Cv ketel, vloerverwarming gedeeltelijk
- Warm water Cv ketel
- C.v.-ketel type Gas
- C.v.-ketel bouwjaar 2018
- Eigendom Eigendom
- Ligging In woonwijk
- Kwaliteit tuin Normaal
- Schuur / berging Vrijstaand hout
- Aantal schuren / bergingen 1
- Parkeerfaciliteiten Openbaar parkeren, op eigen terrein
- Garage Inpandig
Plattegronden




Cijfers voor de wijk
Burgerlijke staat
- Gehuwd
- Ongehuwd
- Gescheiden
- Verweduwd
Leeftijd in gemeente
Leeftijd buurtbewoners
- 0-15 13%
- 15-15 10%
- 25-45 20%
- 45-65 35%
- 65+ 21%
Benieuwd naar de waarde van je woning?
Maak dan een afspraak voor een gratis waardebepaling zonder verplichtingen.
Downloads
Even binnenkijken?
Neem vrijblijvend contact met ons op.
