Terug naar overzicht
Posterholt

Varenweg 11

€ 475.000, - k.k.

In een rustige en kindvriendelijke straat, aan de rand van Posterholt, ligt dit sfeervolle vrijstaande houten woonhuis, in “Scandinavische bouwstijl”. Licht, ruimte en een prettig woonklimaat zijn de kenmerken die deze woning het beste omschrijven. Dit aangevuld met de fijne en rustige ligging, vormt dat deze woning een heerlijke plek is die garant staat voor jarenlang woonplezier. Door het open karakter van de woonkamer, een fijne aanbouw en drie slaapkamers, biedt deze woning veel leefruimte. Aan bergruimte is ook geen gebrek, door onder andere een tuinberging, carport en zolder. Een fijne tuin op het zuidoosten maakt het woongenot compleet!

Naast het natuurlijke en milieuvriendelijke karakter van de woning, is ook het comfortabele en behaaglijke gevoel kenmerkend voor een houten woning. Tevens heeft hout van nature een goede isolatiewaarde, hout isoleert tot wel 5 keer beter dan steen! Dit maakt het wonen in een houten woning extra interessant.

Indeling

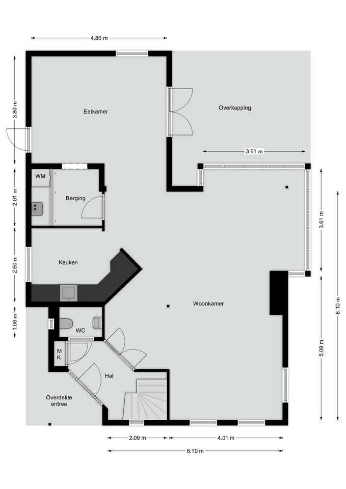
Begane grond
De ontvangsthal heeft een tegelvloer en hier bevindt zicht de meterkast, de trapopgang en de toiletruimte, deze is deels betegeld en voorzien van een zwevend toilet en een fonteintje. Een dubbele deur geeft toegang tot de lichte woonkamer met veel grote raampartijen en een heerlijk tuincontact. De vloer is voorzien van een marmeren tegelvloer met vloerverwarming. Dit gecombineerd met fraai afgewerkte wanden, een houtkachel en de vele zichtbare houtdetails, geeft het geheel een warme en sfeervolle uitstraling. De halfopen keuken is centraal gelegen in de woning. Deze is voorzien van een hoekopstelling met onder andere: een 5-pits (halogeen) keramische kookplaat, afzuigkap, spoelbak, oven, vaatwasser, koelkast, vriezer en voldoende opbergkastjes en lades. Aan de achterzijde van de woning is in 2002 een aanbouw gerealiseerd, deze is nu in gebruik als eetkamer. Deze is ook voorzien van een laminaatvloer en via de openslaande deuren is vanuit hier toegang tot de ruime terrasoverkapping. De totale woonoppervlakte van de woonkamer, eetkamer en keuken bedraagt maar liefst 78 m². In een praktische aparte berging is de cv-ketel opgesteld (Vaillant, eigendom, 2021) en hier zijn de witgoedaansluitingen.

Eerste verdieping
Vanaf de overloop is er toegang tot de badkamer en tot drie slaapkamers. De slaapkamers zijn 21, 11 en 4 m², twee slaapkamers zijn voorzien van praktische muurkasten. De slaapkamers en overloop zijn voorzien van eenzelfde, doorlopende laminaatvloer. De badkamer is volledig betegeld en ingericht met een douchecabine, vaste wastafel en een tweede zwevend toilet.

Tweede verdieping
Via een vlizotrap is de kleine bergzolder bereikbaar. Hier is plek voor het opbergen van diverse spullen die je niet dagelijks nodig hebt. Tevens bevindt zich hier de unit van de mechanische ventilatie.

Tuin
De woning is voorzien van een mooi aangelegde, geheel omsloten tuin rondom de woning, waarbij de achtertuin gelegen is op het zuidoosten. Doordat de tuin zo groot is heb je altijd de mogelijkheid om in de zon te zitten of een plekje in de schaduw op te zoeken. Aan de achterzijde van de woning bevindt zich een ruime terrasoverkapping. De tuin is verder voorzien van diverse terrassen, hagen, gazon, split en diverse soorten (vaste)beplanting.

Tevens beschikt de tuin over een vrijstaande houten berging in dezelfde stijl als de woning, deze is voorzien van een tegelvloer, vliering, elektra en grondwaterpomp. De vrijstaande carport is voorzien van elektra. Aan de linkerzijde van de woning bevindt zich de achterom met afsluitbare poort, maar ook achterin het perceel is er middels een afsluitbare poort toegang tot de carport.

De verzorgde voortuin biedt de mogelijkheid tot parkeren op eigen terrein. Kortom: een heerlijke toevoeging aan deze fijne woning.

Omgeving:
Dit sfeervolle houten woonhuis is gelegen in een rustige, kindvriendelijke woonwijk, op korte afstand van alle voorzieningen (basisschool, winkels en sportgelegenheid) van Posterholt, met de nabijgelegen natuur in de achtertuin. Posterholt is zo’n 10 km ten zuidoosten van Roermond gelegen waardoor ook Roermond met alle voorzieningen (winkels, cultuur, scholen) binnen handbereik ligt. Daarnaast is Posterholt gelegen aan de de Duitse grens, nabij de voorzieningen van Heinsberg.

Algemeen:
– Vrijstaande woning met bijzondere, Scandinavische bouwstijl met optimaal isolatiepakket;
– Milieuvriendelijkheid, comfort, sfeer en natuurlijke isolatie kenmerken deze woning;
– Gehele woning voorzien van houten kozijnen met HR+ beglazing;
– Ramen begane grond grotendeels voorzien van elektrische screens;
– Combi cv-ketel van 2021 (eigendom Vaillant);
– De buitendeuren in de woning zijn voorzien van draai-kiepfunctie en horren;
– De begane grond vloer is een dorpelvrije marmeren tegelvloer welke grotendeels is voorzien van vloerverwarming;
– De dakramen in de woning zijn voorzien van een hor en verduisterend rolgordijn met plissé;
– De leefruimtes hebben door de volledige houten bouw een gemoedelijke en warme uitstraling. Het comfort en de sfeer zijn bijzonder;
– Centrale ligging nabij voorzieningen in Posterholt en omgeving.

In een rustige en kindvriendelijke straat, aan de rand van Posterholt, ligt dit sfeervolle vrijstaande houten woonhuis, in “Scandinavische bouwstijl”. Licht, ruimte en een prettig woonklimaat zijn de kenmerken die deze woning het beste omschrijven. Dit aangevuld met de fijne en rustige ligging, vormt dat deze woning een heerlijke plek…

Kenmerken

  • Status Beschikbaar
  • Vraagprijs € 475.000,- k.k.
  • Aanvaarding In overleg
  • Soort woonhuis Vrijstaande woning
  • Soort bouw Bestaande bouw
  • Bouwjaar 1997
  • Soort dak Samengesteld dak
  • Onderhoud binnen Goed
  • Onderhoud buiten Goed
  • Gebruiksoppervlakte wonen ca. 144 m2
  • Oppervlakte gebouwgebonden ca. 27 m2
  • Externe bergruimte ca. 13 m2
  • Inhoud ca. 468 m3
  • Perceeloppervlakte ca. 585 m2
  • Aantal kamers 4 kamers
  • Aantal slaapkamers 3
  • Aantal badkamers 1 badkamer
  • Badkamervoorzieningen Toilet, douche, wastafel
  • Aantal woonlagen 3 woonlagen
  • Voorzieningen Mechanische ventilatie, tv kabel, buitenzonwering, rookkanaal, dakraam, natuurlijke ventilatie
  • Energielabel B
  • Isolatie Dakisolatie, muurisolatie, vloerisolatie, hr glas
  • Verwarming Cv ketel, vloerverwarming gedeeltelijk, houtkachel
  • Warm water Cv ketel
  • C.v.-ketel type Gas
  • C.v.-ketel bouwjaar 2021
  • Eigendom Eigendom
  • Ligging Aan rustige weg, in woonwijk
  • Hoofdtuin Achtertuin
  • Oppervlakte hoofdtuin ca. 293 m2
  • Ligging hoofdtuin Zuidoost
  • Achterom Ja
  • Kwaliteit tuin Fraai aangelegd
  • Schuur / berging Vrijstaand hout
  • Aantal schuren / bergingen 1
  • Voorzieningen Voorzien van elektra, met vliering
  • Parkeerfaciliteiten Openbaar parkeren, op eigen terrein, op afgesloten terrein
  • Garage Carport
Meer kenmerken Minder kenmerken

Plattegronden

Statistieken

Cijfers voor de wijk

Burgerlijke staat

  • Gehuwd
  • Ongehuwd
  • Gescheiden
  • Verweduwd

Leeftijd in gemeente

Leeftijd buurtbewoners

  • 0-15 14%
  • 15-15 11%
  • 25-45 21%
  • 45-65 35%
  • 65+ 20%

Benieuwd naar de waarde van je woning?

Maak dan een afspraak voor een gratis waardebepaling zonder verplichtingen.

Even binnenkijken?

Neem vrijblijvend contact met ons op.