Terug naar overzicht
Kerkrade

St.Pieterstraat 86

€ 139.500, - k.k.

In de wijk “Chevremont” mogen wij u deze volledige gemoderniseerd en instapklaar appartement met 2 slaapkamers aanbieden.
Het appartement is gelegen op de begane grond en beschikt over een diepe tuin.

Indeling:
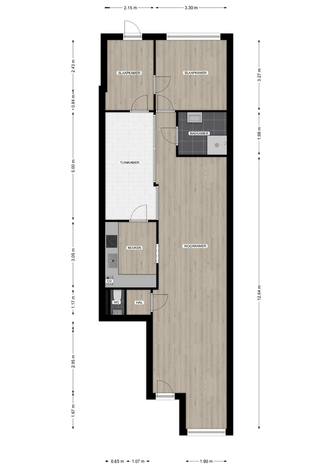
Middels de entree komt u in de woonkamer.
De woonkamer is groot ca. 12,50 x 3,20 m. en is voorzien van een laminaatvloer en strak gestucte muren.

Het separate toilet is gelegen tussen de keuken en de woonkamer.

De keuken is groot ca. 2,40 x 3,05 m. en is voorzien van een hoekopgestelde keukeninrichting met de navolgende apparatuur:
elektrische kookplaat, oven en koelkast. Tevens is hier de CV-ketel gesitueerd.

De betegelde badkamer is groot ca. 2,00 x 2,00 m. en is voorzien van een douche en een vaste wastafel. Op de badkamer is eveneens de aansluiting voor de wasmachine gerealiseerd.

De slaapkamers zijn respectievelijk groot ca. 3,30 x 3,30 m. en 3,30 x 2,15 m. en zijn beide voorzien van een laminaatvloer.

Vanuit de keuken kunt u de verwarmde serre bereiken.
Deze serre is groot ca. 5,00 x 2,30 m. en is voor vele doeleinde geschikt.

De tuin met terras is gelegen op het noord-oosten.

Bijzonderheden:
– De plafonds van het appartement zijn geïsoleerd.
– De woning is voorzien van kunststof kozijnen en dubbele beglazing.
– De Intergas combiketel met bouwjaar 2025 is eigendom.
– De bijdrage aan de VVE bedraagt € 45,= per maand.

In de wijk “Chevremont” mogen wij u deze volledige gemoderniseerd en instapklaar appartement met 2 slaapkamers aanbieden. Het appartement is gelegen op de begane grond en beschikt over een diepe tuin. Indeling: Middels de entree komt u in de woonkamer. De woonkamer is groot ca. 12,50 x…

Kenmerken

  • Status Beschikbaar
  • Vraagprijs € 139.500,- k.k.
  • Aanvaarding In overleg
  • Soort bouw Bestaande bouw
  • Bouwjaar 1940
  • Onderhoud binnen Uitstekend
  • Onderhoud buiten Goed
  • Gebruiksoppervlakte wonen ca. 88 m2
  • Inhoud ca. 297 m3
  • Aantal kamers 4 kamers
  • Aantal slaapkamers 2
  • Aantal badkamers 1 badkamer
  • Badkamervoorzieningen Douche, wastafel
  • Aantal woonlagen 1 woonlagen
  • Energielabel C
  • Isolatie Dakisolatie, dubbel glas
  • Verwarming Cv ketel
  • Warm water Cv ketel
  • C.v.-ketel bouwjaar 2025
  • Eigendom Eigendom
  • Ligging In centrum
  • Hoofdtuin Achtertuin
  • Oppervlakte hoofdtuin ca. 183 m2
  • Ligging hoofdtuin Noordoost
  • Kwaliteit tuin Normaal
  • Parkeerfaciliteiten Openbaar parkeren
  • Garage Geen garage
Meer kenmerken Minder kenmerken

Plattegronden

Statistieken

Cijfers voor de wijk

Burgerlijke staat

  • Gehuwd 1290
  • Ongehuwd 1285
  • Gescheiden 335
  • Verweduwd 255

Leeftijd in gemeente

  • 0-15 13%
  • 15-15 9%
  • 25-45 22%
  • 45-65 33%
  • 65+ 24%

Leeftijd buurtbewoners

  • 0-15 12%
  • 15-15 9%
  • 25-45 23%
  • 45-65 33%
  • 65+ 23%

Benieuwd naar de waarde van je woning?

Maak dan een afspraak voor een gratis waardebepaling zonder verplichtingen.

Even binnenkijken?

Neem vrijblijvend contact met ons op.