St.Pieterstraat 166
In de wijk Chèvremont aan de doorgaande weg ligt deze zeer ruime tussengelegen jaren ’30 woning met diepe tuin en twee garages welke via achterom te bereiken zijn. De ligging is gunstig ten opzichte van uitvalswegen en op loopafstand van een treinstation. Ook de basisschool is om de hoek gelegen en supermarkten bevinden zich op 5 minuten rij afstand.
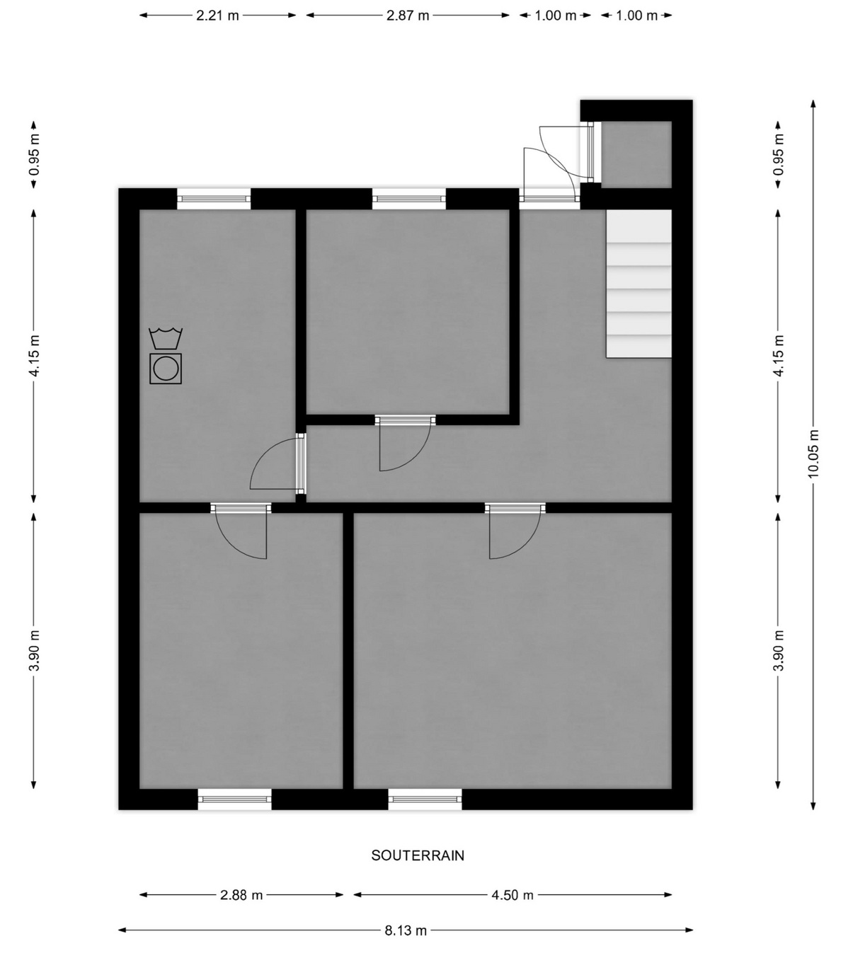
Indeling:
Souterrain: geheel onderkelderd en verdeeld in diverse ruimtes waaronder een provisiekelder, opslag, werkplaats, waskelder en voorzien van een keukenblok. Vanuit de kelder is de tuin toegankelijk. Deze is diep en voorzien van terras, grasveld, een berging en de een achterom-ingang. Ook is hier de ruime garage met twee kantelpoorten – elektrisch bedienbaar- gelegen die plaats biedt aan twee auto’s. Deze is te bereiken vanuit de achterom gelegen straat.
Begane grond: entree, hal met vloerbedekking die de originele tegelvloer bedekt. Garderobe, meterkast, trappenhuis met bordestrap en het toilet. De woonkamer heeft een parketvloer en een plafond van systeemplaten en is in open verbinding met de woonkeuken voorzien van een keurige keuken-installatie in hoekopstelling voorzien van koelkast, kookplaat, oven en vaatwasser.
Eerste verdieping: halverwege de bordestrap bevindt zich een tweede toilet. Middels de overloop zijn de drie slaapkamers bereikbaar, allen met laminaatvloer, waarbij één slaapkamer toegankelijk is via de andere slaapkamer. De ruime badkamer is geheel betegeld en voorzien van een ligbad, separate douche-cabine en een badmeubel.
Tweede verdieping: vaste trap naar de de zolderverdieping waar een mansardeslaapkamer is gelegen en een riante bergzolder met legio mogelijkheden.
Bijzonderheden:
* voorzien van kunststof kozijnen;
* overal dubbele beglazing;
* tevens rolluiken aanwezig;
* C.V. combi HR installatie in eigendom;
* aanvaarding op korte termijn mogelijk.
In de wijk Chèvremont aan de doorgaande weg ligt deze zeer ruime tussengelegen jaren ’30 woning met diepe tuin en twee garages welke via achterom te bereiken zijn. De ligging is gunstig ten opzichte van uitvalswegen en op loopafstand van een treinstation. Ook de basisschool is om de hoek gelegen…

Kenmerken
- Status Beschikbaar
- Vraagprijs € 298.000,- k.k.
- Aanvaarding In overleg
- Soort woonhuis Tussenwoning
- Soort bouw Bestaande bouw
- Bouwjaar 1930
- Soort dak Zadeldak
- Onderhoud binnen Goed
- Onderhoud buiten Goed
- Gebruiksoppervlakte wonen ca. 154 m2
- Externe bergruimte ca. 32 m2
- Overige inpandige ruimte ca. 101 m2
- Inhoud ca. 810 m3
- Perceeloppervlakte ca. 332 m2
- Aantal kamers 5 kamers
- Aantal slaapkamers 4
- Aantal badkamers 1 badkamer
- Badkamervoorzieningen Ligbad, douche, wastafelmeubel
- Aantal woonlagen 4 woonlagen
- Voorzieningen Rolluiken
- Energielabel G
- Isolatie Dubbel glas
- Verwarming Cv ketel
- Warm water Cv ketel
- C.v.-ketel type Gas
- Eigendom Eigendom
- Schuur / berging Aangebouwd steen
- Aantal schuren / bergingen 1
- Parkeerfaciliteiten Openbaar parkeren, op eigen terrein
- Garage Vrijstaand steen
Plattegronden




Cijfers voor de wijk
Burgerlijke staat
- Gehuwd
- Ongehuwd
- Gescheiden
- Verweduwd
Leeftijd in gemeente
Leeftijd buurtbewoners
- 0-15 12%
- 15-15 10%
- 25-45 20%
- 45-65 32%
- 65+ 27%
Benieuwd naar de waarde van je woning?
Maak dan een afspraak voor een gratis waardebepaling zonder verplichtingen.
Downloads
Even binnenkijken?
Neem vrijblijvend contact met ons op.
