Terug naar overzicht
Maastricht

Sint Servatiusweg 63

€ 350.000, - k.k.

Aan de Sint Servatiusweg 63 in de geliefde wijk Heer bevindt zich deze verrassend ruime en instapklare bovenwoning met karakter. De woning combineert authentieke details met een moderne en eigentijdse afwerking, waardoor een sfeervolle en comfortabele leefomgeving is ontstaan. Met onder meer een royale living, luxe keuken, twee slaapkamers en een zonnig dakterras met vrij uitzicht biedt dit object alles wat u zoekt. De centrale ligging nabij het centrum van Heer, winkelvoorzieningen en uitvalswegen maakt het geheel compleet.

INDELING

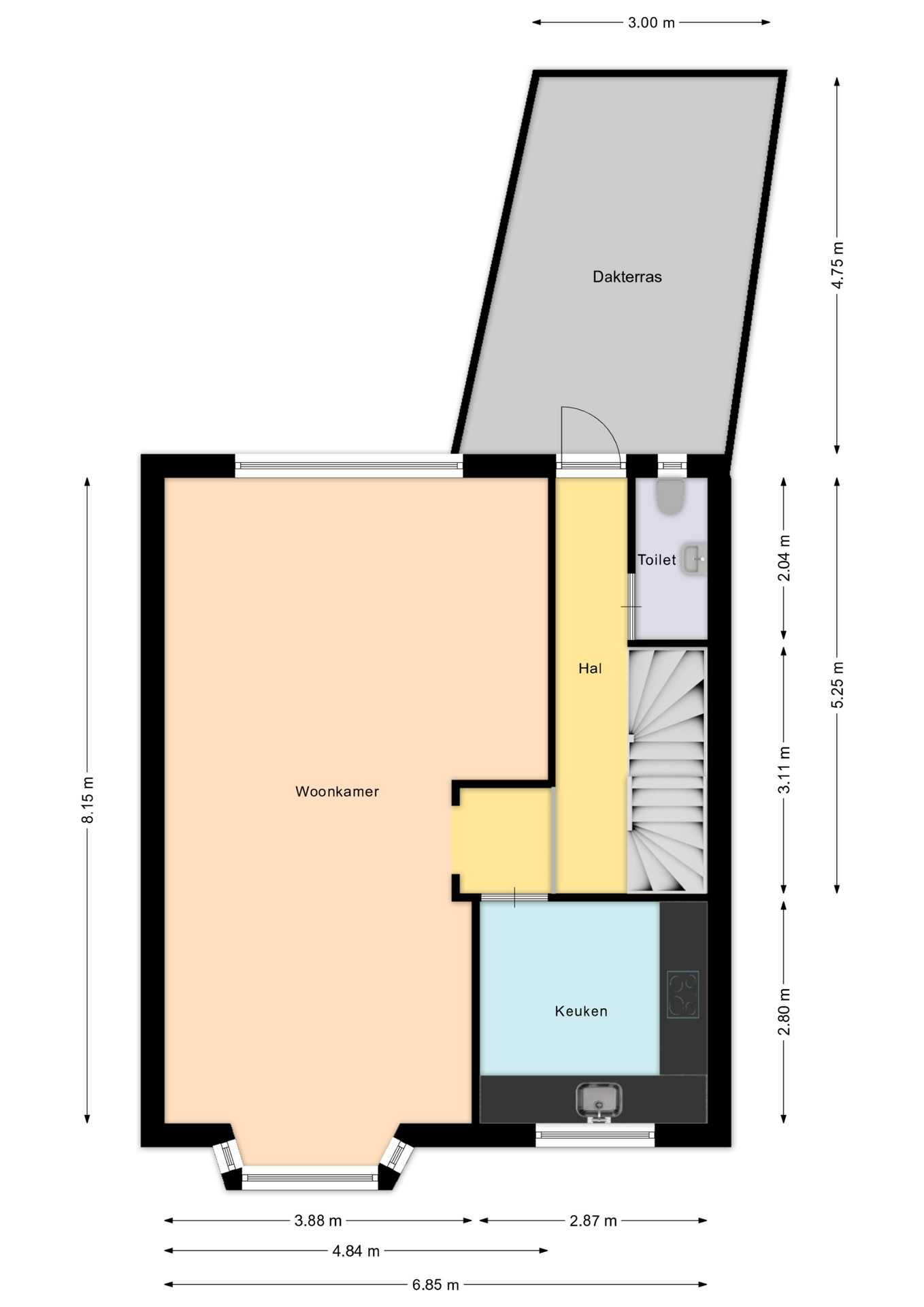
Begane grond (hal):
Entree/ontvangsthal met een karakteristieke terrazzo vloer, meterkast en een authentieke houten trapopgang naar de eerste verdieping.

Eerste verdieping:
Ruime overloop met toegang tot de woonkamer, keuken, toiletruimte en het dakterras.

De sfeervolle woonkamer (ca. 35 m²) kenmerkt zich door de fraaie afwerking met strak gestuukte wanden en een extra hoog plafond. Aan de voorzijde bevindt zich een karakteristieke erker en in het plafond zijn de authentieke houten balken zichtbaar gebleven. De gashaard zorgt voor extra warmte en sfeer. De gesloten keuken (ca. 8 m²) is eveneens aan de voorzijde gesitueerd en is uitgerust met een luxe keukenopstelling voorzien van onderkasten, diverse lades en de volgende inbouwapparatuur: spoelbak, koelkast, combi-oven, 5-pits gaskookplaat, RVS afzuigkap en vaatwasser. De toiletruimte is modern uitgevoerd en voorzien van een wandcloset en fonteintje.

Aan de achterzijde van de woning bevindt zich het intieme dakterras (ca. 15 m²), waar u in alle rust kunt genieten van de groene en rustige omgeving.

Tweede verdieping:
De tweede verdieping is bereikbaar via de karakteristieke houten trap. De overloop geeft toegang tot twee slaapkamers, de badkamer, een aparte cv-/wasruimte en een praktische berging. De twee slaapkamers (circa 12 m² en 11 m²) bevinden zich aan de voorzijde van de woning en zijn beide uitgerust met rolluiken. Aan de achterzijde ligt de volledig betegelde badkamer, voorzien van een ligbad met douchefunctie, een wastafel, een handdoekradiator en handige opbergruimte onder het schuine dak.
De cv-/wasruimte beschikt over de aansluitingen voor de wasmachine en de cv-installatie (Remeha Avanta HR+ Combi, huur, bouwjaar 2020). Aansluitend is er nog een separate bergruimte aanwezig, ideaal voor extra opslag.

Bergzolder:
Via een vlizotrap is de bergzolder te bereiken.

Bijzonderheden:
– Dit pand heeft uitstraling en karakter en is gelegen op een mooie locatie in Heer, met vrij uitzicht aan de achterzijde.
– Sfeervol dakterras aan de achterzijde met veel privacy.
– Geheel voorzien van kunststof kozijnen met isolerende HR++ beglazing.
– Cv-ketel (merk: Remeha Avanta HR+ Combi, huur & bouwjaar 2020) Kosten: € 32,25 per maand.
– Openbaar parkeren, direct voor de deur of in de omliggende straten.
– VVE bijdrage per maand: ca. € 82,-
– Voorzien van hoge plafonds met ornamenten en authentieke houten balken.
– Geheel voorzien van glad gestuukte wanden en plafonds.
– Nabij winkels, voorzieningen en uitvalswegen
– Alle vermelde afmetingen zijn indicatief en kunnen afwijken van de werkelijkheid.

Omgeving:
Deze prachtige bovenwoning is zeer centraal gelegen in de Maastrichtse woonwijk Heer. Diverse voorzieningen als winkels, scholen, openbaar vervoer zijn op korte loopafstand gelegen. Het stadscentrum van Maastricht is gemakkelijk binnen enkele autominuten rijden te bereiken. Uitvalswegen naar autosnelwegen richting Eindhoven, Heerlen of Luik zijn vanaf de woning direct te bereiken.

Aan de Sint Servatiusweg 63 in de geliefde wijk Heer bevindt zich deze verrassend ruime en instapklare bovenwoning met karakter. De woning combineert authentieke details met een moderne en eigentijdse afwerking, waardoor een sfeervolle en comfortabele leefomgeving is ontstaan. Met onder meer een royale living, luxe keuken, twee slaapkamers en…

Kenmerken

  • Status Beschikbaar
  • Vraagprijs € 350.000,- k.k.
  • Aanvaarding In overleg
  • Soort bouw Bestaande bouw
  • Bouwjaar 1935
  • Soort dak Zadeldak
  • Onderhoud binnen Goed
  • Onderhoud buiten Goed
  • Gebruiksoppervlakte wonen ca. 100 m2
  • Oppervlakte gebouwgebonden ca. 15 m2
  • Overige inpandige ruimte ca. 15 m2
  • Inhoud ca. 375 m3
  • Aantal kamers 4 kamers
  • Aantal slaapkamers 2
  • Aantal badkamers 1 badkamer
  • Badkamervoorzieningen Ligbad, wastafel
  • Aantal woonlagen 3 woonlagen
  • Voorzieningen Rolluiken, dakraam
  • Energielabel B
  • Isolatie Dakisolatie, dubbel glas
  • Verwarming Cv ketel
  • Warm water Cv ketel
  • C.v.-ketel type Gas
  • C.v.-ketel bouwjaar 2020
  • Eigendom Huur
  • Ligging Aan rustige weg, in woonwijk
  • Parkeerfaciliteiten Openbaar parkeren
  • Garage Geen garage
Meer kenmerken Minder kenmerken

Plattegronden

Statistieken

Cijfers voor de wijk

Burgerlijke staat

  • Gehuwd
  • Ongehuwd
  • Gescheiden
  • Verweduwd

Leeftijd in gemeente

Leeftijd buurtbewoners

  • 0-15 11%
  • 15-15 15%
  • 25-45 22%
  • 45-65 31%
  • 65+ 20%

Benieuwd naar de waarde van je woning?

Maak dan een afspraak voor een gratis waardebepaling zonder verplichtingen.

Even binnenkijken?

Neem vrijblijvend contact met ons op.