Terug naar overzicht
Ulestraten

Sint Catharinastraat 39

€ 348.000, - k.k.

Op een mooie plek aan de doorgaande weg van Ulestraten naar Meerssen mogen wij u deze karakteristieke woning te koop aanbieden. Dit sfeervolle pand kent een rijke historie en is gedurende de laatste 5 jaar volledig gemoderniseerd. Verder is de woning eenvoudig te transformeren tot een levensloopbestendige woning.

INDELING

Souterrain:
De woning beschikt over een provisiekelder (ca. 24 m²) met voldoende stahoogte en een goede toegankelijkheid.

Begane grond:
Op de begane grond is een riante en sfeervolle leefruimte (ca. 53m²) met open keuken en houtkachel gecreëerd, waarbij gewerkt is met veel lichtinval. Dit geeft het pand een warme en comfortabele uitstraling. De leefruimte is voorzien van een karakteristieke tegelvloer. De moderne keuken is voorzien van een kookeiland en van een inductie kookplaat, wasemkap, vaatwasser, spoelbak met Quooker, oven, magnetron en koelkast. In de leefruimte is een uitsparing (ca. 3m²) te vinden, die kan dienen als thuiswerkplek, speelhoek of opslagruimte. Op de begane grond bevindt zich daarnaast een slaap/kleedkamer (ca. 13m²), een toilet (ca. 2m²) en een bijkeuken (ca. 11m²) met verhoogd platform voor witgoed. De bijkeuken geeft toegang tot de tuin en de kelder. Door de bergingen in de kelder en de garage met vliering is er veel opslagruimte. De begane grond is voorzien van vloerverwarming.

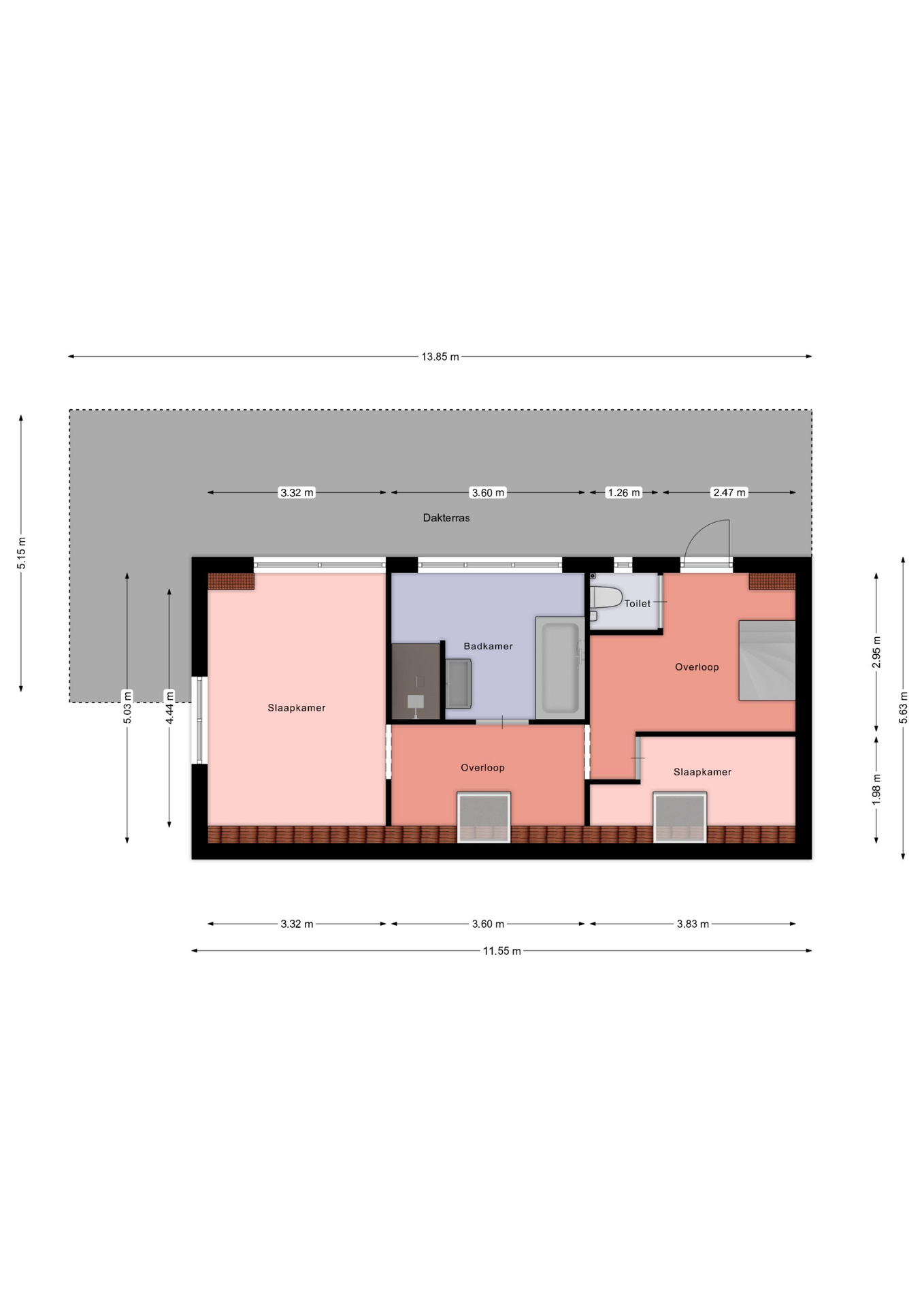
Eerste verdieping:
Op de eerste verdieping springen de authentieke balkenplafonds in het oog. Op deze verdieping zijn een grote (ca. 17m²) en een kleine slaapkamer (ca. 7m²) gerealiseerd. Ook is hier een royale, moderne badkamer (ca. 10m²) met gecombineerde regen- en handdouche, ligbad, mechanische afzuiging en vloerverwarming. Het toilet (ca. 1m²) op de eerste verdieping is separaat gerealiseerd van de badkamer en eveneens voorzien van mechanische afzuiging. Tevens is via de eerste verdieping het dakterras (44m²) te bereiken, welke is gelegen op het zuiden.

Tuin:
De begane grond geeft toegang tot de onderhoudsvriendelijke tuin (ca. 36m²). Door een ingebouwde poort in de glazen balustrade op het dakterras bestaat de mogelijkheid om de tuin en het dakterras rechtstreeks met elkaar te verbinden door een trap.

Nadere bijzonderheden:
– Bouwjaar 1870;
– Energielabel E;
– Vrijstaande woning met garage (incl. vliering), oprit en kelder;
– Geheel voorzien van kunststof kozijnen met HR++ beglazing;
– Gemoderniseerde meterkast;
– Vloerverwarming aanwezig op de begane grond en in de badkamer;
– Cv-ketel in eigendom (Remeha, 2013);
– Glasvezelaansluiting;
– Zuidelijke raampartijen op de 1e verdieping voorzien van elektrisch bedienbare zonwering, Velux-ramen op noordzijde voorzien van buitenzonwering;
– Het is mogelijk om een badkamer op de begane grond te realiseren, door reeds aanwezige aansluitingen op water en riool in de bijkeuken;
– Naast de eigen oprit en garage is er voldoende gratis parkeergelegenheid in de straat;
– Alle vermelde afmetingen zijn indicatief en kunnen afwijken van de werkelijkheid.

Omgeving:
De woning is gelegen in het kerkdorp Ulestraten. Diverse voorzieningen als basisschool, supermarkt, tankstation, winkels, uitgaansgelegenheden, pinautomaat, groente-, aardappelen- en fruittelers zijn in de directe nabijheid gelegen. Ook een aantrekkelijk natuur- en wandelgebied is op korte loopafstand gelegen en het Zuid-Limburgse Heuvelland is gemakkelijk en snel te bereiken. Daarnaast is Ulestraten zeer centraal gelegen ten opzichte van de autosnelwegen naar Eindhoven, Heerlen, Luik en Aken en op ca. 9 km van de stad Maastricht.

Op een mooie plek aan de doorgaande weg van Ulestraten naar Meerssen mogen wij u deze karakteristieke woning te koop aanbieden. Dit sfeervolle pand kent een rijke historie en is gedurende de laatste 5 jaar volledig gemoderniseerd. Verder is de woning eenvoudig te transformeren tot een levensloopbestendige woning. INDELING…

Kenmerken

  • Status Beschikbaar
  • Vraagprijs € 348.000,- k.k.
  • Aanvaarding In overleg
  • Soort woonhuis Vrijstaande woning
  • Soort bouw Bestaande bouw
  • Bouwjaar 1870
  • Soort dak Zadeldak
  • Onderhoud binnen Goed
  • Onderhoud buiten Goed
  • Gebruiksoppervlakte wonen ca. 152 m2
  • Oppervlakte gebouwgebonden ca. 44 m2
  • Overige inpandige ruimte ca. 47 m2
  • Inhoud ca. 690 m3
  • Perceeloppervlakte ca. 203 m2
  • Aantal kamers 4 kamers
  • Aantal slaapkamers 3
  • Aantal badkamers 1 badkamer
  • Badkamervoorzieningen Ligbad, douche, wastafelmeubel, inloopdouche
  • Aantal woonlagen 3 woonlagen
  • Voorzieningen Mechanische ventilatie, buitenzonwering, rookkanaal, dakraam, glasvezel kabel, natuurlijke ventilatie
  • Energielabel E
  • Isolatie Dakisolatie
  • Verwarming Cv ketel, vloerverwarming gedeeltelijk, houtkachel
  • Warm water Cv ketel
  • C.v.-ketel type Gas
  • C.v.-ketel bouwjaar 2013
  • Eigendom Eigendom
  • Ligging Aan drukke weg
  • Hoofdtuin Achtertuin
  • Oppervlakte hoofdtuin ca. 80 m2
  • Ligging hoofdtuin Zuid
  • Kwaliteit tuin Verzorgd
  • Parkeerfaciliteiten Openbaar parkeren, op eigen terrein
  • Garage Aangebouwd steen
Meer kenmerken Minder kenmerken

Plattegronden

Statistieken

Cijfers voor de wijk

Burgerlijke staat

  • Gehuwd 1350
  • Ongehuwd 920
  • Gescheiden 185
  • Verweduwd 145

Leeftijd in gemeente

  • 0-15 13%
  • 15-15 10%
  • 25-45 19%
  • 45-65 32%
  • 65+ 25%

Leeftijd buurtbewoners

  • 0-15 15%
  • 15-15 8%
  • 25-45 21%
  • 45-65 29%
  • 65+ 27%

Benieuwd naar de waarde van je woning?

Maak dan een afspraak voor een gratis waardebepaling zonder verplichtingen.

Even binnenkijken?

Neem vrijblijvend contact met ons op.