Terug naar overzicht
Stevensweert

Singelstraat Oost 9

€ 349.000, - k.k.

In de historische dorpskern van Stevensweert (Staeveswaert) met een beschermd dorpsgezicht is de Singelstraat Oost 9 gelegen. Dit karakteristieke woonhuis heeft een garage, een achtertuin en een zijtuin met berging. Dit zijn oorspronkelijk twee huizen uit 1890 die in 1978 zijn samengevoegd tot een huis. Deze gevels, ramen, luiken, muurankers, deuromlijsting en vensterbanken maken dat dit huis een charmante uitstraling heeft. Dit zijn de huizen en de details die de sfeer van dit dorpje maken en die heel typerend zijn voor dit vestingstadje met zijn Singelstraten, de straten als spaken in een wiel en met de achtergelegen wallen. Deze wal aan de achterzijde van dit huis, zorgt voor veel rust en privacy in de achtertuin én via deze wal is er een achteringang naar de tuin en aar de bijbehorende garage. Naast de garage ligt nog een een zijtuin. De totale perceelsoppervlakte is maar liefst 467 m². We zoeken een toekomstige bewoner die verliefd wordt op het bijzondere plekje en die de ruimte en mogelijkheden van dit huis ziet. Dit huis is niet recht toe, recht aan, maar wel zeer charmant!

Indeling van het woonhuis:

Begane grond:

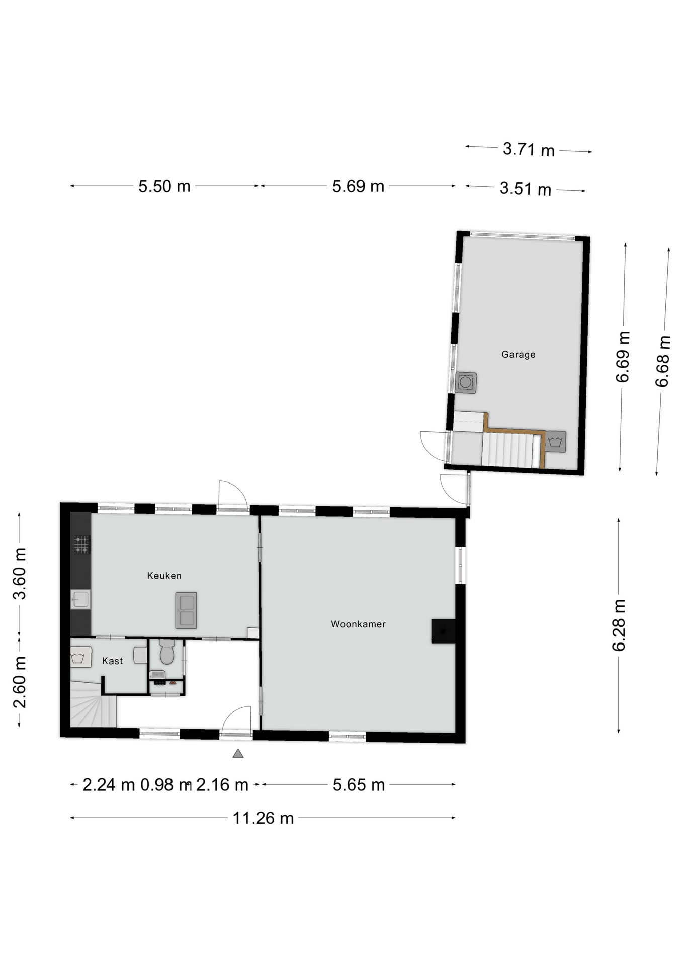
Ontvangsthal met tegelvloer, meterkast en toiletruimte. De lichte woonkamer heeft karakteristieke ramen die zicht bieden op de straat, de achtertuin en de zijtuin. De woonkamer is ruim, dit komt met name door de breedte (6.28 x 5.69) en heeft een lichte tegelvloer, een bijzonder houten plafond en een bijpassende schouw met houtkachel. Er is een ruime woonkeuken met houten plafond en zicht op de achtertuin. De keuken is 5.50 x 3.60 en voorzien van een installatie met kookplaat en afzuigkap. De woonkamer en de keuken hebben samen een oppervlakte van maar liefst 56 m². Vanuit de keuken is er toegang tot een berging waar de aansluiting voor de wasmachine en de combi c.v.-installatie (Nefit 2025) is geplaatst.

Eerste verdieping:
De overloop (met een grote bergkast) geeft toegang tot drie slaapkamers, respectievelijk 3.92 x 3.34, 3.04 x 2.15 en 2.38 x 2.15 (respectievelijk 13, 7 en 5 m²). De badkamer is voorzien van een ligbad, vaste wastafel en een tweede toilet.

Tuin:
De achtertuin is gelegen op het Oosten en is ongeveer 11 meter breed en 8 meter diep. Deze biedt veel privacy omdat er geen achterburen zijn en heeft een achterpoortje naar de achtergelegen Wal. De achtertuin beschikt over een grondwaterput.
Vanuit de tuin is er toegang tot de vrijstaande garage van 6.69 x 3.51, deze is voorzien van een sectionaal poort, wateraansluiting, electra, een smeerput en een kelder van 6.69 x 3.51. Met de auto is deze garage bereikbaar vanaf de wal. Naast de garage ligt de zijtuin, deze is ongeveer 13 meter breed en 15 meter diep. Hier ligt een voormalige varkensstal, nu in gebruik als berging van 5.95 x 3.83. Vanuit de zijtuin is er ook een poortje naar de achtergelegen wal.

Bijzonderheden:
* Gezellige en ruime woonkamer en woonkeuken.
* 3 slaapkamers.
* Gelegen in het beschermd dorpsgezicht van Stevensweert.
* Met garage en berging.
* Er is een robotgrasmaaier voor de zijtuin, deze wordt ter overname aangeboden.

Omgeving:
De Singelstraat Oost is gelegen in het beschermd dorpsgezicht van het historische dorp Stevensweert met circa 1.700 inwoners. Dit is een eeuwenoud vestingstadje waarvan de straten in de historische kern lopen naar het middelpunt, als spaken in een wiel, waardoor een karakteristieke bebouwing is ontstaan. De kern van Stevensweert ademt een heel eigen sfeer uit, geaccentueerd door eeuwenoude monumenten, een bestrating van klinkers en maaskeitjes, de dorpspomp op de markt, de torenruïne van het kasteel, oude lantaarns en een origineel vestingkanon bij de Maaspoort. De oude Vestingswerken zijn deels in ere hersteld om zichtbaar te maken hoe het vroeger was.

Stevensweert is gelegen in een waterrijke omgeving, direct aan de Maas en de Maasplassen. Er zijn veel mooie wandelingen te maken en diverse fietsroutes die door Stevensweert leiden. Met het fiets/voetgangerspontje dat bij het naastgelegen Ohé en Laak ligt, is ook België snel bereikt. En het schitterende natuurgebied rondom de Molenplas is maar een van de vele mogelijkheden om lekker te wandelen.

Stevensweert heeft diverse voorzieningen zoals basisschool, een rijk verenigingsleven en sportvoorzieningen. De horeca is goed vertegenwoordigd: er zijn diverse restaurantjes en mooie terrasjes.
Daarnaast zijn binnen 10 minuten de uitgebreide winkelcentra van Maasbracht en Echt bereikbaar. Gelegen nabij de uitvalswegen en de A2 en A73. Stevensweert is ook per openbaar vervoer (bus) goed bereikbaar.

De watersporter zal in Stevensweert goed worden bediend. De directe ligging aan de Maasplassen, met 3.000 ha. grootste aaneengesloten waterrecreatiegebied van Nederland, biedt een keur aan mogelijkheden en geeft in de zomermaanden een echt vakantiegevoel. Direct aan de rand van het historische centrum van het vestingstadje, op slechts 5 minuten loopafstand, bevinden zich twee professioneel uitgeruste jachthavens met voldoende mogelijkheden om een zeil- of motorboot af te meren.

In de historische dorpskern van Stevensweert (Staeveswaert) met een beschermd dorpsgezicht is de Singelstraat Oost 9 gelegen. Dit karakteristieke woonhuis heeft een garage, een achtertuin en een zijtuin met berging. Dit zijn oorspronkelijk twee huizen uit 1890 die in 1978 zijn samengevoegd tot een huis. Deze gevels, ramen, luiken, muurankers,…

Kenmerken

  • Status Beschikbaar
  • Vraagprijs € 349.000,- k.k.
  • Aanvaarding In overleg
  • Soort woonhuis Halfvrijstaande woning
  • Soort bouw Bestaande bouw
  • Bouwjaar 1890
  • Soort dak Zadeldak
  • Onderhoud binnen Goed
  • Onderhoud buiten Goed
  • Gebruiksoppervlakte wonen ca. 110 m2
  • Externe bergruimte ca. 61 m2
  • Inhoud ca. 407 m3
  • Perceeloppervlakte ca. 467 m2
  • Aantal kamers 4 kamers
  • Aantal slaapkamers 3
  • Aantal badkamers 1 badkamer
  • Badkamervoorzieningen Ligbad, toilet, wastafel
  • Aantal woonlagen 2 woonlagen
  • Voorzieningen Glasvezel kabel, natuurlijke ventilatie
  • Energielabel F
  • Isolatie Dakisolatie
  • Verwarming Cv ketel
  • Warm water Cv ketel
  • C.v.-ketel type Gas
  • C.v.-ketel bouwjaar 2025
  • Eigendom Eigendom
  • Ligging Aan rustige weg, in centrum, in woonwijk
  • Hoofdtuin Achtertuin
  • Oppervlakte hoofdtuin ca. 96 m2
  • Ligging hoofdtuin Oost
  • Achterom Ja
  • Kwaliteit tuin Verzorgd
  • Schuur / berging Vrijstaand steen
  • Aantal schuren / bergingen 1
  • Parkeerfaciliteiten Openbaar parkeren
  • Garage Vrijstaand steen, souterrain
Meer kenmerken Minder kenmerken

Plattegronden

Statistieken

Cijfers voor de wijk

Burgerlijke staat

  • Gehuwd
  • Ongehuwd
  • Gescheiden
  • Verweduwd

Leeftijd in gemeente

Leeftijd buurtbewoners

  • 0-15 14%
  • 15-15 11%
  • 25-45 22%
  • 45-65 36%
  • 65+ 17%

Benieuwd naar de waarde van je woning?

Maak dan een afspraak voor een gratis waardebepaling zonder verplichtingen.

Even binnenkijken?

Neem vrijblijvend contact met ons op.