Schuttersstraat 14
Aan de Schutterstraat in Linne ligt deze fijne hoekwoning. In 2010 is de woning uitgebouwd waardoor de woonkamer is uitgebreid en er een garage en bijkeuken is gerealiseerd. Door de aanwezigheid van 3 slaapkamers, aanbouw, inpandige garage, bijkeuken, kelder en een fijne achtertuin is de woning voor een grote doelgroep toegankelijk. De woning heeft een rustige ligging met een speelweide aan de overkant. Wel zijn alle voorzieningen binnen handbereik en is er een goede bereikbaarheid ten opzichte van de A73. Al deze factoren zorgen ervoor dat deze woning een heerlijke plek is die garant staat voor jarenlang woonplezier!
Indeling
Souterrain
Vanuit de keuken is de praktische kelder (circa 6 m2) toegankelijk. Deze is zeer geschikt voor opslag van voorraad en heeft een stahoogte van circa 1,85 meter. Tevens is het hier mogelijk om de wasmachine te plaatsen door de aanwezigheid van aansluitpunten.
Begane grond
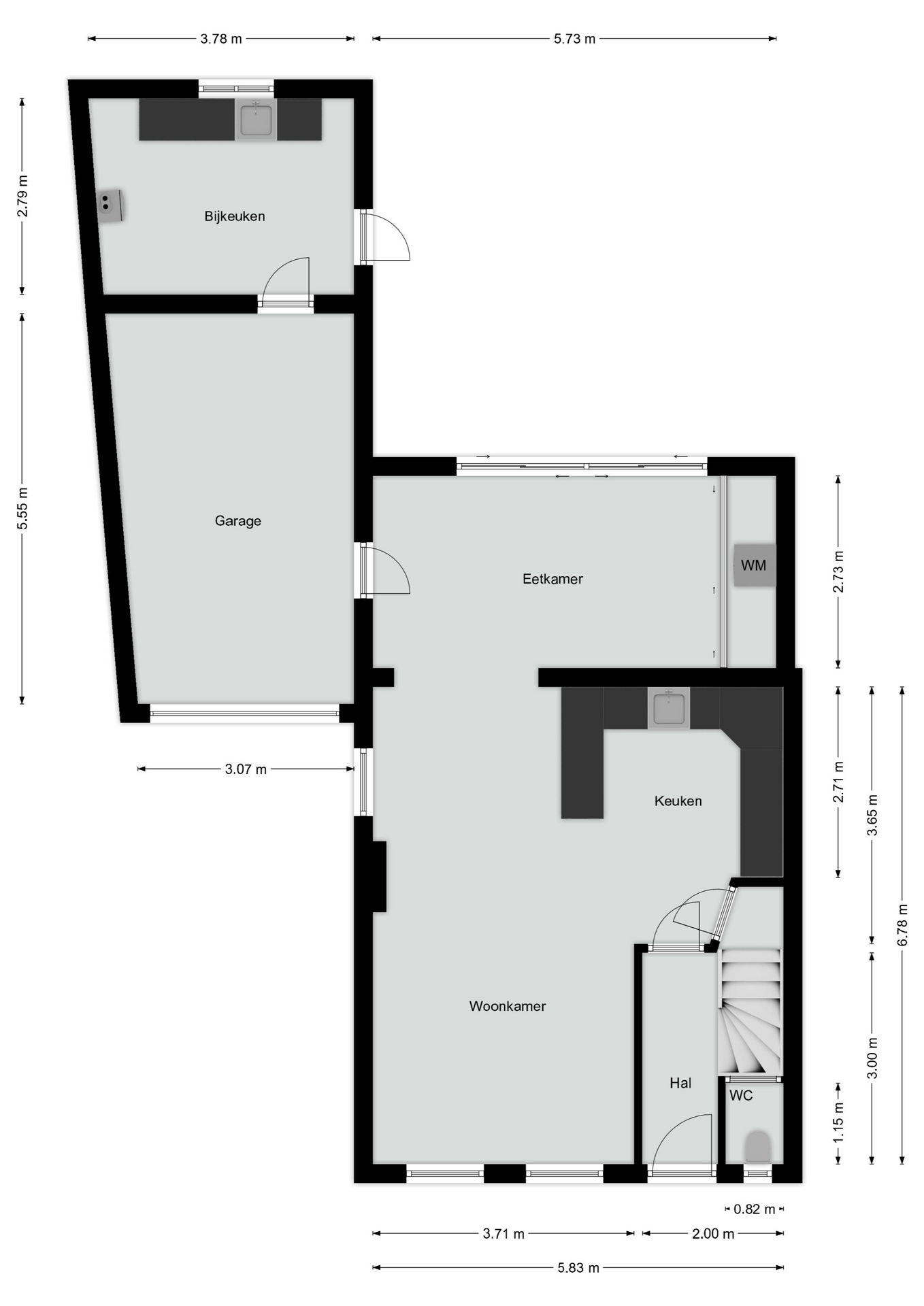
Entree/hal voorzien van een tegelvloer met trapopgang en toegang tot keuken/woonkamer en toilet. Betegelde toiletruimte met zwevend closet. Ruime woonkamer met halfopen keuken voorzien van een tegelvloer en laminaatvloer. De halfopen keuken is voorzien van een U-opstelling met de navolgende installaties: oven, inductiekookplaat, koelkast, vaatwasser, diepvries, spoelbak, afzuiging, een zitbar en diverse opbergkastjes en lades. Vanuit de keuken is er toegang tot de kelder alwaar zich ook de meterkast bevindt.
Door de aanbouw aan de achterzijde van de woning is er veel leefruimte. Door de aanwezigheid van meerdere raampartijen en een grote schuifpui is er naast fijn lichtinval ook tuincontact aan de achterzijde. In de aanbouw is er een schuifkastenwand alwaar de aansluitpunten voor het witgoed aanwezig zijn. De aanbouw is voorzien van een tegelvloer met vloerverwarming. De totale woonoppervlakte van de woonkamer, keuken en aanbouw bedraagt circa 49 m2. Daarnaast is de garage inpandig bereikbaar (circa 18 m2). Deze is voorzien van een elektrische sectionaalpoort. Vanuit de garage is de bijkeuken toegankelijk (circa 10 m2). Deze is voorzien van een keukenopstelling met spoelbak, close in-boiler en opstelling van cv-ketel (eigendom, Nefit Ecomline HR). Dit een aparte cv-ketel voor de garage en de bijkeuken.
Eerste verdieping
Op de eerste verdieping bevinden zich drie slaapkamers, allen voorzien van laminaatvloeren. De slaapkamer zijn respectievelijk circa 14 m2, 9 m2 en 5 m2. De badkamer is volledig betegeld en voorzien van een ligbad, douche, vaste wastafel en zwevend closet.
Zolder
Via een vlizotrap is de zolderverdieping bereikbaar – een praktische bergzolder voor het opbergen van spullen. Tevens opstelling cv-ketel (huur, Remeha, 2021).
Tuin
De achtertuin is noordoostelijk georiënteerd en in 2020 opgeknapt en voorzien van tegels, borders met planten, gazon, terrassen en een tuinhuisje met overkapping. Hier kan je heerlijk genieten van de (na)middag en avondzon. Het tuinhuisje is praktisch voor de opslag van tuingereedschap. Aan de zijkant is er een poortje om achterom te komen.
Aan de voorkant is er een kleine strook voortuin, onderhoudsvriendelijk aangelegd en een oprit aanwezig.
Bijzonderheden
– Fijne (gezins)woning met aanbouw;
– Woning die een fijne basis biedt voor jarenlang woonplezier!
– Circa 2010 is de woonkamer aangebouwd en is de garage en bijkeuken gerealiseerd;
– Voorzien van kunststof kozijnen met dubbele beglazing en grotendeels HR++ beglazing;
– Het dak is nageïsoleerd;
– Praktische opbergruimtes door de aanwezigheid van de kelder, bergzolder, garage, bijkeuken en tuinhuisje;
– Leuke ligging tegenover speelweide voor kinderen;
– Voldoende parkeermogelijkheden in de directe nabijheid;
– Koper dient rekening te houden met moderniseringskosten;
– Alle dagelijkse voorzieningen binnen handbereik;
– Goede bereikbaarheid door de ligging nabij de A73.
Omgeving
Linne is een gezellig en gemoedelijk kerkdorp in de gemeente Maasgouw, gelegen op korte afstand van Roermond. In de directe omgeving vind je diverse voorzieningen zoals een basisschool, supermarkt, sportverenigingen en horeca. De ligging nabij de A73 zorgt voor een uitstekende bereikbaarheid richting Maastricht, Venlo en Eindhoven. Ook natuurliefhebbers komen hier volop aan hun trekken: in de nabije omgeving zijn mooie wandel- en fietsroutes langs de Maas en door het Midden-Limburgse landschap.
Aan de Schutterstraat in Linne ligt deze fijne hoekwoning. In 2010 is de woning uitgebouwd waardoor de woonkamer is uitgebreid en er een garage en bijkeuken is gerealiseerd. Door de aanwezigheid van 3 slaapkamers, aanbouw, inpandige garage, bijkeuken, kelder en een fijne achtertuin is de woning voor een grote doelgroep…

Kenmerken
- Status Beschikbaar
- Vraagprijs € 300.000,- k.k.
- Aanvaarding In overleg
- Soort woonhuis Hoekwoning
- Soort bouw Bestaande bouw
- Bouwjaar 1951
- Soort dak Zadeldak
- Onderhoud binnen Goed
- Onderhoud buiten Goed
- Gebruiksoppervlakte wonen ca. 106 m2
- Externe bergruimte ca. 6 m2
- Overige inpandige ruimte ca. 24 m2
- Inhoud ca. 485 m3
- Perceeloppervlakte ca. 250 m2
- Aantal kamers 4 kamers
- Aantal slaapkamers 3
- Aantal badkamers 1 badkamer
- Badkamervoorzieningen Ligbad, toilet, douche, wastafel
- Aantal woonlagen 4 woonlagen
- Voorzieningen Tv kabel, airconditioning, schuifpui
- Energielabel D
- Isolatie Dakisolatie, dubbel glas, hr glas
- Verwarming Cv ketel
- Warm water Cv ketel
- C.v.-ketel type Gas
- C.v.-ketel bouwjaar 2021
- Eigendom Huur
- Ligging Aan rustige weg, in woonwijk
- Hoofdtuin Achtertuin
- Oppervlakte hoofdtuin ca. 135 m2
- Ligging hoofdtuin Noordoost
- Achterom Ja
- Kwaliteit tuin Normaal
- Aantal schuren / bergingen 1
- Parkeerfaciliteiten Openbaar parkeren, op eigen terrein
- Garage Inpandig
Plattegronden






Cijfers voor de wijk
Burgerlijke staat
- Gehuwd
- Ongehuwd
- Gescheiden
- Verweduwd
Leeftijd in gemeente
Leeftijd buurtbewoners
- 0-15 13%
- 15-15 10%
- 25-45 20%
- 45-65 35%
- 65+ 21%
Benieuwd naar de waarde van je woning?
Maak dan een afspraak voor een gratis waardebepaling zonder verplichtingen.
Downloads
Even binnenkijken?
Neem vrijblijvend contact met ons op.
