Terug naar overzicht
Roermond

Schout Offermanstraat 33

€ 349.000, - k.k.

Goed onderhouden twee-onder-een-kapwoning gelegen in de geliefde wijk Maasniel in Roermond. De woning is geheel onderkelderd met inpandige garage, voorzien van drie slaapkamers en een ruime zolder. De woning is zeer centraal gelegen nabij verschillende voorzieningen, waaronder een basisschool, supermarkt, sportgelegenheden en uitvalswegen.

Indeling

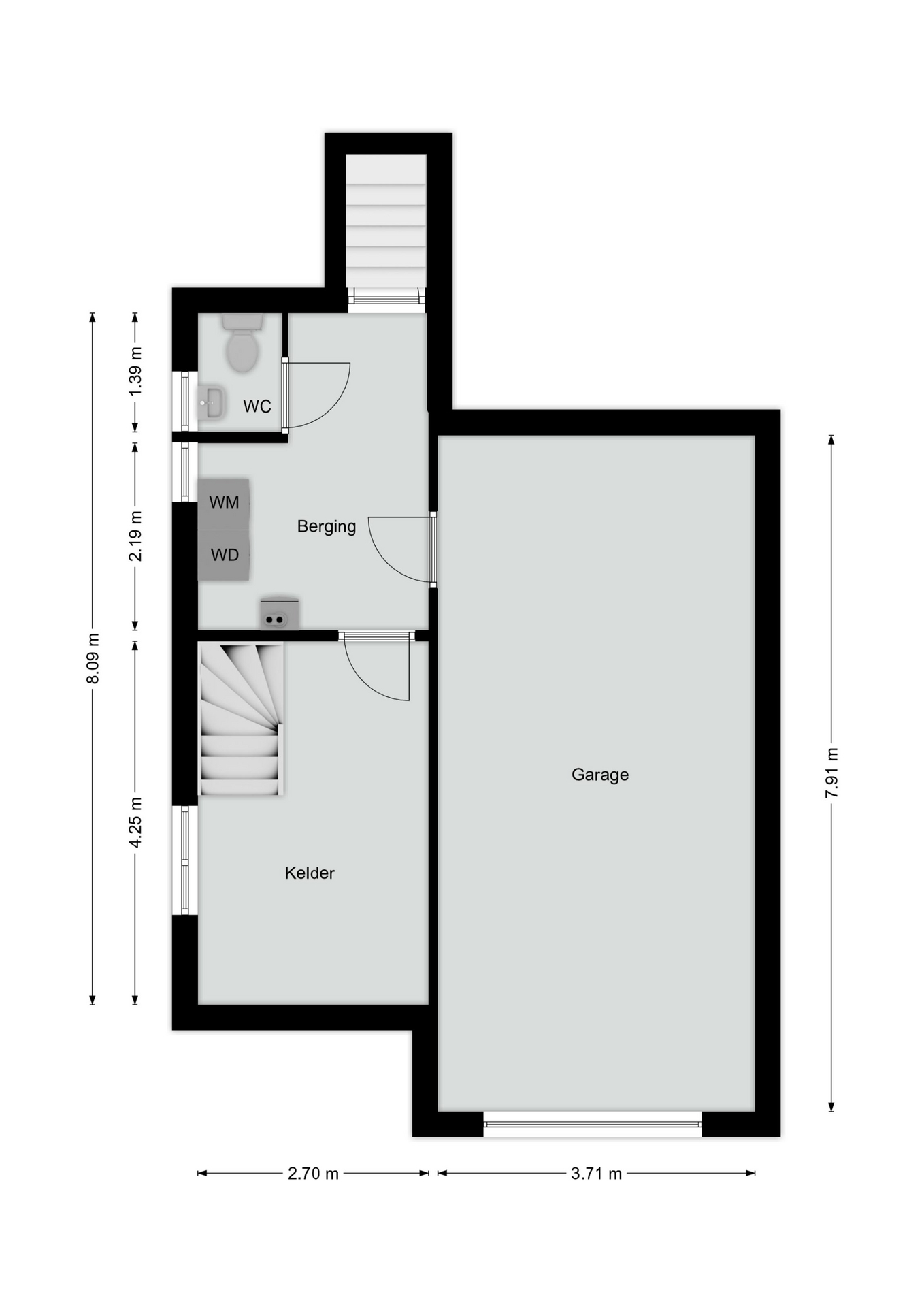
Souterrain
Vanuit de hal is het souterrain bereikbaar. De woning is geheel onderkelderd en voorzien van fijne kelderruimtes (circa 12 m2 en 8 m2), beiden voorzien van een tegelvloer en een inpandig bereikbare garage. Een van de ruimtes is voorzien van aansluitpunten voor het witgoed en opstelling cv-ketel (2001, eigendom, Nefit Excellent). Vanuit hier is ook een aparte toegang tot de achtertuin. Daarnaast is er een separaat toiletruimte, deels betegeld, voorzien van toilet en fonteintje. De inpandige garage is ruim opgezet, circa 29 m2 en voorzien van een elektrische sectionaal poort, elektra en wateraansluiting. Door de aparte ingang vanuit de tuin, een eigen toilet in het souterrain, is er ook een mogelijk om een beroep of praktijk aan huis uit te oefenen.

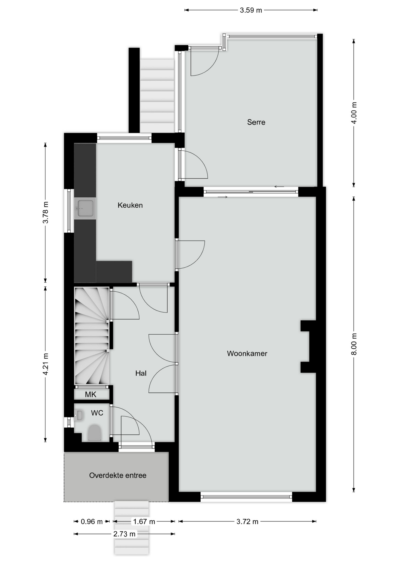
Begane grond
Entree/hal voorzien van tegelvloer met meterkast, trapopgang en toegang tot de woonkamer, keuken, kelder en toilet. Betegelde toiletruimte voorzien van zwevend closet en fonteintje. Fijne woonkamer (circa 30 m2) voorzien van een parketvloer met vloerverwarming, airco-installatie, schouw en toegang tot de serre en de keuken. Door de grote raampartijen is er prettig lichtinval. Aan de achterzijde is er middels schuifpui toegang tot de serre/tuinkamer. Deze is circa 14 m2 en geeft mooi zicht op de achtertuin. Gesloten keuken (ca. 10 m2) die is voorzien van een hoekopstelling met vaatwasser, oven, twee koelkasten, spoelbak, 4-pits kookplaat, afzuiging en diverse opbergkastjes en lades. Ook de keuken geeft toegang tot de serre/tuinkamer.

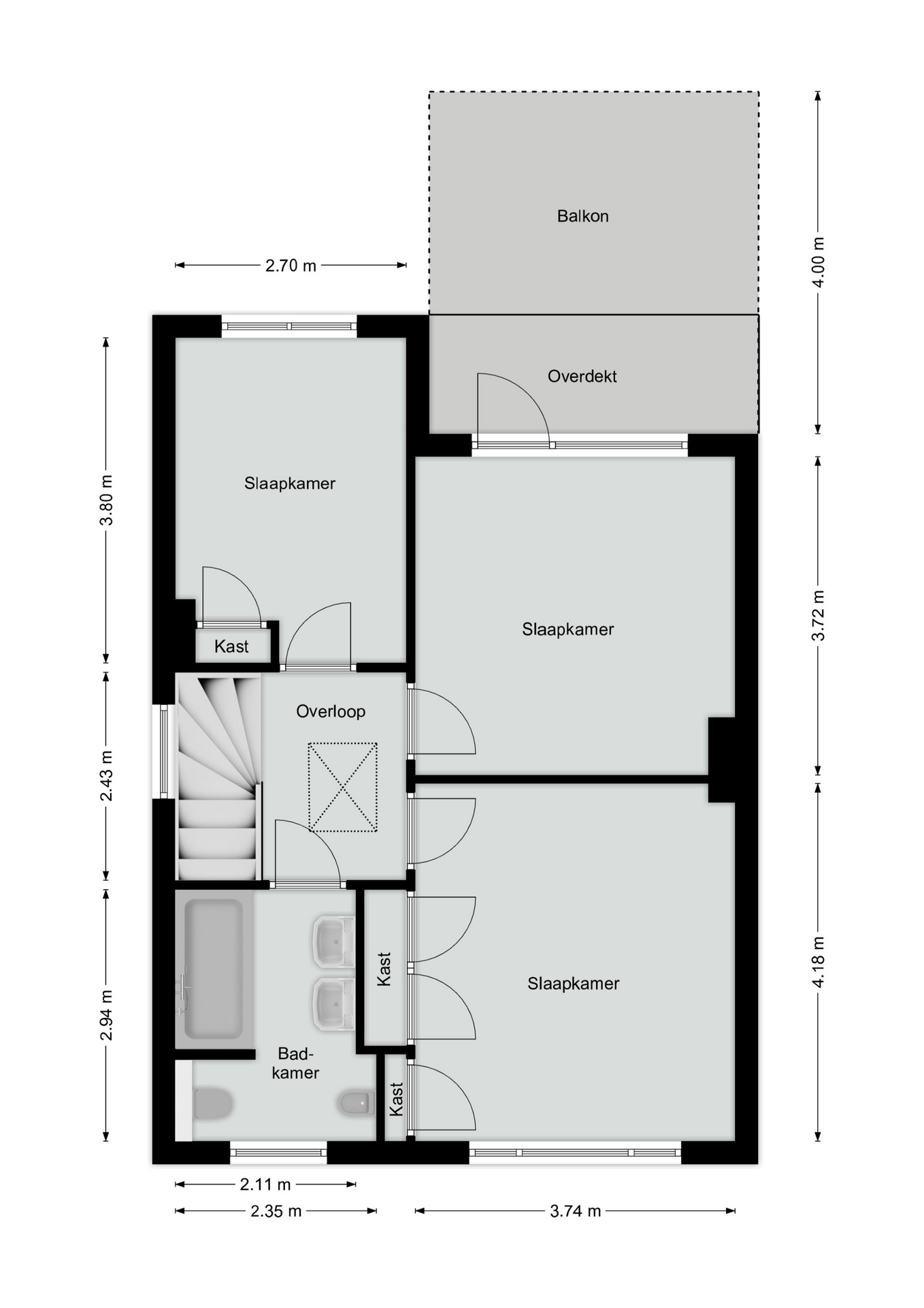
Eerste verdieping
Overloop die toegang biedt tot drie slaapkamers en de badkamer. De slaapkamers zijn ruim bemeten en respectievelijk circa 16 m2, 14 m2 en 10 m2 en voorzien van parketvloeren. De kleinste en de grootste slaapkamer zijn voorzien van praktische muurkasten. De middelgrote kamer is voorzien van een airco-installatie en heeft toegang tot een eigen balkon (circa 14 m2). De betegelde badkamer (circa 6 m2) is voorzien van een ligbad, dubbele wastafel, bidet en zwevend closet.

Tweede verdieping
Middels vlizotrap is er toegang tot de ruime bergzolder (circa 35 m2). De zolder is voorzien van een hoge nok. Er zijn mogelijkheden voor het plaatsen van een vaste trap waardoor er extra slaapkamers of hobbyruimtes gerealiseerd kunnen worden.

Tuin
De achtertuin is onderhoudsvriendelijk aangelegd en grotendeels beklinkerd en westelijk georiënteerd. De bloembakken op de foto geven indicatief weer waar de erfgrens is. Er zal medio december 2025 door achterbuurman een schutting geplaatst worden (een composieten, antracieten schutting). De tuin is achterom bereikbaar middels de brede oprit met poort. Er is een lange oprit alwaar plek is voor meerdere auto’s.

NB: Het aangrenzend perceel aan de achterzijde is een privégarage, deze is blijvend in gebruik voor privédoeleinden (opslag en dergelijke)

Bijzonderheden
– Ruime (gezins)woning met veel mogelijkheden;
– Geheel onderkelderd met mogelijkheden voor beroep of praktijk aan huis;
– Grote zolder aanwezigheid met mogelijkheid realisatie extra woonruimte;
– Geheel voorzien van dubbele beglazing;
– Grotendeels voorzien van rolluiken;
– Veel bergruimte aanwezig;
– Prettige en centrale ligging in met verschillende voorzieningen in de directe nabijheid en de binnenstad van Roermond alsook het station op fietsafstand;
– Goede bereikbaarheid ten opzichte van uitvalswegen, N280 en A73;
– Koper dient rekening te houden met moderniseringskosten.

Omgeving
Deze woning is gelegen in een fijne centrale omgeving. Maasniel is een voormalig kerkdorp en beschikt over uitgebreide voorzieningen zoals basisschool, middelbare scholen, supermarkt, bakker, slager, drogist, diverse andere winkels, gezondheidsvoorzieningen, sporthal, zwembad en een bloeiend verenigingsleven. Daarnaast is het stadscentrum van Roermond, het Retailpark en de Huis- en tuinboulevard op fietsafstand gelegen met alle denkbare voorzieningen.
De ligging direct bij de oprit naar de A73 zorgt ervoor dat steden als Maastricht, Eindhoven, Venlo en Düsseldorf allemaal binnen 35 autominuten bereikbaar zijn. Ook het Nationaal Park de Meinweg is in de directe omgeving gelegen, dus ook wandelen en fietsen in het uitgestrekte natuurgebied is om de hoek. Kortom: een plek waar het prettig wonen is!

Goed onderhouden twee-onder-een-kapwoning gelegen in de geliefde wijk Maasniel in Roermond. De woning is geheel onderkelderd met inpandige garage, voorzien van drie slaapkamers en een ruime zolder. De woning is zeer centraal gelegen nabij verschillende voorzieningen, waaronder een basisschool, supermarkt, sportgelegenheden en uitvalswegen. Indeling Souterrain Vanuit de hal is…

Kenmerken

  • Status Verkocht onder voorbehoud
  • Vraagprijs € 349.000,- k.k.
  • Aanvaarding In overleg
  • Soort woonhuis Twee onder een kapwoning
  • Soort bouw Bestaande bouw
  • Bouwjaar 1966
  • Soort dak Zadeldak
  • Onderhoud binnen Goed
  • Onderhoud buiten Goed
  • Gebruiksoppervlakte wonen ca. 130 m2
  • Oppervlakte gebouwgebonden ca. 32 m2
  • Overige inpandige ruimte ca. 65 m2
  • Inhoud ca. 695 m3
  • Perceeloppervlakte ca. 270 m2
  • Aantal kamers 4 kamers
  • Aantal slaapkamers 3
  • Aantal badkamers 1 badkamer
  • Badkamervoorzieningen Ligbad, toilet, wastafel
  • Aantal woonlagen 4 woonlagen
  • Voorzieningen Rolluiken, tv kabel, airconditioning, rookkanaal, schuifpui, dakraam
  • Energielabel G
  • Isolatie Dubbel glas
  • Verwarming Cv ketel, vloerverwarming gedeeltelijk
  • Warm water Cv ketel, elektrische boiler eigendom
  • C.v.-ketel type Gas
  • C.v.-ketel bouwjaar 2001
  • Eigendom Eigendom
  • Ligging In woonwijk
  • Hoofdtuin Achtertuin
  • Oppervlakte hoofdtuin ca. 108 m2
  • Ligging hoofdtuin Zuidwest
  • Achterom Ja
  • Kwaliteit tuin Normaal
  • Schuur / berging Inpandig
  • Aantal schuren / bergingen 1
  • Parkeerfaciliteiten Openbaar parkeren, op eigen terrein
  • Garage Inpandig
Meer kenmerken Minder kenmerken

Plattegronden

Statistieken

Cijfers voor de wijk

Burgerlijke staat

  • Gehuwd
  • Ongehuwd
  • Gescheiden
  • Verweduwd

Leeftijd in gemeente

Leeftijd buurtbewoners

  • 0-15 14%
  • 15-15 13%
  • 25-45 24%
  • 45-65 31%
  • 65+ 19%

Benieuwd naar de waarde van je woning?

Maak dan een afspraak voor een gratis waardebepaling zonder verplichtingen.

Even binnenkijken?

Neem vrijblijvend contact met ons op.