Terug naar overzicht
Maastricht

Roggehegge 78

€ 375.000, - k.k.

In een rustige en kindvriendelijke straat in Amby ligt deze verrassend ruime en goed onderhouden tussenwoning met aanbouw, twee grote slaapkamers en een sfeervolle tuin op het zuiden. De woning voelt meteen prettig aan dankzij de fijne lichtinval, de praktische indeling en de nette afwerking. Bovendien is er eenvoudig een derde slaapkamer te realiseren.

INDELING

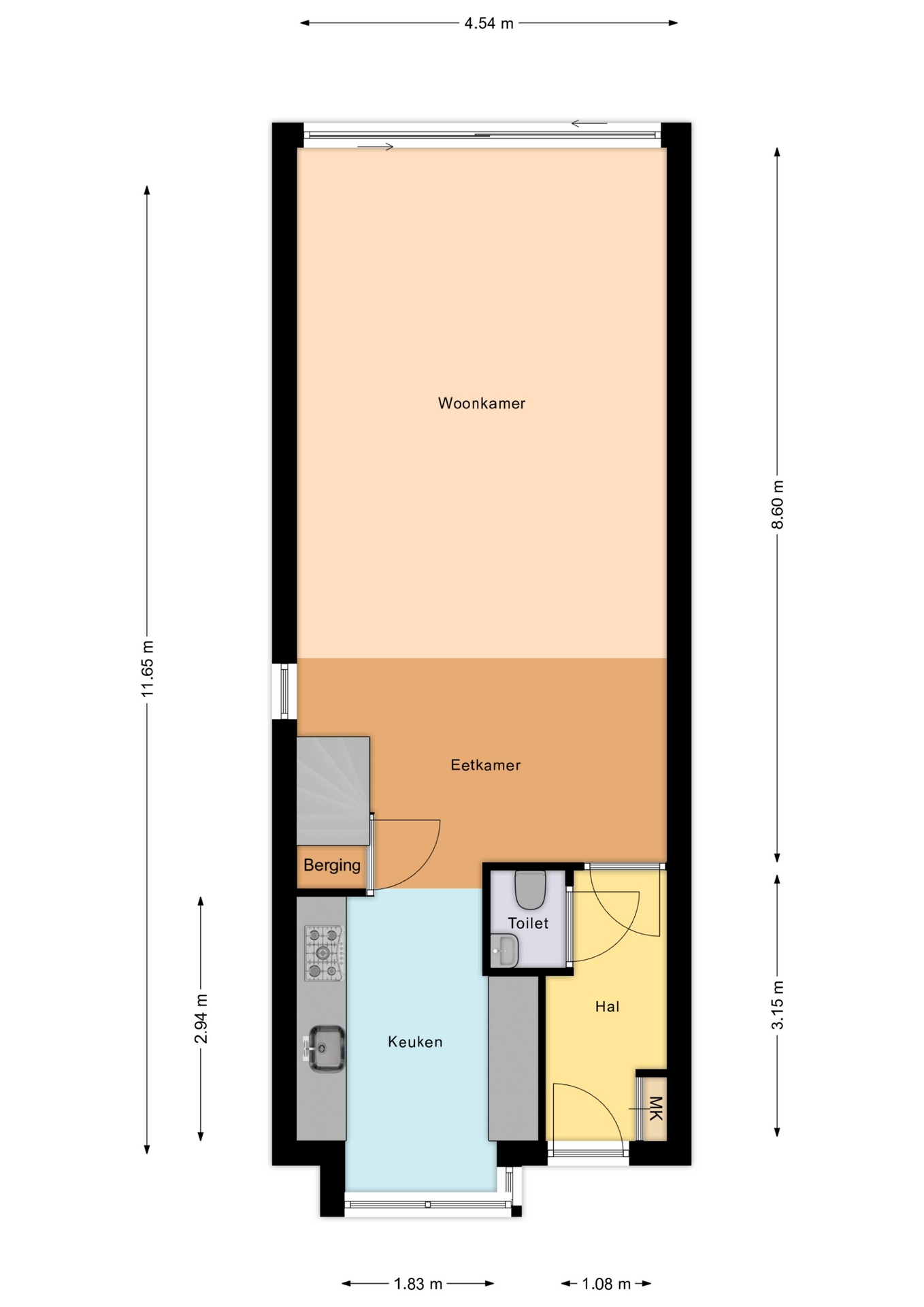
Begane grond:
Entree/hal met meterkast en toiletruimte, welke voorzien is van een staand closet en een fonteintje. Ruime woonkamer, bestaande uit een zit-/eetkamer (ca. 38m²) met een praktische bergruimte onder de trapopgang en een open keuken. De keuken (ca. 9m²) is aan de voorzijde van de woning gelegen en is voorzien van een moderne keuken met de volgende inbouwapparatuur: 5-pits gaskookplaat (waarvan een wokpit), afzuigkap, oven, magnetron, vaatwasser, koelkast, diepvries en spoelbak. Vanuit de woonkamer is middels een kunststof schuifpui direct toegang tot de achtertuin. De benedenverdieping is voorzien van een houten vloer.

Eerste verdieping:
Overloop met laminaatvloer, welke toegang geeft tot de twee ruime slaapkamers, badkamer, muurkast en de cv-ruimte. De slaapkamers (resp. ca. 14 en 13m²) zijn allen voorzien van een laminaatvloer en houten kozijnen met isolerende beglazing. Nette, geheel betegelde badkamer (ca. 4m²), welke voorzien is van een bad/douche combinatie, tweede toilet, een vaste wastafel en mechanische ventilatie. De cv-opstelling bevindt zich in een aparte ruimte. (Atag, 2012 gehuurd).

Tuin:
Sfeervolle en goed onderhouden achtertuin (ca. 32m²), gelegen op het zuiden, met vrijstaande stenen berging en een achterom.

Nadere bijzonderheden:
– Instapklare tussenwoning met ruime aanbouw in de geliefde wijk Amby;
– Energielabel B;
– Twee slaapkamers met de mogelijkheid om van een slaapkamer twee slaapkamers te maken;
– De aanbouw beschikt over een dakbloemenweide;
– Houten kozijnen met isolerende beglazing en een schuifpui van kunststof;
– Cv-ketel (Atag uit 2012 gehuurd);
– Alle vermelde afmetingen zijn indicatief en kunnen afwijken van de werkelijkheid.

Omgeving:
Deze mooie woning is zeer gunstig gelegen, grenzend aan een gazon in de geliefde en kindvriendelijke wijk Amby, nabij winkels en scholen. De locatie kenmerkt zich door haar hoog voorzieningsniveau met snel te bereiken uitvalswegen richting het centrum van Maastricht en de autosnelweg richting Eindhoven/Heerlen. Natuur- en wandelgebieden zijn in de directe nabijheid gelegen. Daarnaast bevindt zich in dezelfde straat een internationaal kinderdagverblijf en liggen ook het UWC (United World College) en overige internationale voorzieningen op korte afstand.

In een rustige en kindvriendelijke straat in Amby ligt deze verrassend ruime en goed onderhouden tussenwoning met aanbouw, twee grote slaapkamers en een sfeervolle tuin op het zuiden. De woning voelt meteen prettig aan dankzij de fijne lichtinval, de praktische indeling en de nette afwerking. Bovendien is er eenvoudig een…

Kenmerken

  • Status Beschikbaar
  • Vraagprijs € 375.000,- k.k.
  • Aanvaarding In overleg
  • Soort woonhuis Tussenwoning
  • Soort bouw Bestaande bouw
  • Bouwjaar 1997
  • Soort dak Plat dak
  • Onderhoud binnen Goed
  • Onderhoud buiten Goed
  • Gebruiksoppervlakte wonen ca. 90 m2
  • Externe bergruimte ca. 6 m2
  • Inhoud ca. 324 m3
  • Perceeloppervlakte ca. 188 m2
  • Aantal kamers 3 kamers
  • Aantal slaapkamers 2
  • Aantal badkamers 1 badkamer
  • Badkamervoorzieningen Ligbad, toilet, wastafel
  • Aantal woonlagen 2 woonlagen
  • Voorzieningen Mechanische ventilatie, schuifpui, natuurlijke ventilatie
  • Energielabel B
  • Isolatie Dakisolatie, dubbel glas
  • Verwarming Cv ketel
  • Warm water Cv ketel
  • C.v.-ketel type Gas
  • C.v.-ketel bouwjaar 2012
  • Eigendom Huur
  • Ligging Aan rustige weg, in woonwijk
  • Hoofdtuin Achtertuin
  • Oppervlakte hoofdtuin ca. 32 m2
  • Ligging hoofdtuin Zuid
  • Achterom Ja
  • Kwaliteit tuin Verzorgd
  • Schuur / berging Vrijstaand steen
  • Aantal schuren / bergingen 1
  • Parkeerfaciliteiten Openbaar parkeren
  • Garage Geen garage
Meer kenmerken Minder kenmerken

Plattegronden

Statistieken

Cijfers voor de wijk

Burgerlijke staat

  • Gehuwd
  • Ongehuwd
  • Gescheiden
  • Verweduwd

Leeftijd in gemeente

Leeftijd buurtbewoners

  • 0-15 17%
  • 15-15 10%
  • 25-45 21%
  • 45-65 31%
  • 65+ 20%

Benieuwd naar de waarde van je woning?

Maak dan een afspraak voor een gratis waardebepaling zonder verplichtingen.

Even binnenkijken?

Neem vrijblijvend contact met ons op.