Terug naar overzicht
Linne

Rijksweg 14

€ 925.000, - k.k.

Aan de Rijksweg 14 in Linne ligt deze bijzondere carréboerderij waar het karakter van vroeger op een stijlvolle manier is gecombineerd met het comfort van nu. De woning is de afgelopen periode volledig van A tot Z verbouwd. Hierbij is het geheel teruggebracht tot de basis en opnieuw opgebouwd, met een duidelijke visie: het behouden van de boerderijsfeer, maar dan uitgevoerd in een moderne, rustige en hoogwaardige afwerking. Het resultaat is een woning waarin materialen, kleuren en details perfect op elkaar zijn afgestemd.

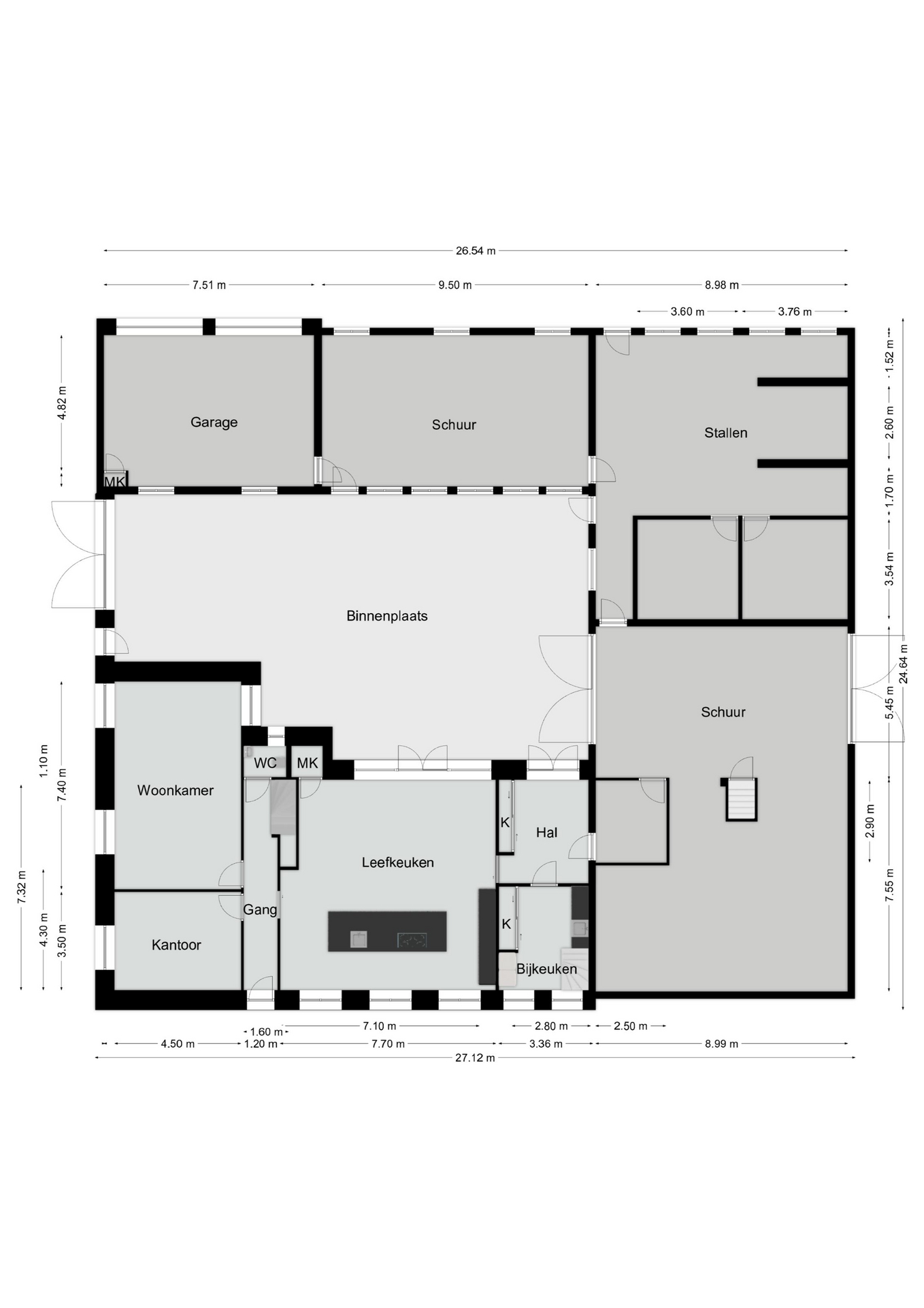
Begane grond
Bij binnenkomst (via de binnenplaats) in de hal valt direct de strakke en verzorgde afwerking op. De donkere tegelvloer vormt een rustige basis en loopt mooi door in de rest van de leefruimtes. In combinatie met de lichte, strak gestucte wanden en de houten accenten ontstaat er een warme, eigentijdse uitstraling. De ruime garderobekast is netjes weggewerkt en draagt bij aan het opgeruimde geheel.

De leef keuken is het centrale punt van de woning en laat goed zien hoe de moderne boerderijstijl hier is doorgevoerd. Met een oppervlakte van circa 55 m² is het een royale ruimte waarin koken en leven samenkomen. Het grote kookeiland en de kastenwand met koffie nis zorgen voor een strakke, moderne uitstraling, terwijl de zichtbare houten balken juist warmte en karakter toevoegen. De combinatie van materialen maakt deze ruimte bijzonder in balans. Dankzij de grote raampartijen en openslaande deuren naar de binnenplaats is er veel daglicht en een prettige verbinding met buiten.

Vanuit de keuken komt u in de gang voorzien van een zwart-witte tegelvloer, waar dezelfde rustige afwerking is doorgezet. Hier bevinden zich het kantoor, de woonkamer, het toilet en de trap naar boven. Het kantoor is ruim en veelzijdig in gebruik, ideaal voor thuiswerken of als speelruimte. De woonkamer van circa 33 m² sluit qua sfeer naadloos aan op de rest van de woning, met dezelfde vloer, strakke wanden en een fijne lichtinval.

Het gastentoilet is modern en netjes uitgevoerd. In de bijkeuken is gekozen voor een speels contrast met een zwart-witte tegelvloer, wat de ruimte een eigen karakter geeft zonder afbreuk te doen aan het geheel. De bijkeuken is praktisch ingericht met een wastafel en keukenblok, witgoedaansluitingen en een kastenwand.

Boven de bijkeuken bevindt zich een extra ruimte die al volledig is afgewerkt. Met een visgraat PVC-vloer, strak gestucte muren, een Velux dakraam en verwarming is dit een volwaardige extra kamer, geschikt als werkplek, hobbyruimte of berging.

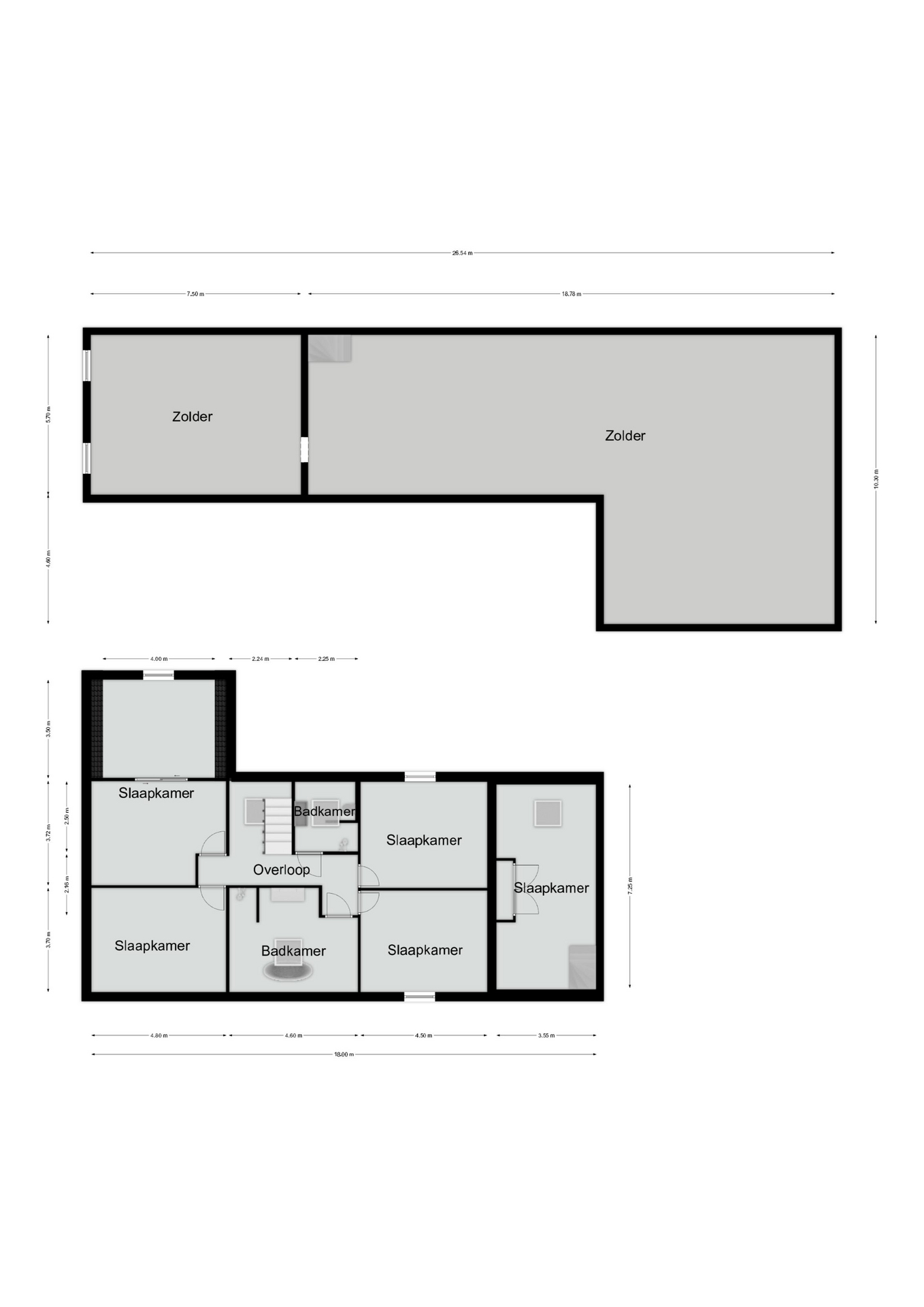
Eerste verdieping
Op de eerste verdieping is de moderne boerderijstijl consequent doorgezet. De zichtbare houten balken vormen hier opnieuw een mooi contrast met de strakke, lichte wanden en de warme houten vloer. Dit zorgt voor een rustige en samenhangende uitstraling op de hele verdieping.

Er zijn vier ruime slaapkamers met oppervlaktes van circa 17,8 m², 17,1 m², 16,2 m² en een royale kamer van circa 33,4 m². De grootste slaapkamer beschikt over een ensuite met slaapgedeelte en kastenruimte en biedt volop ruimte voor een comfortabele indeling. Alle kamers zijn licht en praktisch in te richten.

De twee badkamers zijn los van de slaapkamers gesitueerd en modern afgewerkt. De grootste badkamer is voorzien van een dubbele wastafel, een inloopdouche en een vrijstaand bad. De tweede badkamer beschikt over een inloopdouche, wastafel en toilet. Beide badkamers sluiten qua stijl en materiaalgebruik goed aan op de rest van de woning.

Schuren, garage en perceel
De schuren rondom de binnenplaats verkeren nog in oorspronkelijke staat en bieden daardoor veel mogelijkheden. Hier kan naar eigen wens extra woonruimte worden gerealiseerd, zoals een kangoeroewoning, aanleunwoning of een zelfstandig appartement. De basis en de ruimte zijn er, waardoor het geheel verder naar eigen inzicht kan worden ingevuld.

De garage met dubbele poort is al gerealiseerd. Daarnaast bevindt zich in één van de schuren een gewelfde kelder, wat een mooi en authentiek element is binnen het geheel. De boerderij ligt op een ruim perceel van circa 4.950 m², wat zorgt voor veel vrijheid en mogelijkheden rondom de woning.

Bijzonderheden:
– Wtw systeem en warmtepomp
– Volledige isolatie: Vloer-, dak- en muurisolatie
– HR++ beglazing (Semco phone glas speciaal geluidswerend)
– Nabij diverse voorzieningen
– Goede bereikbaarheid, A2 en A73 op nog geen 5 min. rijden
– 4950m² perceel

Comfort en duurzaamheid:
De woning is van buitenaf volledig geïsoleerd, waardoor u profiteert van een prettig en stabiel binnenklimaat, ongeacht het seizoen.
Op de begane grond en in de badkamers op de 1ste etage is vloerverwarming aanwezig, die niet alleen verwarmt maar ook zorgt voor aangename verkoeling in de zomer.
Alle ruimtes op de begane grond zijn uitgerust met een eigen thermostaat, wat zorgt voor optimaal comfort door individuele temperatuurregeling per ruimte.
Op de 1ste verdieping zijn de slaapkamers uitgerust met lage temperatuur radiatoren die zowel voor aangename temperatuur in de winter als voor verkoeling in de zomer zorgen.
De woning is voorzien van een waterontharder.
Domotica systeem aanwezig waardoor verlichting automatisch geregeld kan worden.
De woning is rondom voorzien van een camerasysteem.
De tuin is voorzien van een automatisch bewateringssysteem.
De keuken is hoogwaardig uitgevoerd en voorzien van een Quooker voor gekoeld, kokend en bruisend water.
Daarnaast beschikt de keuken over een combi stoomoven, een combi oven en een inductiekookplaat alle keukenapparatuur is eenvoudig te bedienen via een app wat zorgt voor optimaal gebruiksgemak en moderne luxe.

Omgeving
De woning ligt in een rustige en groene omgeving in Linne. In de directe omgeving zijn diverse wandel- en fietsroutes en ook de Maas ligt op korte afstand. Voor voorzieningen en een uitgebreider aanbod zijn Roermond en Maastricht goed bereikbaar. Hierdoor woont u hier landelijk, maar met alle gemakken binnen handbereik.

Aan de Rijksweg 14 in Linne ligt deze bijzondere carréboerderij waar het karakter van vroeger op een stijlvolle manier is gecombineerd met het comfort van nu. De woning is de afgelopen periode volledig van A tot Z verbouwd. Hierbij is het geheel teruggebracht tot de basis en opnieuw opgebouwd, met…

Kenmerken

  • Status Beschikbaar
  • Vraagprijs € 925.000,- k.k.
  • Aanvaarding In overleg
  • Soort woonhuis Vrijstaande woning
  • Soort bouw Bestaande bouw
  • Bouwjaar 1900
  • Soort dak Samengesteld dak
  • Onderhoud binnen Goed tot uitstekend
  • Onderhoud buiten Goed tot uitstekend
  • Gebruiksoppervlakte wonen ca. 303 m2
  • Overige inpandige ruimte ca. 522 m2
  • Inhoud ca. 2565 m3
  • Perceeloppervlakte ca. 4950 m2
  • Aantal kamers 7 kamers
  • Aantal slaapkamers 6
  • Aantal badkamers 2 badkamers
  • Badkamervoorzieningen Ligbad, dubbele wastafel, inloopdouche, toilet, wastafel, inloopdouche
  • Aantal woonlagen 2 woonlagen
  • Voorzieningen Tv kabel, glasvezel kabel, domotica, balansventilatie
  • Energielabel A+
  • Isolatie Dakisolatie, muurisolatie, vloerisolatie, volledig geisoleerd
  • Ligging Buiten bebouwde kom
  • Hoofdtuin Achtertuin
  • Oppervlakte hoofdtuin ca. 4050 m2
  • Ligging hoofdtuin Zuidwest
  • Achterom Ja
  • Kwaliteit tuin Normaal
  • Parkeerfaciliteiten Openbaar parkeren, op eigen terrein, op afgesloten terrein
  • Garage Inpandig
Meer kenmerken Minder kenmerken

Plattegronden

Statistieken

Cijfers voor de wijk

Burgerlijke staat

  • Gehuwd
  • Ongehuwd
  • Gescheiden
  • Verweduwd

Leeftijd in gemeente

Leeftijd buurtbewoners

  • 0-15 13%
  • 15-15 10%
  • 25-45 20%
  • 45-65 35%
  • 65+ 21%

Benieuwd naar de waarde van je woning?

Maak dan een afspraak voor een gratis waardebepaling zonder verplichtingen.

Even binnenkijken?

Neem vrijblijvend contact met ons op.