Terug naar overzicht
Heerlen

Regentessestraat 11

€ 199.500, - k.k.

Op loopafstand van het centrum en NS station ideale keurige starterswoning met 3 slaapkamers, berging en tuin
gelegen te Heerlen, Regentessestraat 11.

Parterre:
Entree. Hal met tegelvloer en vernieuwde meterkast met dag- en nachtstroom.
Sfeervolle woonkamer met moderne PVC vloer.
Halfopen moderne keuken uit 2018 eveneens met PVC vloer en inclusief navolgende apparatuur: koel-,vriescombinatie, elektrische kookplaat, oven, afzuigkap, magnetron, vaatwasser en bergkast met aansluiting wasapparatuur.
Tussenportaal met betegelde toiletruimte met zwevend toilet en fontein. Combi c.v. installatie (Nefit/HR/2017/eigendom).
Via het tussenportaal toegang naar de omheinde tuin met terras en achteringang.

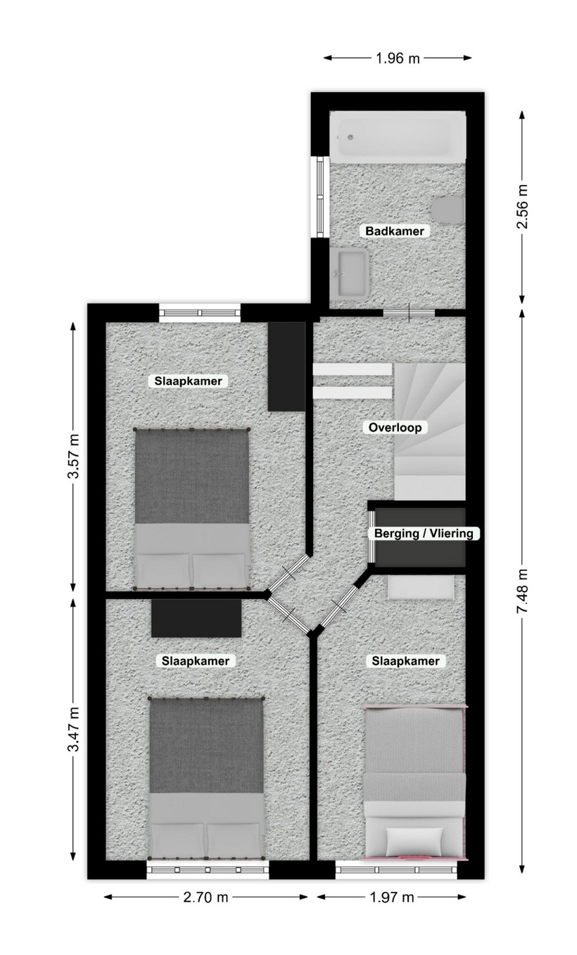
1e Verdieping:
Trapopgang voorzien van grindvloer treden.
Overloop. met PVC vloer
3 Slaapkamers allen met PVC vloer.
Geheel betegelde badkamer voorzien van een grondvloer met ligbad met douchewand, 2e toilet en badmeubel met
vaste wastafel.

2e Verdieping:
Vliering bereikbaar via losse trap.

Bijzonderheden:
– Sfeervolle ideale starterswoning op loopafstand van het centrum.
– Gedeeltelijk houten en gedeeltelijk kunststof kozijnen.
– Gedeeltelijk voorzien van rolluiken.
– 3 Slaapkamers.
– Woonkamer, keuken en slaapkamers met moderne PVC vloer.
– Naast de woning apart gelegen berging.
– Parkeervergunning € 20,– per half jaar.
– Tuin met achteringang.
– NS-, busstation, scholen, voorzieningen, winkels en autosnelwegen in de directe nabijheid.
– Energielabel D.

Op loopafstand van het centrum en NS station ideale keurige starterswoning met 3 slaapkamers, berging en tuin gelegen te Heerlen, Regentessestraat 11. Parterre: Entree. Hal met tegelvloer en vernieuwde meterkast met dag- en nachtstroom. Sfeervolle woonkamer met moderne PVC vloer. Halfopen moderne keuken uit 2018 eveneens…

Kenmerken

  • Status Beschikbaar
  • Vraagprijs € 199.500,- k.k.
  • Aanvaarding In overleg
  • Soort woonhuis Tussenwoning
  • Soort bouw Bestaande bouw
  • Bouwjaar 1921
  • Onderhoud binnen Goed
  • Onderhoud buiten Goed
  • Gebruiksoppervlakte wonen ca. 80 m2
  • Externe bergruimte ca. 4 m2
  • Overige inpandige ruimte ca. 10 m2
  • Inhoud ca. 249 m3
  • Perceeloppervlakte ca. 112 m2
  • Aantal kamers 4 kamers
  • Aantal slaapkamers 3
  • Aantal badkamers 1 badkamer
  • Badkamervoorzieningen Ligbad, toilet, wastafel
  • Aantal woonlagen 3 woonlagen
  • Voorzieningen Rolluiken
  • Energielabel D
  • Isolatie Dubbel glas
  • Verwarming Cv ketel
  • Warm water Cv ketel
  • C.v.-ketel type Gas
  • C.v.-ketel bouwjaar 2017
  • Eigendom Eigendom
  • Ligging Aan rustige weg, in woonwijk
  • Hoofdtuin Achtertuin
  • Oppervlakte hoofdtuin ca. 56 m2
  • Ligging hoofdtuin West
  • Achterom Ja
  • Kwaliteit tuin Normaal
  • Garage Geen garage
Meer kenmerken Minder kenmerken

Plattegronden

Statistieken

Cijfers voor de wijk

Burgerlijke staat

  • Gehuwd
  • Ongehuwd
  • Gescheiden
  • Verweduwd

Leeftijd in gemeente

Leeftijd buurtbewoners

  • 0-15 8%
  • 15-15 13%
  • 25-45 26%
  • 45-65 26%
  • 65+ 26%

Benieuwd naar de waarde van je woning?

Maak dan een afspraak voor een gratis waardebepaling zonder verplichtingen.

Even binnenkijken?

Neem vrijblijvend contact met ons op.