Terug naar overzicht
Kerkrade

Pricksteenweg 74

€ 297.500, - k.k.

In de wijk Bleijerheide gelegen ruime, goed onderhouden tussenwoning met 5 slaapkamers.
De woning is gelegen aan de Pricksteenweg 4 te Kerkrade.

Indeling:
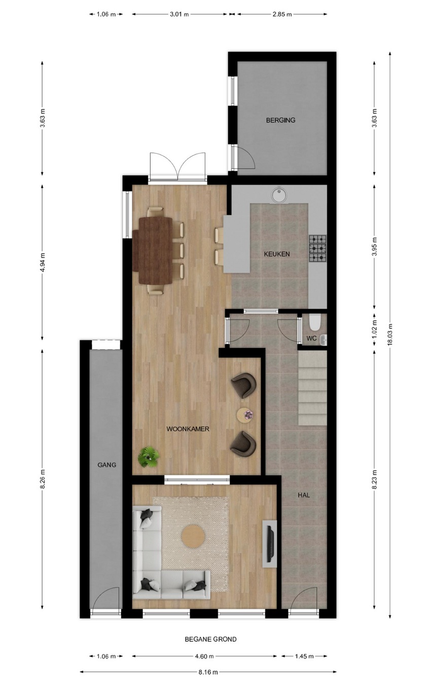
Begane grond:
Entree. De hal met meterkast, trapopgang en gastentoilet met zwevend toilet en fonteintje biedt toegang tot de woonkamer.
De royale woonkamer met open keuken groot ca. 63 m² en voorzien van authentieke ensuite deuren en openslaande deuren naar de achtertuin.
De woonkamer is voorzien van een laminaatvloer en de keuken is voorzien van een plavuizenvloer.
De moderne U-vormige keukenopstelling met ontbijtbarretje is voorzien van de navolgende apparatuur: inductiekookplaat, afzuigkap, vaatwasser, oven, combimagnetron en koelkast.

De achtertuin is op het zuiden gelegen en biedt veel privacy.
De gezellige tuin is voorzien van een ruim gazon, een stenen berging (op dit moment in gebruik als thuisgym) en een gezellige overkapping met jacuzzi.

Eerste verdieping:
De overloop biedt toegang tot de badkamer en 2 slaapkamers.
De slaapkamers zijn respectievelijk groot ca. 22 m² en 16 m² en zijn voorzien van een laminaatvloer.
De ruime badkamer is groot ca. 11 m² en voorzien van een ligbad, douche, zwevend toilet, dubbele wastafel en de witgoedaansluitingen.

Tweede verdieping:
Middels vaste trap te bereiken tweede verdieping alwaar nog 3 slaapkamers gesitueerd zijn.
De slaapkamers zijn respectievelijk groot ca. 18 m², 16 m² en 14 m² en zijn voorzien van een laminaatvloer.

Bergvliering.

Bijzonderheden:
– De woning is voorzien van kunststof kozijnen met HR beglazing.
– De woning is voorzien van een CV-installatie en een boiler t.b.v. de badkamer, beiden eigendom.
– De woning is voorzien van 13 zonnepanelen, welke eigendom zijn.

In de wijk Bleijerheide gelegen ruime, goed onderhouden tussenwoning met 5 slaapkamers. De woning is gelegen aan de Pricksteenweg 4 te Kerkrade. Indeling: Begane grond: Entree. De hal met meterkast, trapopgang en gastentoilet met zwevend toilet en fonteintje biedt toegang tot de woonkamer. De royale…

Kenmerken

  • Status Beschikbaar
  • Vraagprijs € 297.500,- k.k.
  • Aanvaarding In overleg
  • Soort woonhuis Tussenwoning
  • Soort bouw Bestaande bouw
  • Bouwjaar 1912
  • Onderhoud binnen Redelijk tot goed
  • Onderhoud buiten Redelijk tot goed
  • Gebruiksoppervlakte wonen ca. 204 m2
  • Externe bergruimte ca. 19 m2
  • Overige inpandige ruimte ca. 49 m2
  • Inhoud ca. 825 m3
  • Perceeloppervlakte ca. 340 m2
  • Aantal kamers 6 kamers
  • Aantal slaapkamers 5
  • Aantal badkamers 1 badkamer
  • Badkamervoorzieningen Ligbad, toilet, douche, dubbele wastafel, wasmachineaansluiting
  • Aantal woonlagen 5 woonlagen
  • Voorzieningen Dakraam, zonnepanelen
  • Energielabel E
  • Verwarming Cv ketel
  • Warm water Cv ketel, gasboiler eigendom
  • C.v.-ketel type Gas
  • Eigendom Eigendom
  • Ligging Aan rustige weg, in woonwijk
  • Schuur / berging Aangebouwd steen
  • Aantal schuren / bergingen 1
  • Parkeerfaciliteiten Openbaar parkeren
  • Garage Geen garage
Meer kenmerken Minder kenmerken

Plattegronden

Statistieken

Cijfers voor de wijk

Burgerlijke staat

  • Gehuwd
  • Ongehuwd
  • Gescheiden
  • Verweduwd

Leeftijd in gemeente

Leeftijd buurtbewoners

  • 0-15 14%
  • 15-15 10%
  • 25-45 25%
  • 45-65 33%
  • 65+ 18%

Benieuwd naar de waarde van je woning?

Maak dan een afspraak voor een gratis waardebepaling zonder verplichtingen.

Even binnenkijken?

Neem vrijblijvend contact met ons op.