Posterholtlaan 5
Royale vrijstaande woning gelegen op een ruim perceel (760 m2), op geliefde locatie nabij de uitvalswegen van Susteren. Een rustige en kindvriendelijke woonomgeving met op loopafstand de voorzieningen die Susteren te bieden heeft.
Niet alleen qua ligging maar ook qua architectuur is deze woning uniek. De grote oppervlakte en speelse indeling zorgen voor een fijne woonbeleving.
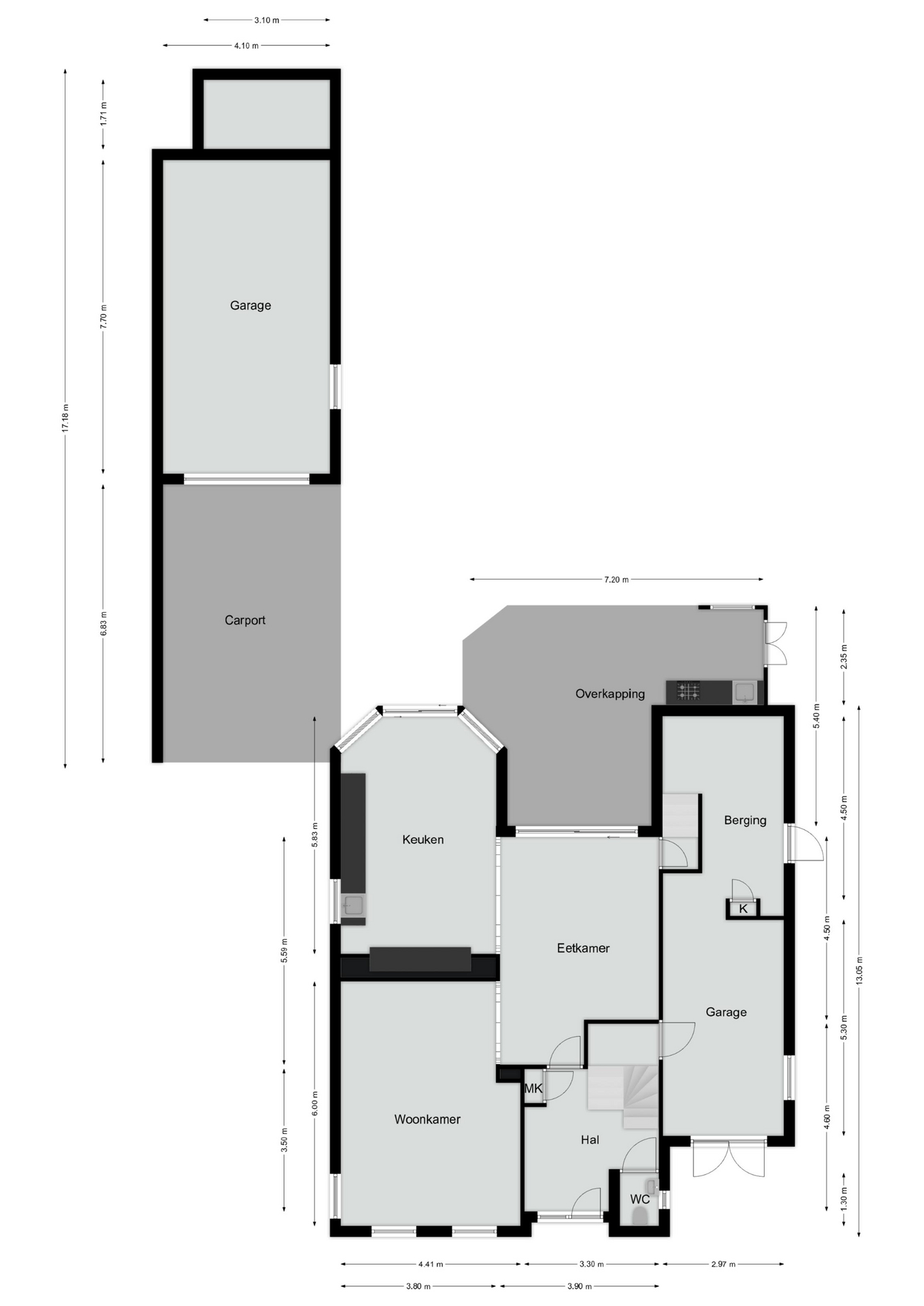
Op de begane grond is onder andere een royale en sfeervolle living, eetkamer met open keuken, praktische bijkeuken en inpandige garage. Daarnaast heeft deze woning vier slaapkamers op de verdieping, een multifunctioneel souterrain en vrijstaande garage. Deze schitterende gezinswoning biedt dan ook zowel in de woning als buiten een zee aan ruimte en veel mogelijkheden voor een eigen invulling.
Souterrain
Het multifunctionele souterrain is opgedeeld in twee gedeelte een multifunctioneel deel, thans in gebruik als heuse thuisbar van ruim 65 m2 en een berg/ hobbyruimte (circa 26 m2). Door dit multifunctioneel souterrain wordt extra woonruimte en mogelijkheden aan de woning toegevoegd.
Begane grond:
Wanneer we binnenkomen in de hal door de dubbele voordeur voel je meteen de sfeer door de hoogte en de vides. Hier treffen we de meterkast en een ruim gastentoilet voorzien van fonteintje. Vanuit de royale ontvangsthal toegang tot de verdieping, het woongedeelte, de inpandige garage en het souterrain.
In het woongedeelte (ruim 65 m2), voorzien van een stijlvolle natuurstenen vloer valt meteen de sfeer op. Er is een naadloze overgang tussen de intieme living aan de voorzijde van de woning en de eetkamer met open keuken met optimaal tuincontact. Perfect voor het ontvangen van gasten en het creëren van een gezellige sfeer, zeker ook door de aanwezige sfeerelementen, als de boogdoorgangen, het glas-in-lood en de raampartijen. De begane grond is echt een fantastische plek om quality-time door te brengen met je gezin en vrienden. Vanuit de eetkamer en open keuken heb je een mooi zicht op de tuin door de grote raampartijen. En als het mooi weer is, zet je de schuifpui open en ontstaat er een vloeiende overgang tussen binnen en buiten met het grote overkapte terras direct achter de woning.
De luxe keuken, in hoogglans wit, is voorzien van inbouwapparatuur (inductiekookplaat, afzuigkap, stoomoven, combioven, koelkast, diepvries en vaatwasser). Vanuit de keuken is goed zicht op de fraai aangelegde achtertuin.
Inpandige garage voorzien van een openslaande deuren en berging, met veel bergruimte. Vanuit de berging is er ook toegang tot het souterrain.
Eerste verdieping:
Ook de verdieping is ruim van opzet met een ruime overloop, 4 ruime slaapkamers (respectievelijk circa 17 m2, 16 m2, 14 m2 en 14 m2), extra (slaap)kamer, badkamer en wasruimte. Deze verdieping is voorzien van een tegelvloer.
De tuin:
De tuin is gelegen achter de woning, biedt veel privacy en is geheel omsloten. Het ruime terras direct achter de woning biedt ruimte voor een grote eettafel om heerlijk met gezin en vrienden te eten en te genieten.
De tuin is aangelegd met mooie perken met een variëteit aan beplanting, sierbestrating, een vijverpartij met waterelement en is voorzien van een automatische sproei-installatie. De tuin is gelegen op het Noord-Westen, door de diepte van de tuin is er altijd een plek in de zon en in de schaduw te vinden. De tuin is achterom bereikbaar via de oprit links van de woning. Achter in de tuin is er nog een sfeervol terras en een vrijstaand, gemetseld tuinhuis voorzien van elektra.
Ook de fraai aangelegde voortuin is voorzien van diverse beplanting, sierbestrating en een oprit naar de inpandige garage.
Links naast de woning is er een vrijstaande garage (circa 34 m2) gelegen. De garage heeft een praktische bergzolder en ook hoge openslaande deuren, zodat deze ook optimaal gebruik kan worden voor het stallen van een caravan of camper. Deze oprit biedt plaats aan meerdere auto’s, zodat er voldoende parkeergelegenheid is op eigen terrein.
Bijzonderheden:
– De woning is perfect voor een groot gezin of liefhebbers van veel ruimte.
– Prettige ligging in rustige kindvriendelijke woonomgeving.
– Luxe afwerking, er is gebruik gemaakt van kwalitatief goede materialen.
– Zeer ruime woning met diverse mogelijkheden.
– Er is zowel een inpandige garage als een vrijstaande garage, deze laatste is voorzien van een praktische bergzolder.
– Gehele woning is voorzien van kunststof kozijnen met isolerende beglazing.
– Nabij uitvalswegen en voorzieningen in Susteren
Omgeving:
De woning is gelegen nabij het centrum van Susteren, op loopafstand van alle winkelvoorzieningen, sportvelden en basisschool. Susteren heeft goede voorzieningen, een NS-station en is gunstig gelegen ten opzichten van Echt en Sittard. De woning is gelegen nabij de uitvalswegen, de autosnelweg A2 richting Roermond/Eindhoven en Heerlen/Maastricht is op enkele autominuten verwijderd.
Royale vrijstaande woning gelegen op een ruim perceel (760 m2), op geliefde locatie nabij de uitvalswegen van Susteren. Een rustige en kindvriendelijke woonomgeving met op loopafstand de voorzieningen die Susteren te bieden heeft. Niet alleen qua ligging maar ook qua architectuur is deze woning uniek. De grote oppervlakte en…

Kenmerken
- Status Beschikbaar
- Vraagprijs € 750.000,- k.k.
- Aanvaarding In overleg
- Soort woonhuis Vrijstaande woning
- Soort bouw Bestaande bouw
- Bouwjaar 1989
- Soort dak Samengesteld dak
- Onderhoud binnen Goed
- Onderhoud buiten Goed
- Gebruiksoppervlakte wonen ca. 276 m2
- Oppervlakte gebouwgebonden ca. 29 m2
- Externe bergruimte ca. 47 m2
- Overige inpandige ruimte ca. 25 m2
- Inhoud ca. 963 m3
- Perceeloppervlakte ca. 760 m2
- Aantal kamers 9 kamers
- Aantal slaapkamers 5
- Aantal badkamers 1 badkamer
- Badkamervoorzieningen Ligbad, toilet, douche, dubbele wastafel
- Aantal woonlagen 3 woonlagen
- Energielabel C
- Verwarming Cv ketel, vloerverwarming gedeeltelijk
- Warm water Cv ketel, elektrische boiler eigendom
- C.v.-ketel bouwjaar 2024
- Eigendom Eigendom
- Ligging Aan rustige weg, in woonwijk
- Hoofdtuin Achtertuin
- Oppervlakte hoofdtuin ca. 424 m2
- Ligging hoofdtuin Noordwest
- Achterom Ja
- Kwaliteit tuin Fraai aangelegd
- Schuur / berging Vrijstaand steen
- Aantal schuren / bergingen 1
- Parkeerfaciliteiten Openbaar parkeren, op eigen terrein
- Garage Vrijstaand steen, inpandig
Plattegronden






Cijfers voor de wijk
Burgerlijke staat
- Gehuwd
- Ongehuwd
- Gescheiden
- Verweduwd
Leeftijd in gemeente
Leeftijd buurtbewoners
- 0-15 15%
- 15-15 10%
- 25-45 21%
- 45-65 34%
- 65+ 21%
Benieuwd naar de waarde van je woning?
Maak dan een afspraak voor een gratis waardebepaling zonder verplichtingen.
Downloads
Even binnenkijken?
Neem vrijblijvend contact met ons op.
