Terug naar overzicht
Herten

Oude Roermondseweg 64

€ 360.000, - k.k.

Aan de Oude Roermondseweg ligt deze goed afgewerkte, instapklare gezinswoning met garage en eigen oprit, luxe overkapping en een ruime tuin. Het huis heeft een goede ruimteverdeling en veel praktische bergruimte. Het heeft kunststof kozijnen met isolerende beglazing, zonnepanelen en airco’s. Het is een fijne plek om te wonen: aan de rand van Herten, met de uitgebreide voorzieningen van Herten binnen handbereik en het bordje Roermond staat direct op de hoek: binnen 10 minuten fietsen sta je in het stadscentrum van Roermond. Met de auto ben je in no-time op de A73 en zijn andere steden snel bereikbaar. Ook de Maas en de Maasplassen liggen direct om de hoek. Kortom: een prima en compleet huis in een gunstige woonomgeving.

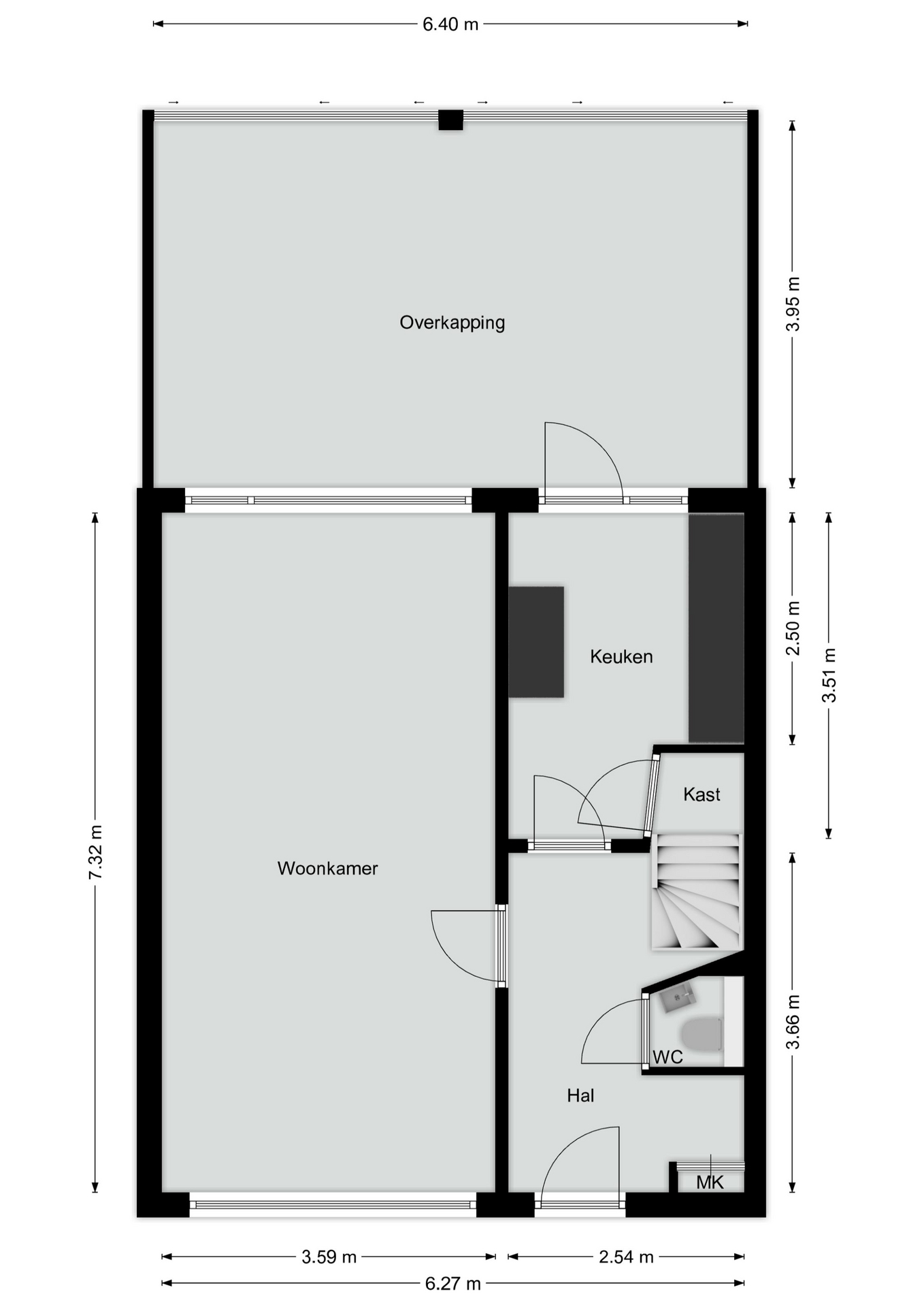
Indeling:

Begane grond:
De ruime voortuin is onderhoudsvriendelijk aangelegd. De moderne kunststof voordeur geeft een welkome en frisse uitstraling aan dit huis. De hal is voorzien van een laminaatvloer, de meterkast en de geheel betegelde toiletruimte met zwevend toilet en fonteintje. Er is een lichte woonkamer 7.32 x 3.58 eveneens met laminaatvloer en stucwerkwanden. De gesloten keuken heeft een frisse en neutrale uitstraling door de witte, greeploze keukeninstallatie met donker werkblad. De keuken is voorzien van de volgende inbouwapparatuur: gaskookplaat, afzuigkap, oven, koelkast, vrieskast, vaatwasser en Quookerkraan. Er is extra veel bergruimte door de handige kelderkast in de keuken.

Eerste verdieping:
De overloop biedt toegang tot 3 slaapkamers, respectievelijk 3.61 x 3.45 met balkon, 3.58 x 2.57 en 2.57 x 2.57. De voormalige badkamer is nu in gebruik als fijne wasruimte. De huidige badkamer is licht en ruim, geheel betegeld en voorzien van een ligbad met spatwand, wastafelmeubel, zwevend toilet en een bijpassende badkamerkast.

Tweede verdieping:
Deze is met een vlizotrap bereikbaar en gesplitst in twee ruimtes. Aan een zijde is de combi c.v.-installatie (Remeha 2020 gehuurd) en aan de andere zijde is een kamer 3.62 x 2.32 met een dakraam. Het is mogelijk om een vaste trap te maken en een vierde slaapkamer te realiseren.

Buiten:
Vanuit de keuken is de luxe overkapping bereikbaar. Deze is royaal 6.40 x 3.95 en is voorzien van glazen schuifpanelen, zo kun je lekker veel buiten zitten. De tuin is onderhoudsvriendelijk en ongeveer 12 meter diep en ligt op het noordwesten, hier is de hele dag een plek in de zon. Vanuit de achtertuin is er een poortje die als achteringang naar het achtergelegen pad gebruikt kan worden en is de garage bereikbaar. Deze garage is 5.82 x 3.04 en heeft een sectionaal poort, deze garage is met de auto bereikbaar vanaf de Admiraal Helfrichstraat. Hier is ook een eigen oprit.

Bijzonderheden:
* Met een achteruitgang en een garage met eigen oprit.
* Geheel kunststof kozijnen met isolerende beglazing.
* Luxe overkapping met glazen schuifpanelen.
* 2 airco’s en 14 zonnepanelen.
* Onderhoudsvriendelijke voor- en achtertuin.
* Dicht bij de basisschool en de andere uitgebreide voorzieningen van Herten.

Locatie:
De Oude Roermondseweg ligt aan de rand van Herten, maar ook aan de rand van Roermond. Vanuit hier zijn alle dagelijkse voorzieningen binnen handbereik, zoals twee supermarkten, bakker, drogisterij, kluswinkel, huishoudelijke artikelenwinkel met speelgoedafdeling en postagentschap, twee basisscholen, kinderdagverblijven en een rijk verenigingsleven. Er zijn uitgebreide sportvoorzieningen, waaronder voetbalvelden, tennisbanen, sporthal en fitness/healthcentre. Daarnaast is er op watersport en recreatiegebied vanalles te beleven door de nabijheid van de Maas, de Maasplassen en de jachthaven.
Het stadscentrum van Roermond met zijn uitgebreide voorzieningen en winkelcentrum is binnen 5 minuten bereikbaar. Door de ligging in de nabijheid van de autosnelwegen A2 en A73 zijn de steden Maastricht (30 autominuten), Eindhoven (35 autominuten), Düsseldorf (35 autominuten), Venlo (25 autominuten) en Nijmegen (45 autominuten) goed bereikbaar.

Aan de Oude Roermondseweg ligt deze goed afgewerkte, instapklare gezinswoning met garage en eigen oprit, luxe overkapping en een ruime tuin. Het huis heeft een goede ruimteverdeling en veel praktische bergruimte. Het heeft kunststof kozijnen met isolerende beglazing, zonnepanelen en airco’s. Het is een fijne plek om te wonen: aan…

Kenmerken

  • Status Verkocht onder voorbehoud
  • Vraagprijs € 360.000,- k.k.
  • Aanvaarding In overleg
  • Soort woonhuis Tussenwoning
  • Soort bouw Bestaande bouw
  • Bouwjaar 1963
  • Soort dak Zadeldak
  • Onderhoud binnen Goed
  • Onderhoud buiten Goed
  • Gebruiksoppervlakte wonen ca. 92 m2
  • Oppervlakte gebouwgebonden ca. 27 m2
  • Externe bergruimte ca. 18 m2
  • Overige inpandige ruimte ca. 15 m2
  • Inhoud ca. 352 m3
  • Perceeloppervlakte ca. 343 m2
  • Aantal kamers 4 kamers
  • Aantal slaapkamers 3
  • Aantal woonlagen 3 woonlagen
  • Voorzieningen Mechanische ventilatie, rolluiken, airconditioning, dakraam, glasvezel kabel, zonnepanelen
  • Energielabel C
  • Isolatie Dakisolatie, hr glas
  • Verwarming Cv ketel
  • Warm water Cv ketel
  • C.v.-ketel type Gas
  • C.v.-ketel bouwjaar 2020
  • Eigendom Huur
  • Ligging In woonwijk
  • Hoofdtuin Achtertuin
  • Oppervlakte hoofdtuin ca. 78 m2
  • Ligging hoofdtuin Noordwest
  • Achterom Ja
  • Kwaliteit tuin Normaal
  • Parkeerfaciliteiten Openbaar parkeren
  • Garage Vrijstaand steen
Meer kenmerken Minder kenmerken

Plattegronden

Statistieken

Cijfers voor de wijk

Burgerlijke staat

  • Gehuwd
  • Ongehuwd
  • Gescheiden
  • Verweduwd

Leeftijd in gemeente

Leeftijd buurtbewoners

  • 0-15 22%
  • 15-15 8%
  • 25-45 30%
  • 45-65 26%
  • 65+ 14%

Benieuwd naar de waarde van je woning?

Maak dan een afspraak voor een gratis waardebepaling zonder verplichtingen.

Even binnenkijken?

Neem vrijblijvend contact met ons op.