Ortjensveldweg 14
Landelijk in het rustig en uniek gelegen buurtschap “de Etsberg” te Vlodrop (Limburg) ligt deze vrijstaande woning. Licht en ruimte zijn kenmerken die deze woning het beste omschrijven, met een woonoppervlakte van maar liefst 224 m2 en een perceelsoppervlakte van 1000 m2. Dit aangevuld met de fijne ligging, vormt dat deze woning een heerlijke plek is die garant staat voor jarenlang woonplezier. De woning is gebouwd in 1995, volledig geïsoleerd, voorzien van vloerverwarming begane grond, 29 zonnepanelen, en 4 airco’s. De zonnepanelen gecombineerd met de airco’s zijn ideaal om het gasverbruik te verminderen. De woning heeft dan ook energielabel A.
Het levensloopbestendige karakter van de woning, met een badkamer en slaapkamer op de begane grond, maakt dat de woning voor een grote doelgroep toegankelijk is. Door de ligging met een grote diversiteit aan groen, verveelt het uitzicht hier nooit! Geniet van het vrije uitzicht aan de voorzijde van de woning! Een ruime privacyvolle tuin op het westen maakt het woongenot compleet!
Indeling
Begane grond
Hal/entree voorzien van een tegelvloer met trapopgang, meterkast, garderobenis en toegang tot de slaapkamer begane grond, badkamer begane grond, toiletruimte en woonkamer/keuken. Royale woonkamer voorzien van een tegelvloer en airco-installatie. Door de aanwezigheid van vele raampartijen is er prettig lichtinval en fijn contact aan de achterzijde naar de tuin toe, aan de voorzijde mooi vrij uitzicht over de landerijen. Door middel van de tuindeuren is er een mogelijkheid om via de woonkamer de tuin te betreden. Halfopen keuken in een U-opstelling die is voorzien van de navolgende installaties: magnetron, oven, koelkast, 6-pitsgaskookplaat, afzuigkap, dubbele spoelbak, vaatwasser en diverse opbergkastjes en lades. De totale woonoppervlakte van de woonkamer en keuken bedraagt maar liefst circa 73 m2. Vanuit de keuken is er toegang tot een praktische bijkeuken (circa 12 m2) met aansluitpunten voor het witgoed en toegang tot de achtertuin.
De woning is levensloopbestendig door de aanwezigheid van een ruime badkamer en slaapkamer begane grond. Vanuit de hal is er toegang tot deze ruimtes. De slaapkamer is circa 21 m2 en voorzien van een vloerbedekking en een schuifkastenwand. De badkamer (circa 10 m2) is geheel betegeld en voorzien van een ligbad, douche, dubbele wastafel met meubel, designradiator en zwevend closet. Daarnaast is er ook een separaat gastentoilet, geheel betegeld en voorzien van een zwevend closet en fonteintje. Doordat er in de hal een vide aanwezig is geeft dit een leuk speels en ruimtelijk effect door de hoogte.
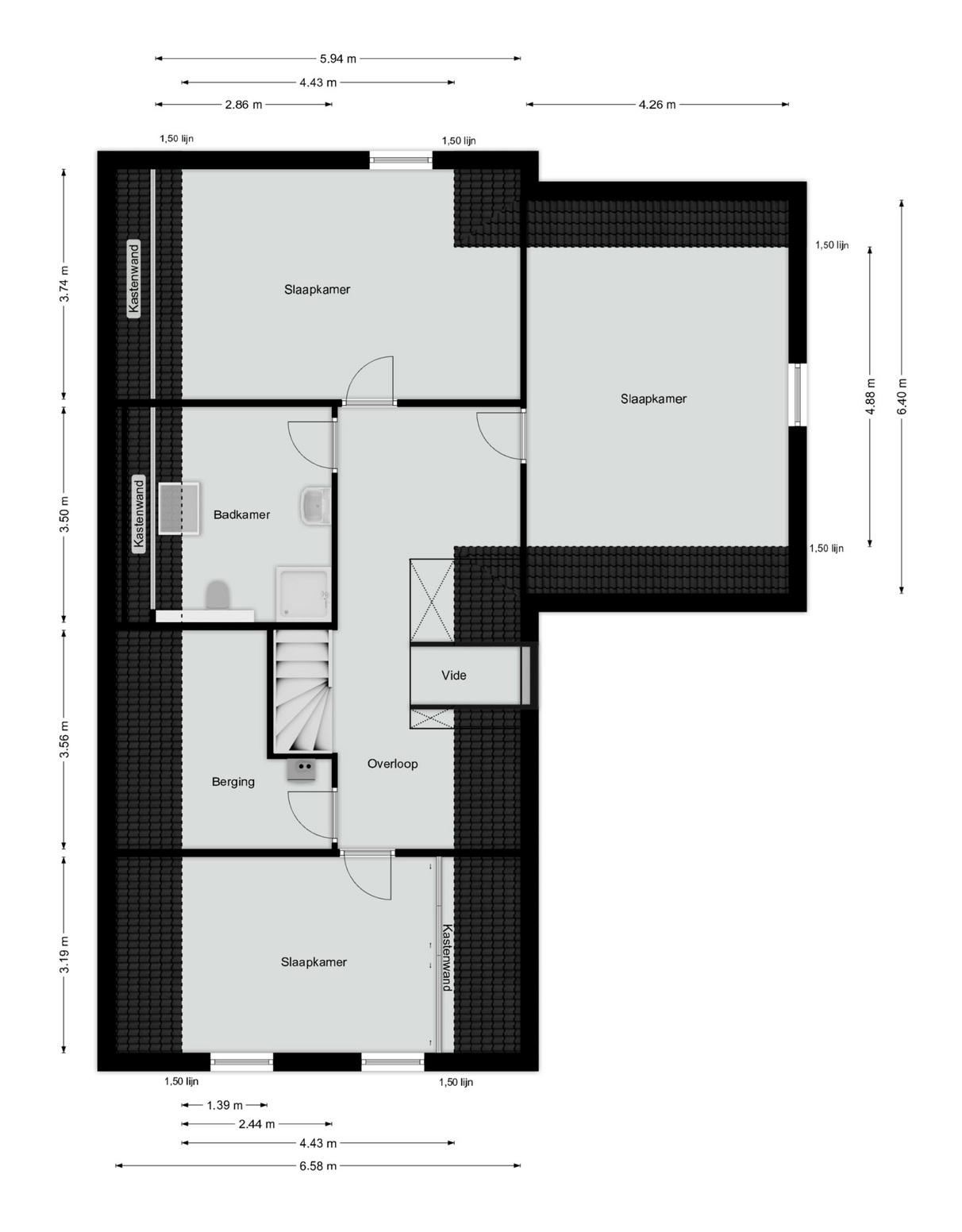
Eerste verdieping
Ruime overloop die toegang geeft tot de ruim bemeten slaapkamers, badkamer en berging. De overloop is voorzien van een dakkapel. De slaapkamers zijn respectievelijk circa. 21 m2, 19 m2 en 14 m2 en allen voorzien van een vloerbedekking. Daarnaast zijn alle slaapkamers op de bovenverdieping voorzien van een eigen airco-installatie. De badkamer is circa 9 m2, geheel betegeld en voorzien van een douche, wastafel en zwevend closet. Door de aanwezigheid van een groot dakraam is hier ook voldoende daglicht aanwezig. Praktisch op de verdieping is ook dat er voldoende opbergruimte aanwezig is. Dit is aanwezig in de verschillende knieschotten met schuifdeuren systeem alsook in de berging (circa. 7 m2). Deze berging is eveneens voorzien van opstelling cv-ketel (Nefit, eigendom) en verdere installaties.
Tuin
Riante voor- en achtertuin op een perceel van 1000 m2. De achtertuin is westelijk georiënteerd en voorzien van beklinkering, gazon, diverse bomen en beplantingen. De achtertuin is geheel omheind en achterom toegankelijk middels een poort. Er is een grote garage aanwezig (circa 36 m2) die is voorzien van elektra, krachtstroom en een royale vliering voor opberging. De voortuin is deels beklinkerd en deels voorzien van gazon. Er is een ruime oprit alwaar plaats is voor meerdere auto’s. Extra uniek is de vrijheid aan de voorzijde doordat er uitzicht is over de landerijen.
Bijzonderheden
– Wonen op de uniek gelegen “Etsberg”;
– Fantastische en rustige ligging met mooi vrij uitzicht aan de voorzijde over de landerijen;
– Prettige indeling met ruime kamers;
– Woonoppervlakte van maar liefst 224 m2 en perceelsoppervlakte 1000 m2;
– Energielabel A;
– Volledige isolatie, dubbele beglazing en HR-beglazing;
– 4 airco’s en 29 zonnepanelen;
– Vloerverwarming begane grondvloer;
– Op steenworp afstand van Nationaal Park De Meinweg;
– Alle dagelijkse voorzieningen binnen handbereik;
– Goede bereikbaarheid door de ligging nabij de A73.
Omgeving
Vlodrop waartoe het Buurtschap “de Etsberg” behoort is gelegen aan de Duitse grens en hier stroomt de meanderende rivier de Roer Nederland binnen. Het is een afwisselend landelijke en bosrijke omgeving. Het ligt aan de rand van het Nationaal Park De Meinweg met haar uitgestrekte bossen, heide en velden, ideaal om te fietsen en te wandelen. Ook het Duitse achterland heeft vele mogelijkheden om te genieten van de omgeving.
Vlodrop is een van de dorpen van de groene gemeente Roerdalen. Het grondgebied beslaat nagenoeg de hele Roerstreek, met veel natuurschoon, en dankt zijn naam aan de meanderende rivier de Roer. Vlodrop is gelegen aan de Duitse grens en slechts 8 kilometer ten zuidoosten van de stad Roermond. Het is een afwisselend landelijke en bosrijke omgeving. Het is in de buurt van de Roer en het Nationaal Park De Meinweg met haar uitgestrekte bossen, heide en velden, ideaal om te fietsen en te wandelen. Het dorp beschikt over goede basisvoorzieningen, waaronder een basisschool, supermarkt, sporthal, diverse (sport) verenigingen (o.a. fanfare, voetbal (fusie met Posterholt), tennisclub, badmintonclub, turnen), fitnesscentrum, huisarts, tandarts, fysiotherapie en diverse horecagelegenheden.
Vlodrop beschikt over alle basis voorzieningen en ligt op circa 8 kilometer ten Zuidoosten van de stad Roermond met zijn vele Maasplassen, Designer Outlet Center, en sfeervolle en historische binnenstad.
Landelijk in het rustig en uniek gelegen buurtschap “de Etsberg” te Vlodrop (Limburg) ligt deze vrijstaande woning. Licht en ruimte zijn kenmerken die deze woning het beste omschrijven, met een woonoppervlakte van maar liefst 224 m2 en een perceelsoppervlakte van 1000 m2. Dit aangevuld met de fijne ligging, vormt dat…

Kenmerken
- Status Beschikbaar
- Vraagprijs € 650.000,- k.k.
- Aanvaarding In overleg
- Soort woonhuis Vrijstaande woning
- Soort bouw Bestaande bouw
- Bouwjaar 1995
- Soort dak Zadeldak
- Onderhoud binnen Goed
- Onderhoud buiten Goed
- Gebruiksoppervlakte wonen ca. 224 m2
- Externe bergruimte ca. 36 m2
- Inhoud ca. 797 m3
- Perceeloppervlakte ca. 1000 m2
- Aantal kamers 5 kamers
- Aantal slaapkamers 4
- Aantal badkamers 2 badkamers
- Badkamervoorzieningen Ligbad, toilet, douche, dubbele wastafel, toilet, douche, wastafel
- Aantal woonlagen 2 woonlagen
- Voorzieningen Mechanische ventilatie, alarminstallatie, rolluiken, tv kabel, airconditioning, dakraam, zonnepanelen
- Energielabel A
- Isolatie Dakisolatie, muurisolatie, vloerisolatie, dubbel glas, volledig geisoleerd, hr glas
- Verwarming Cv ketel
- Warm water Cv ketel
- C.v.-ketel type Gas
- C.v.-ketel bouwjaar 2012
- Eigendom Eigendom
- Ligging Aan rustige weg, vrij uitzicht, landelijk gelegen
- Hoofdtuin Achtertuin
- Oppervlakte hoofdtuin ca. 571 m2
- Ligging hoofdtuin West
- Achterom Ja
- Kwaliteit tuin Fraai aangelegd
- Schuur / berging Inpandig
- Aantal schuren / bergingen 1
- Parkeerfaciliteiten Openbaar parkeren, op eigen terrein, op afgesloten terrein
- Garage Vrijstaand steen
Plattegronden




Cijfers voor de wijk
Burgerlijke staat
- Gehuwd
- Ongehuwd
- Gescheiden
- Verweduwd
Leeftijd in gemeente
Leeftijd buurtbewoners
- 0-15 12%
- 15-15 9%
- 25-45 21%
- 45-65 38%
- 65+ 19%
Benieuwd naar de waarde van je woning?
Maak dan een afspraak voor een gratis waardebepaling zonder verplichtingen.
Downloads
Even binnenkijken?
Neem vrijblijvend contact met ons op.
