Op de Rooter 7
Vrijstaande woning gelegen op een zeer geliefde locatie in de woonwijk ‘In de Mehre’ . Een rustige en kindvriendelijke woonomgeving met een groot wandel -en speelpark. De wijk is gelegen aan de dorpsrand van Susteren en grenst aan een bosrijk gebied.
Niet alleen qua ligging maar ook qua architectuur, met heel veel lichtinval en contact met de prachtige tuin en afwerking, is deze villa uniek. De grote oppervlakte en speelse indeling zorgen voor een geweldige woonbeleving. De woning is uiteraard voorzien van alle comfort en luxe die past bij een hedendaagse woning.
Daarnaast is deze schitterende gezinswoning, met vier slaapkamers en twee badkamers, levensloopbestendig en duurzaam. De gehele woning is voorzien van ruimtethermostaten. Zo zijn de woonkamer, slaapkamers en de badkamer los van elkaar in te regelen qua temperatuur wat zeer comfortabel en duurzaam is. Op het dak van de woning zijn 22 zonnepanelen aangebracht welke zorgen voor de opwekking van elektriciteit waardoor het huis heel energiezuinig is.
Begane grond:
Wanneer we binnenkomen in de hal treffen we de meterkast en een ruim gastentoilet voorzien van fonteintje. Vanuit de royale ontvangsthal toegang tot de verdieping, het woongedeelte en de inpandige garage.
In het woongedeelte (circa 58 m2), voorzien van een stijlvolle tegelvloer valt meteen de ruimte en de grote raampartijen op. Hierdoor is er veel natuurlijk daglicht en veel contact met de omgeving. Er is een naadloze overgang tussen de luxe keuken met kookeiland, de eetkamer en de zitkamer. Perfect voor het ontvangen van gasten en het creëren van een gezellige sfeer, zeker ook door de aanwezige (gas) sfeerhaard van Bellfires. De begane grond is echt een fantastische plek om quality-time door te brengen met je gezin en vrienden. Vanuit elke hoek heb je een mooi zicht op de tuin door de grote raampartijen. En als het mooi weer is, zet je de schuifpui open en ontstaat er een vloeiende overgang tussen binnen en buiten met het grote overkapte terras direct achter de woning.
De luxe keuken aan de voorzijde van de woning is voorzien van granietenbladen en inbouwapparatuur (inductiekookplaat, inbouwafzuigkap, stoomoven, magnetronoven, koelkast, diepvries en vaatwasser). Vanuit de keuken is goed zicht op de fraai aangelegde voortuin.
De slaapkamer op de begane grond met parketvloer is aan de achterzijde gelegen en heeft door de grote raampartijen met schuifpui een prettig contact met de tuin. De slaapkamer is voorzien van een hoogwaardige kasten wand en inbouw kasten waardoor er aan opbergruimte geen gebrek is. En suite treffen we de luxe afgewerkte badkamer met zowel ligbad als inloopdouche, dubbele wastafel en zwevend toilet.
Inpandige garage voorzien van een sectionaalpoort en tevens voorzien van een keukenopstelling met veel kastruimte en met de aansluitingen voor witgoed.
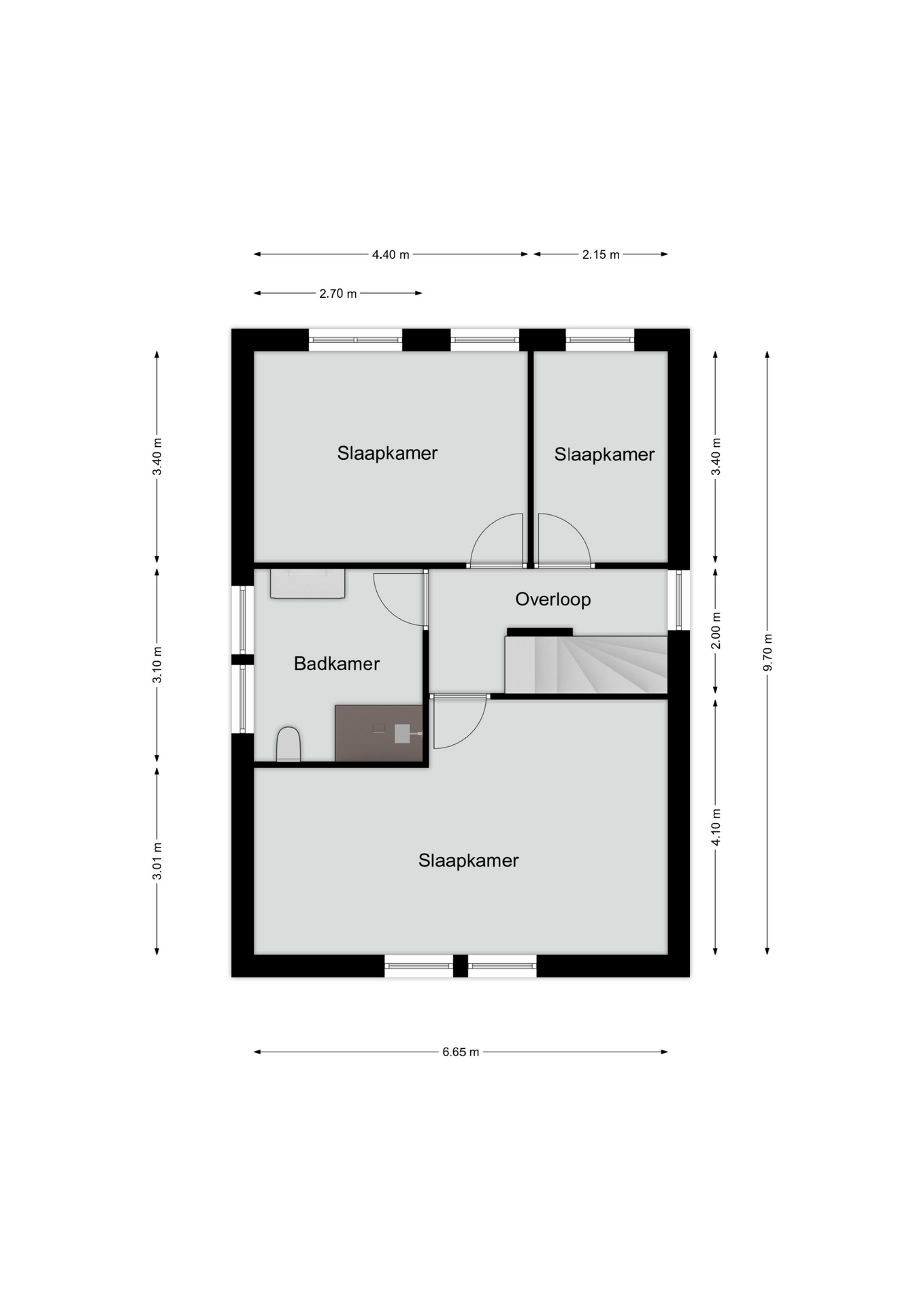
Eerste verdieping:
Ook de verdieping is ruim van opzet met 3 ruime slaapkamers (respectievelijk 24 m2, 15 m2 en 7 m2) en de tweede badkamer. Deze verdieping is voorzien van een laminaatvloer. Zeker voor een gezin met kinderen is de tweede badkamer een pré.
Tweede verdieping:
Via vaste trap is deze verdieping bereikbaar. Hier zijn de installaties geplaatst en is voldoende bergruimte.
De tuin:
De tuin is gelegen achter de woning, biedt veel privacy en is geheel omsloten. Het ruime terras direct achter de woning biedt ruimte voor een grote eettafel om heerlijk met gezin en vrienden te eten en te genieten.
De tuin is aangelegd met mooie perken met een variëteit aan beplanting, sierbestrating, een vijverpartij en een waterelement. De tuin is gelegen op het Noord-Oosten, door de diepte van de tuin is er altijd een plek in de zon en in de schaduw te vinden. De tuin heeft een zij-ingang naar de straat en een achteringang met dubbele poort. Achter in de tuin is er nog een sfeervol terras en een vrijstaande, gemetselde tuinberging voorzien van elektra. De tuin is voorzien van een beregeningsysteem.
De oprit biedt plaats aan meerdere auto’s, zodat er voldoende parkeergelegenheid is op eigen terrein.
Bijzonderheden:
– Prettige ligging in de gewilde wijk “In de Mehre”.
– Luxe afwerking, er is gebruik gemaakt van kwalitatief goede materialen.
– Gehele woning is voorzien van kunststof kozijnen met isolerende beglazing.
– De woning is optimaal geïsoleerd, energielabel A, NB de zonnepanelen zijn nog niet opgenomen in dit energielabel.
– Voorzien van een aardwarmtepomp, 22 zonnepanelen, alarminstallatie en een domotica systeem.
Omgeving:
De woning is gelegen in de gewilde wijk ‘In de Mehre’ nabij het centrum van Susteren, op loopafstand van alle winkelvoorzieningen, basisschool en station. De wijk heeft een moderne uitstraling en in de wijk is een parkachtige groenvoorziening met voldoende speelmogelijkheden voor kinderen. Susteren heeft goede voorzieningen, een NS-station en is gunstig gelegen ten opzichten van Echt en Sittard. De woning is gelegen nabij de uitvalswegen, de autosnelweg A2 richting Roermond/Eindhoven en Heerlen/Maastricht is op enkele autominuten verwijderd.
Vrijstaande woning gelegen op een zeer geliefde locatie in de woonwijk ‘In de Mehre’ . Een rustige en kindvriendelijke woonomgeving met een groot wandel -en speelpark. De wijk is gelegen aan de dorpsrand van Susteren en grenst aan een bosrijk gebied. Niet alleen qua ligging maar ook qua architectuur,…

Kenmerken
- Status Beschikbaar
- Vraagprijs € 825.000,- k.k.
- Aanvaarding In overleg
- Soort woonhuis Vrijstaande woning
- Soort bouw Bestaande bouw
- Bouwjaar 2010
- Soort dak Tentdak
- Onderhoud binnen Uitstekend
- Onderhoud buiten Uitstekend
- Gebruiksoppervlakte wonen ca. 168 m2
- Oppervlakte gebouwgebonden ca. 30 m2
- Externe bergruimte ca. 7 m2
- Overige inpandige ruimte ca. 45 m2
- Inhoud ca. 765 m3
- Perceeloppervlakte ca. 860 m2
- Aantal kamers 5 kamers
- Aantal slaapkamers 4
- Aantal badkamers 2 badkamers
- Badkamervoorzieningen Toilet, wastafelmeubel, inloopdouche, vloerverwarming, ligbad, toilet, dubbele wastafel, wastafelmeubel, inloopdouche, vloerverwarming
- Aantal woonlagen 3 woonlagen
- Voorzieningen Mechanische ventilatie, alarminstallatie, rolluiken
- Energielabel A
- Isolatie Volledig geisoleerd
- Verwarming Vloerverwarming geheel, warmtepomp, aardwarmte, gashaard
- Warm water Elektrische boiler eigendom
- Ligging In woonwijk
- Hoofdtuin Achtertuin
- Oppervlakte hoofdtuin ca. 490 m2
- Ligging hoofdtuin Noordoost
- Achterom Ja
- Kwaliteit tuin Fraai aangelegd
- Schuur / berging Vrijstaand steen
- Aantal schuren / bergingen 1
- Voorzieningen Voorzien van elektra
- Parkeerfaciliteiten Openbaar parkeren, op eigen terrein
- Garage Inpandig
Plattegronden



Cijfers voor de wijk
Burgerlijke staat
- Gehuwd
- Ongehuwd
- Gescheiden
- Verweduwd
Leeftijd in gemeente
Leeftijd buurtbewoners
- 0-15 15%
- 15-15 10%
- 25-45 21%
- 45-65 34%
- 65+ 21%
Benieuwd naar de waarde van je woning?
Maak dan een afspraak voor een gratis waardebepaling zonder verplichtingen.
Downloads
Even binnenkijken?
Neem vrijblijvend contact met ons op.
