Terug naar overzicht
Herten

Op de Peelberg 15

€ 379.000, - k.k.

Aan de rand van Merum (Herten) ligt de rustige woonstraat Op de Peelberg met verkeersluwe hofjes waaraan bungalows zijn gegroepeerd. Deze bungalow heeft als voordeel dat in de tuin veel privacy is. Hier is het heerlijk buiten zitten én onderhoudsvriendelijk. Dit is levensloopbestendig wonen met maar liefst 3 slaapkamers en een garage en berging.

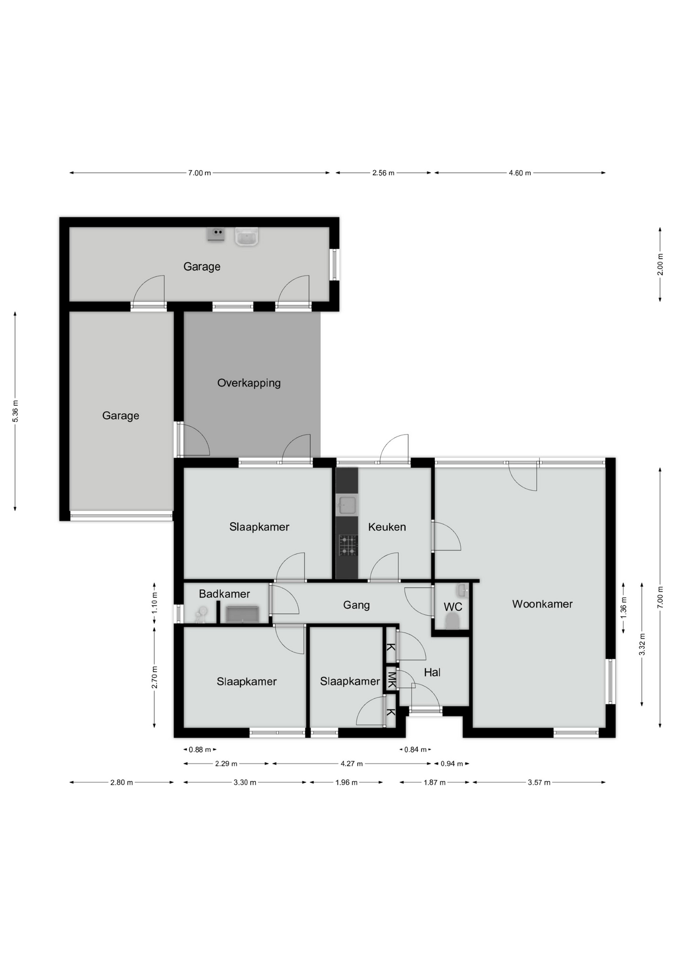
Indeling:
De ontvangsthal is licht en heeft een goede plek voor de garderobe. Hier is de meterkast en de toiletruimte (deze is deels betegeld en voorzien van een zwevend toilet en een fonteintje). De woonkamer is L-vormig en licht, deze kijkt aan de voorzijde uit over het hofje en richting de straat. De woonkamer is 28 m² en heeft een parketvloer en een deur naar de tuin. De gesloten keuken 7,7 m² heeft een keukeninstallatie inclusief de navolgende inbouwapparatuur: gaskookplaat, afzuigkap, koelkast en vaatwasser. Vanuit de hal is er toegang tot drie slaapkamers, respectievelijk 12 m², 8,9m² en 5,3m². De badkamer is geheel betegeld en voorzien van een inloopdouche en een wastafelmeubel.

Tuin:
Vanuit de keuken en de woonkamer is er toegang tot de tuin. De tuin is geheel omsloten en heeft een zij-ingang. De tuin is gelegen op het oosten en door de lage omliggende bebouwing is er heel veel privacy en plek in de zon als in de schaduw te vinden.
Deze tuin is onderhoudsvriendelijk en heeft een terrasoverkapping 15m². Er is een gemetselde berging 14m²met hierin de combi c.v. (Remeha eigendom, bouwjaar onbekend) en de aansluitpunten voor wasapparatuur. Vanuit de overkapping is er toegang tot de garage 15m².

Ligging:
Op de Peelberg is een verkeersluwe straat aan de rand van Merum/Herten. Dit is een gewilde woonomgeving dankzij de goede dagelijkse voorzieningen en de goede bereikbaarheid. Alle denkbare voorzieningen zijn in de directe buurt, zoals o.a. een supermarkt, bakker, twee basisscholen, drogisterij, huishoudwinkel/speelgoedwinkel/postagentschap, bloemenwinkel, kluswinkel en kinderdagverblijven. Er zijn uitgebreide sportvoorzieningen, waaronder voetbalvelden, tennisbanen, sporthal en fitness/healthcentre. Daarnaast is er op watersport en recreatiegebied van alles te beleven door de nabijheid van de Maas, de Maasplassen en de jachthaven. Het centrum van Roermond met zijn uitgebreide voorzieningen en winkelcentrum is binnen 5 minuten bereikbaar. Door de ligging in de nabijheid van de autosnelwegen A2 en A73 zijn de steden Maastricht (30 autominuten), Eindhoven (35 autominuten), Düsseldorf (35 autominuten) en Nijmegen (45 autominuten) goed bereikbaar.

Bijzonderheden:
* Levensloopbestendig wonen met een fijne tuin met volop privacy.
* Geheel voorzien van hardhouten kozijnen en HR++ beglazing.
* Spouwmuurisolatie.
* Zeer mooie locatie, verkeersluw, aan de rand van Merum.
* Herten/Merum beschikt over zeer uitgebreide dagelijkse voorzieningen.
* Dorps woongevoel dichtbij het stadscentrum van Roermond.

Aan de rand van Merum (Herten) ligt de rustige woonstraat Op de Peelberg met verkeersluwe hofjes waaraan bungalows zijn gegroepeerd. Deze bungalow heeft als voordeel dat in de tuin veel privacy is. Hier is het heerlijk buiten zitten én onderhoudsvriendelijk. Dit is levensloopbestendig wonen met maar liefst 3 slaapkamers en…

Kenmerken

  • Status Beschikbaar
  • Vraagprijs € 379.000,- k.k.
  • Aanvaarding In overleg
  • Soort woonhuis Geschakelde woning
  • Soort bouw Bestaande bouw
  • Bouwjaar 1969
  • Soort dak Plat dak
  • Onderhoud binnen Goed
  • Onderhoud buiten Goed
  • Gebruiksoppervlakte wonen ca. 79 m2
  • Oppervlakte gebouwgebonden ca. 15 m2
  • Externe bergruimte ca. 29 m2
  • Inhoud ca. 267 m3
  • Perceeloppervlakte ca. 255 m2
  • Aantal kamers 4 kamers
  • Aantal slaapkamers 3
  • Aantal badkamers 1 badkamer
  • Badkamervoorzieningen Wastafelmeubel, inloopdouche
  • Aantal woonlagen 1 woonlagen
  • Voorzieningen Rolluiken
  • Energielabel D
  • Verwarming Cv ketel
  • Warm water Elektrische boiler eigendom
  • C.v.-ketel type Gas
  • Eigendom Eigendom
  • Ligging Aan rustige weg, in woonwijk
  • Hoofdtuin Achtertuin
  • Oppervlakte hoofdtuin ca. 78 m2
  • Ligging hoofdtuin Oost
  • Achterom Ja
  • Kwaliteit tuin Normaal
  • Schuur / berging Aangebouwd steen
  • Aantal schuren / bergingen 1
  • Voorzieningen Voorzien van verwarming, voorzien van elektra, voorzien van water
  • Parkeerfaciliteiten Openbaar parkeren
  • Garage Aangebouwd steen
Meer kenmerken Minder kenmerken

Plattegronden

Statistieken

Cijfers voor de wijk

Burgerlijke staat

  • Gehuwd
  • Ongehuwd
  • Gescheiden
  • Verweduwd

Leeftijd in gemeente

Leeftijd buurtbewoners

  • 0-15 22%
  • 15-15 8%
  • 25-45 30%
  • 45-65 26%
  • 65+ 14%

Benieuwd naar de waarde van je woning?

Maak dan een afspraak voor een gratis waardebepaling zonder verplichtingen.

Even binnenkijken?

Neem vrijblijvend contact met ons op.