Op de Heugden 48
Dit centraal gelegen herenhuis combineert ruimte, comfort en een fijne ligging met alle voorzieningen binnen handbereik. Met een royale woonoppervlakte, diepe tuin op het zuiden, twee luxe badkamers, inpandige garage en diverse extra ruimtes is dit een ideaal gezinshuis met talloze mogelijkheden.
Indeling
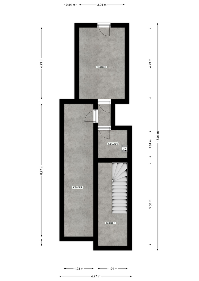
Souterrain
Vanuit de woning is de provisiekelder bereikbaar. Via de oprit en de tuin is er toegang tot de inpandige garage. Aansluitend bevinden zich de cv-ruimte en een wijnkelder. Daarnaast beschikt de woning over een separate tuinberging/fietsenstalling.
Tuin
De zonnige tuin van maar liefst 23 meter diep is gunstig gelegen op het zuiden en biedt veel privacy. Het terras is ideaal om van de buitenruimte te genieten.
Parterre
Entreehal met natuurstenen vloer en recent vernieuwde meterkast. De woonkamer met laminaatvloer en schouwpartij heeft een goede lichtinval. De gesloten keuken is uitgerust met oven, gaskookplaat en inbouwverlichting. Aangrenzend bevindt zich een praktische bijkeuken met separaat toilet en toegang tot het hoger gelegen terras.
Eerste verdieping
Ruime overloop met drie goed afgewerkte slaapkamers, allen voorzien van een doorlopende laminaatvloer. De moderne badkamer is volledig betegeld in natuursteenlook en beschikt over een luxe inloop-regendouche, vrijhangend toilet en wastafelmeubel met geïntegreerde ledverlichting.
Tweede verdieping
Deze verdieping biedt een royale overloop/study en nog eens twee slaapkamers, beide voorzien van Velux-dakramen. Eén slaapkamer beschikt over een inbouwkast. Op deze etage kan bovendien een tweede keukenblok gerealiseerd worden. De tweede badkamer is luxe uitgevoerd met inloop-regendouche, vrijhangend toilet, wastafelmeubel, kunststof duo-ligbad met whirlpoolfunctie, glazen scheidingswand, ingebouwde verlichting en een waterval. Vanaf deze verdieping geniet u van een panoramisch uitzicht over de omgeving.
Zolder
Via een vlizotrap is de ruime bergzolder bereikbaar.
Bijzonderheden
-Gehele woning voorzien van kunststof kozijnen, HR++ beglazing en rolluiken (deels elektrisch)
-Maar liefst 10 zonnepanelen aanwezig
-Zeer royaal woonhuis met veel mogelijkheden
-Centraal gelegen nabij station, scholen, bos en recreatie
Dit centraal gelegen herenhuis combineert ruimte, comfort en een fijne ligging met alle voorzieningen binnen handbereik. Met een royale woonoppervlakte, diepe tuin op het zuiden, twee luxe badkamers, inpandige garage en diverse extra ruimtes is dit een ideaal gezinshuis met talloze mogelijkheden. Indeling Souterrain Vanuit de woning is de…

Kenmerken
- Status Beschikbaar
- Vraagprijs € 299.000,- k.k.
- Aanvaarding In overleg
- Soort woonhuis Geschakelde woning
- Soort bouw Bestaande bouw
- Bouwjaar 1923
- Soort dak Mansarde dak
- Onderhoud binnen Redelijk tot goed
- Onderhoud buiten Redelijk tot goed
- Gebruiksoppervlakte wonen ca. 171 m2
- Overige inpandige ruimte ca. 71 m2
- Inhoud ca. 802 m3
- Perceeloppervlakte ca. 415 m2
- Aantal kamers 6 kamers
- Aantal slaapkamers 5
- Aantal badkamers 2 badkamers
- Badkamervoorzieningen Toilet, wastafel, inloopdouche, toilet, wastafelmeubel, inloopdouche, whirlpool
- Aantal woonlagen 5 woonlagen
- Voorzieningen Rolluiken, zonnepanelen
- Energielabel D
- Verwarming Cv ketel
- Warm water Cv ketel
- C.v.-ketel bouwjaar 2018
- Eigendom Eigendom
- Ligging In centrum
- Hoofdtuin Achtertuin
- Oppervlakte hoofdtuin ca. 258 m2
- Ligging hoofdtuin Zuid
- Achterom Ja
- Kwaliteit tuin Normaal
- Aantal schuren / bergingen 1
- Parkeerfaciliteiten Openbaar parkeren, op eigen terrein
- Garage Inpandig
Plattegronden





Cijfers voor de wijk
Burgerlijke staat
- Gehuwd
- Ongehuwd
- Gescheiden
- Verweduwd
Leeftijd in gemeente
Leeftijd buurtbewoners
- 0-15 13%
- 15-15 11%
- 25-45 21%
- 45-65 31%
- 65+ 24%
Benieuwd naar de waarde van je woning?
Maak dan een afspraak voor een gratis waardebepaling zonder verplichtingen.
Downloads
Even binnenkijken?
Neem vrijblijvend contact met ons op.
