Terug naar overzicht
Koningsbosch

Op de Driessen 67

€ 259.000, - k.k.

Deze goed onderhouden hoekwoning heeft een energielabel B, omdat er een nieuw geïsoleerd dak is gerealiseerd, hardhouten kozijnen met HR++ beglazing en spouwisolatie is toegevoegd (2018). Dit zorgt voor een fijn woonklimaat en is natuurlijk zeer gunstig voor de maandelijkse lasten. De achterkant van de woning is voorzien van rolluiken. Het huis heeft een fijne indeling met voldoende bergruimte. De tuin is gelegen op het zuidwesten en biedt veel rust en privacy doordat er geen directe achterburen zijn en er veel begroeiing staat op het achtergelegen perceel. Hier is het lekker zitten onder de terrasoverkapping. Het is gelegen in een fijne, rustige woonstraat, in het dorp Koningsbosch (Oppe Boesj).

Indeling:

Souterrain: handige provisiekelder 3.12 x 2.86.

Begane grond:
Lichte hal met meterkast en geheel betegelde toiletruimte. Gesloten keuken (3.20 x 2.90) met keukeninstallatie voorzien van de volgende apparatuur: gaskookplaat, afzuigkap en oven. De zonnige woonkamer 6.60 x 3.50 is voorzien van een laminaatvloer. De aanwezige schouw is nog intact, dus er kan eventueel een kachel op aangesloten worden.

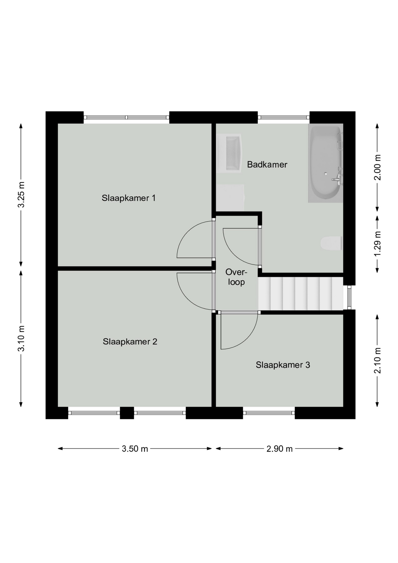
Eerste verdieping:
De overloop biedt toegang tot drie slaapkamers, respectievelijk 3.50 x 3.10, 3.25 x 3.10 en 2.90 x 2.10, alle voorzien van laminaatvloeren. De ruime badkamer is geheel betegeld en voorzien van vloerverwarming, ligbad, wastafelmeubel en tweede zwevend toilet. Hier is ook het aansluitpunt voor de wasmachine.

Tweede verdieping:
Middels een vlizotrap is de bergzolder bereikbaar. Hier is de combi c.v.-installatie geplaatst.

Tuin:
De tuin is geheel omsloten met een schutting en heeft een zij-ingang/achterom en een gemetselde berging 3.90 x 2.80. De tuin is gelegen op het zuidwesten en heeft een fijne terrasoverkapping. Deze tuin biedt optimale rust en privacy omdat er geen directe achterburen zijn en er veel begroeiing staat op het achtergelegen perceel.

Bijzonderheden:
– Energiezuinig huis: geïsoleerd dak en spouwmuurisolatie (2018),
– Geheel hardhouten kozijnen met HR++ beglazing,
– Achterkant woning voorzien van rolluiken,
– Fijne tuin met overkapping en veel privacy op het zuidwesten,
– Rustig wonen in een prima buurt.

Omgeving Koningsbosch (De Boesj):
Op De Driessen is een rustige woonstraat, op loopafstand van de basisschool, midden in het dorp. Koningsbosch biedt een goede verbinding tussen Zuid- en Midden-Limburg. Brunssum en Sittard zijn binnen 10 minuten bereikbaar, Heerlen en Roermond binnen 25 minuten. Het dorp heeft enkele basisvoorzieningen zoals basisschool, gemeenschapshuis, huisarts, fysio, boerderijwinkel, bloemenwinkel, enkele speciaalzaken en diverse verenigingen (o.a. tennis- en voetbalvereniging, scouting). In de onmiddellijke nabijheid zijn twee speeltuintjes aanwezig.

Vanuit Koningsbosch is Duitsland eenvoudig bereikbaar, de inwoners maken veelvuldig gebruik van het fijne winkelgebied van het naburige Waldfeucht met o.a. twee supermarkten. Koningsbosch, grenst direct aan de Duitse grens en is een van de vele kernen van de uitgestrekte gemeente Echt, Susteren, letterlijk het smalste stukje Nederland.

Deze goed onderhouden hoekwoning heeft een energielabel B, omdat er een nieuw geïsoleerd dak is gerealiseerd, hardhouten kozijnen met HR++ beglazing en spouwisolatie is toegevoegd (2018). Dit zorgt voor een fijn woonklimaat en is natuurlijk zeer gunstig voor de maandelijkse lasten. De achterkant van de woning is voorzien van rolluiken.

Kenmerken

  • Status Beschikbaar
  • Vraagprijs € 259.000,- k.k.
  • Aanvaarding In overleg
  • Soort woonhuis Hoekwoning
  • Soort bouw Bestaande bouw
  • Bouwjaar 1968
  • Soort dak Zadeldak
  • Onderhoud binnen Goed
  • Onderhoud buiten Goed
  • Gebruiksoppervlakte wonen ca. 85 m2
  • Oppervlakte gebouwgebonden ca. 8 m2
  • Externe bergruimte ca. 11 m2
  • Overige inpandige ruimte ca. 28 m2
  • Inhoud ca. 366 m3
  • Perceeloppervlakte ca. 185 m2
  • Aantal kamers 4 kamers
  • Aantal slaapkamers 3
  • Aantal badkamers 1 badkamer
  • Badkamervoorzieningen Ligbad, toilet, wastafelmeubel
  • Aantal woonlagen 4 woonlagen
  • Voorzieningen Rolluiken
  • Energielabel B
  • Isolatie Dakisolatie, muurisolatie
  • Verwarming Cv ketel
  • Warm water Cv ketel
  • C.v.-ketel type Gas
  • Eigendom Eigendom
  • Ligging In woonwijk
  • Hoofdtuin Achtertuin
  • Oppervlakte hoofdtuin ca. 70 m2
  • Ligging hoofdtuin Zuidwest
  • Achterom Ja
  • Kwaliteit tuin Normaal
  • Schuur / berging Vrijstaand steen
  • Aantal schuren / bergingen 1
  • Voorzieningen Voorzien van elektra
  • Parkeerfaciliteiten Openbaar parkeren
  • Garage Geen garage
Meer kenmerken Minder kenmerken

Plattegronden

Statistieken

Cijfers voor de wijk

Burgerlijke staat

  • Gehuwd
  • Ongehuwd
  • Gescheiden
  • Verweduwd

Leeftijd in gemeente

Leeftijd buurtbewoners

  • 0-15 13%
  • 15-15 9%
  • 25-45 21%
  • 45-65 36%
  • 65+ 21%

Benieuwd naar de waarde van je woning?

Maak dan een afspraak voor een gratis waardebepaling zonder verplichtingen.

Even binnenkijken?

Neem vrijblijvend contact met ons op.