Terug naar overzicht
Vlodrop

Oerraede 6

€ 319.000, - k.k.

Goed onderhouden twee-onder-een-kapwoning gelegen in een rustige straat met de voorzieningen in de directe omgeving. De woning is onder andere voorzien van een aanbouw, 2 slaapkamers, garage, 2 zolders en fijne tuin met overkapping.

Indeling

Begane grond
Entree/hal voorzien van een laminaatvloer met trapopgang, meterkast en toegang tot de woonkamer, garage en toilet. Betegelde toiletruimte met zwevend closet en fonteintje. Ruime L-vormige woonkamer (circa 27 m2) welke is voorzien van eenzelfde laminaatvloer. Door de grote ramen is er prettig lichtinval. Verder is er een praktische trapkast aanwezig. Aan de achterzijde is de keuken gelegen, deze is half open en geplaatst in een hoekopstelling met de volgende installaties: combi-magnetron, koelkast, vaatwasser, spoelbak, afzuiging, 4-pits gaskookplaat en diverse opbergkasten en lades. Achter de keuken is een aanbouw gerealiseerd (circa 16 m2) waardoor er een fijne extra leefruimte aanwezig is, ideaal als bijvoorbeeld eetkamer. Door de aanwezigheid van een schuifpui is er prettig tuincontact en tevens lichtinval. De totale woonoppervlakte van de woonkamer, keuken en aanbouw bedraagt circa 48 m2. De garage (circa 20 m2) is inpandig bereikbaar en voorzien van een tegelvloer, elektrische sectionaalpoort, verwarming en middels een vlizotrap is er toegang tot een bergzolder (circa 9 m2). Ook is er een aparte berging (9 m2) aanwezig met aansluitpunten voor het witgoed en toegang tot de achtertuin.

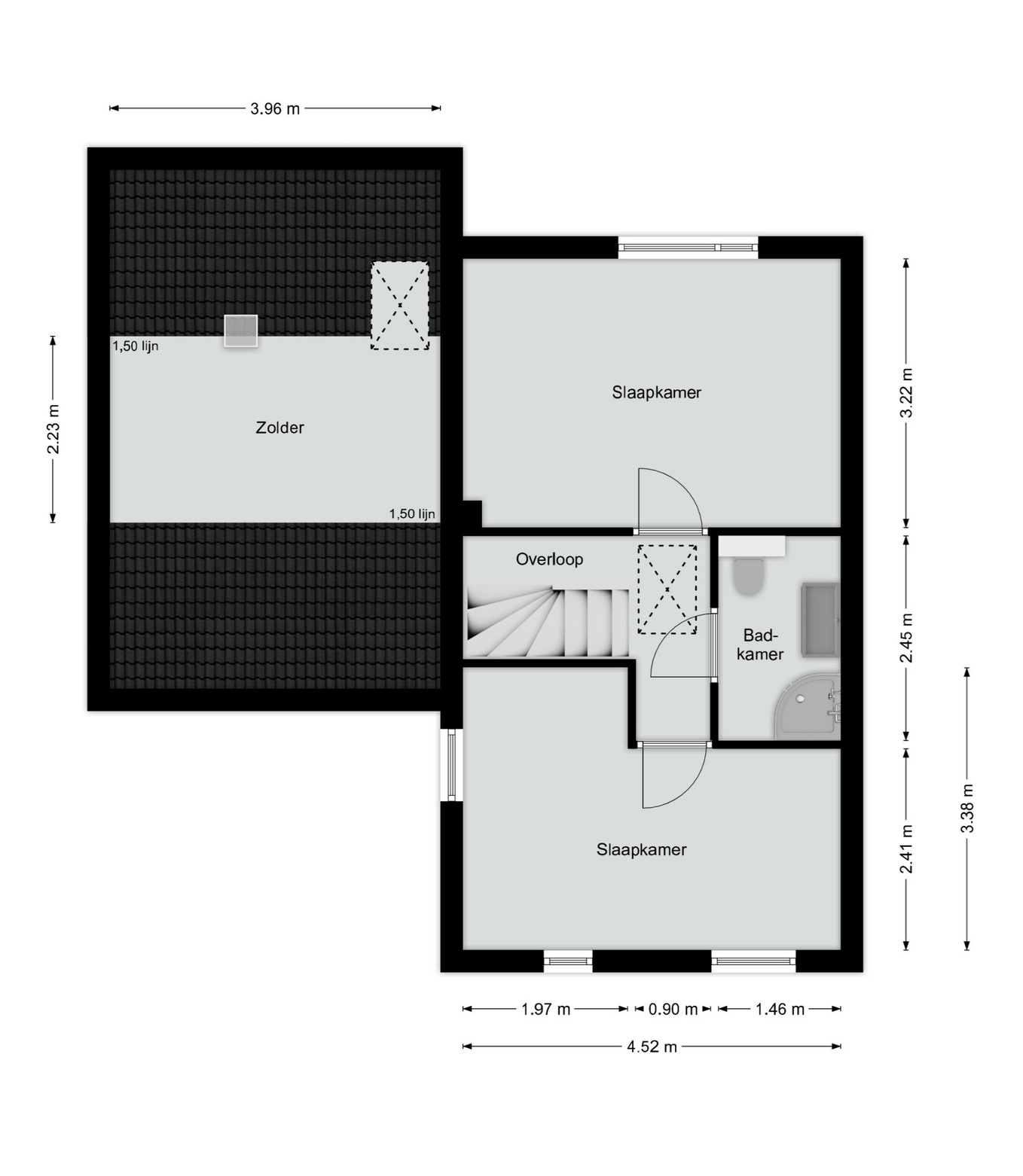
Eerste verdieping
Overloop die toegang geeft tot de twee slaapkamers en de badkamer. De slaapkamers zijn respectievelijk circa 13 m2 en 15 m2, allen voorzien van laminaatvloeren en rolluiken. Het is eenvoudig mogelijk om een slaapkamer op te splitsen zodat er in totaal drie slaapkamers zijn. Ter inspiratie is er een extra plattegrond hiervan toegevoegd. De badkamer is geheel betegeld, circa 4 m2 en voorzien van een douche, wastafel met meubel, designradiator en zwevend closet.

Tweede verdieping
Bereikbaar middels vlizotrap. Bergzolder (circa 16 m2) met opstelling combi cv-ketel (Remeha, huur). Ideaal te gebruiken als opbergruimte.

Tuin
De achtertuin is zuidwestelijk georiënteerd en voorzien van een fijne terrasoverkapping en tuinhuisje (circa 5 m2). De tuin is grotendeels onderhoudsvriendelijk aangelegd en voorzien van betegeling, split en borders met beplantingen. De voortuin is ook onderhoudsvriendelijk aangelegd en voorzien van een oprit.

Algemeen
– Goed onderhouden twee-onder-een-kapwoning met aanbouw;
– Achtertuin op het zuidwesten, voorzien van fijne terrasoverkapping;
– Voorzien van vloerisolatie, muurisolatie, dakisolatie;
– Deels voorzien van dubbele beglazing;
– Energielabel C;
– De slaapkamers zijn voorzien van rolluiken;
– Veel opbergruimte door de aanwezigheid van een inpandige garage met zolder, berging, trapkast en zolder boven woning;
– Alle dagelijkse voorzieningen binnen handbereik;
– De natuur alsook nationaal park de Meinweg in de directe omgeving;
– Goede bereikbaarheid door de ligging aan de A2 en A73.

Omgeving
Deze woning is centraal gelegen in Vlodrop met verschillende voorzieningen alsook de natuur in de directe omgeving. Vlodrop is een van de dorpen van de groene gemeente Roerdalen. Het grondgebied beslaat nagenoeg de hele Roerstreek, met veel natuurschoon, en dankt zijn naam aan de meanderende rivier de Roer. Vlodrop is gelegen aan de Duitse grens en slechts 8 kilometer ten zuidoosten van de stad Roermond. Het is een afwisselend landelijke en bosrijke omgeving. Het is in de buurt van de Roer en het Nationaal Park De Meinweg met haar uitgestrekte bossen, heide en velden, ideaal om te fietsen en te wandelen. Het dorp beschikt over goede basisvoorzieningen, waaronder een basisschool, supermarkt, sporthal, diverse (sport) verenigingen (o.a. fanfare, voetbal (fusie met Posterholt), tennisclub, badmintonclub, turnen), fitnesscentrum, huisarts, tandarts, fysiotherapie en diverse horecagelegenheden.

Goed onderhouden twee-onder-een-kapwoning gelegen in een rustige straat met de voorzieningen in de directe omgeving. De woning is onder andere voorzien van een aanbouw, 2 slaapkamers, garage, 2 zolders en fijne tuin met overkapping. Indeling Begane grond Entree/hal voorzien van een laminaatvloer met trapopgang, meterkast en toegang tot…

Kenmerken

  • Status Verkocht onder voorbehoud
  • Vraagprijs € 319.000,- k.k.
  • Aanvaarding In overleg
  • Soort woonhuis Geschakelde twee onder een kapwoning
  • Soort bouw Bestaande bouw
  • Bouwjaar 1984
  • Soort dak Zadeldak
  • Onderhoud binnen Goed
  • Onderhoud buiten Goed
  • Gebruiksoppervlakte wonen ca. 104 m2
  • Oppervlakte gebouwgebonden ca. 13 m2
  • Externe bergruimte ca. 5 m2
  • Overige inpandige ruimte ca. 45 m2
  • Inhoud ca. 516 m3
  • Perceeloppervlakte ca. 230 m2
  • Aantal kamers 4 kamers
  • Aantal slaapkamers 3
  • Aantal badkamers 1 badkamer
  • Badkamervoorzieningen Toilet, douche, wastafel, wastafelmeubel
  • Aantal woonlagen 3 woonlagen
  • Voorzieningen Mechanische ventilatie, rolluiken, tv kabel, airconditioning, schuifpui
  • Energielabel C
  • Isolatie Dakisolatie, muurisolatie, gedeeltelijk dubbel glas
  • Verwarming Cv ketel
  • Warm water Cv ketel
  • C.v.-ketel type Gas
  • C.v.-ketel bouwjaar 2020
  • Eigendom Huur
  • Ligging Aan rustige weg, in woonwijk, beschutte ligging
  • Hoofdtuin Achtertuin
  • Oppervlakte hoofdtuin ca. 86 m2
  • Ligging hoofdtuin Zuidwest
  • Kwaliteit tuin Normaal
  • Schuur / berging Inpandig
  • Aantal schuren / bergingen 1
  • Parkeerfaciliteiten Openbaar parkeren, op eigen terrein
  • Garage Inpandig
Meer kenmerken Minder kenmerken

Plattegronden

Statistieken

Cijfers voor de wijk

Burgerlijke staat

  • Gehuwd
  • Ongehuwd
  • Gescheiden
  • Verweduwd

Leeftijd in gemeente

Leeftijd buurtbewoners

  • 0-15 12%
  • 15-15 9%
  • 25-45 21%
  • 45-65 38%
  • 65+ 19%

Benieuwd naar de waarde van je woning?

Maak dan een afspraak voor een gratis waardebepaling zonder verplichtingen.

Even binnenkijken?

Neem vrijblijvend contact met ons op.