Terug naar overzicht
Kerkrade

Nummer II-Straat 36

€ 385.000, - k.k.

In de geliefde locatie “Holz”‘ mogen wij u deze instapklare en sfeervolle jaren’ 25 woning aanbieding.
De woning is voorzien van 3 ruime slaapkamers met mogelijkheid tot 4 slaapkamers en een ruime tuin. De woning is gelegen aan de Nummer II-straat 36 te Kerkrade.

Indeling:
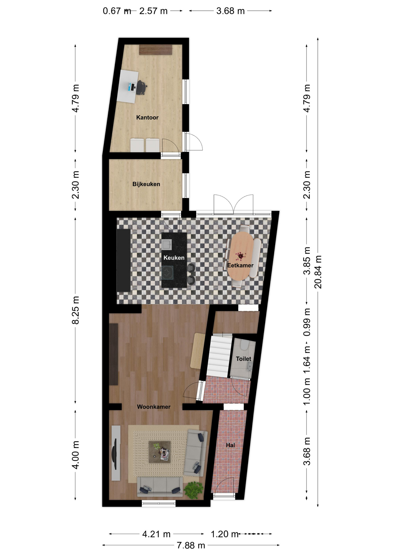
Souterrain:
Het souterrain is onderverdeeld in 2 ruimten.
Deze ruimte zijn groot ca. 11 m² en 12 m² en hebben een goede sta-hoogte.

Indeling:
Middels de hal/entree met tegelvloer, bordes trapopgang, ruime deels betegelde toiletruimte met staand toilet en fonteintje komt u in de woonkamer en open keuken.
De ruime woonkamer en open keuken zijn groot ca. 64 m² en zijn voorzien van grote raampartijen en een lichtkoepel.
De opmaat gemaakte shutters maken de sfeer geheel compleet.
De woonkamer is voorzien van een laminaatvloer en de keuken is voorzien van een geblokte tegelvloer.
Achter de keuken is een ruime bijkeuken, deze is groot ca. 8 m².
Daarachter gelegen is nog een ruime kamer, welke nu in gebruik is als werkkamer. Deze kamer is groot ca. 14 m². In deze ruimte is de aansluiting voor de wasmachine gerealiseerd.

Vanuit deze kamer is de tuin middels een deur te bereiken.
De tuin is eveneens middels openslaande deuren via de keuken te bereiken.

De verassend ruime tuin is gelegen op het zuiden en is tevens via een zij-ingang te bereiken.
De tuin is voorzien van ruime terrassen, houten pergola, gazon en borders.
Tevens is in de tuin een houten berging aanwezig.

In deze tuin kunt u optimaal geniet van de rust en dat terwijl u zo dicht bij het centrum van Kerkrade woont.

1e Verdieping:
Middels de overloop zijn de 2 ruimte slaapkamers en de badkamer te bereiken.
De slaapkamers zijn respectievelijk groot ca. 13 m² en 15 m² en zijn voorzien van een laminaatvloer.
De geheel betegelde badkamer is groot ca. 8 m² en is voorzien van een douche, dubbele vaste wastafel met ombouw en zwevend toilet.

2e Verdieping:
Middels de vaste trap is de zeer ruime 3e slaapkamer te bereiken. De slaapkamer is groot ca. 28 m².
Tevens is hier een berging alwaar een tweede Cv-ketel is gesitueerd.

Bijzonderheden:
– De woning is voorzien van kunststof kozijnen.
– De woning is voorzien van dubbele beglazing.
– De woning is voorzien van dakisolatie
– De woning is voorzien van 9 zonnepanelen, welke eigendom zijn.
– De CV ketel is eigendom.
– De keuken is voorzien van vloerverwarming en van vloerisolatie.
– Op de begane grond is een airco aanwezig.
– Er bestaat de mogelijkheid om een garage te huren. (op korte afstand van de woning)

In de geliefde locatie “Holz”‘ mogen wij u deze instapklare en sfeervolle jaren’ 25 woning aanbieding. De woning is voorzien van 3 ruime slaapkamers met mogelijkheid tot 4 slaapkamers en een ruime tuin. De woning is gelegen aan de Nummer II-straat 36 te Kerkrade. Indeling: Souterrain: Het…

Kenmerken

  • Status Beschikbaar
  • Vraagprijs € 385.000,- k.k.
  • Aanvaarding In overleg
  • Soort woonhuis Hoekwoning
  • Soort bouw Bestaande bouw
  • Bouwjaar 1925
  • Soort dak Zadeldak
  • Onderhoud binnen Goed
  • Onderhoud buiten Goed
  • Gebruiksoppervlakte wonen ca. 176 m2
  • Externe bergruimte ca. 5 m2
  • Overige inpandige ruimte ca. 24 m2
  • Inhoud ca. 733 m3
  • Perceeloppervlakte ca. 250 m2
  • Aantal kamers 5 kamers
  • Aantal slaapkamers 3
  • Aantal badkamers 1 badkamer
  • Badkamervoorzieningen Toilet, dubbele wastafel, wastafelmeubel, inloopdouche
  • Aantal woonlagen 4 woonlagen
  • Voorzieningen Rolluiken, airconditioning, zonnepanelen
  • Energielabel E
  • Isolatie Dakisolatie, dubbel glas
  • Verwarming Cv ketel
  • Warm water Cv ketel
  • C.v.-ketel type Gas
  • Eigendom Eigendom
  • Ligging Aan rustige weg, in woonwijk
  • Hoofdtuin Achtertuin
  • Oppervlakte hoofdtuin ca. 126 m2
  • Ligging hoofdtuin Zuid
  • Achterom Ja
  • Kwaliteit tuin Normaal
  • Schuur / berging Vrijstaand hout
  • Parkeerfaciliteiten Openbaar parkeren
  • Garage Geen garage
Meer kenmerken Minder kenmerken

Plattegronden

Statistieken

Cijfers voor de wijk

Burgerlijke staat

  • Gehuwd
  • Ongehuwd
  • Gescheiden
  • Verweduwd

Leeftijd in gemeente

Leeftijd buurtbewoners

  • 0-15 11%
  • 15-15 9%
  • 25-45 21%
  • 45-65 30%
  • 65+ 30%

Benieuwd naar de waarde van je woning?

Maak dan een afspraak voor een gratis waardebepaling zonder verplichtingen.

Even binnenkijken?

Neem vrijblijvend contact met ons op.