Moltweg 70
Op royaal perceel, in bosrijke omgeving gelegen, goed onderhouden, vrijstaande bungalow met royale oprit, inpandige garage, carport, 24 zonnepanelen en 3 slaapkamers. Gelegen aan de Moltweg 70 te Landgraaf/ Schaesberg
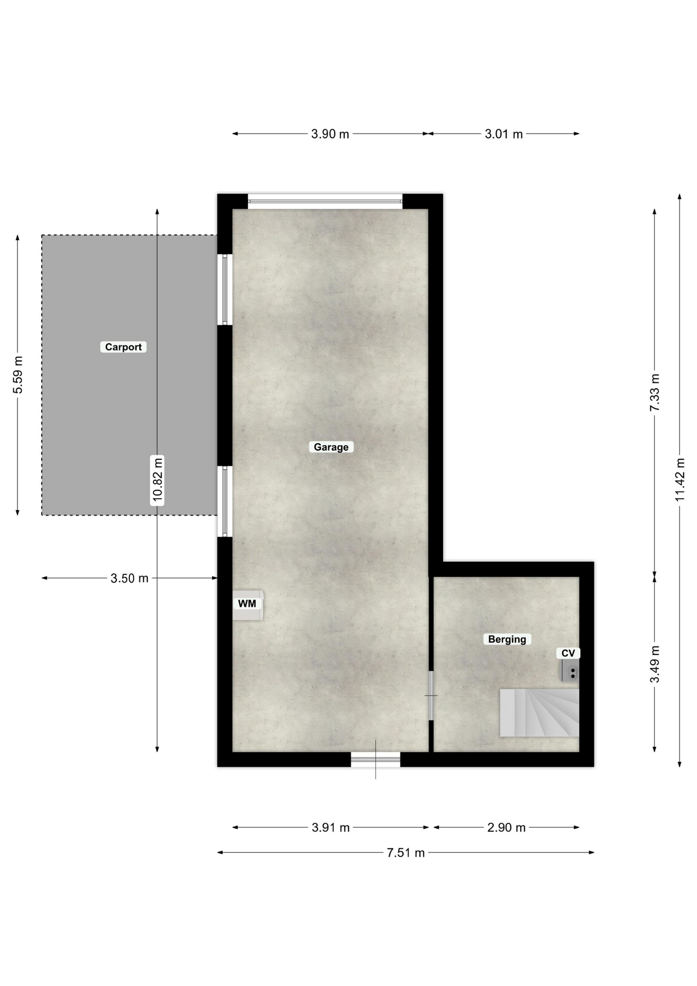
Souterrain / Garage:
Via de oprit is de ruime, verwarmde garage bereikbaar, geschikt voor het parkeren van één à twee auto’s. De garage is voorzien van aansluitpunten voor witgoedapparatuur, een vernieuwde elektrische rolpoort en een praktische loopdeur met directe toegang tot de tuin. Vanuit de garage is er toegang tot de technische ruimte/provisiekelder welke u tevens toegang verschaft middels een trap tot de centrale ontvangsthal.
Carport:
Naast de garage beschikt de bungalow bovendien over een carport, die extra parkeergelegenheid biedt.
Parterre:
De woning is te betreden via de fraai aangelegde voortuin. De royale ontvangsthal biedt via dubbele hardglazen deuren toegang tot de lichte woonkamer en overige vertrekken. De vernieuwde meterkast (3-fase) bevindt zich in de hal, evenals het geheel betegelde vrijhangend toilet met fonteintje, radiator en raam voor natuurlijke ventilatie.
De royale L-vormige woonkamer is voorzien van een prachtige esdoorn volhouten parketvloer en een moderne inbouw gashaard. Dankzij de grote raampartijen aan meerdere zijden geniet men de gehele dag van een uitstekende lichtinval en een fraai uitzicht op de voor-, zij- en achtertuin. De woonkamer is ingedeeld in drie gedeelten: een tv-zitkamer, eetgedeelte en leeshoek.
De semi-open keuken is modern en tijdloos ingericht met een hoogglans witte keukeninstallatie, een granieten werkblad en een melkglazen achterwand. De gezellige eetbar vormt het hart van de ruimte. De keuken is verder uitgerust met hoogwaardige inbouwapparatuur van het merk “Bosch”, waaronder een vaatwasser, inductiekookplaat, afzuigkap, koel-vriescombinatie, oven, magnetron, bordenwarmer en een Quooker (2023). Vanuit hier heeft men toegang tot het overdekte terras met fraai zicht op de tuin.
Slaapvleugel:
Aan de tuinzijde bevindt zich de ouderslaapkamer 3.80 x 3.49 met fraai uitzicht op de achtertuin. Deze kamer is voorzien van een plafondunit airconditioning en geeft directe toegang tot de vernieuwde, moderne badkamer ensuite.
De luxe badkamer is volledig betegeld met betonlooktegels (60×60 cm) en uitgerust met een royale inloopdouche met zitje, inbouwkranen en regendouche. Het stijlvolle badkamermeubel is van “Burgbad” en er is een elektrische handdoekradiator en plafondunit (infrarood) aanwezig.
Naast de ouderslaapkamer bevinden zich nog twee slaapkamers van respectievelijk:
2) 2.83 x 2.08
3) 3.88 x 2.98
Tuin:
De verzorgde tuin rondom de woning biedt veel privacy en is zowel via de keuken, garage als beide zij-ingangen te bereiken. De combinatie van bloemrijke borders en een royaal speelgazon, omringd door hoge vliegdennen, geeft deze tuin een heerlijk beschut en bijna parkachtig gevoel. Ook de zuidelijke ligging maakt deze tuin tot een ideale plek om de hele dag van de zon te genieten.
Bijzonderheden:
– De bungalow is voorzien van muurisolatie (2016, parels);
– Energielabel B;
– De woning beschikt over 24 zonnepanelen (310 wp, bwj. 2019, eigendom);
– De badkamer is geheel gerenoveerd in 2023;
– De bungalow is gelegen op de fraai perceel van 1093m²;
– De keuken is van eind 2011;
– De bungalow is voorzien van 2 airco’s in de woonkamer en hoofdslaapkamer;
– De woonkamer is voorzien van een sfeervolle, moderne inbouw gashaard;
– De bungalow beschikt over een alarminstallatie;
– U beschikt over voldoende parkeermogelijkheden op eigen terrein (garage, oprit en carport);
– Het leefgedeelte is voorzien van hardhouten kozijnen met dubbele beglazing (HR ++);
– Het slaapgedeelte is voorzien van kunststof kozijnen en dubbele beglazing;
– De bungalow beschikt deels over rolluiken en screens;
– De bungalow is gelegen in een bosrijke omgeving nabij alle dagelijkse voorzieningen op loopafstand w.o.
winkels, tennisclub, openbaar vervoer, natuurgebied en uitvalswegen.
Op royaal perceel, in bosrijke omgeving gelegen, goed onderhouden, vrijstaande bungalow met royale oprit, inpandige garage, carport, 24 zonnepanelen en 3 slaapkamers. Gelegen aan de Moltweg 70 te Landgraaf/ Schaesberg Souterrain / Garage: Via de oprit is de ruime, verwarmde garage bereikbaar, geschikt voor het parkeren van één à…

Kenmerken
- Status Beschikbaar
- Vraagprijs € 529.000,- k.k.
- Aanvaarding In overleg
- Soort woonhuis Vrijstaande woning
- Soort bouw Bestaande bouw
- Bouwjaar 1962
- Soort dak Plat dak
- Onderhoud binnen Goed
- Onderhoud buiten Goed
- Gebruiksoppervlakte wonen ca. 125 m2
- Oppervlakte gebouwgebonden ca. 28 m2
- Overige inpandige ruimte ca. 53 m2
- Inhoud ca. 584 m3
- Perceeloppervlakte ca. 1093 m2
- Aantal kamers 4 kamers
- Aantal slaapkamers 3
- Aantal badkamers 1 badkamer
- Badkamervoorzieningen Wastafel, wastafelmeubel, inloopdouche
- Aantal woonlagen 2 woonlagen
- Voorzieningen Alarminstallatie, rolluiken, tv kabel, buitenzonwering, airconditioning, rookkanaal, zonnepanelen
- Energielabel B
- Isolatie Dakisolatie, muurisolatie, dubbel glas
- Verwarming Cv ketel
- Warm water Cv ketel
- C.v.-ketel type Gas
- C.v.-ketel bouwjaar 2024
- Eigendom Huur
- Ligging In woonwijk, in bosrijke omgeving
- Hoofdtuin Tuin rondom
- Achterom Ja
- Kwaliteit tuin Fraai aangelegd
- Schuur / berging Vrijstaand hout
- Aantal schuren / bergingen 1
- Parkeerfaciliteiten Openbaar parkeren, op eigen terrein
- Garage Inpandig, carport
Plattegronden


Cijfers voor de wijk
Burgerlijke staat
- Gehuwd
- Ongehuwd
- Gescheiden
- Verweduwd
Leeftijd in gemeente
Leeftijd buurtbewoners
- 0-15 13%
- 15-15 11%
- 25-45 21%
- 45-65 31%
- 65+ 24%
Benieuwd naar de waarde van je woning?
Maak dan een afspraak voor een gratis waardebepaling zonder verplichtingen.
Downloads
Even binnenkijken?
Neem vrijblijvend contact met ons op.
