Mercuriuspad 31
In het centrum van Heerlen gelegen, in het fraaie appartementencomplex Nassau Staete, mogen wij u dit ruime, goed onderhouden appartement met eigen parkeerplaats, balkon, lift en 2 slaapkamers aanbieden.
Indeling:
Parterre:
Via de gemeenschappelijke entree komt u in de ruime hal met bellentableau met videocom-installatie, brievenbussen, lift-/ en trapopgang en heeft u toegang tot de bergingen en de parkeergarage.
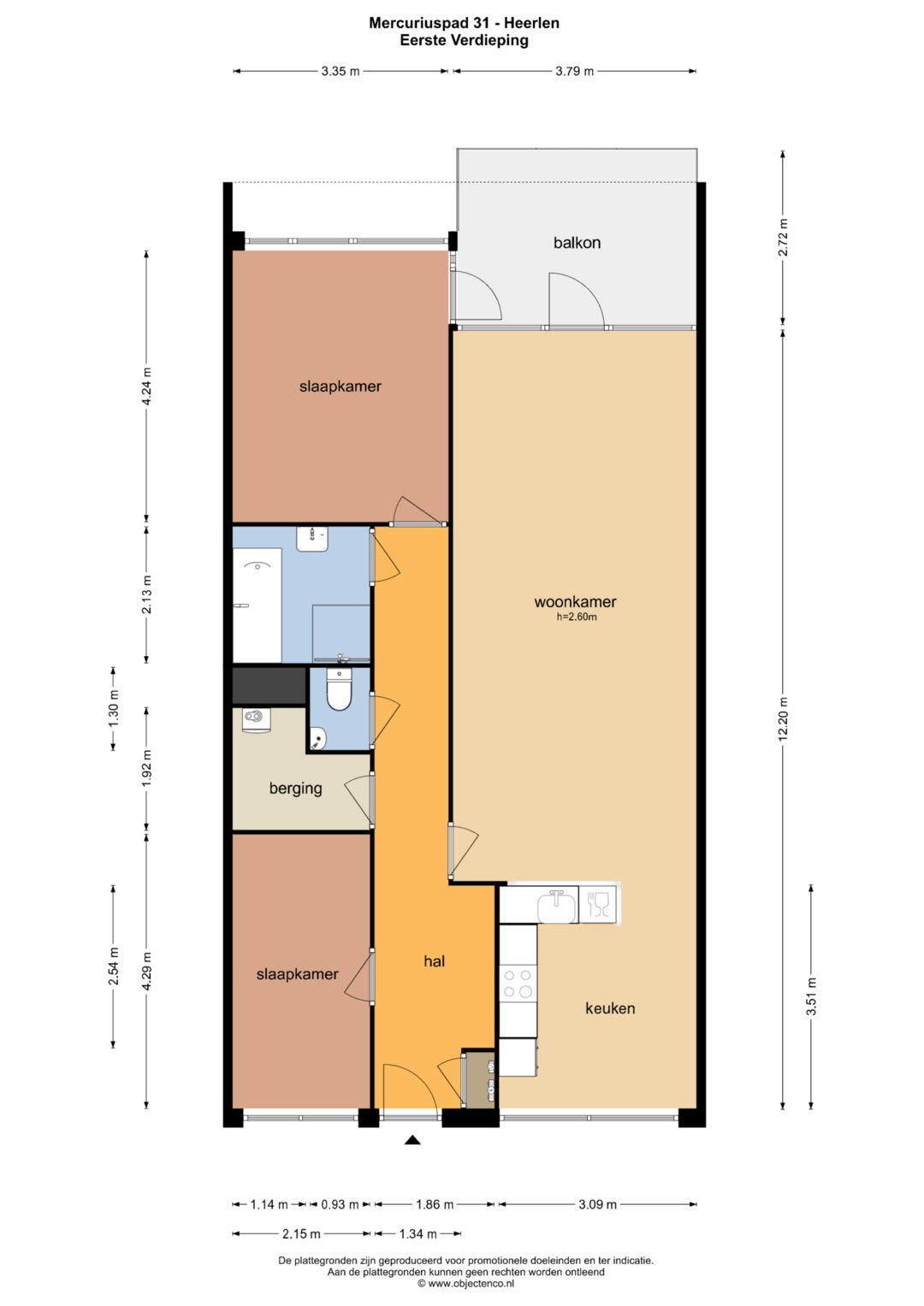
Indeling appartement vierde verdieping:
Royale hal met meterkast en garderobe. Deels betegelde toiletruimte met toilet en fonteintje. Technische ruimte alwaar zich de aansluitpunten voor witgoedapparatuur bevinden, alsmede de WTW installatie. Tevens is hier ook nog genoeg plek voor extra opslag. Geheel betegelde, moderne badkamer voorzien van ligbad, douche en wastafel. Ruime living met open keuken en toegang tot het ruime balkon. De keuken is voorzien van een nette keukeninstallatie in hoekopstelling voorzien van de navolgende apparatuur: koelkast met vriesvak, keramische kookplaat, vaatwasser en combimagnetron.
Ruime slaapkamer met directe toegang tot het balkon. De 2e slaapkamer is naast de ingang gelegen en zeer geschikt als bijvoorbeeld hobby-/ werkkamer of logeerkamer voor gasten.
Ruim balkon met voldoende ruimte om heerlijk buiten te vertoeven.
Algemeen:
– Energielabel A+
– Het appartement is voorzien van een laminaatvloer en recentelijk van binnen geschilderd.
– Priveberging in het souterrain alsmede een eigen parkeerplaats in de parkeergarage.
– Het appartement is voorzien van stadsverwarming.
– Huidige VVE bijdrage € 200,- (appartement) en € 15,- (parkeerplaats) per maand.
– Aanvaarding per direct!
– Projectnotaris Taylor Wessing N.V.
Het fraaie appartementencomplex kenmerkt zich door de moderne vormgeving en is gelegen op loopafstand van het Parkstad Limburg Theater, winkels en restaurants, maar ook het NS station ligt op steenworp afstand en uitvalswegen zijn in de directe nabijheid.
In het centrum van Heerlen gelegen, in het fraaie appartementencomplex Nassau Staete, mogen wij u dit ruime, goed onderhouden appartement met eigen parkeerplaats, balkon, lift en 2 slaapkamers aanbieden. Indeling: Parterre: Via de gemeenschappelijke entree komt u in de ruime hal met bellentableau met videocom-installatie, brievenbussen, lift-/ en…

Kenmerken
- Status Beschikbaar
- Vraagprijs € 349.000,- k.k.
- Aanvaarding In overleg
- Soort bouw Bestaande bouw
- Bouwjaar 2008
- Onderhoud binnen Goed
- Onderhoud buiten Goed
- Gebruiksoppervlakte wonen ca. 92 m2
- Oppervlakte gebouwgebonden ca. 10 m2
- Externe bergruimte ca. 5 m2
- Inhoud ca. 291 m3
- Aantal kamers 3 kamers
- Aantal slaapkamers 2
- Aantal badkamers 1 badkamer
- Badkamervoorzieningen Ligbad, douche, wastafel
- Aantal woonlagen 1 woonlagen
- Voorzieningen Mechanische ventilatie, lift
- Energielabel A+
- Isolatie Dakisolatie, muurisolatie, vloerisolatie, dubbel glas, volledig geisoleerd
- Verwarming Stadsverwarming
- Warm water Centrale voorziening
- Ligging In centrum
- Schuur / berging Box
- Aantal schuren / bergingen 1
- Garage Parkeerkelder
Plattegronden

Cijfers voor de wijk
Burgerlijke staat
- Gehuwd
- Ongehuwd
- Gescheiden
- Verweduwd
Leeftijd in gemeente
Leeftijd buurtbewoners
- 0-15 8%
- 15-15 13%
- 25-45 26%
- 45-65 26%
- 65+ 26%
Benieuwd naar de waarde van je woning?
Maak dan een afspraak voor een gratis waardebepaling zonder verplichtingen.
Downloads
Even binnenkijken?
Neem vrijblijvend contact met ons op.
