Terug naar overzicht
Urmond

Lindehagen 40

€ 545.000, - v.o.n.

NIEUWBOUWWONING

Jouw kans in Lindehagen is opnieuw beschikbaar!

DE LAATSTE TWEE-ONDER-EEN-KAPWONING
Goed nieuws voor wie nog droomt van wonen in Lindehagen: kavel 54 is opnieuw beschikbaar! Deze royale twee-onder-een-kapwoning combineert ruimte, comfort en toekomstbestendig wonen. De uitbouw van 1,2 meter op de begane grond zorgt voor extra leefruimte, perfect voor een ruime en lichte woonkeuken. Dankzij de brede schuifpui van 3,5 meter stroomt het daglicht rijkelijk naar binnen en geniet je van een mooi uitzicht op de diepe tuin en het omliggende groen. De woning heeft een vrije ligging, een praktische achterom naast de garage en biedt met drie slaapkamers, een ruime tweede verdieping en duurzame vloerverwarming en -koeling alles voor comfortabel wonen – nu en in de toekomst.

DE BOUW IS GESTART!
En dat op een bijzonder moment, want de bouw van fase 1B is inmiddels gestart. Dat betekent dat jouw toekomstige woning niet alleen een plan is, maar al écht in realisatie is. De eerste werkzaamheden zijn in volle gang en de wijk begint zichtbaar vorm te krijgen. Een unieke kans dus om nu nog in te stappen, terwijl de contouren van jouw nieuwe woonomgeving al tot leven komen. Lindehagen ligt aan de groene rand van Urmond en staat voor dorps wonen met een eigentijdse invulling. Ruimte, duurzaamheid en een sterke verbondenheid met de omgeving maken dit tot een plek waar je je direct thuis voelt.

Indeling

Begane grond:
De plattegrond van deze moderne woning is ruim opgezet met uitzicht over het intieme hofje vanuit de woonkamer en over de landelijke omgeving vanuit de leefkeuken. Via de schuifpui aan de achterzijde bereik je de royale achtertuin. Dankzij de grote raamopening ervaar je veel daglicht in de woning. Het perceel biedt ruimte voor een of twee parkeerplaatsen op eigen terrein en een gemetselde berging die volop ruimte biedt voor de fietsen en het tuingereedschap.

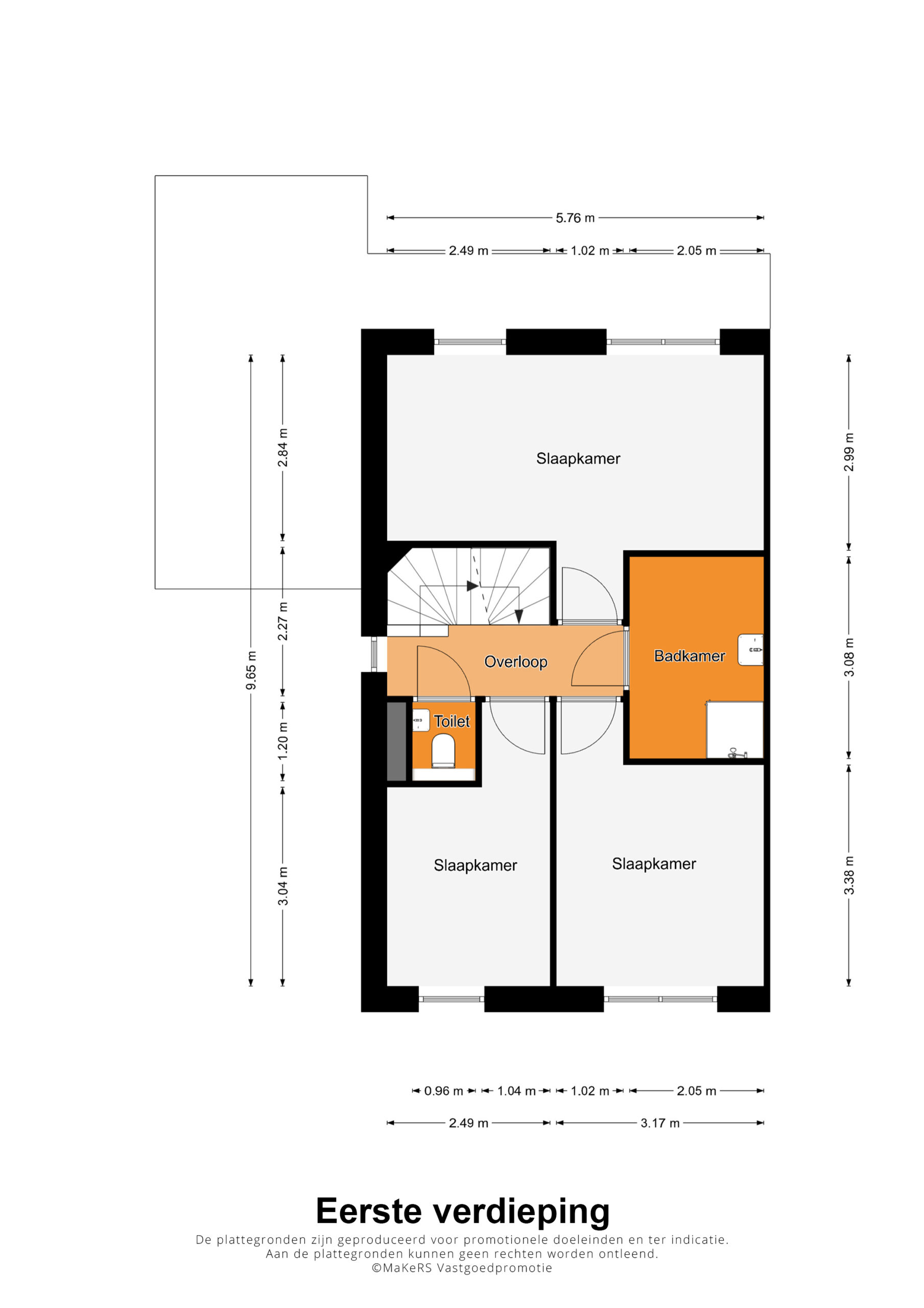
Eerste verdieping:
Op de eerste verdieping bevinden zich drie slaapkamers, waaronder een ruime master bedroom. Via de hal bereik je een compleet afgewerkte badkamer en separaat toilet voorzien van luxe wand- en vloertegels en sanitair van Villeroy en Boch.

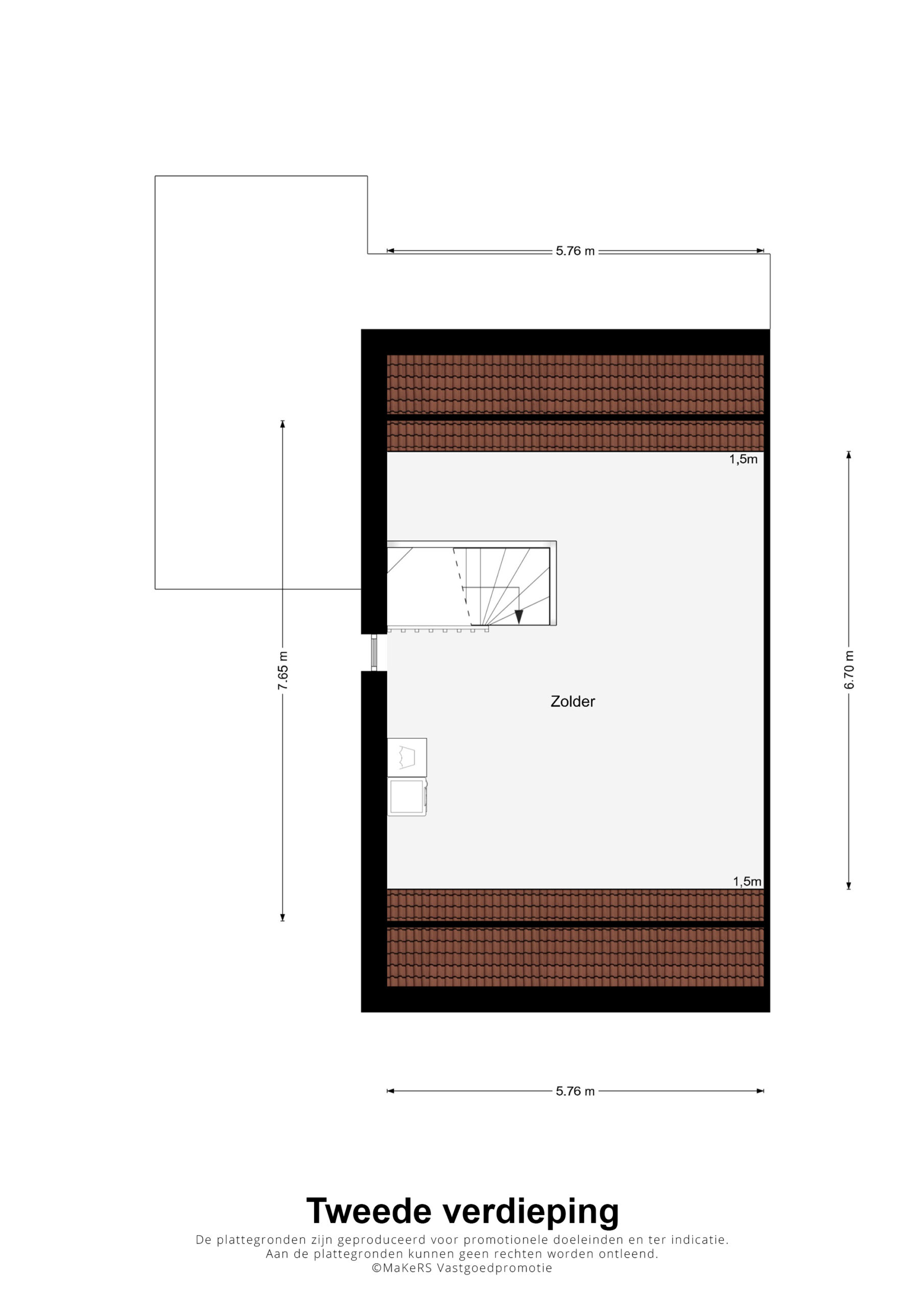
Tweede verdieping:
Via de vaste trap bereik je de ruime zolderverdieping. Deze biedt volop mogelijkheden voor het realiseren van een extra slaapkamer, werkkamer of hobbyruimte. Daarnaast bevinden zich op de zolder de technische installatie en de aansluitpunten voor een wasmachine en/of wasdroger.

Lindehagen wordt een bijzonder groene en duurzame woonwijk aan de dorpsrand van Urmond. Lindehagen is ontworpen vanuit haar rijke boeren verleden, met een moderne knipoog! Hier woon je heerlijk in een natuurlijke setting met prachtig uitzicht over het buitengebied. In de hele wijk is het landelijk en dorpse karakter voelbaar. De eigentijdse architectuur gebaseerd op haar boerenverleden, de Limburgse hagen, gebiedseigen bomen en bloemrijke bermen maken Lindehagen een groene en gezonde woonomgeving. Het landelijke karakter creëert een rustgevende setting waar je heerlijk woont, ontspant en geniet, dichtbij alle benodigde voorzieningen! Wil je graag een dagje winkelen in de outlet van Roermond of Maasmechelen Village, culinair uit eten en shoppen in Maastricht of de historische binnenstad van Sittard verkennen? Via de snelwegen A2, A76 en A73 ben je er in no-time. Dat geldt ook voor een heerlijk dagje uit in de prachtige, natuurrijke omgeving.

ENERGIEZUINIG EN DUURZAAM
Je nieuwe woning in Lindehagen is klaar voor de toekomst en zeer energiezuinig met minimaal energielabel A+++. Dit label wordt als volgt behaald:
– Luchtwarmtepomp;
– Zonnepanelen;
– Hoogwaardige dak-, vloer- en spouwisolatie;
– HR++ glas in de buitenkozijnen;
– Balansventilatie met warmteterugwinning.

Bijzonderheden:
– Een brede schuifpui van 3,5 meter zorgt voor volop licht en contact met de tuin;
– Vloerverwarming en vloerkoeling;
– Riante uitbouw van 1,2 meter aan de achterzijde voor extra leefruimte;
– Diepe tuin met volop privacy en ruimte om te ontspannen;
– Landelijke ligging in een rustig woonerf aan de rand van Urmond;
– Inclusief privé oprit en berging.

Inclusief kopersopties:
– Uitbouw achtergevel (1,20m);
– Aanbrengen kunststof schuifpui ca. 3,5m;
– Vorstvrije buitenkraan achtergevel;
– Vuilwaterriool achtergevel;
– Aanbrengen basis sanitair;
– Uitbreiding PVpanelen (totaal 3.720 WP);
– Mantelbuis t.b.v. gemetselde buitenberging;
– Aanpassing aansluitpunten keuken ter voorbereiding op een eventueel kook- of schiereiland.

De woningen zijn all electric en dus gasloos. Je hebt daardoor geen last van stijgende gasprijzen.
Met een energiezuinige en duurzame woning in Lindehagen heb je een laag energieverbruik, waardoor je minder afhankelijk bent van de energieprijzen.

Kijk voor meer informatie op www.lindehagen.nl of neem contact op met ons kantoor!

NIEUWBOUWWONING Jouw kans in Lindehagen is opnieuw beschikbaar! DE LAATSTE TWEE-ONDER-EEN-KAPWONING Goed nieuws voor wie nog droomt van wonen in Lindehagen: kavel 54 is opnieuw beschikbaar! Deze royale twee-onder-een-kapwoning combineert ruimte, comfort en toekomstbestendig wonen. De uitbouw van 1,2 meter op de begane grond zorgt voor extra leefruimte, perfect…

Kenmerken

  • Status Beschikbaar
  • Vraagprijs
  • Aanvaarding In overleg
  • Soort woonhuis Twee onder een kapwoning
  • Soort bouw Bestaande bouw
  • Bouwjaar 2026
  • Soort dak Zadeldak
  • Onderhoud binnen Uitstekend
  • Onderhoud buiten Uitstekend
  • Gebruiksoppervlakte wonen ca. 157 m2
  • Overige inpandige ruimte ca. 18 m2
  • Inhoud ca. 590 m3
  • Perceeloppervlakte ca. 415 m2
  • Aantal kamers 5 kamers
  • Aantal slaapkamers 4
  • Aantal badkamers 1 badkamer
  • Badkamervoorzieningen Wastafel, wastafelmeubel, inloopdouche
  • Aantal woonlagen 3 woonlagen
  • Voorzieningen Glasvezel kabel, zonnepanelen, balansventilatie
  • Energielabel A+++
  • Isolatie Dakisolatie, muurisolatie, vloerisolatie, volledig geisoleerd, hr glas
  • Verwarming Vloerverwarming geheel, warmtepomp
  • Warm water Elektrische boiler eigendom
  • Ligging In woonwijk, vrij uitzicht
  • Parkeerfaciliteiten Op eigen terrein
  • Garage Aangebouwd steen
Meer kenmerken Minder kenmerken

Plattegronden

Benieuwd naar de waarde van je woning?

Maak dan een afspraak voor een gratis waardebepaling zonder verplichtingen.

Even binnenkijken?

Neem vrijblijvend contact met ons op.