Lindehagen 36
NIEUWBOUWWONING
Deze ruime gezinswoning met 150 m² woonoppervlakte en een diepe en brede achtertuin met vrije, verkeersluwe ligging is ideaal voor koppels of gezinnen die op zoek zijn naar een duurzame nieuwe woning die zij volledig naar wens kunnen inrichten. De ruime begane grond biedt ruimte voor een leefkeuken, ruime eetkamer en gezellige woonkamer. Op de verdieping bevindt zich de masterbedroom met ruimte voor een inloopkast, een apart toilet, twee slaapkamers en volledig afgewerkte badkamer met luxe sanitair, tegelwerk en inloopdouche. De zolder leent zich ideaal als bergruimte, hobby- of werkruimte.
Gelegen aan de rand van Lindehagen in een landelijk georiënteerd hofje woon je in deze twee-onder-een-kap woning uniek aan het prachtige groene landschap van de nieuwbouwwijk Lindehagen aan een modern boerenerf, gelegen aan de rand van Urmond.
Indeling
Begane grond:
De plattegrond van deze moderne woning is ruim opgezet met uitzicht over het intieme hofje vanuit de woonkamer en over de landelijke omgeving vanuit de leefkeuken. Via de tuindeur aan de achterzijde bereik je de grote achtertuin met ligging op het zuiden. Dankzij de grote raamopening ervaar je veel daglicht in de woning. Het perceel biedt ruimte voor een of twee parkeerplaatsen op eigen terrein en een gemetselde berging die volop ruimte biedt voor de fietsen en het tuingereedschap.
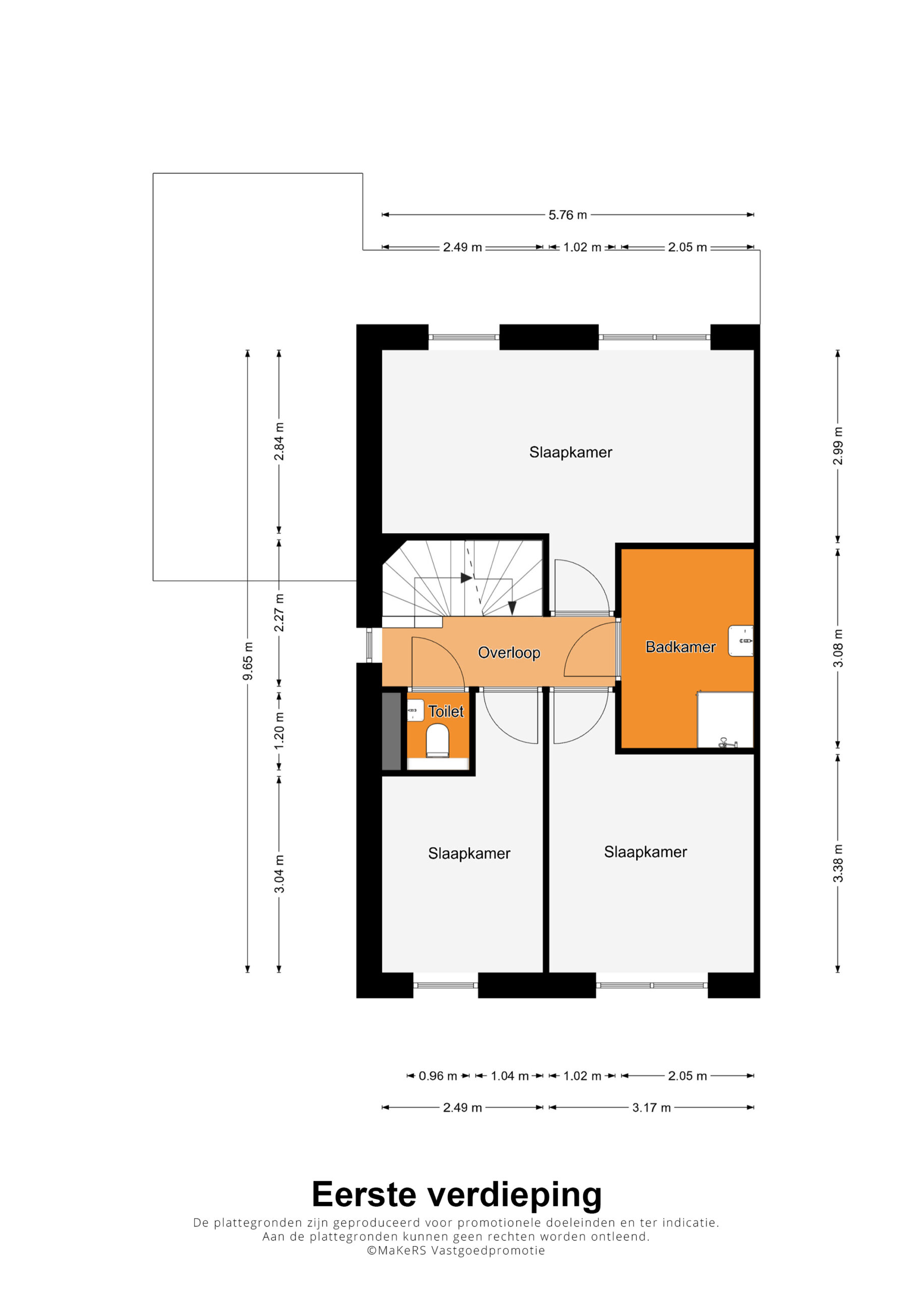
Eerste verdieping:
Op de eerste verdieping bevinden zich drie slaapkamers, waaronder een ruime master bedroom. Via de hal bereik je een compleet afgewerkte badkamer en separaat toilet voorzien van luxe wand- en vloertegels en sanitair van Villeroy en Boch.
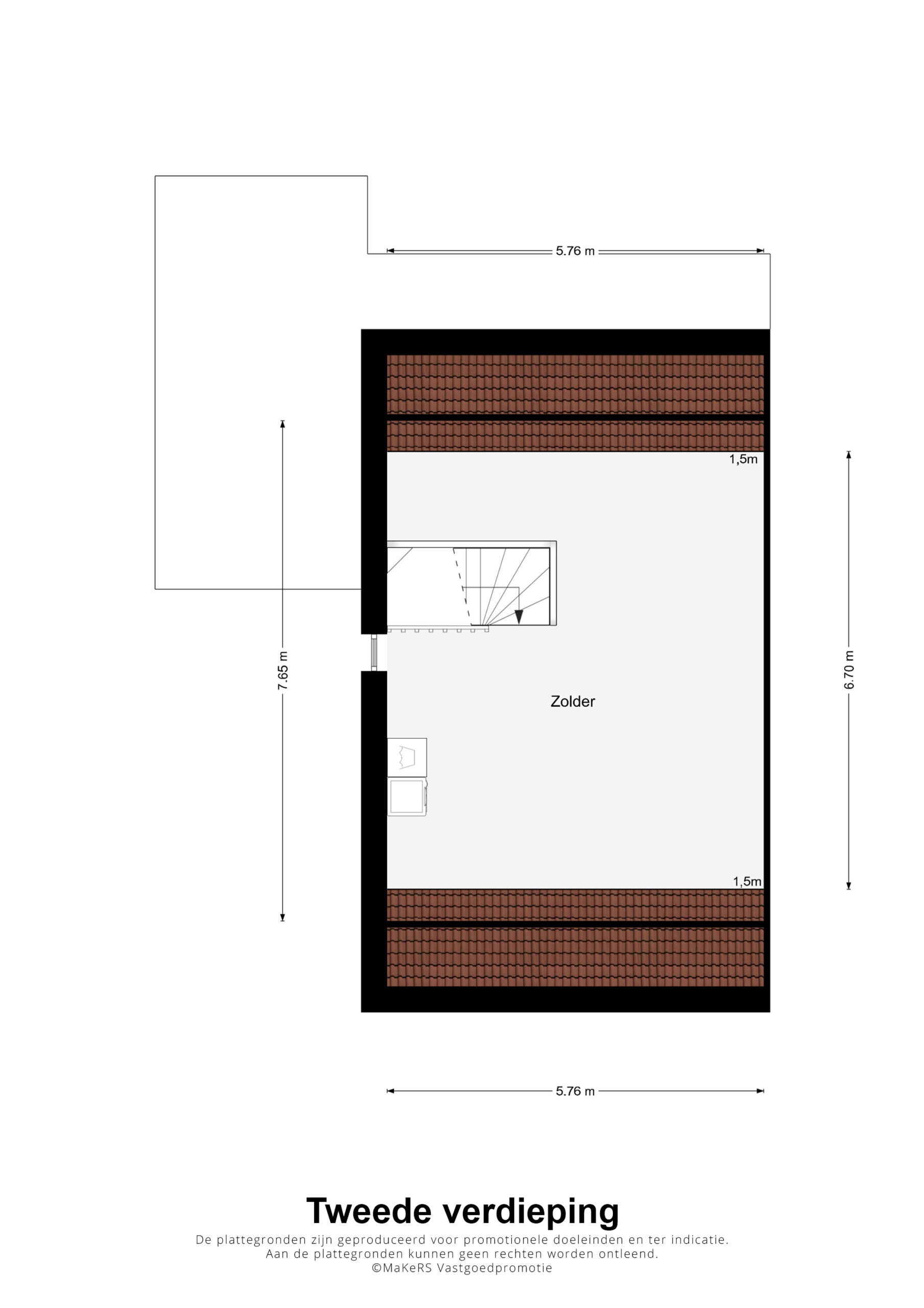
Tweede verdieping:
Via de vaste trap bereik je de ruime zolderverdieping. Deze biedt volop mogelijkheden voor het realiseren van een extra slaapkamer, werkkamer of hobbyruimte. Daarnaast bevinden zich op de zolder de technische installatie en de aansluitpunten voor een wasmachine en/of wasdroger.
Lindehagen wordt een bijzonder groene en duurzame woonwijk aan de dorpsrand van Urmond. Lindehagen is ontworpen vanuit haar rijke boeren verleden, met een moderne knipoog! Hier woon je heerlijk in een natuurlijke setting met prachtig uitzicht over het buitengebied. In de hele wijk is het landelijk en dorpse karakter voelbaar. De eigentijdse architectuur gebaseerd op haar boerenverleden, de Limburgse hagen, gebiedseigen bomen en bloemrijke bermen maken Lindehagen een groene en gezonde woonomgeving. Het landelijke karakter creëert een rustgevende setting waar je heerlijk woont, ontspant en geniet, dichtbij alle benodigde voorzieningen! Wil je graag een dagje winkelen in de outlet van Roermond of Maasmechelen Village, culinair uit eten en shoppen in Maastricht of de historische binnenstad van Sittard verkennen? Via de snelwegen A2, A76 en A73 ben je er in no-time. Dat geldt ook voor een heerlijk dagje uit in de prachtige, natuurrijke omgeving.
ENERGIEZUINIG EN DUURZAAM
Je nieuwe woning in Lindehagen is klaar voor de toekomst en zeer energiezuinig met minimaal energielabel A+++. Dit label wordt als volgt behaald:
– Luchtwarmtepomp;
– Zonnepanelen;
– Hoogwaardige dak-, vloer- en spouwisolatie;
– HR++ glas in de buitenkozijnen;
– Balansventilatie met warmteterugwinning.
Bijzonderheden:
– All-electric;
– Vloerverwarming en vloerkoeling;
– Optie tot levensloopbestendig en uitbouw begane grond en wijzigen aantal slaapkamers;
– Vrije ligging aan achterzijde.
De woningen zijn all electric en dus gasloos. Je hebt daardoor geen last van stijgende gasprijzen.
Met een energiezuinige en duurzame woning in Lindehagen heb je een laag energieverbruik, waardoor je minder afhankelijk bent van de energieprijzen.
Kijk voor meer informatie op www.lindehagen.nl of neem contact op met ons kantoor!
NIEUWBOUWWONING Deze ruime gezinswoning met 150 m² woonoppervlakte en een diepe en brede achtertuin met vrije, verkeersluwe ligging is ideaal voor koppels of gezinnen die op zoek zijn naar een duurzame nieuwe woning die zij volledig naar wens kunnen inrichten. De ruime begane grond biedt ruimte voor een leefkeuken, ruime…

Kenmerken
- Status Beschikbaar
- Vraagprijs
- Aanvaarding In overleg
- Soort woonhuis Twee onder een kapwoning
- Soort bouw Bestaande bouw
- Bouwjaar 2026
- Soort dak Zadeldak
- Onderhoud binnen Uitstekend
- Onderhoud buiten Uitstekend
- Gebruiksoppervlakte wonen ca. 150 m2
- Overige inpandige ruimte ca. 18 m2
- Inhoud ca. 590 m3
- Perceeloppervlakte ca. 422 m2
- Aantal kamers 5 kamers
- Aantal slaapkamers 4
- Aantal badkamers 1 badkamer
- Badkamervoorzieningen Wastafel, wastafelmeubel, inloopdouche
- Aantal woonlagen 3 woonlagen
- Voorzieningen Glasvezel kabel, zonnepanelen, balansventilatie
- Energielabel A+++
- Isolatie Dakisolatie, muurisolatie, vloerisolatie, volledig geisoleerd, hr glas
- Verwarming Vloerverwarming geheel, warmtepomp
- Warm water Elektrische boiler eigendom
- Ligging In woonwijk, vrij uitzicht
- Parkeerfaciliteiten Op eigen terrein
- Garage Aangebouwd steen
Plattegronden



Benieuwd naar de waarde van je woning?
Maak dan een afspraak voor een gratis waardebepaling zonder verplichtingen.
Downloads
Even binnenkijken?
Neem vrijblijvend contact met ons op.
