Lage Kanaaldijk 24
Op een A-locatie aan de Lage kanaaldijk is dit verrassend ruime herenhuis gelegen. Deze instapklare woning is in 2021 geheel gerenoveerd en combineert moderne luxe met authentieke charme. De woning beschikt o.a. over vier ruime slaapkamers, twee badkamers, stijlvolle keuken en drie airco’s.
Kortom, bent u op zoek naar een instapklaar huis met volop ruimte op een gewilde toplocatie? Zoek niet verder, want dit prachtige huis wacht op u! Geen kluswerk, alleen genieten. Maak snel een afspraak en ontdek zelf uw nieuwe droomwoning.
INDELING
Souterrain:
Praktische bergkelder (totaal ca. 53m²) met een hoogte van ca. 1,35m.
Begane grond:
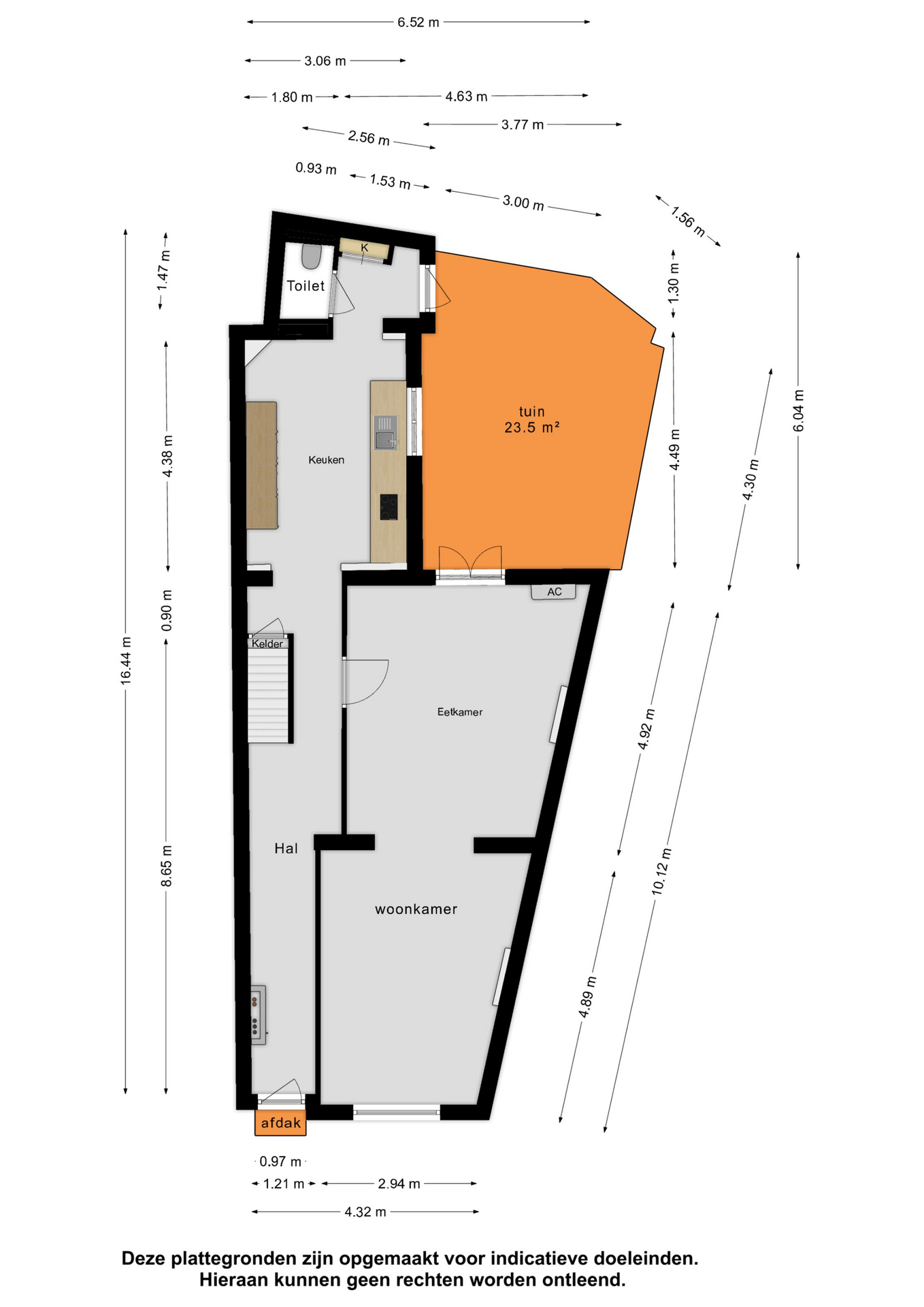
Bij binnenkomst in de statige inkomhal valt direct de originele Castelo-vloer op, evenals een compleet vernieuwde meterkast. Vanuit de hal heeft men toegang tot de kelder, de woonkamer en de keuken. De leefruimte (totaal ca. 37.5m²) bestaat uit een royale en suite woonkamer met airco, hoge plafonds, sfeervolle schouwpartij en een stijlvolle vloer in visgraatmotief. Aan de achterzijde bieden openslaande deuren toegang tot de beschutte stadstuin.
De begane grond biedt een aangename woonbeleving dankzij de ruime, luxe parallelkeuken. Deze is uitgerust met een fraai composieten werkblad, inductiekookplaat met geïntegreerde afzuiging, twee combiovens, een royale koel-/vriescombinatie, een Quooker van Siemens en een Bosch-vaatwasser.
Via de keuken bereikt u een tussenhal die toegang biedt tot het moderne toilet, (berg-)kasten en eveneens een doorgang naar de tuin.
Eerste verdieping:
Via de karakteristieke bordestrap bereikt u de royale overloop, die toegang biedt tot twee ruime slaapkamers en een luxe, ruim opgezette badkamer. De slaapkamer aan de achterzijde (ca. 20m²) is voorzien van een airco. De slaapkamer aan de voorzijde (ca. 24m²) beschikt over een praktische kastenwand. De riante badkamer (ca. 14m²) is stijlvol afgewerkt met een keramische tegelvloer in visgraatmotief en beschikt over een vrijstaand ligbad, een dubbel wastafelmeubel met spiegel, een designradiator, een inloopdouche met regendouche en een aparte toiletruimte. In deze separate ruimte vindt u ook de aansluitingen voor wasmachine en droger. Zowel de badkamer als het toilet zijn voorzien van een strak afgewerkt plafond met inbouwspots en elektrische ventilatie. De slaapkamers zijn royaal bemeten en hebben een plafondhoogte van maar liefst 2,95 meter, wat zorgt voor een aangenaam ruimtelijk gevoel.
Tweede verdieping:
Vanaf de overloop op de eerste verdieping bereikt men via een vaste trap de tweede verdieping. Hier bevinden zich nog twee comfortabele slaapkamers (ca. 18.5 en 14.5m²) en een moderne badkamer. De badkamer (ca. 7m²) is uitgerust met een zwevend toilet, een stijlvol wastafelmeubel en een royale inloopdouche. De vierde slaapkamer is voorzien van een dakkapel, airco en beschikt over een ruime entresol op de derde verdieping, fraai afgewerkt met een zichtbaar houten spant en een elektrisch bedienbaar Velux dakraam, wat zorgt voor veel natuurlijk licht en een sfeervolle uitstraling.
Entresol:
Middels vaste trap te bereiken entresol met voldoende daglicht, goede stahoogte, fraaie afwerking en toegang tot de stookruimte / berging (ca. 6m²) alwaar de Cv-installatie (Remeha Avanta, 2021, eigendom).
Tuin:
Onderhoudsvriendelijke, betegelde stadstuin met border en elektriciteitspunten.
Nadere bijzonderheden:
– Zeer ruim herenhuis op een top locatie in Sint Pieter;
– In 2021 geheel gerenoveerd incl. meterkast, leidingwerk etc. met behoud van authentieke elementen;
– Vier ruime slaapkamers en twee badkamers;
– Voorzien van drie airco’s;
– Energielabel C;
– Voorzien van houten kozijnen met HR++ beglazing;
– Gelegen op steenworp afstand van het centrum van Maastricht;
– Alle vermelde afmetingen zijn indicatief en kunnen afwijken van de werkelijkheid.
Omgeving:
Deze woning is gelegen in de geliefde wijk Sint Pieter, op loopafstand van de St. Pietersberg, sportvelden, stadspark en de binnenstad van Maastricht. De basisschool van Sint Pieter en diverse winkelvoorzieningen zijn in de directe nabijheid gelegen. Uitvalswegen (A2, A79) zijn binnen enkele minuten te bereiken.
Op een A-locatie aan de Lage kanaaldijk is dit verrassend ruime herenhuis gelegen. Deze instapklare woning is in 2021 geheel gerenoveerd en combineert moderne luxe met authentieke charme. De woning beschikt o.a. over vier ruime slaapkamers, twee badkamers, stijlvolle keuken en drie airco’s. Kortom, bent u op zoek naar…

Kenmerken
- Status Beschikbaar
- Vraagprijs € 775.000,- k.k.
- Aanvaarding In overleg
- Soort woonhuis Eindwoning
- Soort bouw Bestaande bouw
- Bouwjaar 1920
- Soort dak Mansarde dak
- Onderhoud binnen Uitstekend
- Onderhoud buiten Uitstekend
- Gebruiksoppervlakte wonen ca. 208 m2
- Inhoud ca. 886 m3
- Perceeloppervlakte ca. 104 m2
- Aantal kamers 5 kamers
- Aantal slaapkamers 4
- Aantal badkamers 2 badkamers
- Badkamervoorzieningen Toilet, wastafel, inloopdouche, ligbad, dubbele wastafel, inloopdouche
- Aantal woonlagen 5 woonlagen
- Voorzieningen Airconditioning, rookkanaal, dakraam
- Energielabel C
- Isolatie Dakisolatie, hr glas
- Verwarming Cv ketel
- Warm water Cv ketel
- C.v.-ketel type Gas
- C.v.-ketel bouwjaar 2021
- Eigendom Eigendom
- Ligging In woonwijk
- Hoofdtuin Achtertuin
- Oppervlakte hoofdtuin ca. 24 m2
- Ligging hoofdtuin Noordoost
- Kwaliteit tuin Verzorgd
- Parkeerfaciliteiten Betaald parkeren, parkeervergunningen
- Garage Geen garage
Plattegronden





Cijfers voor de wijk
Burgerlijke staat
- Gehuwd
- Ongehuwd
- Gescheiden
- Verweduwd
Leeftijd in gemeente
Leeftijd buurtbewoners
- 0-15 15%
- 15-15 12%
- 25-45 19%
- 45-65 32%
- 65+ 22%
Benieuwd naar de waarde van je woning?
Maak dan een afspraak voor een gratis waardebepaling zonder verplichtingen.
Downloads
Even binnenkijken?
Neem vrijblijvend contact met ons op.
