Kremerslaan 11
Het appartementencomplex ‘Op Gen Hei’ is gelegen in de wijk ‘Oude Heide’ te Landgraaf/Nieuwenhagen. Het vier verdiepingen tellende kleinschalige complex is voorzien van een lift. Iedere woonlaag telt vier appartementen die inpandig te bereiken zijn. Ieder appartement heeft een privé berging op de begane grond.
Parterre:
Middels overdekte entree met bellentableau en brievenbussen toegang tot ontvangsthal. Hal met toegang tot lift, trappenhuis en privébergingen.
Appartement:
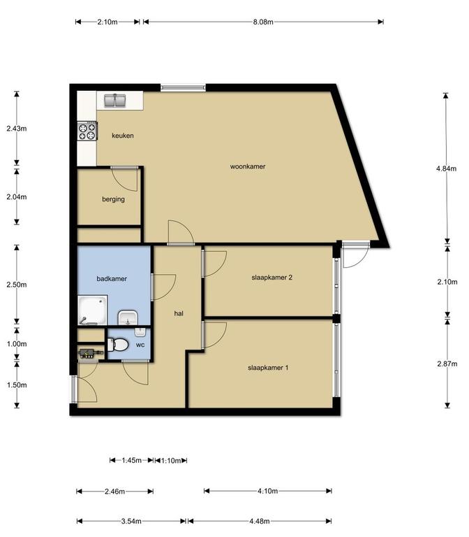
Middels verdeelhal toegang tot betegelde toiletruimte voorzien van toilet en fontein. Het appartement beschikt over twee slaapkamers en een geheel betegelde badkamer met inloopdouche en wastafel. Ruime woonkamer met uitstekende lichtinval en toegang tot balkon. In woonkamer gelegen keuken voorzien van de navolgende apparatuur: gaskookplaat, afzuigkap en koel- vriescombinatie. Naast keuken gelegen bijkeuken alwaar verwarmingsketel, mechanische afzuiging en aansluitpunt voor witgoed.
Bijzonderheden:
– De huurprijs bedraagt € 915,- exclusief servicekosten á € 55,- (exclusief gas, water en licht).
– Minimale huurperiode 24 maanden.
– Let op: de weergave van dit appartement dient ter illustratie en kan afwijken van de daadwerkelijke situatie.
– De waarborgsom voor huurder bedraagt € 1830,-
– Inkomensgrens: minimaal 3 keer de huurprijs (€ 915,-).
– Het appartement is per 1 november beschikbaar.
– Het appartement is volledig geïsoleerd en voorzien van dubbele beglazing.
– Het appartementencomplex is voorzien van een lift.
– Voldoende parkeergelegenheid op terrein en nabij appartementencomplex.
– Het appartementencomplex is zeer centraal gelegen nabij alle voorzieningen, recreatie- en natuurgebied, uitvalswegen en winkels.
– Het appartement beschikt over een op de begane grond gelegen privéberging.
Het appartementencomplex ‘Op Gen Hei’ is gelegen in de wijk ‘Oude Heide’ te Landgraaf/Nieuwenhagen. Het vier verdiepingen tellende kleinschalige complex is voorzien van een lift. Iedere woonlaag telt vier appartementen die inpandig te bereiken zijn. Ieder appartement heeft een privé berging op de begane grond. Parterre: Middels overdekte…

Kenmerken
- Status Beschikbaar
- Vraagprijs € 915,- p/m
- Aanvaarding In overleg
- Soort bouw Bestaande bouw
- Bouwjaar 2007
- Soort dak Plat dak
- Onderhoud binnen Goed
- Onderhoud buiten Goed
- Gebruiksoppervlakte wonen ca. 80 m2
- Oppervlakte gebouwgebonden ca. 5 m2
- Overige inpandige ruimte ca. 10 m2
- Inhoud ca. 200 m3
- Aantal kamers 3 kamers
- Aantal slaapkamers 2
- Aantal badkamers 1 badkamer
- Badkamervoorzieningen Douche, wastafel
- Aantal woonlagen 1 woonlagen
- Voorzieningen Tv kabel
- Energielabel B
- Isolatie Dakisolatie, muurisolatie, dubbel glas
- Verwarming Cv ketel
- Warm water Cv ketel
- C.v.-ketel type Gas
- Eigendom Eigendom
- Ligging In woonwijk
- Schuur / berging Inpandig
- Aantal schuren / bergingen 1
- Parkeerfaciliteiten Openbaar parkeren
- Garage Geen garage
Plattegronden

Cijfers voor de wijk
Burgerlijke staat
- Gehuwd 1495
- Ongehuwd 1160
- Gescheiden 315
- Verweduwd 220
Leeftijd in gemeente
- 0-15 13%
- 15-15 10%
- 25-45 21%
- 45-65 33%
- 65+ 23%
Leeftijd buurtbewoners
- 0-15 12%
- 15-15 10%
- 25-45 20%
- 45-65 32%
- 65+ 26%
Benieuwd naar de waarde van je woning?
Maak dan een afspraak voor een gratis waardebepaling zonder verplichtingen.
Even binnenkijken?
Neem vrijblijvend contact met ons op.
