Kokkelertstraat 20
Op een natuurrijke en rustige locatie aan Kokkelertstraat 20 in Roosteren, ligt dit bijzondere en unieke appartement. Naast de hoofdwoning, zijn er diverse wooneenheden gecreëerd.
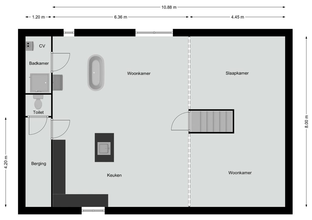
Appartement:
Via de authentieke entree, een antieke lift, bereiken we ‘De Loft’. Deze wooneenheid is in 2005 gerenoveerd en voorzien van één ruimte die door middel van een ophoging verdeeld wordt. Ook in deze ruimte kun jij jouw creativiteit de vrije loop laten. Door een ruim woonoppervlak, beschik je over voldoende ruimte voor het realiseren van een heerlijke woonplek.
De keuken bevindt zich achterin de ruimte en is voorzien van: koelkast, gasfornuis, oven, afzuigkap en een spoeleiland. Vanuit de toegangsdeur achter de keuken is er toegang tot een handige opbergkast en het toilet.
Aan de rechterkant van de keuken vinden we de ‘open badkamer’. Het robuuste ligbad is de eyecatcher van deze ruimte. Daarnaast is er een separate doucheruimte, hier bevindt zich tevens de cv-installatie (Remeha, 2012, eigendom).
Bijzonderheden:
– Voor deze verhuur geldt een huurovereenkomst voor onzelfstandige woonruimte.
– Voor dit appartement is een kamerverhuurvergunning van toepassing; hierdoor is geen huurtoeslag mogelijk.
Omgeving:
Een uniek plekje voor wie van rust houdt en toch alles dicht bij de hand wil hebben! Deze sfeervolle woning ligt in het rustige buurtschap Kokkelert. Op een steenworp afstand slingert de Maas langs de dijk, waar het na een lange werkdag nog lekker even uitwaaien is, wandelend of met de fiets.
Roosteren (Limburgs: Roostere) is een kerkdorp met ongeveer 1.425 inwoners in de Nederlandse provincie Limburg, in de gemeente Echt-Susteren. Roosteren ligt aan de Maas, tegenover het Belgische stadje Maaseik. Langs de oostelijke zijde van het dorp is het Julianakanaal aangelegd met parallel daaraan de autosnelweg A2.
Door de ligging nabij de uitvalswegen en de A2, zijn er goede verbindingen naar Echt, Susteren en Maaseik (B) en via autosnelweg A2 en A73 richting Aken (D)-Roermond – Eindhoven- Maastricht. Roosteren (Smalste stukje van Nederland) beschikt over diverse voorzieningen (o.a. mini-supermarkt, horeca) en een uitgebreid verenigingsleven.
Op een natuurrijke en rustige locatie aan Kokkelertstraat 20 in Roosteren, ligt dit bijzondere en unieke appartement. Naast de hoofdwoning, zijn er diverse wooneenheden gecreëerd. Appartement: Via de authentieke entree, een antieke lift, bereiken we ‘De Loft’. Deze wooneenheid is in 2005 gerenoveerd en voorzien van één ruimte die…

Kenmerken
- Status Beschikbaar
- Vraagprijs € 775,- p/m
- Aanvaarding Per datum
- Soort bouw Bestaande bouw
- Bouwjaar 1915
- Soort dak Zadeldak
- Onderhoud binnen Redelijk
- Onderhoud buiten Redelijk
- Gebruiksoppervlakte wonen ca. 91 m2
- Overige inpandige ruimte ca. 5 m2
- Inhoud ca. 399 m3
- Perceeloppervlakte ca. 1268 m2
- Aantal kamers 1 kamer
- Aantal slaapkamers 1
- Aantal badkamers 1 badkamer
- Badkamervoorzieningen Ligbad, douche, wastafel
- Aantal woonlagen 1 woonlagen
- Voorzieningen Mechanische ventilatie, tv kabel, dakraam
- Energielabel C
- Isolatie Dakisolatie
- Verwarming Cv ketel
- Warm water Cv ketel
- C.v.-ketel type Gas
- C.v.-ketel bouwjaar 2012
- Eigendom Eigendom
- Ligging Aan rustige weg, in woonwijk, beschutte ligging
- Parkeerfaciliteiten Openbaar parkeren
- Garage Geen garage
Cijfers voor de wijk
Burgerlijke staat
- Gehuwd 25
- Ongehuwd 15
- Gescheiden 0
- Verweduwd 0
Leeftijd in gemeente
- 0-15 13%
- 15-15 10%
- 25-45 20%
- 45-65 33%
- 65+ 24%
Leeftijd buurtbewoners
- 0-15 10%
- 15-15 0%
- 25-45 10%
- 45-65 30%
- 65+ 30%
Benieuwd naar de waarde van je woning?
Maak dan een afspraak voor een gratis waardebepaling zonder verplichtingen.
Even binnenkijken?
Neem vrijblijvend contact met ons op.
