Terug naar overzicht
Cadier en keer

Kerkstraat 44

€ 375.000, - k.k.

Aan de Kerkstraat 44 in Cadier en Keer ligt deze ruime en comfortabele woning met aanbouw, inpandige garage en eigen oprit. De woning is voorzien van energielabel A en beschikt over drie slaapkamers, twee badkamers en een praktische indeling met veel leefruimte.

INDELING:

Souterrain:
Het souterrain heeft een oppervlakte van ca. 7 m² en is ideaal te gebruiken als provisie- of bergruimte.

Begane grond:
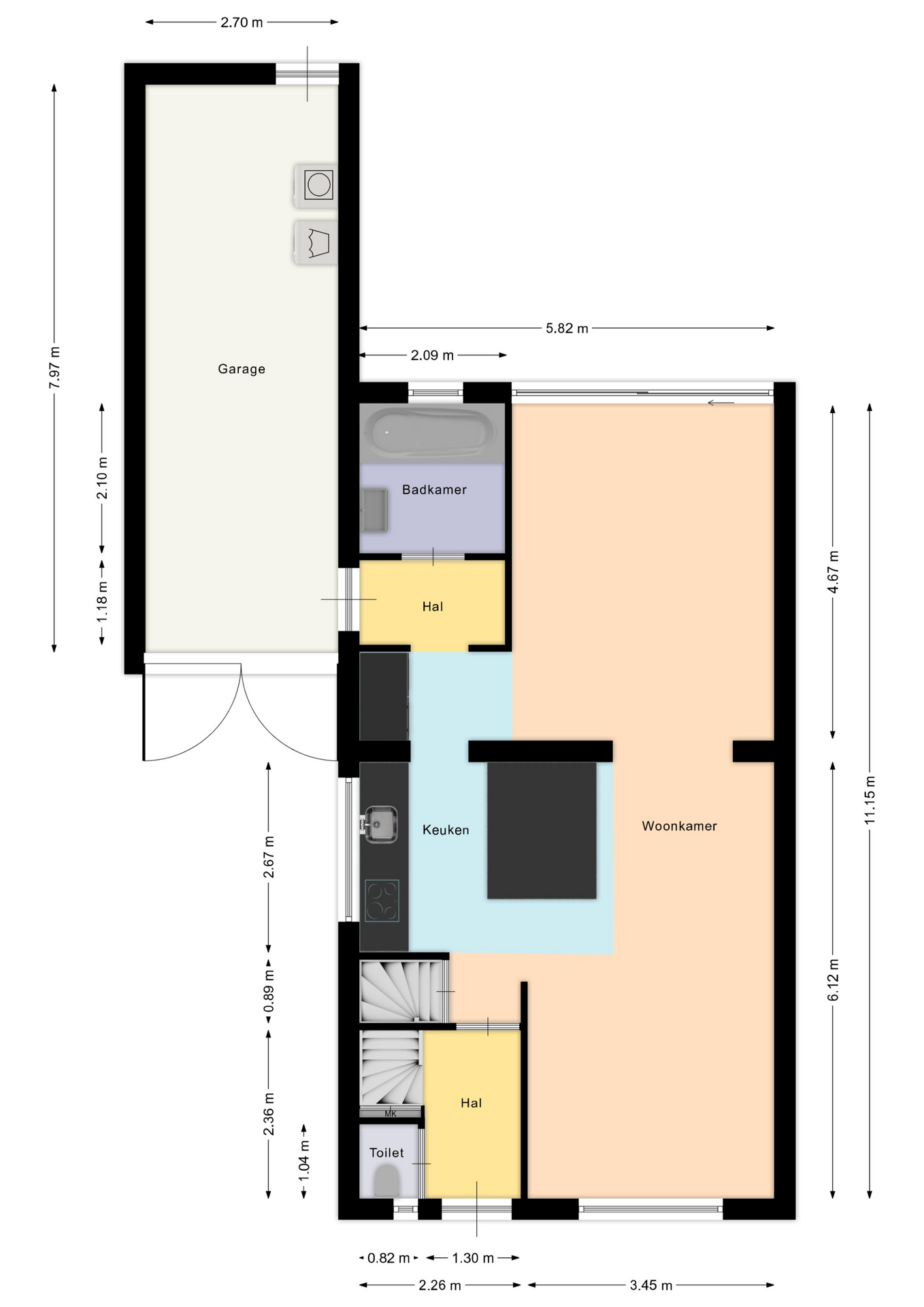
Entree met toegang tot de hal, waar zich het toilet met hangcloset en de trap naar de eerste verdieping bevinden. De woonkamer is ruim en licht dankzij de grote raampartijen en de grote schuifpui naar de achtertuin. De aanbouw biedt een fijne, extra leefruimte. De aanbouw is in 2021 gerealiseerd. Bij het ontwerp en de constructie is rekening gehouden met de mogelijkheid om in een later stadium een extra verdieping te realiseren. Hierdoor biedt de woning niet alleen direct extra leefruimte maar ook uitstekende uitbreidingsmogelijkheden voor de toekomst.

De open keuken is modern uitgevoerd en voorzien van een werkeiland en diverse inbouwapparatuur, waaronder een inductiekookplaat, spoelbak, vaatwasser, afzuigkap en een Inventum oven. Vanuit de keuken is tevens de kelder bereikbaar.
Aan de achterzijde van de woning is er toegang tot de inpandige garage en de eerste badkamer (ca. 4 m²), welke is uitgerust met een ligbad en een wastafelmeubel.

Eerste verdieping:
Via de overloop zijn drie slaapkamers bereikbaar van ca. 11 m², 10 m² en 5 m². De badkamer (ca. 3 m²) is voorzien van een inloopdouche en een wastafelmeubel. Op de overloop bevinden zich tevens de airconditioning en een praktische kastruimte. Daarnaast is vanaf hier de zolder bereikbaar middels een vlizotrap.

Zolder:
Via een vlizotrap te bereiken zolder van ca. 9 m², met de opstelling van de cv-ketel (Remeha Avanta, eigendom, 2019).

Tuin:
De ruime tuin is bereikbaar via de schuifpui vanuit de woonkamer en via de inpandige garage. Achter in de tuin bevindt zich een berging van ca. 7 m² met een aangrenzende houten overkapping, ideaal voor extra opslag en een beschutte zitplek.

De inpandige garage (ca. 22 m²) is voorzien van elektra, water en verwarming en beschikt over aansluitingen voor witgoed. Aan de voorzijde is de garage uitgerust met openslaande deuren.

Bijzonderheden:
– Energielabel A;
– CV-ketel: Remeha Avanta (eigendom, 2019);
– HR++ beglazing;
– Twee badkamers;
– Drie slaapkamers, allen voorzien van rolluiken;
– 9 zonnepanelen (geplaatst in 2023);
– Vloerverwarming in de aanbouw;
– Ruime inpandige garage;
– Alle maten zijn indicatief en kunnen afwijken van de realiteit.

Omgeving:
Het dorp Cadier en Keer ligt aan de provinciale weg tussen Maastricht, Gulpen en Vaals. Door de ligging dicht bij Maastricht is het vooral een forensendorp. Het dorp heeft zich sinds de jaren 1960 hoofdzakelijk ten noorden van de N278 ontwikkeld. Naburige plaatsen zijn Margraten, Berg en Terblijt en Bemelen. Het dorp ligt op het Plateau van Margraten, dat ten zuiden van het dorp ingesneden wordt door het droogdal Dorregrubbe en ten noorden door het droogdal Sibbersloot. Het landelijk gebied rondom Cadier en Keer vormt, vanaf Maastricht komend, de entree naar het Zuid-Limburgse Heuvelland, met een riant panorama op Maastricht en het Maasdal. De archeologische site Backerbosch wordt omsloten door oude bossen, glooiende landerijen en twee wijngaarden.

Aan de Kerkstraat 44 in Cadier en Keer ligt deze ruime en comfortabele woning met aanbouw, inpandige garage en eigen oprit. De woning is voorzien van energielabel A en beschikt over drie slaapkamers, twee badkamers en een praktische indeling met veel leefruimte. INDELING: Souterrain: Het souterrain heeft een oppervlakte…

Kenmerken

  • Status Beschikbaar
  • Vraagprijs € 375.000,- k.k.
  • Aanvaarding In overleg
  • Soort woonhuis Twee onder een kapwoning
  • Soort bouw Bestaande bouw
  • Bouwjaar 1978
  • Soort dak Zadeldak
  • Onderhoud binnen Goed
  • Onderhoud buiten Goed
  • Gebruiksoppervlakte wonen ca. 101 m2
  • Externe bergruimte ca. 7 m2
  • Overige inpandige ruimte ca. 38 m2
  • Inhoud ca. 477 m3
  • Perceeloppervlakte ca. 325 m2
  • Aantal kamers 6 kamers
  • Aantal slaapkamers 3
  • Aantal badkamers 2 badkamers
  • Badkamervoorzieningen Ligbad, wastafelmeubel, douche, wastafelmeubel
  • Aantal woonlagen 4 woonlagen
  • Voorzieningen Rolluiken, airconditioning, zonnepanelen
  • Energielabel A
  • Isolatie Dakisolatie, muurisolatie, vloerisolatie
  • Verwarming Cv ketel
  • Warm water Cv ketel
  • C.v.-ketel type Gas
  • C.v.-ketel bouwjaar 2019
  • Eigendom Eigendom
  • Ligging Aan rustige weg, in woonwijk
  • Hoofdtuin Achtertuin
  • Oppervlakte hoofdtuin ca. 150 m2
  • Ligging hoofdtuin Zuid
  • Kwaliteit tuin Verzorgd
  • Schuur / berging Vrijstaand hout
  • Aantal schuren / bergingen 1
  • Parkeerfaciliteiten Openbaar parkeren, op eigen terrein
  • Garage Inpandig
Meer kenmerken Minder kenmerken

Plattegronden

Statistieken

Cijfers voor de wijk

Burgerlijke staat

  • Gehuwd
  • Ongehuwd
  • Gescheiden
  • Verweduwd

Leeftijd in gemeente

Leeftijd buurtbewoners

  • 0-15 14%
  • 15-15 12%
  • 25-45 20%
  • 45-65 28%
  • 65+ 27%

Benieuwd naar de waarde van je woning?

Maak dan een afspraak voor een gratis waardebepaling zonder verplichtingen.

Even binnenkijken?

Neem vrijblijvend contact met ons op.