Terug naar overzicht
Maastricht

Keilruwe 30

€ 375.000, - k.k.

Verrassend ruime en moderne woning met vier slaapkamers, een royale zolderverdieping en een onderhoudsvriendelijke achtertuin met overkapping en berging, gelegen aan de Keilruwe 30 in het geliefde “Sportkwartier Zuid” in de Maastrichtse woonwijk Malberg.

De woning beschikt over een ruime living met open keuken, een nette badkamer en een praktische indeling. Dankzij de goede isolatie en het energielabel A+ is de woning energiezuinig en comfortabel. Alle dagelijkse voorzieningen zoals winkelcentra “Malberg” en “Brusselsepoort”, scholen, openbaar vervoer en sportfaciliteiten bevinden zich op korte afstand. Daarnaast zijn het centrum van Maastricht en diverse uitvalswegen richting België en de autosnelwegen snel bereikbaar.

Indeling

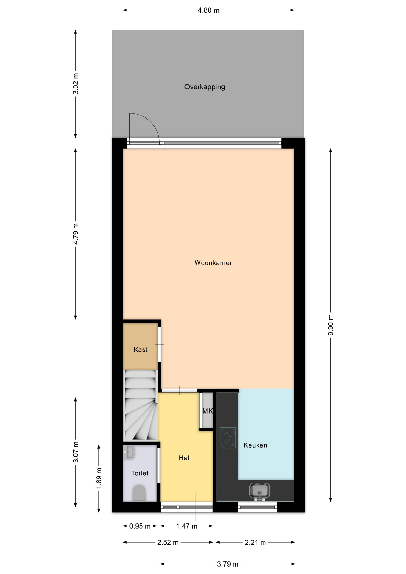
Begane grond:
Entree/hal met laminaatvloer, meterkast, trapopgang en toiletruimte. Het toilet is deels betegeld en voorzien van een wandcloset en fonteintje.

De royale woonkamer met open keuken (totaal ca. 40 m²) is voorzien van een laminaatvloer en veel lichtinval. De keuken is aan de voorzijde van de woning gelegen en uitgevoerd in een hoekopstelling met boven- en onderkasten en diverse inbouwapparatuur, waaronder een spoelbak, inductie kookplaat, RVS afzuigkap, koelkast en vaatwasser. De woonkamer beschikt over een praktische trapkast en geeft middels een tuindeur toegang tot de achtertuin.

Eerste verdieping:
Overloop met trapopgang naar de zolder en toegang tot drie slaapkamers en de badkamer. De slaapkamers hebben een oppervlakte van ca. 11 m², 9 m² en 6 m². De grootste slaapkamer is voorzien van airconditioning. De moderne badkamer (ca. 3 m²) is uitgerust met een douche, wastafel en toilet en beschikt over mechanische ventilatie. De gehele verdieping is voorzien van rolluiken.

Tweede verdieping:
Via een vaste trap bereikbare zolderverdieping (ca. 27 m²), voorzien van vloerbedekking. Hier bevindt zich de vierde slaapkamer (ca. 15 m²). Tevens zijn op deze verdieping de aansluitingen voor witgoed en de opstelling van de cv-installatie aanwezig.

Tuin:
De onderhoudsvriendelijke achtertuin (ca. 40 m²) is gelegen op het zuidwesten en beschikt over een overkapping, een achterom en een houten tuinberging (ca. 5 m²). Hierdoor is het een fijne plek om buiten te zitten.

Bijzonderheden:
– Energielabel A+;
– Vier slaapkamers;
– Verrassend ruime tussenwoning;
– Aanbouw aan de achterzijde (meerwerk tijdens de bouw);
– Voorzien van airconditioning;
– Volledig geïsoleerd (dak-, muur- en vloerisolatie);
– Elektrische rolluiken op de begane grond;
– Rolluiken op de eerste verdieping;
– Onderhoudsvriendelijke tuin op het zuidwesten;
– Alle maten zijn indicatief en kunnen afwijken van de werkelijkheid.

Omgeving:
Gelegen in de nieuwbouwwijk Sportkwartier Zuid, een levendige en centrale locatie in de wijk Malberg. In de directe omgeving bevinden zich winkels (o.a. Jumbo, Aldi, drogisterij en apotheek), scholen en diverse sportvoorzieningen. Op korte loopafstand ligt een multifunctioneel sportpark met onder andere een kunstgrasveld, jeu de boules banen en outdoor fitness. Het centrum van Maastricht, evenals uitvalswegen richting autosnelwegen en België, zijn snel en goed bereikbaar. De bushalte bevindt zich op circa 50 meter afstand van de woning.

Verrassend ruime en moderne woning met vier slaapkamers, een royale zolderverdieping en een onderhoudsvriendelijke achtertuin met overkapping en berging, gelegen aan de Keilruwe 30 in het geliefde “Sportkwartier Zuid” in de Maastrichtse woonwijk Malberg. De woning beschikt over een ruime living met open keuken, een nette badkamer en een praktische…

Kenmerken

  • Status Beschikbaar
  • Vraagprijs € 375.000,- k.k.
  • Aanvaarding In overleg
  • Soort woonhuis Tussenwoning
  • Soort bouw Bestaande bouw
  • Bouwjaar 2007
  • Soort dak Zadeldak
  • Onderhoud binnen Goed
  • Onderhoud buiten Goed
  • Gebruiksoppervlakte wonen ca. 113 m2
  • Oppervlakte gebouwgebonden ca. 16 m2
  • Externe bergruimte ca. 7 m2
  • Inhoud ca. 396 m3
  • Perceeloppervlakte ca. 110 m2
  • Aantal kamers 5 kamers
  • Aantal slaapkamers 4
  • Aantal badkamers 1 badkamer
  • Badkamervoorzieningen Toilet, douche, wastafel
  • Aantal woonlagen 3 woonlagen
  • Voorzieningen Mechanische ventilatie, rolluiken, airconditioning
  • Energielabel A+
  • Isolatie Dakisolatie, muurisolatie, vloerisolatie, dubbel glas, volledig geisoleerd
  • Verwarming Cv ketel
  • Warm water Cv ketel
  • C.v.-ketel bouwjaar 2017
  • Eigendom Eigendom
  • Ligging Aan rustige weg, in woonwijk
  • Hoofdtuin Achtertuin
  • Oppervlakte hoofdtuin ca. 48 m2
  • Ligging hoofdtuin Zuidwest
  • Achterom Ja
  • Parkeerfaciliteiten Openbaar parkeren
  • Garage Geen garage
Meer kenmerken Minder kenmerken

Plattegronden

Statistieken

Cijfers voor de wijk

Burgerlijke staat

  • Gehuwd
  • Ongehuwd
  • Gescheiden
  • Verweduwd

Leeftijd in gemeente

Leeftijd buurtbewoners

  • 0-15 11%
  • 15-15 13%
  • 25-45 21%
  • 45-65 27%
  • 65+ 28%

Benieuwd naar de waarde van je woning?

Maak dan een afspraak voor een gratis waardebepaling zonder verplichtingen.

Even binnenkijken?

Neem vrijblijvend contact met ons op.