Terug naar overzicht
Roermond

Kasteel Hornstraat 30

€ 290.000, - k.k.

Ruime hoekwoning, gelegen in de Kastelenbuurt in Roermond. De woning is gelegen op loopafstand van het vernieuwde winkelcentrum, met alle winkels voor de dagelijkse boodschappen. Ook scholen, verenigingen en sportfaciliteiten zijn in de directe omgeving gelegen. Daarnaast is het stadscentrum van Roermond, met haar complete voorzieningenpakket, goed en snel bereikbaar. Naast voldoende woonruimte, beschikt de woning over de mogelijkheid om binnen het vigerende bestemmingsplan een vorm van dienstverlening, beroep, praktijk of bedrijf aan huis uit te oefenen.

Indeling

Begane grond
Entree/hal voorzien van een tegelvloer met trapopgang, meterkast (voorzien van een groepenkast) en toegang tot de tuinkamer en multifunctionele ruimte begane grond. De multifunctionele ruimte (12 m2) is gelegen aan de voorzijde van de woning en heeft ook een eigen toegangsdeur. Hierdoor is het mogelijk om een kantoor/praktijk of beroep aan huis uit te oefenen. Vanuit deze ruimte is een badkamer bereikbaar met wastafel, douche en toilet. De tuinkamer is gelegen aan de achterzijde van de woning en is circa 15 m2 groot. Vanuit hier is er toegang tot de achtertuin en daarnaast beschikt de ruimte over een eenvoudige keukenblok met spoelbak en een betegelde badkamer die voorzien is van een douche, wastafel en toilet.

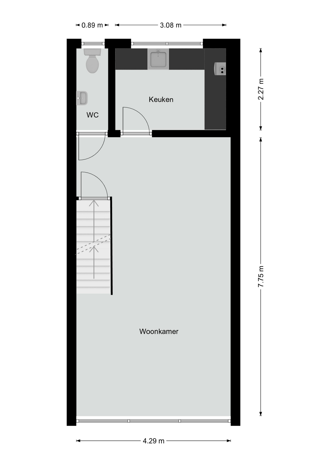
Eerste verdieping
Vanuit de trap in de hal is de eerste verdieping bereikbaar. De woonkamer is circa 30 m2 en geeft door de grote raampartijen een ruim en licht geheel. De woonkamer is voorzien van een laminaatvloer en een airco-installatie (2024). De gesloten keuken (circa 7 m2) is gelegen aan de achterzijde en is voorzien van een hoekopstelling met de navolgende installaties: vaatwasser, 5-pitsgaskookplaat, afzuigkap, koelvries-combi, combi-magnetron, spoelbak en diverse opbergkasten en lades. In een aparte kast zit de opstelling van de cv-ketel (Nefit, huur, 2020). Er is een separaat toiletruimte met toilet en fonteintje.

Tweede verdieping
Via vaste trap is de tweede verdieping bereikbaar. Vanuit de overloop is er toegang tot de twee slaapkamers en de badkamer. De slaapkamers zijn van ruim formaat (circa 17 m2 en 11 m2), aangenaam licht en afgewerkt met laminaatvloeren. De badkamer is circa 8 m2 volledig betegeld en voorzien van een vaste wastafel, douche, zwevend closet en aansluitpunten voor het witgoed. Tot slot zijn er twee praktische trapkasten aanwezig op de overloop en een van de slaapkamers.

Tuin
De achtertuin is gelegen op het noordoosten en is grotendeels betegeld en voorzien van borders met verschillende beplantingen. De tuin is geheel omheind. De voortuin is geheel beklinkerd en is tevens voorzien van een oprit.

Bijzonderheden
– Ruime (gezins)woning met veel mogelijkheden;
– Mogelijkheid voor aan huis verbonden beroepen, praktijk, kantoor of dienstverlening;
– De woning is voorzien van 12 zonnepanelen;
– Het plat dak is in 2024 vernieuwd;
– Airco-installatie van 2024;
– Cv-ketel is geplaatst in 2020 (Nefit, huur);
– Grotendeels voorzien van kunststof kozijnen met dubbele beglazing;
– Deels voorzien van rolluiken;
– Aan de overzijde ligt een winkelcentrum met onder andere Kruidvat, Lidl, Jumbo alsook huisartsenpraktijk en apotheek;
– Basisschool om de hoek, alsook middelbare scholen;
– Ook de voorzieningen van de binnenstad van Roermond en het station binnen handbereik;
– Goede bereikbaarheid door de ligging aan de A73.
– verplichte VvE kosten voor onderhoud groenvoorzieningen € 12.50 per maand

Omgeving:
Deze woning is gelegen in een fijne omgeving. Centrale ligging ten opzichte van de binnenstad en snelwegen. Tevens op korte afstand van diverse voorzieningen, zoals: een winkelcentrum met supermarkten Jumbo en Lidl. Het Centrale station van Roermond is op slechts 8 minuten fietsen gelegen, alsook de binnenstad van Roermond met al haar voorzieningen. Basisscholen en scholen voor voortgezet onderwijs (o.a. Roer College Schöndeln, Yuverta) bevinden zich op loop- of fietsafstand.

Ruime hoekwoning, gelegen in de Kastelenbuurt in Roermond. De woning is gelegen op loopafstand van het vernieuwde winkelcentrum, met alle winkels voor de dagelijkse boodschappen. Ook scholen, verenigingen en sportfaciliteiten zijn in de directe omgeving gelegen. Daarnaast is het stadscentrum van Roermond, met haar complete voorzieningenpakket, goed en snel bereikbaar.

Kenmerken

  • Status Beschikbaar
  • Vraagprijs € 290.000,- k.k.
  • Aanvaarding In overleg
  • Soort woonhuis Hoekwoning
  • Soort bouw Bestaande bouw
  • Bouwjaar 1979
  • Soort dak Plat dak
  • Onderhoud binnen Goed
  • Onderhoud buiten Goed
  • Gebruiksoppervlakte wonen ca. 131 m2
  • Inhoud ca. 450 m3
  • Perceeloppervlakte ca. 130 m2
  • Aantal kamers 5 kamers
  • Aantal slaapkamers 2
  • Aantal badkamers 2 badkamers
  • Badkamervoorzieningen Toilet, douche, wastafel, toilet, douche, wastafel
  • Aantal woonlagen 3 woonlagen
  • Voorzieningen Rolluiken, tv kabel, airconditioning, zonnepanelen, natuurlijke ventilatie
  • Energielabel A
  • Isolatie Dakisolatie, muurisolatie, grotendeels dubbelglas
  • Verwarming Cv ketel
  • Warm water Cv ketel
  • C.v.-ketel type Gas
  • C.v.-ketel bouwjaar 2020
  • Eigendom Huur
  • Ligging In woonwijk
  • Hoofdtuin Achtertuin
  • Oppervlakte hoofdtuin ca. 56 m2
  • Ligging hoofdtuin Noord
  • Kwaliteit tuin Normaal
  • Parkeerfaciliteiten Openbaar parkeren
  • Garage Geen garage
Meer kenmerken Minder kenmerken

Plattegronden

Statistieken

Cijfers voor de wijk

Burgerlijke staat

  • Gehuwd
  • Ongehuwd
  • Gescheiden
  • Verweduwd

Leeftijd in gemeente

Leeftijd buurtbewoners

  • 0-15 17%
  • 15-15 13%
  • 25-45 26%
  • 45-65 31%
  • 65+ 14%

Benieuwd naar de waarde van je woning?

Maak dan een afspraak voor een gratis waardebepaling zonder verplichtingen.

Even binnenkijken?

Neem vrijblijvend contact met ons op.