Kantstraat 12
Aan doorgaande weg gelegen verrassend ruim halfvrijstaand woonhuis met kelder, maar liefst acht slaapkamers, een heerlijke tuin met zwemvijver, garage, overkapping met buitenkeuken en welnesshoek, dubbele carport en zolder.
De woning is gelegen aan de Kantstraat 12 te Landgraaf.
Souterrain:
Via een fraaie betonnen trap bereikt u de ruime kelder, verdeeld in drie separate ruimtes: een sfeervolle wijnkelder, een praktische werkplaats/hobbyruimte en een royale berging van respectievelijk groot:
1) 3.98 x 3.94
2) 3.00 x 1.15
3) 3.50 x 3.47
Parterre:
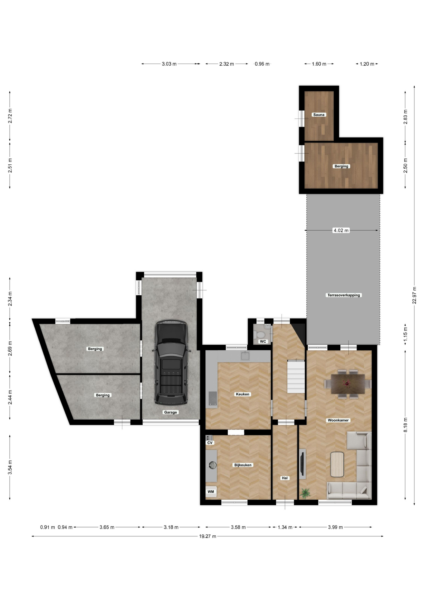
Middels vestibule met garderobe en vernieuwde meterkast, bereikt u middels een glazen deur de centrale hal met een gestoffeerde trap naar de eerste verdieping. Daarnaast bevindt zich hier het geheel betegelde toilet met vrijhangend closet, betonnen fonteintje, radiator en raam voor natuurlijke ventilatie.
De sfeervolle woonkamer ademt karakter door de hoge plafonds, gestucte wanden, moderne laminaatvloer en een fraaie houtkachel. Vanuit de woonkamer is er direct toegang tot de royale overkapping, een heerlijke plek om te genieten van het buitenleven en een waar verlengstuk van de woonkamer.
De tegenovergelegen keuken is een uniek, eigen ontwerp met een robuuste uitstraling dankzij beton en steigerhout. Deze is uitgerust met hoogwaardige apparatuur van het merk “Smeg” w.o. een 5-pits inductiekookplaat, grote oven en afzuigkap. Aangrenzend ligt de ruime bijkeuken/wasruimte met aansluitingen voor witgoed, een vaatwasser, separate cv-kast (Remeha HR-combiketel, bouwjaar 2019, huur) en een op maat gemaakte voorraadkast.
Tuin:
De prachtig aangelegde tuin is bereikbaar vanuit de woonkamer, de hal en de garage en is een waar paradijs voor de natuurliefhebber. Hier vindt u een eigen moestuin met broeikas en diverse fruit- en kruidenplanten (o.a. frambozen, aardbeien, appel-, peren- en pruimenbomen, tomaten). Verder beschikt de tuin over een natuurlijke zwemvijver met vlonder, een overdekte loungehoek met fraaie buitenkeuken (BBQ), een fraai gazon en een hottub die is aangesloten op een warmtepomp. De tuin is parkachtig aangelegd en voorzien van alle gemakken om te ontspannen. De fraai ingedeelde overkapping biedt drie heerlijke zones: een ruime zithoek om te ontspannen, een praktische carport met dubbele deuren en een wellnesshoek met elektrische sauna direct naast de hottub.
Parkeren:
Parkeren is hier geen probleem: de woning beschikt namelijk over een eigen oprit, een garage met dubbele sectionaalpoort en toegang tot het binnenterrein met een dubbele carport, waardoor er comfortabel plaats is voor zeker zes auto’s.
Werkplaats:
Via de garage heeft u toegang tot twee separate bergruimtes, ideaal voor het stallen van fietsen, gereedschap of te gebruiken als werkplaats.
Eerste verdieping:
Op de ruime overloop bevinden zich drie goed afgewerkte slaapkamers, waarvan twee voorzien van airconditioning. De slaapkamers zijn respectievelijk groot:
1) 8.20 x 3.00 met airconditioning
2) 4,17 x 3.58
3) 3.50 x 2.38
De royale badkamer 3.93 x 3.61 is geheel betegeld en beschikt over een ligbad met whirlpoolfunctie, tweede toilet, handdoekradiator, douche met stijlvolle “steellook” deur, een op maat gemaakt badmeubel, mechanische ventilatie en een raam voor daglicht en extra frisse lucht.
Tweede verdieping:
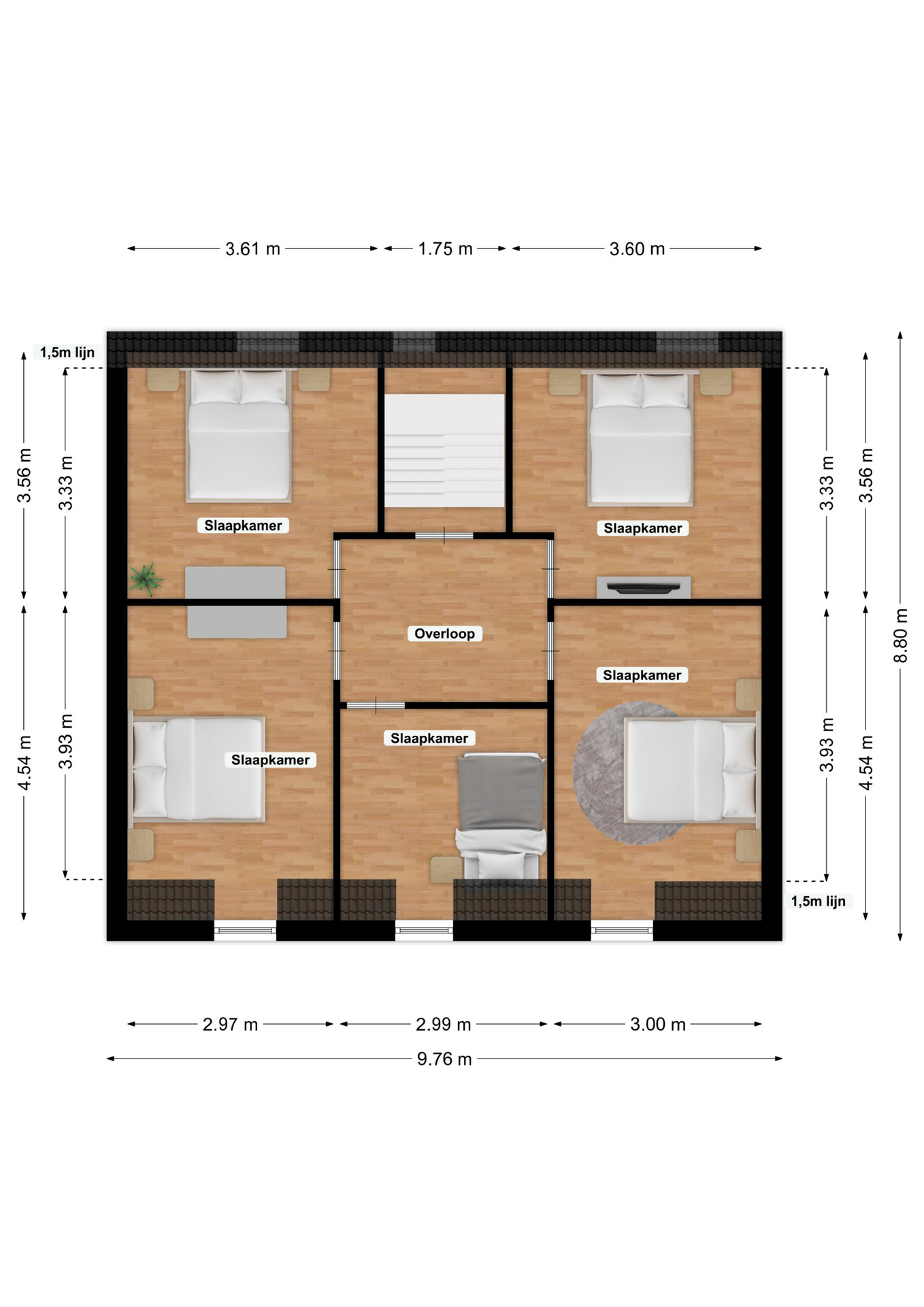
Via een vaste trap bereikt u de royale tweede verdieping met nog eens vijf slaapkamers, allen voorzien van moderne laminaatvloeren van respectievelijk:
4) 3.93 x 3.00
5) 3.60 x 3.33
6) 3.61 x 3.33
7) 3.93 x 2.97
8) 2.99 x 3.25
Zolder:
Tot slot is er een handige bergzolder bereikbaar via een vlizotrap.
Bijzonderheden:
– Het gehele woonhuis en tuin zijn gerenoveerd tussen 2023 en 2025;
– De zoldervloer is geïsoleerd met 12cm PIR-platen;
– Energielabel C;
– De vloeren van de woonkamer, keuken, hal en eerste verdieping zijn geïsoleerd met 4 cm PIR-platen;
– De gehele woning is voorzien van kunststof kozijnen en dubbele beglazing;
– De eerste verdieping is voorzien van rolluiken;
– U heeft beschikking tot het parkeren van 6 auto’s op eigen terrein;
– Garage voorzien van dubbele sectionaalpoort om door te rijden tot tuin met royale carport;
– Twee werkplaatsen;
– Tuin met elektrische sauna, hottub, loungehoek, buitenkeuken, moestuin en zwemvijver;
– De tuin beschikt over twee regenwateropslagtanks van 1000 ltr p.stuk, ideaal om de tuin op een duurzame manier te besproeien;
– Houtopslag achter de carport, ideaal voor de houtkachel;
– De woning beschikt over 4 airco’s namelijk: woonkamer, grote slaapkamer, kleine slaapkamer en zolder (Daikin (3) & LG (1);
Aan doorgaande weg gelegen verrassend ruim halfvrijstaand woonhuis met kelder, maar liefst acht slaapkamers, een heerlijke tuin met zwemvijver, garage, overkapping met buitenkeuken en welnesshoek, dubbele carport en zolder. De woning is gelegen aan de Kantstraat 12 te Landgraaf. Souterrain: Via een fraaie betonnen trap bereikt u de…

Kenmerken
- Status Beschikbaar
- Vraagprijs € 425.000,- k.k.
- Aanvaarding In overleg
- Soort woonhuis Halfvrijstaande woning
- Soort bouw Bestaande bouw
- Bouwjaar 1950
- Soort dak Zadeldak
- Onderhoud binnen Goed tot uitstekend
- Onderhoud buiten Goed tot uitstekend
- Gebruiksoppervlakte wonen ca. 222 m2
- Oppervlakte gebouwgebonden ca. 33 m2
- Externe bergruimte ca. 63 m2
- Overige inpandige ruimte ca. 43 m2
- Inhoud ca. 926 m3
- Perceeloppervlakte ca. 777 m2
- Aantal kamers 9 kamers
- Aantal slaapkamers 8
- Aantal badkamers 1 badkamer
- Badkamervoorzieningen Toilet, douche, dubbele wastafel, wastafelmeubel, whirlpool
- Aantal woonlagen 5 woonlagen
- Voorzieningen Rolluiken, tv kabel, airconditioning, rookkanaal
- Energielabel C
- Isolatie Dakisolatie, dubbel glas
- Verwarming Cv ketel
- Warm water Cv ketel
- C.v.-ketel type Gas
- C.v.-ketel bouwjaar 2019
- Eigendom Huur
- Ligging In woonwijk
- Hoofdtuin Achtertuin
- Oppervlakte hoofdtuin ca. 625 m2
- Ligging hoofdtuin Noord
- Achterom Ja
- Kwaliteit tuin Fraai aangelegd
- Schuur / berging Aangebouwd steen
- Aantal schuren / bergingen 2
- Parkeerfaciliteiten Openbaar parkeren, op eigen terrein
- Garage Aangebouwd steen, carport
Plattegronden





Cijfers voor de wijk
Burgerlijke staat
- Gehuwd 1420
- Ongehuwd 1265
- Gescheiden 300
- Verweduwd 185
Leeftijd in gemeente
- 0-15 13%
- 15-15 10%
- 25-45 21%
- 45-65 33%
- 65+ 23%
Leeftijd buurtbewoners
- 0-15 15%
- 15-15 10%
- 25-45 24%
- 45-65 32%
- 65+ 20%
Benieuwd naar de waarde van je woning?
Maak dan een afspraak voor een gratis waardebepaling zonder verplichtingen.
Even binnenkijken?
Neem vrijblijvend contact met ons op.
