Terug naar overzicht
Kerkrade

Kaalheidersteenweg 24

€ 375.000, - k.k.

Wij mogen u deze halfvrijstaande woning aanbieden.
De woning wordt in ruwbouwstaat aangeboden/geleverd. De woning is gelegen aan de Kaalheidersteenweg 24 te Kerkrade.

Deze woning bevindt zich in ruwbouwstaat, wat de ideale opportuniteit biedt om het pand volledig naar eigen smaak en wensen af te werken. De constructieve werken zijn reeds uitgevoerd.

Dankzij de ruwbouwfase geniet u van maximale vrijheid in indeling, materiaalkeuze en afwerkingsniveau. Dit maakt de woning uitermate geschikt voor wie op zoek is naar een persoonlijk woonproject of een interessante investering.

De woning beschikt over een solide basis en biedt tal van mogelijkheden voor verdere inrichting.
De woning is gelegen nabij de GaiaZoo, met een vlotte verbinding en de nabijheid van voorzieningen.

Kortom: een unieke kans voor wie zelf de afwerking in handen wilt nemen en waarde wilt creëren.

Bijzonderheden:
– De woning is geheel wind en waterdicht.
– De woning is voorzien van kunststof kozijnen met HR ++ glas.
– De woning is voorzien van 15 cm spouwisolatie.
– De woning is voorzien van 27 cm dakisolatie.
– De woning is volledig gerealiseerd met betonbouw waardoor alle binnenmuren weg kunnen en/of verplaatst kunnen worden.
– De hoofdafvoer is reeds aanwezig.
– De technische installaties, zoals elektriciteit, sanitair en verwarming zijn niet aanwezig.
– Het perceel dient nog juist kadastraal ingemeten te worden. Het perceel zal ca. 310 m2 groot zijn na inmeting.

Wij mogen u deze halfvrijstaande woning aanbieden. De woning wordt in ruwbouwstaat aangeboden/geleverd. De woning is gelegen aan de Kaalheidersteenweg 24 te Kerkrade. Deze woning bevindt zich in ruwbouwstaat, wat de ideale opportuniteit biedt om het pand volledig naar eigen smaak en wensen af te werken. De constructieve werken…

Kenmerken

  • Status Beschikbaar
  • Vraagprijs € 375.000,- k.k.
  • Aanvaarding In overleg
  • Soort woonhuis Halfvrijstaande woning
  • Soort bouw Bestaande bouw
  • Bouwjaar 2021
  • Soort dak Zadeldak
  • Onderhoud binnen Goed
  • Onderhoud buiten Goed
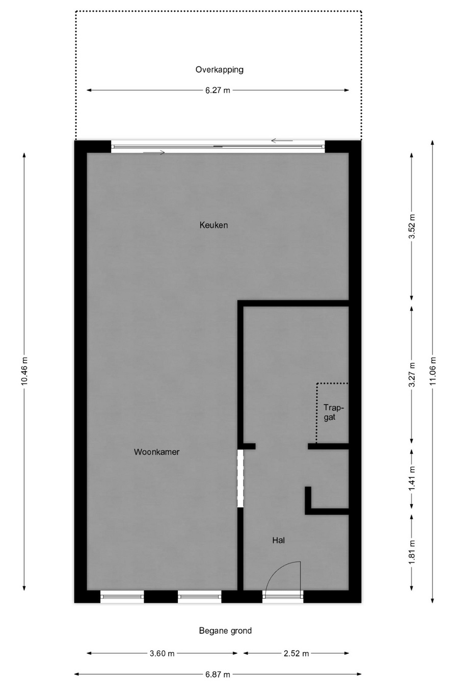
  • Gebruiksoppervlakte wonen ca. 131 m2
  • Oppervlakte gebouwgebonden ca. 21 m2
  • Overige inpandige ruimte ca. 116 m2
  • Inhoud ca. 771 m3
  • Perceeloppervlakte ca. 310 m2
  • Aantal kamers 2 kamers
  • Aantal slaapkamers 1
  • Aantal woonlagen 4 woonlagen
  • Energielabel C
  • Isolatie Volledig geisoleerd
  • Ligging Aan drukke weg
  • Parkeerfaciliteiten Openbaar parkeren, op eigen terrein
  • Garage Geen garage
Meer kenmerken Minder kenmerken

Plattegronden

Statistieken

Cijfers voor de wijk

Burgerlijke staat

  • Gehuwd
  • Ongehuwd
  • Gescheiden
  • Verweduwd

Leeftijd in gemeente

Leeftijd buurtbewoners

  • 0-15 14%
  • 15-15 9%
  • 25-45 23%
  • 45-65 34%
  • 65+ 20%

Benieuwd naar de waarde van je woning?

Maak dan een afspraak voor een gratis waardebepaling zonder verplichtingen.

Even binnenkijken?

Neem vrijblijvend contact met ons op.