Terug naar overzicht
Hoensbroek

Julianastraat 41

€ 195.000, - k.k.

In de wijk “Nieuw Lotbroek” mogen wij u deze tussenwoning met 3 slaapkamers en een oprit aanbieden.
De woning is gelegen aan de Julianastraat 41 Hoensbroek.

Indeling:
Souterrain:
De provisiekelder is groot ca. 7 m².

Begane grond:
Middels de hal/entree met meterkast, trapopgang en deels betegelde toiletruimte met staand toilet komt u in de woonkamer en gesloten keuken.
De woonkamer is groot ca. 20 m² en is voorzien van grote raampartijen en een laminaatvloer.
De gesloten keuken is groot ca. 7 m² en is voorzien van een recht opgestelde keukeninrichting met de navolgende apparatuur: gaskookplaat en een vaatwasser. Vanuit de keuken komt u in de serre.
De serre is groot ca. 14 m² en in deze serre is eveneens de Intergas CV-Ketel aanwezig alsmede de aansluiting voor de wasmachine.
De berging is via de serre te bereiken. Deze berging is groot ca. 7 m².

De tuin is via de serre te bereiken.
De tuin met terras, gazon en achteringang is gelegen op het noordoosten.

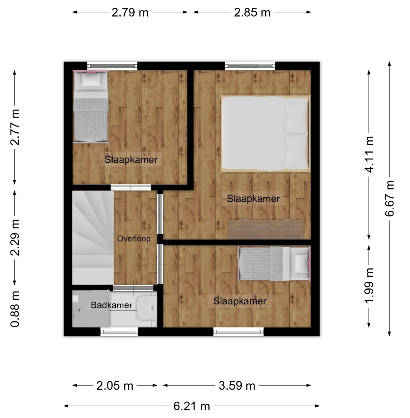
1e Verdieping:
Middels de overloop zijn de 3 slaapkamers en de badkamer te bereiken.
De slaapkamers zijn alle voorzien van een laminaatvloer en zijn respectievelijk groot ca. 13 m², 8 m² en 7 m².
De geheel betegelde badkamer is groot ca. 2 m² en is voorzien van een vaste wastafel en een douche.

2e Verdieping:
Bergvliering.

Bijzonderheden:
– De woning is voorzien van houten kozijnen.
– De woning is grotendeels voorzien van dubbele beglazing.
– De woning is voorzien van rolluiken (deels elektrisch bedienbaar).
– De Intergas CV -ketel met bouwjaar 2020 is eigendom.
– De woning is gelegen in een kindvriendelijke woonwijk.
– De woning is middels een achtergelegen pad aan de achterzijde te bereiken.

In de wijk “Nieuw Lotbroek” mogen wij u deze tussenwoning met 3 slaapkamers en een oprit aanbieden. De woning is gelegen aan de Julianastraat 41 Hoensbroek. Indeling: Souterrain: De provisiekelder is groot ca. 7 m². Begane grond: Middels de hal/entree met meterkast, trapopgang en deels betegelde…

Kenmerken

  • Status Beschikbaar
  • Vraagprijs € 195.000,- k.k.
  • Aanvaarding In overleg
  • Soort woonhuis Tussenwoning
  • Soort bouw Bestaande bouw
  • Bouwjaar 1951
  • Soort dak Zadeldak
  • Onderhoud binnen Goed
  • Onderhoud buiten Goed
  • Gebruiksoppervlakte wonen ca. 86 m2
  • Externe bergruimte ca. 4 m2
  • Overige inpandige ruimte ca. 14 m2
  • Inhoud ca. 370 m3
  • Perceeloppervlakte ca. 240 m2
  • Aantal kamers 4 kamers
  • Aantal slaapkamers 3
  • Aantal badkamers 1 badkamer
  • Badkamervoorzieningen Douche, wastafel
  • Aantal woonlagen 3 woonlagen
  • Voorzieningen Rolluiken
  • Energielabel F
  • Isolatie Gedeeltelijk dubbel glas
  • Verwarming Cv ketel
  • Warm water Cv ketel
  • C.v.-ketel type Gas
  • C.v.-ketel bouwjaar 2020
  • Eigendom Eigendom
  • Ligging In woonwijk
  • Schuur / berging Aangebouwd steen
  • Aantal schuren / bergingen 1
  • Parkeerfaciliteiten Openbaar parkeren, op eigen terrein
  • Garage Geen garage
Meer kenmerken Minder kenmerken

Plattegronden

Statistieken

Cijfers voor de wijk

Burgerlijke staat

  • Gehuwd
  • Ongehuwd
  • Gescheiden
  • Verweduwd

Leeftijd in gemeente

Leeftijd buurtbewoners

  • 0-15 14%
  • 15-15 10%
  • 25-45 24%
  • 45-65 32%
  • 65+ 19%

Benieuwd naar de waarde van je woning?

Maak dan een afspraak voor een gratis waardebepaling zonder verplichtingen.

Even binnenkijken?

Neem vrijblijvend contact met ons op.