Jekerstraat 29
Op een absolute toplocatie mogen wij u dit verrassend ruime en instapklare woonhuis aanbieden met karakter en vele mogelijkheden! Het object beschikt over een separate studio op de begane grond, een fijne achtertuin, moderne badkamers en keukens, twee dakterrassen, airco en nog veel meer… Kortom, dit object moet u gezien hebben!
INDELING
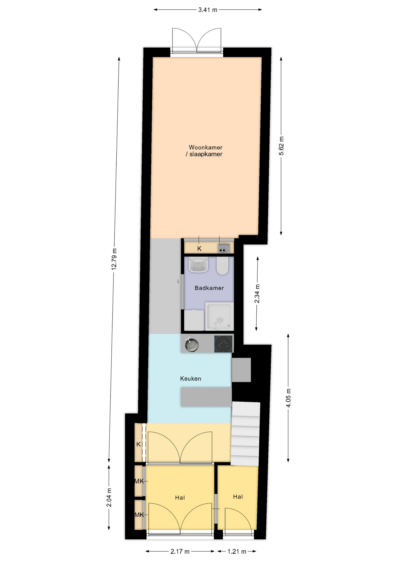
Begane grond:
Entree/hal met dubbele meterkast, trapopgang en toegang tot de studio. De keuken met schiereiland (ca. 8m²) is voorzien van een koelkast, diepvries, inductiekookplaat met vier zones, afzuiging, vaatwasser en combi-magnetronoven. Vanuit de keuken is er toegang tot de badkamer en de woon-/ slaapkamer. De badkamer (ca. 4m²) is voorzien van een wastafel, toilet, douche en wasmachineaansluitingen. Vanuit de woon-/ slaapkamer (ca. 20m²) is er toegang tot een bergkast met de Cv-ketel (eigendom) en de achtertuin. De gehele begane grond (m.u.v. voorportaal) is voorzien van vloerverwarming. De achtertuin (ca. 45m²) is grotendeels betegeld en voorzien van een vlonder, plantenborders en een stenen buitenberging (ca. 5m2) welke beschikt over elektra.
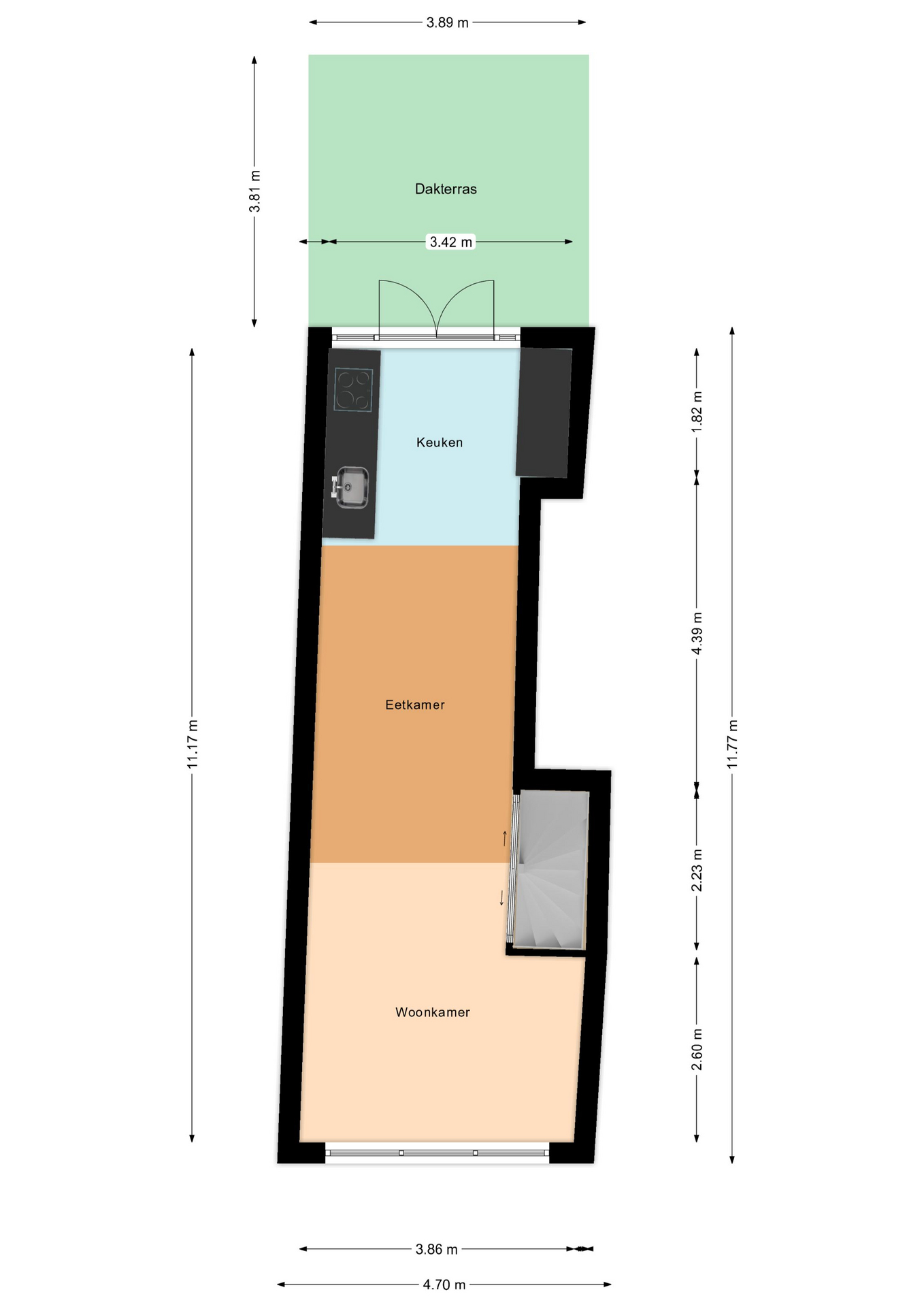
Eerste verdieping:
Middels moderne stalen schuifdeuren bereikt men de woon-/ eetkamer (ca. 26.5m²) met veel lichtinval en toegang tot de moderne open keuken. De keuken met kasten aan weerszijden (ca. 9m²) is voorzien van een koelkast, diepvries, vaatwasser, inductiekookplaat met vier zones en geïntegreerde afzuiging en een combi hetelucht oven. Daarbij is er vanuit de keuken toegang tot het dakterras. Dit dakterras (ca. 15m²) is voorzien van kunstgras en water- en elektrapunten. De gehele eerste verdieping is voorzien van vloerverwarming en een fraaie eikenhouten parketvloer.
Tweede verdieping:
Middels vaste trap te bereiken overloop met toegang tot een slaapkamer, toilet en de badkamer. De moderne badkamer (ca. 7.5m²) is aan de voorzijde van de woning gesitueerd en beschikt over een dubbele wastafel met meubel, inloopdouche en een sauna. Het separate toilet is uitgerust met een fonteintje en een Geberit aquaclean toilet. De slaapkamer (ca. 9m²) is voorzien van een praktische airco en biedt toegang tot het tweede dakterras en de walk-in-closet. In de walk-in-closet (ca. 4.5m²) is de tweede Cv-ketel (eigendom) gesitueerd. De gehele tweede verdieping is voorzien van vloerverwarming. Het dakterras is ca. 8.5m² groot en beschikt over kunstgras.
Derde verdieping:
Middels vaste trap te bereiken derde verdieping / slaapkamer (totaal ca. 13m²) met ruime dakkapel, dakraam en de witgoedaansluitingen.
Nadere bijzonderheden:
– Verrassend ruime karakteristieke en instapklare woning met mogelijkheden op een toplocatie;
– Separate studio met eigen meterkast en Cv-installatie op de begane grond;
– Grotendeels voorzien van vloerverwarming;
– Voorzien van isolerende beglazing in houten en kunststof kozijnen;
– Voorzien van fijne achtertuin en twee dakterrassen;
– Voorzien van airco;
– Parkeren middels vergunning direct in de straat;
– Alle vermelde afmetingen zijn indicatief en kunnen afwijken van de werkelijkheid.
Omgeving:
Dit mooie object bestaande uit Jekerstraat 29 en Jekerstraat 29B is gelegen in een zijstraat van de Calvariestraat, aan de Jekerstraat 29, welke deel uitmaakt van het zogenaamde Kommelkwartier. De woning ligt op 5 minuten loopafstand van het Vrijthof en de Markt. Diverse voorzieningen als winkels, horeca, openbaar vervoer en bezienswaardigheden liggen in de directe nabijheid. Er is voldoende parkeergelegenheid langs de openbare weg, zowel betaald als met vergunning voor bewoners. Uitvalswegen naar autosnelwegen richting Eindhoven, Heerlen en Luik zijn gemakkelijk en snel te bereiken.
Op een absolute toplocatie mogen wij u dit verrassend ruime en instapklare woonhuis aanbieden met karakter en vele mogelijkheden! Het object beschikt over een separate studio op de begane grond, een fijne achtertuin, moderne badkamers en keukens, twee dakterrassen, airco en nog veel meer… Kortom, dit object moet u gezien…

Kenmerken
- Status Beschikbaar
- Vraagprijs € 598.000,- k.k.
- Aanvaarding In overleg
- Soort woonhuis Tussenwoning
- Soort bouw Bestaande bouw
- Bouwjaar 1925
- Soort dak Zadeldak
- Onderhoud binnen Goed
- Onderhoud buiten Goed
- Gebruiksoppervlakte wonen ca. 131 m2
- Oppervlakte gebouwgebonden ca. 23 m2
- Externe bergruimte ca. 5 m2
- Inhoud ca. 460 m3
- Perceeloppervlakte ca. 107 m2
- Aantal kamers 5 kamers
- Aantal slaapkamers 3
- Aantal badkamers 2 badkamers
- Badkamervoorzieningen Toilet, douche, wastafel, vloerverwarming, wasmachineaansluiting, dubbele wastafel, wastafelmeubel, inloopdouche, vloerverwarming, sauna
- Aantal woonlagen 4 woonlagen
- Voorzieningen Mechanische ventilatie, rolluiken, airconditioning, sauna, glasvezel kabel
- Energielabel C
- Isolatie Dakisolatie, muurisolatie, vloerisolatie, dubbel glas
- Verwarming Cv ketel, vloerverwarming gedeeltelijk
- Warm water Cv ketel
- C.v.-ketel type Gas
- C.v.-ketel bouwjaar 2020
- Eigendom Eigendom
- Ligging In woonwijk
- Hoofdtuin Achtertuin
- Oppervlakte hoofdtuin ca. 45 m2
- Ligging hoofdtuin Noordoost
- Kwaliteit tuin Normaal
- Schuur / berging Vrijstaand steen
- Aantal schuren / bergingen 1
- Voorzieningen Voorzien van elektra
- Parkeerfaciliteiten Betaald parkeren, parkeervergunningen
- Garage Geen garage
Plattegronden




Cijfers voor de wijk
Burgerlijke staat
- Gehuwd
- Ongehuwd
- Gescheiden
- Verweduwd
Leeftijd in gemeente
Leeftijd buurtbewoners
- 0-15 4%
- 15-15 35%
- 25-45 26%
- 45-65 17%
- 65+ 18%
Benieuwd naar de waarde van je woning?
Maak dan een afspraak voor een gratis waardebepaling zonder verplichtingen.
Downloads
Even binnenkijken?
Neem vrijblijvend contact met ons op.
