Terug naar overzicht
Heerlen

Insula 74

€ 259.000, - k.k.

In woonwijk gelegen ideale eengezinswoning met drie slaapkamers, zolder (mogelijkheid voor vaste trap), tuin en berging, Insula 74 te Heerlen / Molenberg.

Indeling

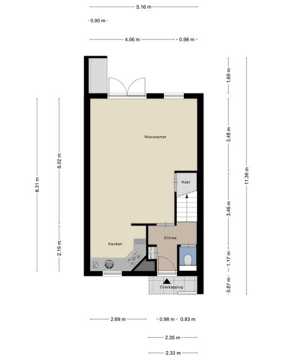
Begane grond:
Voortuin met ruime oprit voor het plaatsen van een auto en entree naar de woning.

INDELING:

Begane grond:
Voortuin met ruime bestrating naar entree met voldoende stallingsruimte voor de auto.
Entree. Hal met meterkast, trapopgang en deels betegelde toiletruimte met zwevend toilet. Ruime woonkamer met veel lichtinval door de grote raampartijen en bergkast. De woonkamer staat in verbinding met de open keuken en deze is voorzien van een keuken in hoekopstelling inclusief apparatuur: oven, gaskookplaat, afzuigkap en vaatwasser.
De gehele begane grondvloer is in 2025 voorzien van nieuw spuitwerk en een grindvloer.

De achtertuin heeft een ruim terras met elektrisch bedienbaar zonnescherm en voetpad naar de berging en achteringang. De berging is ca. 4m2 groot en ideaal voor het stallen van fietsen of tuinmeubels. De tuin is rondom voorzien van houten schuttingen.

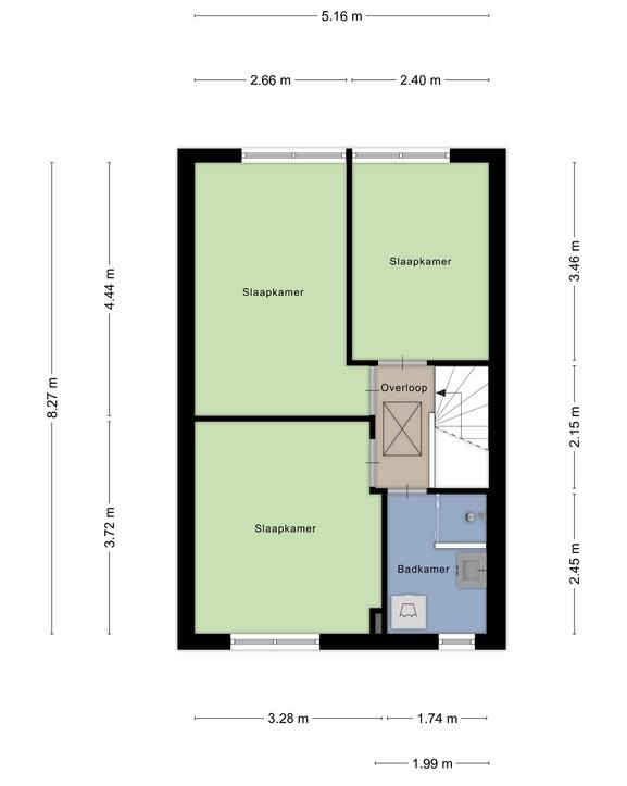
Eerste verdieping:
Overloop met toegang naar drie slaapkamers. De slaapkamers zijn respectievelijk 12m2, 12m2 en 8.5m2 groot en eveneens voorzien van dezelfde grindvloer en spuitwerk.
De badkamer is geheel betegeld en voorzien van douche met glazen deur en wastafel met badmeubel.

Zolder:
De zolder is bereikbaar middels een vlizotrap. De mogelijkheid bestaat om een vaste trap naar de zolder te realiseren zodat hier een vierde slaapkamer ontstaat. De nokhoogte bedraagt ca. 2.90m waardoor dit een ideale slaapkamer zou kunnen zijn. Hier is tevens de technische ruimte met opstelling van de HR combi cv-installatie (Intergas, bouwjaar 2017 & eigendom).

Bijzonderheden:
– Ideale starterswoning met 3 slaapkamers (mogelijkheid 4).
– De woning is recent nog voorzien van nieuwe vloeren en spuitwerk schilderwerk.
– Uitgerust met zonnepanelen (eigendom).
– Kunststof kozijnen met dubbele beglazing (HR++ uit 2015).
– Energielabel A.
– Gelegen nabij winkels en op loop/fietsafstand van Heerlen centrum.
– Aanvaarding in overleg.

In woonwijk gelegen ideale eengezinswoning met drie slaapkamers, zolder (mogelijkheid voor vaste trap), tuin en berging, Insula 74 te Heerlen / Molenberg. Indeling Begane grond: Voortuin met ruime oprit voor het plaatsen van een auto en entree naar de woning. INDELING: Begane grond: Voortuin met ruime bestrating…

Kenmerken

  • Status Verkocht
  • Vraagprijs € 259.000,- k.k.
  • Aanvaarding In overleg
  • Soort woonhuis Tussenwoning
  • Soort bouw Bestaande bouw
  • Bouwjaar 1982
  • Soort dak Zadeldak
  • Onderhoud binnen Goed
  • Onderhoud buiten Goed
  • Gebruiksoppervlakte wonen ca. 85 m2
  • Oppervlakte gebouwgebonden ca. 3 m2
  • Externe bergruimte ca. 6 m2
  • Overige inpandige ruimte ca. 23 m2
  • Inhoud ca. 382 m3
  • Perceeloppervlakte ca. 149 m2
  • Aantal kamers 5 kamers
  • Aantal slaapkamers 3
  • Aantal badkamers 1 badkamer
  • Badkamervoorzieningen Douche, wastafel, wasmachineaansluiting
  • Aantal woonlagen 3 woonlagen
  • Voorzieningen Mechanische ventilatie, zonnepanelen
  • Energielabel A
  • Isolatie Dakisolatie, muurisolatie, vloerisolatie, dubbel glas
  • Verwarming Cv ketel
  • Warm water Cv ketel
  • C.v.-ketel type Gas
  • C.v.-ketel bouwjaar 2017
  • Eigendom Eigendom
  • Ligging Aan rustige weg, in woonwijk
  • Hoofdtuin Achtertuin
  • Oppervlakte hoofdtuin ca. 72 m2
  • Ligging hoofdtuin West
  • Achterom Ja
  • Kwaliteit tuin Normaal
  • Schuur / berging Vrijstaand steen
  • Aantal schuren / bergingen 1
  • Parkeerfaciliteiten Op eigen terrein
  • Garage Geen garage
Meer kenmerken Minder kenmerken

Plattegronden

Statistieken

Cijfers voor de wijk

Burgerlijke staat

  • Gehuwd
  • Ongehuwd
  • Gescheiden
  • Verweduwd

Leeftijd in gemeente

Leeftijd buurtbewoners

  • 0-15 15%
  • 15-15 9%
  • 25-45 21%
  • 45-65 31%
  • 65+ 24%

Benieuwd naar de waarde van je woning?

Maak dan een afspraak voor een gratis waardebepaling zonder verplichtingen.

Even binnenkijken?

Neem vrijblijvend contact met ons op.