Terug naar overzicht
Landgraaf

Hoogstraat 92

€ 295.000, - k.k.

Ruimte, mogelijkheden en een royale tuin met garage!

Aan de Hoogstraat 92 in Landgraaf ligt deze verrassend ruime woning met volop mogelijkheden voor wonen en werken aan huis. Met maar liefst zes slaapkamers, een multifunctionele woon-/winkelruimte op de begane grond en een royale L-vormige tuin met garage is dit een ideaal object voor grote gezinnen of mensen die extra ruimte zoeken.

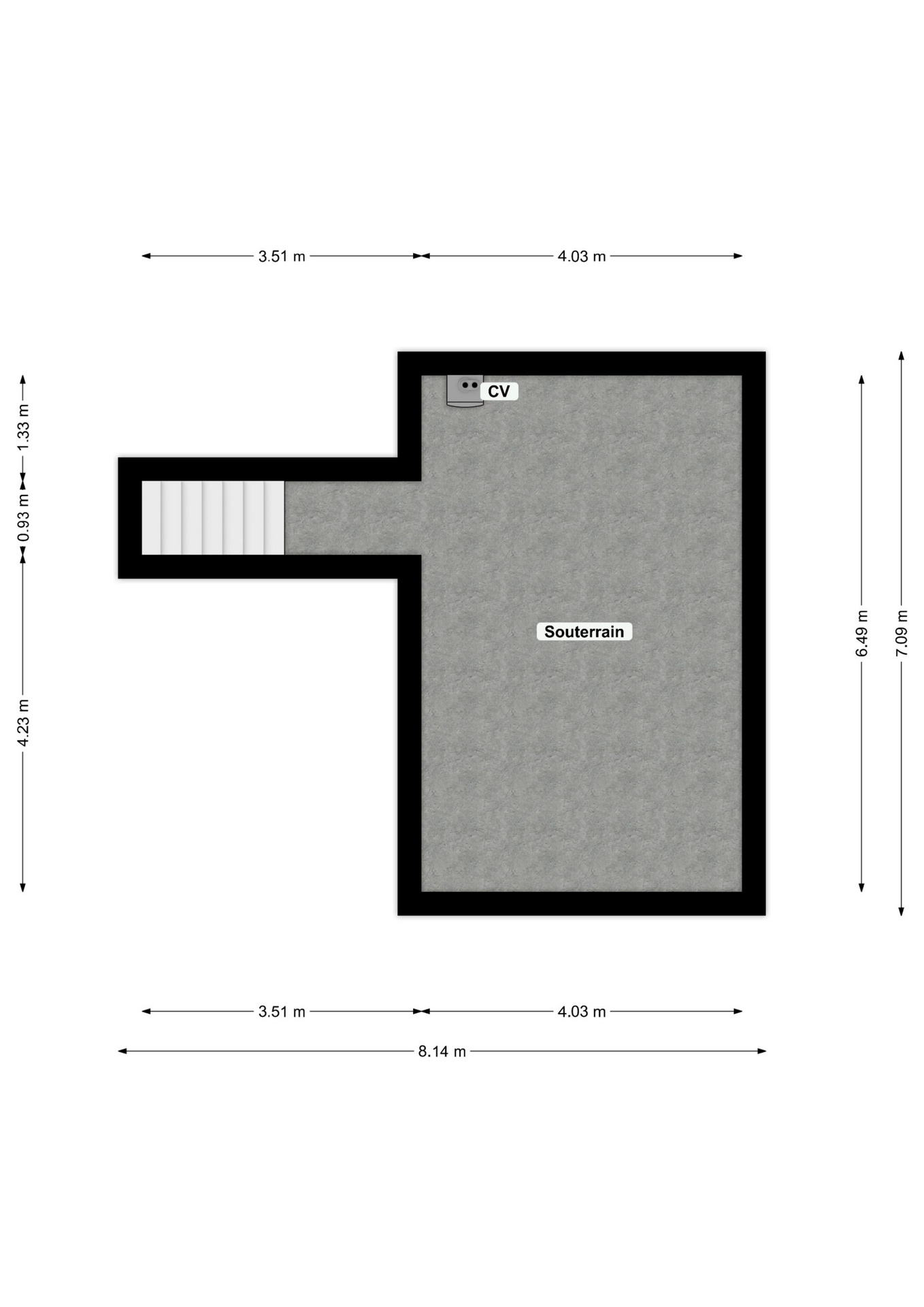
Souterrain:
Praktische kelderruimte met opstelling van de combi CV-ketel (huur, bwj. 2013, Hesi). Ideaal als extra opslagruimte.

Begane grond:
Via de entree komt u in de ontvangsthal met directe toegang tot de ruime woonkamer of voormalige winkelruimte aan de linkerzijde. Dankzij de grote raampartijen aan de voorzijde geniet u hier van veel lichtinval. Deze ruimte is uitstekend geschikt voor diverse doeleinden, zoals een kantoor, praktijkruimte of hobbyruimte. Aansluitend bevindt zich de leefkeuken met een L-vormige keukenopstelling, voorzien van: 4-pits gaskookplaat, afzuigkap, (oven en vaatwasser zijn defect). Daarnaast is er een separate toiletruimte met betegeld staand toilet. Achter het toilet bevindt zich een provisie-/bergruimte met extra opslagmogelijkheden.

Direct naast de keuken ligt een extra slaapkamer of kantoorruimte met schuifdeur naar de tuin, ideaal als werkkamer of gelijkvloerse slaapkamer.

Eerste verdieping:
Op de overloop heeft u toegang tot drie ruime slaapkamers van respectievelijk:
2) 6.52 x 3.93
3) 3.54 x 3.30
4) 3.84 x 2.45
De geheel betegelde badkamer is voorzien van een ligbad, tweede toilet, wastafel met ombouwmeubel en groot raam
met veel lichtinval.

Tweede verdieping:
Via een vaste trap bereikt u de volwaardige zolderverdieping met nog twee slaapkamers:
5) 6.23 x 3.93
6) 3.54 x 3.30
Tevens is er mogelijkheid om hier een zevende slaapkamer te creëren.

Tuin:
De woning beschikt over een royale L-vormige tuin, bereikbaar via zowel de keuken als de slaapkamer op de begane grond. Achterin de tuin bevindt zich een garage, waardoor de tuin ook over een achteringang beschikt. De tuin dienst naar eigen smaak aangelegd te worden. De garage beschikt over een elektrisch bedienbare sectionaalpoort welke u toegang verschaft tot de oprit.

Bijzonderheden:
– Oprit met ruimte voor twee auto’s!
– Garage aanwezig!
– Energielabel D;
– De gehele woning is voorzien van kunststof kozijnen en dubbele beglazing, waarbij de gehele voorzijde van
de woning beschikt over triple beglazing;
– DE WONING IS PER DIRECT BESCHIKBAAR!
– De woning is voorzien van dakisolatie;
– De woning dient naar smaak gerenoveerd te worden!
– het dak van de aanbouw is ca 4 tot 5 jaar geleden vernieuwd;
– De woning beschikt over 6 tot 7 slaapkamers;
– De woning is voorzien van 16 zonnepanelen (bwj. ca. 2019/ 2020, eigendom);
– De woning is gelegen op een centrale locatie nabij alle dagelijkse voorzieningen.

Ruimte, mogelijkheden en een royale tuin met garage! Aan de Hoogstraat 92 in Landgraaf ligt deze verrassend ruime woning met volop mogelijkheden voor wonen en werken aan huis. Met maar liefst zes slaapkamers, een multifunctionele woon-/winkelruimte op de begane grond en een royale L-vormige tuin met garage is dit een…

Kenmerken

  • Status Beschikbaar
  • Vraagprijs € 295.000,- k.k.
  • Aanvaarding In overleg
  • Soort woonhuis Tussenwoning
  • Soort bouw Bestaande bouw
  • Bouwjaar 1928
  • Soort dak Zadeldak
  • Onderhoud binnen Goed
  • Onderhoud buiten Goed
  • Gebruiksoppervlakte wonen ca. 254 m2
  • Oppervlakte gebouwgebonden ca. 20 m2
  • Externe bergruimte ca. 17 m2
  • Overige inpandige ruimte ca. 29 m2
  • Inhoud ca. 597 m3
  • Perceeloppervlakte ca. 449 m2
  • Aantal kamers 8 kamers
  • Aantal slaapkamers 6
  • Aantal badkamers 1 badkamer
  • Badkamervoorzieningen Ligbad, toilet, wastafel, wastafelmeubel
  • Aantal woonlagen 4 woonlagen
  • Voorzieningen Airconditioning, schuifpui, dakraam, zonnepanelen
  • Energielabel D
  • Isolatie Dakisolatie, dubbel glas
  • Verwarming Cv ketel
  • Warm water Cv ketel
  • C.v.-ketel type Gas
  • C.v.-ketel bouwjaar 2013
  • Eigendom Huur
  • Hoofdtuin Achtertuin
  • Oppervlakte hoofdtuin ca. 180 m2
  • Ligging hoofdtuin Zuidoost
  • Achterom Ja
  • Kwaliteit tuin Normaal
  • Schuur / berging Vrijstaand hout
  • Aantal schuren / bergingen 1
  • Parkeerfaciliteiten Openbaar parkeren, op eigen terrein
  • Garage Vrijstaand steen
Meer kenmerken Minder kenmerken

Plattegronden

Statistieken

Cijfers voor de wijk

Burgerlijke staat

  • Gehuwd
  • Ongehuwd
  • Gescheiden
  • Verweduwd

Leeftijd in gemeente

Leeftijd buurtbewoners

  • 0-15 12%
  • 15-15 10%
  • 25-45 21%
  • 45-65 34%
  • 65+ 22%

Benieuwd naar de waarde van je woning?

Maak dan een afspraak voor een gratis waardebepaling zonder verplichtingen.

Even binnenkijken?

Neem vrijblijvend contact met ons op.