Terug naar overzicht
Herten

Holleweg 16

€ 492.000, - k.k.

De Holleweg 16 is zo’n plekje in Herten dat niet veel inwoners kennen, het is een verkeersluwe straat gelegen in het vroegere kleine buurtschapje “Aan de Rijksweg”. Wat is dit een goed onderhouden en verrassend huis: aan de voorzijde is niet te zien hoe ruim het huis is en hoe heerlijk de tuin is. Het huis heeft fijne leefruimtes zoals een z-vormige woonkamer en halfopen keuken van 47 m² en 4 ruime slaapkamers. Aan bergruimte geen gebrek: er is een volledig souterrain, een bijkeuken en een garage. De achtertuin is maar liefst 35 meter diep en ligt op het zuidwesten. Achter in de tuin ligt een gezellig buitenverblijfje en een handige berging/klusruimte. Het is een energievriendelijk huis met o.a. 9 zonnepanelen en energielabel A.

Indeling:
Souterrain:
Het woonhuis heeft een volledig souterrain. Dit is gesplitst in 3 ruimtes van respectievelijk 9.14 x 4.00, 4.90 x 2.30 en 5.80 x 2.30. Dit zijn ideale ruimtes voor opslag, maar natuurlijk ook voor een hobbyruimte, speelkamer, klusplek, chillruimte of mancave.

Begane grond:
De overdekte entree biedt toegang tot de hal met tegelvloer. Hier is de uitgebreide meterkast en de betegelde toiletruimte voorzien van een zwevend toilet en fonteintje. De woonkamer is Z-vormig (9.93 x 3.95) en vormt samen met de halfopen keuken een royale leefruimte van ongeveer 47 m². Er is een antracietkleurige tegelvloer met vloerverwarming en een pelletkachel voor de gezellige warmte. De openslaande tuindeuren met grote ramen ernaast zorgen voor optimaal tuincontact. De keuken 2.78 x 2.36 is voorzien van een hoekinstallatie met de navolgende apparatuur: 5-pits gaskookplaat, afzuigkap, combi-oven en koelkast. Vanuit de keuken is een praktische bijkeuken bereikbaar 2.50 x 2.20, deze is ook voorzien van dezelfde tegelvloer en hier zijn de aansluitpunten voor de wasapparatuur. De garage is inpandig bereikbaar vanuit de bijkeuken. Deze garage 6.00 x 3.00 heeft een kantelpoort met loopdeur en hier is een wasbak.

Eerste verdieping:
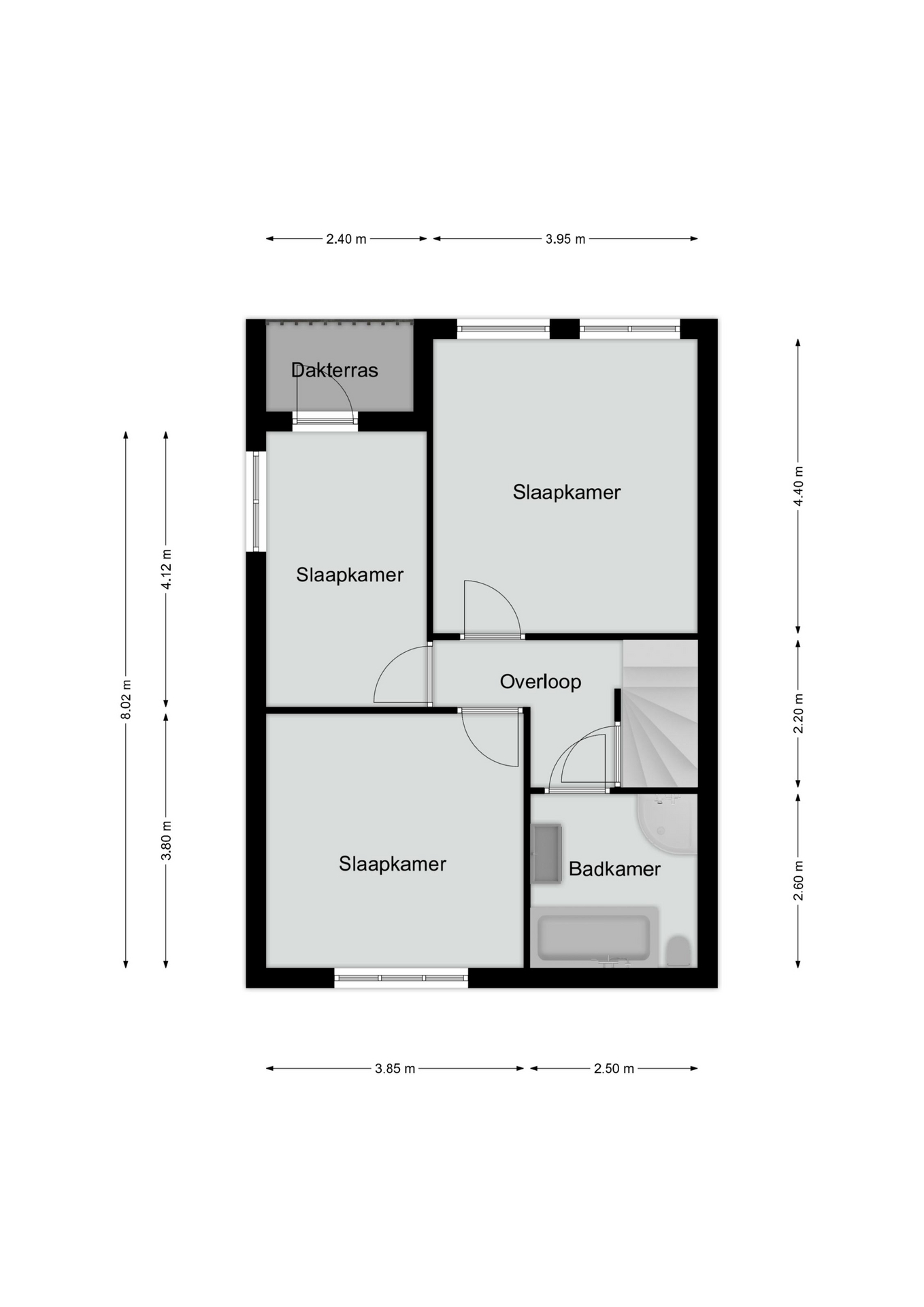
De overloop biedt toegang tot 3 slaapkamers met laminaatvloer, respectievelijk 4.40 x 3.95, 3.85 x 3.80 en 4.12 x 2.40 (17, 15 en 10 m²). De laatste kamer heeft een dakterras. De badkamer is geheel betegeld en voorzien van een ligbad, douchecabine, wastafel en tweede toilet.

Tweede verdieping:
Met een vaste trap is deze hoge verdieping bereikbaar. De overloop biedt voldoende bergruimte en hier is de combi c.v.-installatie geplaatst (Vaillant ecoTec Plus 2023 eigendom). Hier is een ruime en lichte vierde slaapkamer gerealiseerd 5.76 x 3.85 (22 m²) met twee dakramen en laminaatvloer.

Tuin:
De tuin is gelegen op het zuidwesten, hier is de hele dag een plek een zon te vinden. Het overdekte terras 4.00 x 3.70 zorgt voor veel meer uren heerlijk buitenleven: de tuinset staat altijd klaar! De tuin is geheel omsloten en is maar liefst 35 meter diep. De aanplanting zorgt voor een tuin die het hele jaar groen is en beschutte en schaduwrijke plekjes. Achter in de tuin is een houten tuinhuis 3.60 x 3.60 geplaatst, dit is ingericht als een gezellig buitenverblijfje. Hierachter is een handige berging/schuur 9.20 5.70, hier kan veel geklust worden of spullen opgeslagen worden.

Bijzonderheden:
* Geheel hardhouten kozijnen met HR beglazing.
* De eerste verdieping is geheel voorzien van rolluiken.
* Er zijn 9 zonnepanelen (2021).
* Veel leefruimte en veel bergruimte: woonoppervlakte van 151 m² en overig inpandige ruimte 80 m².
* Rustige woonomgeving, dicht bij de uitgebreide dagelijkse voorzieningen van Herten, maar ook snel in de binnenstad van Roermond.

Omgeving:
De Holleweg is gelegen in het kleine buurtschapje “Aan de Rijksweg”, inmiddels is dit helemaal aaneengesloten op de wijken Molenveld en de Wolfsberg, die samen met het dorp Merum nu allemaal Herten genoemd worden. Vanaf hier zijn alle denkbare dagelijkse voorzieningen binnen handbereik, zoals twee supermarkten, bakker, drogisterij, kluswinkel, huishoudelijke artikelenwinkel met speelgoedafdeling en postagentschap, twee basisscholen, kinderdagverblijven en een rijk verenigingsleven. Er zijn uitgebreide sportvoorzieningen, waaronder voetbalvelden, tennisbanen, sporthal en fitness/healthcentre. Daarnaast is er op watersport en recreatiegebied vanalles te beleven door de nabijheid van de Maas, de Maasplassen en de jachthaven.
Het stadscentrum van Roermond met zijn uitgebreide voorzieningen en winkelcentrum is binnen 5 minuten bereikbaar. Door de ligging in de nabijheid van de autosnelwegen A2 en A73 zijn de steden Maastricht (30 autominuten), Eindhoven (35 autominuten), Düsseldorf (35 autominuten), Venlo (25 autominuten) en Nijmegen (45 autominuten) goed bereikbaar.

De Holleweg 16 is zo’n plekje in Herten dat niet veel inwoners kennen, het is een verkeersluwe straat gelegen in het vroegere kleine buurtschapje “Aan de Rijksweg”. Wat is dit een goed onderhouden en verrassend huis: aan de voorzijde is niet te zien hoe ruim het huis is en hoe…

Kenmerken

  • Status Verkocht onder voorbehoud
  • Vraagprijs € 492.000,- k.k.
  • Aanvaarding In overleg
  • Soort woonhuis Twee onder een kapwoning
  • Soort bouw Bestaande bouw
  • Bouwjaar 1998
  • Soort dak Zadeldak
  • Onderhoud binnen Goed
  • Onderhoud buiten Goed
  • Gebruiksoppervlakte wonen ca. 151 m2
  • Oppervlakte gebouwgebonden ca. 15 m2
  • Externe bergruimte ca. 65 m2
  • Overige inpandige ruimte ca. 80 m2
  • Inhoud ca. 761 m3
  • Perceeloppervlakte ca. 500 m2
  • Aantal kamers 8 kamers
  • Aantal slaapkamers 4
  • Aantal badkamers 1 badkamer
  • Badkamervoorzieningen Ligbad, toilet, douche, wastafel
  • Aantal woonlagen 4 woonlagen
  • Voorzieningen Mechanische ventilatie, rolluiken, zonnepanelen
  • Energielabel A
  • Isolatie Dakisolatie, muurisolatie, vloerisolatie, hr glas
  • Verwarming Cv ketel, vloerverwarming gedeeltelijk, pelletkachel
  • Warm water Cv ketel
  • C.v.-ketel type Gas
  • C.v.-ketel bouwjaar 2023
  • Eigendom Eigendom
  • Ligging Aan rustige weg, in woonwijk
  • Hoofdtuin Achtertuin
  • Oppervlakte hoofdtuin ca. 290 m2
  • Ligging hoofdtuin Zuidwest
  • Achterom Ja
  • Kwaliteit tuin Verzorgd
  • Schuur / berging Vrijstaand hout
  • Aantal schuren / bergingen 1
  • Parkeerfaciliteiten Openbaar parkeren, op eigen terrein
  • Garage Aangebouwd steen, inpandig
Meer kenmerken Minder kenmerken

Plattegronden

Statistieken

Cijfers voor de wijk

Burgerlijke staat

  • Gehuwd
  • Ongehuwd
  • Gescheiden
  • Verweduwd

Leeftijd in gemeente

Leeftijd buurtbewoners

  • 0-15 22%
  • 15-15 8%
  • 25-45 30%
  • 45-65 26%
  • 65+ 14%

Benieuwd naar de waarde van je woning?

Maak dan een afspraak voor een gratis waardebepaling zonder verplichtingen.

Even binnenkijken?

Neem vrijblijvend contact met ons op.