Terug naar overzicht
Maastricht

Heugemerweg 3

€ 579.000, - k.k.

Modern afgewerkte monumentale stadswoning met sfeervolle doorzonwoonkamer, nieuwe maatwerk keuken, luxe badkamer, 4 slaapkamers, ruime provisiekelder en een modern ingerichte, nieuw aangelegde onderhoudsvriendelijke stadstuin, gelegen aan de Heugemerweg 3 in Maastricht-Wyck.

Begane grond:
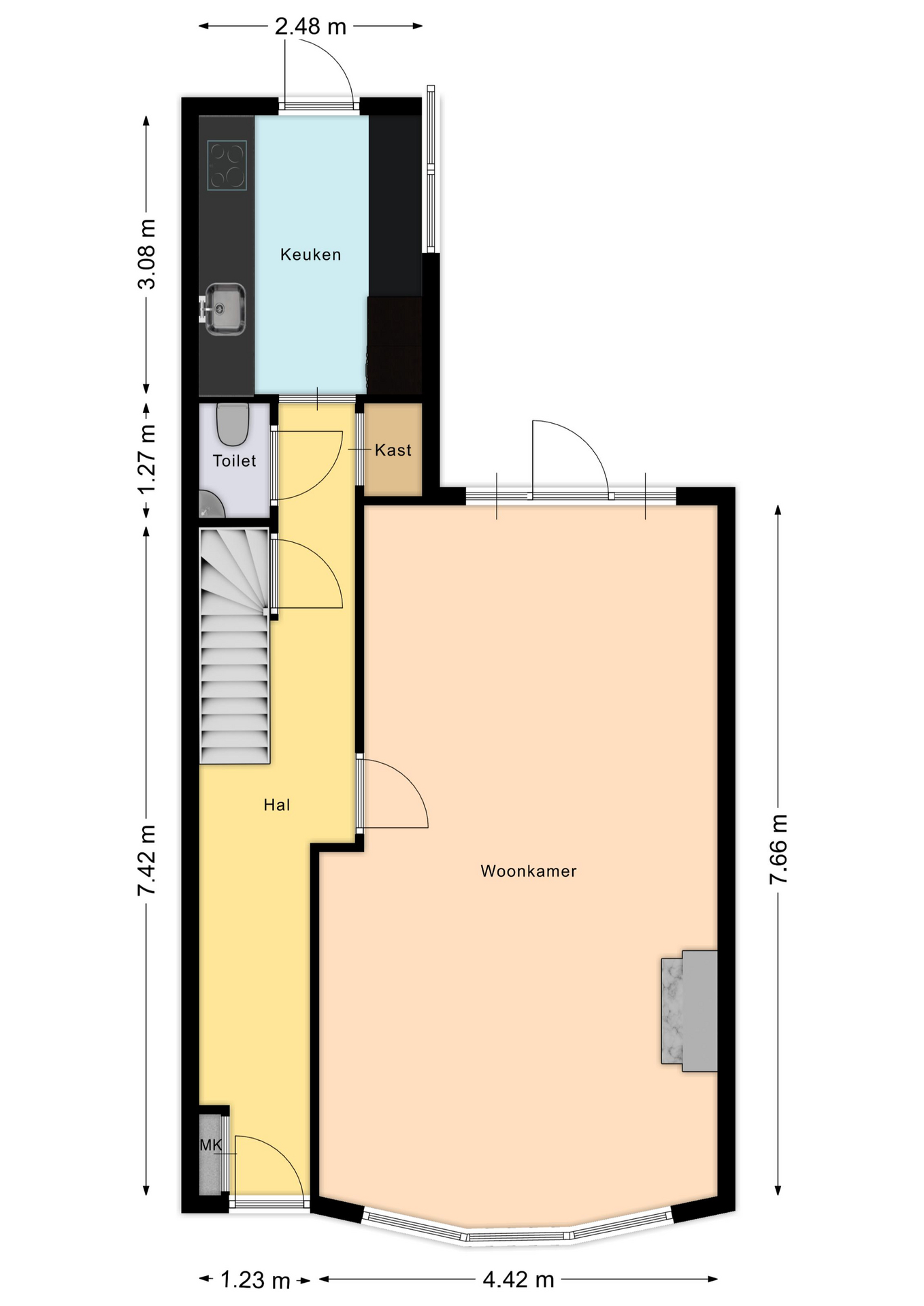
Entree/hal met gietvloer (2024), voorzien van de meterkast (2024), toiletruimte, trapopgang en toegang tot de kelder, keuken (2024) en woonkamer. De toiletruimte is modern afgewerkt en uitgerust met een hangcloset en fonteintje. De gesloten keuken is eveneens uitgevoerd met een gietvloer en beschikt over een moderne rechte keukenopstelling. Deze is op maat gemaakt door Leunissen Interieurbouw en voorzien van diverse inbouwapparatuur, waaronder een inductiekookplaat, spoelbak, Quooker kraan en Quooker zeeppomp, vaatwasser, afzuiginstallatie, koelkast en combi-oven. Vanuit de keuken is er directe toegang tot de tuin. De sfeervolle doorzonwoonkamer is heerlijk licht dankzij de grote raamopeningen. De ruimte is voorzien van een authentieke houten plankenvloer, een open haard en openslaande deuren die toegang geven tot de stadstuin.

Eerste verdieping:
Overloop met houten plankenvloer, voorzien van een trapopgang naar de tweede verdieping en toegang tot twee slaapkamers, de badkamer en het dakterras. De twee ruime slaapkamers (ca. 15,4 m² en 15 m²) zijn beide afgewerkt met een originele houten plankenvloer, bieden veel lichtinval en zijn allebei voorzien van airconditioning. De moderne, geheel betegelde badkamer (ca. 4 m²) is ingericht met een ligbad/douchecombinatie, twee wastafels, een hangcloset en een handdoekradiator. Het ruime dakterras (ca. 10 m²) is gelegen op het oosten en biedt een fijne plek om in alle rust van de buitenruimte te genieten.

Tweede verdieping:
Via een vaste trap bereikt u de overloop, voorzien van een originele houten plankenvloer en toegang tot twee slaapkamers (ca. 18 m² en 10 m²). De grootste slaapkamer (ca. 18 m²) ligt aan de voorzijde van de woning en beschikt over een dakkapel, originele houten plankenvloer en ingebouwde kastenwanden.
De tweede slaapkamer (ca. 10 m²) is gelegen aan de achterzijde en is eveneens voorzien van een originele houten plankenvloer en een dakkapel. In deze ruimte bevinden zich tevens de witgoedaansluitingen en een aparte cv-ruimte met de opstelling van de cv-ketel.

Souterrain:
Vanuit de hal te bereiken ruime provisiekelder met de opstelling van de gas- en de watermeter.

Tuin:
Gezellige, geheel omsloten en onderhoudsvriendelijke stadstuin, gelegen op het oosten, met een tuinhuisje en een terras met keramische tegels. De tuin is in 2025 volledig nieuw aangelegd.

Bijzonderheden:
– Verrassend ruime woning met speelse indeling;
– Modern afgewerkte stadswoning;
– Siemens keukenapparatuur inclusief Quooker kraan en zeeppomp;
– Moderne maatwerkkeuken, opgeleverd door Leunissen Interieurbouw (2024)
– Moderne badkamer;
– Authentiek houten trappenhuis;
– Originele houten plankenvloeren;
– Woning is geheel voorzien van glad gestuukte wanden;
– Cv-ketel: Atag I36CZ CW5, 2024; eigendom;
– Vier slaapkamers, waarvan twee voorzien van airco;
– Ruime provisiekelder;
– Onderhoudsvriendelijke, geheel omsloten stadstuin (2025)
– Woning is gunstig gelegen ten opzichte van diverse voorzieningen;
– Alle vermelde afmetingen zijn indicatief en kunnen afwijken van de werkelijkheid.

Modern afgewerkte monumentale stadswoning met sfeervolle doorzonwoonkamer, nieuwe maatwerk keuken, luxe badkamer, 4 slaapkamers, ruime provisiekelder en een modern ingerichte, nieuw aangelegde onderhoudsvriendelijke stadstuin, gelegen aan de Heugemerweg 3 in Maastricht-Wyck. Begane grond: Entree/hal met gietvloer (2024), voorzien van de meterkast (2024), toiletruimte, trapopgang en toegang tot de kelder,…

Kenmerken

  • Status Beschikbaar
  • Vraagprijs € 579.000,- k.k.
  • Aanvaarding In overleg
  • Soort woonhuis Tussenwoning
  • Soort bouw Bestaande bouw
  • Bouwjaar 1928
  • Soort dak Zadeldak
  • Onderhoud binnen Goed
  • Onderhoud buiten Goed
  • Gebruiksoppervlakte wonen ca. 143 m2
  • Oppervlakte gebouwgebonden ca. 10 m2
  • Externe bergruimte ca. 2 m2
  • Overige inpandige ruimte ca. 28 m2
  • Inhoud ca. 505 m3
  • Perceeloppervlakte ca. 109 m2
  • Aantal kamers 6 kamers
  • Aantal slaapkamers 4
  • Aantal badkamers 1 badkamer
  • Badkamervoorzieningen Ligbad, douche, wastafel
  • Aantal woonlagen 4 woonlagen
  • Voorzieningen Airconditioning
  • Energielabel D
  • Isolatie Dakisolatie, vloerisolatie
  • Verwarming Cv ketel
  • Warm water Cv ketel
  • C.v.-ketel type Gas
  • C.v.-ketel bouwjaar 2024
  • Eigendom Eigendom
  • Ligging In centrum
  • Hoofdtuin Achtertuin
  • Oppervlakte hoofdtuin ca. 40 m2
  • Ligging hoofdtuin Oost
  • Kwaliteit tuin Fraai aangelegd
  • Schuur / berging Vrijstaand hout
  • Aantal schuren / bergingen 1
  • Parkeerfaciliteiten Betaald parkeren, parkeervergunningen
  • Garage Geen garage
Meer kenmerken Minder kenmerken

Plattegronden

Statistieken

Cijfers voor de wijk

Burgerlijke staat

  • Gehuwd
  • Ongehuwd
  • Gescheiden
  • Verweduwd

Leeftijd in gemeente

Leeftijd buurtbewoners

  • 0-15 8%
  • 15-15 25%
  • 25-45 27%
  • 45-65 21%
  • 65+ 18%

Benieuwd naar de waarde van je woning?

Maak dan een afspraak voor een gratis waardebepaling zonder verplichtingen.

Even binnenkijken?

Neem vrijblijvend contact met ons op.