Terug naar overzicht
Landgraaf

Hereweg 110

€ 269.000, - k.k.

Aan de Hereweg, op een zeer centrale locatie in Nieuwenhagen, ligt dit ruime en karaktervolle herenhuis met kelder, aanbouw, zolderverdieping en een dubbele garage. De woning is goed onderhouden, biedt vier slaapkamers en is voorzien van diverse moderne gemakken zoals airconditioning, kunststof kozijnen en zonnepanelen.

Indeling:

Souterrain:
Ruime provisiekelder met aansluitingen voor wasmachine en droger, alsmede de omvormer ten behoeve van de zonnepanelen.

Parterre:
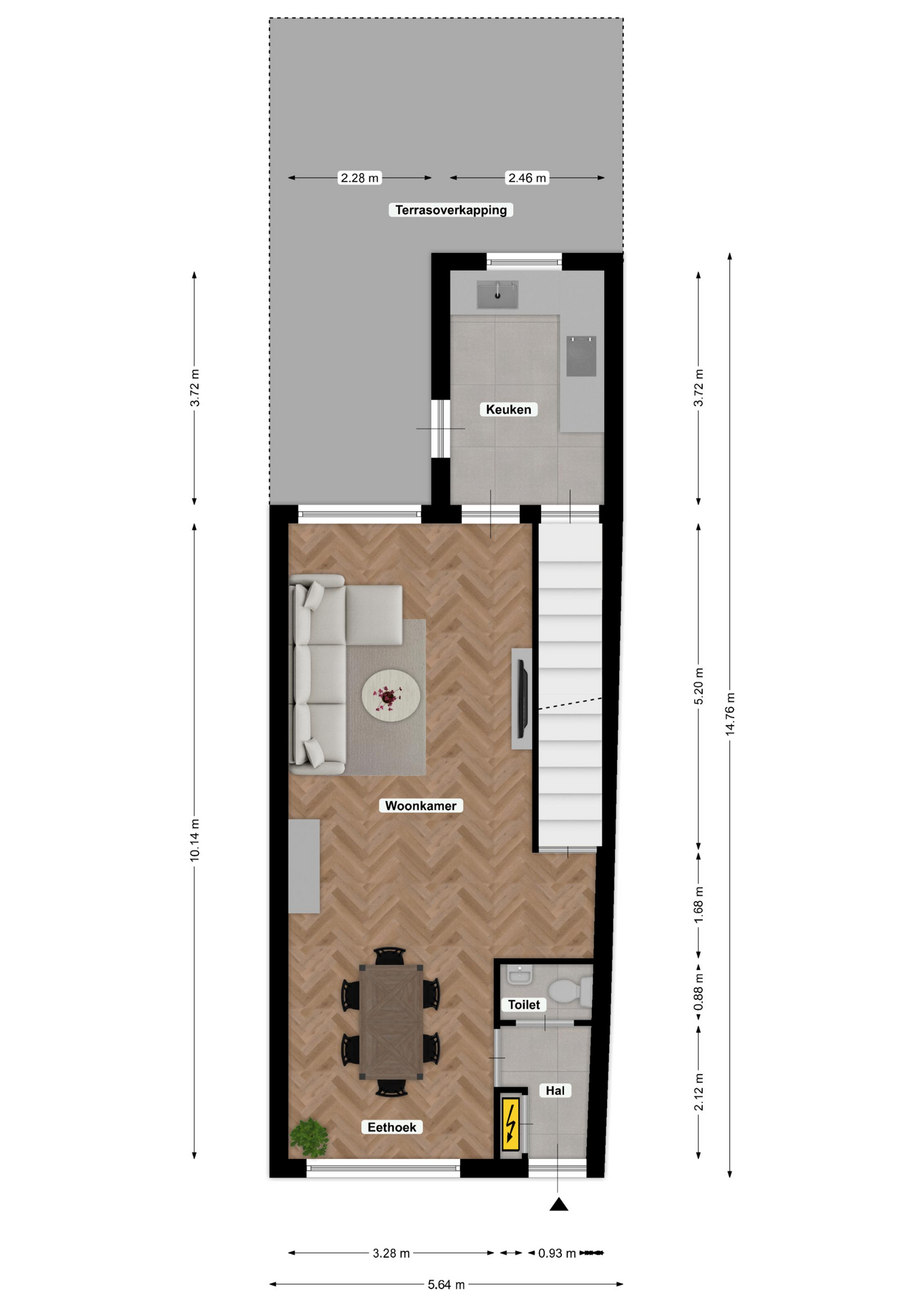
Entree met hal, garderobe en betegeld toilet met fontein.
De sfeervolle woonkamer is voorzien van een massief eiken visgraat parketvloer, airconditioning, een gezellige openhaardpartij, glasvezelbehang en grote ramen die zorgen voor een fijne lichtinval.

De gesloten leefkeuken (2020) is modern uitgevoerd in wit en volledig betegeld. De keuken beschikt over een granieten aanrechtblad en hoogwaardige Siemens StudioLine-apparatuur, waaronder een inductiekookplaat, oven, combimagnetron, afzuigkap, koel-vriescombinatie en een AEG-vaatwasser.

Tuin:
Via de keuken en achteringang bereik je het ruime, overdekte aluminium terras met ingebouwde verlichting. Dit terras is geheel afsluitbaar met een professioneel zeildoeksysteem, ideaal om het hele jaar door buiten te kunnen zitten.
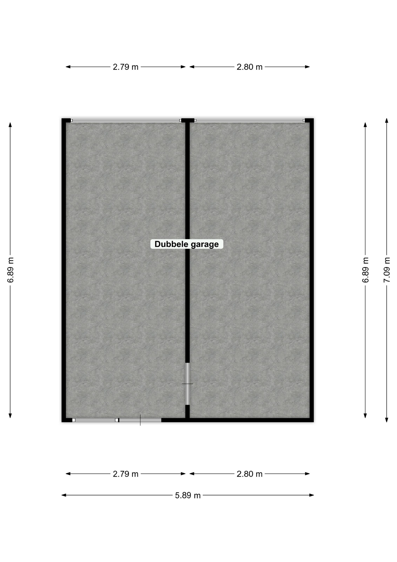
De verzorgde tuin beschikt over een royaal terras en biedt toegang tot de dubbele garage, voorzien van twee kantelpoorten waarvan één elektrisch bedienbaar is. Het garage dak is circa drie jaar geleden volledig vernieuwd.

Eerste verdieping:
Via de bordestrap bereik je de overloop met toegang tot twee ruime slaapkamers, beide voorzien van een doorlopende laminaatvloer. De ruime, volledig betegelde badkamer beschikt over een tweede toilet, dubbele wastafel met ombouwmeubel en een inloopdouche.

Zolderverdieping:
Via een vaste bordestrap betreedt u de zolderverdieping met overloop en twee extra slaapkamers, beide met laminaatvloeren en een dakkapel met prachtig panoramisch uitzicht. Tevens bevindt zich hier een bergzolder met Velux-dakraam en de combi HR-cv-installatie (Itho, huur).

Bijzonderheden:
– Het betreft een zeer karakteristieke woning en verkeert in een goede staat van onderhoud;
– De woning is grotendeels voorzien van kunststof kozijnen en geheel voorzien van dubbele beglazing;
– De woning is voorzien van 4 slaapkamers;
– De woning is voorzien van een dubbele garage met een vernieuwd dak (2024)!
– De woning is voorzien van 10 zonnepanelen (Zonnepanelenproject Parkstad, p.m. € 34,61);
– De woning is op loopafstand van het bos, scholen, de buitenring en winkelcentrum Op de Kamp.

Aan de Hereweg, op een zeer centrale locatie in Nieuwenhagen, ligt dit ruime en karaktervolle herenhuis met kelder, aanbouw, zolderverdieping en een dubbele garage. De woning is goed onderhouden, biedt vier slaapkamers en is voorzien van diverse moderne gemakken zoals airconditioning, kunststof kozijnen en zonnepanelen. Indeling: Souterrain: Ruime provisiekelder…

Kenmerken

  • Status Onder bod
  • Vraagprijs € 269.000,- k.k.
  • Aanvaarding In overleg
  • Soort woonhuis Halfvrijstaande woning
  • Soort bouw Bestaande bouw
  • Bouwjaar 1925
  • Soort dak Zadeldak
  • Onderhoud binnen Redelijk tot goed
  • Onderhoud buiten Redelijk tot goed
  • Gebruiksoppervlakte wonen ca. 141 m2
  • Oppervlakte gebouwgebonden ca. 31 m2
  • Externe bergruimte ca. 39 m2
  • Overige inpandige ruimte ca. 27 m2
  • Inhoud ca. 577 m3
  • Perceeloppervlakte ca. 255 m2
  • Aantal kamers 5 kamers
  • Aantal slaapkamers 4
  • Aantal badkamers 1 badkamer
  • Badkamervoorzieningen Toilet, douche, dubbele wastafel
  • Aantal woonlagen 4 woonlagen
  • Voorzieningen Rolluiken, airconditioning, zonnepanelen
  • Energielabel D
  • Isolatie Dubbel glas
  • Verwarming Cv ketel
  • Warm water Cv ketel
  • C.v.-ketel type Gas
  • C.v.-ketel bouwjaar 2013
  • Eigendom Huur
  • Ligging In centrum
  • Hoofdtuin Achtertuin
  • Oppervlakte hoofdtuin ca. 86 m2
  • Ligging hoofdtuin Noord
  • Achterom Ja
  • Kwaliteit tuin Verzorgd
  • Parkeerfaciliteiten Openbaar parkeren, op eigen terrein
  • Garage Vrijstaand steen
Meer kenmerken Minder kenmerken

Plattegronden

Statistieken

Cijfers voor de wijk

Burgerlijke staat

  • Gehuwd 1275
  • Ongehuwd 1430
  • Gescheiden 380
  • Verweduwd 300

Leeftijd in gemeente

  • 0-15 13%
  • 15-15 10%
  • 25-45 21%
  • 45-65 33%
  • 65+ 23%

Leeftijd buurtbewoners

  • 0-15 13%
  • 15-15 10%
  • 25-45 23%
  • 45-65 30%
  • 65+ 24%

Benieuwd naar de waarde van je woning?

Maak dan een afspraak voor een gratis waardebepaling zonder verplichtingen.

Even binnenkijken?

Neem vrijblijvend contact met ons op.