Heiveldstraat 69
Gerenoveerd woonhuis met moderne afwerking, vier slaapkamers en gunstige, centrale ligging. Energiezuinig en instapklaar!
Indeling
Parterre
Via de entreehal toegang tot de woonkamer, het toilet, de vernieuwde meterkast (3-fase aansluiting), de kelder, de tuin en de trap naar de verdieping. Het toilet is geheel betegeld en voorzien van een zwevend closet en fontein.
De woonkamer heeft twee grote raampartijen die zorgen voor veel lichtinval en biedt ruimte voor zowel een royale zithoek als een eethoek. Vanuit de woonkamer is de keuken bereikbaar, uitgevoerd met een plavuizenvloer en een moderne L-opstelling. De keuken beschikt over de volgende inbouwapparatuur: koelkast, vaatwasser, combi-oven, inductiekookplaat en afzuigkap. Via openslaande deuren is er toegang tot de tuin. Aan de achterzijde bevindt zich een praktische bijkeuken met aansluiting voor het witgoed.
De gehele parterre is voorzien van een laminaatvloer en inbouwverlichting.
Tuin
De onderhoudsvriendelijke tuin is via zowel de hal als de keuken te bereiken. De tuin is volledig omheind en gunstig gelegen op het zuidoosten.
Kelder
De kelder biedt extra bergruimte.
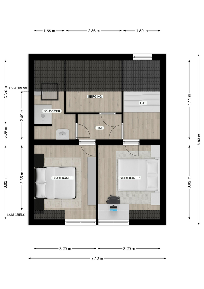
Eerste verdieping
Via de houten trap toegang tot de eerste verdieping. Vanuit de overloop zijn twee slaapkamers en de ruime badkamer bereikbaar.
De slaapkamers meten respectievelijk ca.
-3,25 x 3,90 m
-3,15 x 3,90 m
De moderne badkamer (ca. 4,50 x 2,80 m) is uitgerust met een ligbad, douche, toilet en dubbele wastafel. Tevens bevindt zich hier een technische ruimte met boiler en wasmachineaansluiting.
Tweede verdieping
Middels vaste trap toegang tot de tweede verdieping met nog twee slaapkamers en een tweede badkamer.
De slaapkamers meten elk ca.
-3,20 x 3,80 m
-3,20 x 3,80 m
De tweede badkamer (ca. 2,50 x 1,50 m) is voorzien van een wastafel, toilet en inloopdouche.
Bijzonderheden
-Gehele woning voorzien van infraroodverwarming
-Voorzien van dubbel glas, nagenoeg voorzien van kunststof kozijnen
-15 zonnepanelen (eigendom)
-Volledig geïsoleerd
Gerenoveerd woonhuis met moderne afwerking, vier slaapkamers en gunstige, centrale ligging. Energiezuinig en instapklaar! Indeling Parterre Via de entreehal toegang tot de woonkamer, het toilet, de vernieuwde meterkast (3-fase aansluiting), de kelder, de tuin en de trap naar de verdieping. Het toilet is geheel betegeld en voorzien van…

Kenmerken
- Status Beschikbaar
- Vraagprijs € 385.000,- k.k.
- Aanvaarding In overleg
- Soort woonhuis Geschakelde woning
- Soort bouw Bestaande bouw
- Bouwjaar 1935
- Soort dak Zadeldak
- Onderhoud binnen Goed tot uitstekend
- Onderhoud buiten Goed tot uitstekend
- Gebruiksoppervlakte wonen ca. 174 m2
- Overige inpandige ruimte ca. 27 m2
- Inhoud ca. 631 m3
- Perceeloppervlakte ca. 140 m2
- Aantal kamers 5 kamers
- Aantal slaapkamers 4
- Aantal badkamers 2 badkamers
- Badkamervoorzieningen Ligbad, toilet, douche, dubbele wastafel, wastafel, toilet, douche, wastafel
- Aantal woonlagen 4 woonlagen
- Energielabel C
- Isolatie Dakisolatie, muurisolatie, vloerisolatie
- Warm water Elektrische boiler eigendom
- Ligging In centrum
- Hoofdtuin Achtertuin
- Oppervlakte hoofdtuin ca. 38 m2
- Ligging hoofdtuin Zuidoost
- Kwaliteit tuin Verzorgd
- Parkeerfaciliteiten Openbaar parkeren
- Garage Geen garage
Plattegronden




Cijfers voor de wijk
Burgerlijke staat
- Gehuwd
- Ongehuwd
- Gescheiden
- Verweduwd
Leeftijd in gemeente
Leeftijd buurtbewoners
- 0-15 13%
- 15-15 10%
- 25-45 22%
- 45-65 34%
- 65+ 21%
Benieuwd naar de waarde van je woning?
Maak dan een afspraak voor een gratis waardebepaling zonder verplichtingen.
Downloads
Even binnenkijken?
Neem vrijblijvend contact met ons op.
