Terug naar overzicht
Heerlen

Heesbergstraat 61

€ 275.000, - k.k.

Op geliefde locatie in Heerlen-Zuid mogen wij u deze karaktervolle jaren ’20 woning aanbieden met drie ruime slaapkamers, souterrain, extra ruimtes voor hobby’s of dergelijke en ruime tuin, Heesbergstraat 61 te Heerlen.

Souterrain:
Het souterrain is ideaal voor opslag.

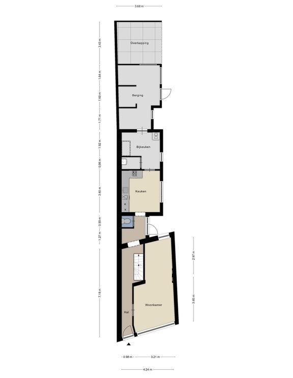
Begane grond:
Entree. Hal met authentieke elementen zoals glas-in-lood-ramen en plavuizenvloer. In de hal is de trapopgang naar de eerste verdieping en meterkast. De woonkamer geniet veel lichtinval door de grote raampartij en is voorzien van een laminaatvloer. In de tussenhal is de toiletruimte, deze is deels betegeld en voorzien van een zwevend toilet.
De gesloten keukenruimte is voorzien van een keuken in hoekopstelling en heeft de volgende apparatuur: gaskookplaat, afzuigkap, vaatwasser, koelkast, diepvries en oven. Bovendien heeft de keuken veel opbergruimte.
Vanuit

Vanuit de keuken is de bijkeuken bereikbaar. Hier bevinden zich de aansluitpunten voor wasapparatuur en de opstelling van de cv-installatie (Bosch en bouwjaar 2025, huur). De bijkeuken geeft middels een doorgang toegang naar de verdieping boven de keuken en de bijkeuken. Hier is een multifunctionele ruimte, geschikt als hobbyruimte of werkruimte. Tenslotte is er vanuit de bijkeuken nóg een deur naar de achtergelegen berging. Van hieruit is ook toegang naar de tuin.
De tuin is over de breedte van de woning en is vrij diep. Rondom is de tuin gesloten middels hagen of hekwerken en is toegankelijk middels een recht van overpad met de buren van nr. 63. Tevens is er nog een houten overkapping aanwezig.

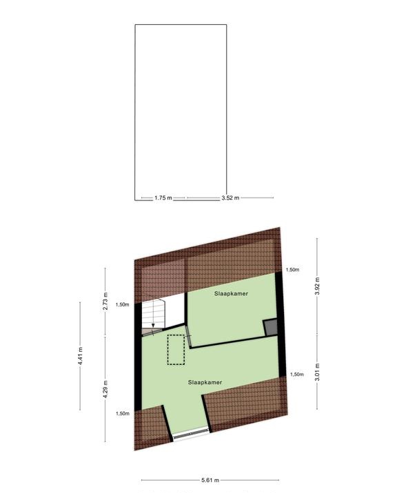
Eerste verdieping:
Via de sierlijke houten trap is de overloop van de eerste verdieping te bereiken. De twee ruime slaapkamers zijn voorzien van een laminaatvloer.
De badkamer is aan de voorzijde gesitueerd en is uitgerust met een ligbad, wastafelmeubel en toilet.

Tweede verdieping:
Via een bordestrap toegang naar de tweede verdieping.
Hier is de derde, ruime slaapkamer gesitueerd. Deze slaapkamer is ca. 20m2 groot en heeft een dakkapel.
De overige ruimte is momenteel in gebruik als bergruimte, maar hier kan eventueel nog een vierde slaapkamer worden gecreëerd.

Bijzonderheden:
– Grotendeels voorzien van kunststof kozijnen met HR++ beglazing.
– Het pannendak is in 2007 vervangen en geïsoleerd.
– De platte daken zijn van 2009 (bitumen).
– Cv-installatie is gehuurd.
– Gelegen nabij alle voorzieningen, zoals scholen, winkels en het centrum van Heerlen.
– Aanvaarding in overleg.

Op geliefde locatie in Heerlen-Zuid mogen wij u deze karaktervolle jaren ’20 woning aanbieden met drie ruime slaapkamers, souterrain, extra ruimtes voor hobby’s of dergelijke en ruime tuin, Heesbergstraat 61 te Heerlen. Souterrain: Het souterrain is ideaal voor opslag. Begane grond: Entree. Hal met authentieke elementen…

Kenmerken

  • Status Verkocht onder voorbehoud
  • Vraagprijs € 275.000,- k.k.
  • Aanvaarding In overleg
  • Soort woonhuis Tussenwoning
  • Soort bouw Bestaande bouw
  • Bouwjaar 1920
  • Soort dak Zadeldak
  • Onderhoud binnen Redelijk tot goed
  • Onderhoud buiten Redelijk tot goed
  • Gebruiksoppervlakte wonen ca. 152 m2
  • Oppervlakte gebouwgebonden ca. 12 m2
  • Overige inpandige ruimte ca. 11 m2
  • Inhoud ca. 600 m3
  • Perceeloppervlakte ca. 300 m2
  • Aantal kamers 5 kamers
  • Aantal slaapkamers 3
  • Aantal badkamers 1 badkamer
  • Badkamervoorzieningen Ligbad, toilet, dubbele wastafel
  • Aantal woonlagen 4 woonlagen
  • Energielabel D
  • Isolatie Dakisolatie, dubbel glas, gedeeltelijk dubbel glas
  • Verwarming Cv ketel
  • Warm water Cv ketel
  • C.v.-ketel type Gas
  • C.v.-ketel bouwjaar 2025
  • Eigendom Huur
  • Ligging In woonwijk
  • Hoofdtuin Achtertuin
  • Oppervlakte hoofdtuin ca. 210 m2
  • Ligging hoofdtuin Oost
  • Achterom Ja
  • Kwaliteit tuin Normaal
  • Parkeerfaciliteiten Openbaar parkeren
  • Garage Geen garage
Meer kenmerken Minder kenmerken

Plattegronden

Statistieken

Cijfers voor de wijk

Burgerlijke staat

  • Gehuwd
  • Ongehuwd
  • Gescheiden
  • Verweduwd

Leeftijd in gemeente

Leeftijd buurtbewoners

  • 0-15 11%
  • 15-15 10%
  • 25-45 28%
  • 45-65 30%
  • 65+ 21%

Benieuwd naar de waarde van je woning?

Maak dan een afspraak voor een gratis waardebepaling zonder verplichtingen.

Even binnenkijken?

Neem vrijblijvend contact met ons op.