Terug naar overzicht
Posterholt

Heerbaan 64

€ 435.000, - k.k.

Aan de rand van Posterholt, aan Heerbaan 64, ligt deze karakteristieke, grotendeels gemoderniseerde, halfvrijstaande woonboerderij. Aan ruimte is hier absoluut geen gebrek. Met een woonoppervlak van circa 148 m² en een perceel van circa 608 m², biedt deze woning ruimte en mogelijkheden! Ook aan duurzaamheid is gedacht! De woning is voorzien van: dakisolatie, vloerisolatie, kunststof kozijnen met HR++ beglazing en 14 zonnepanelen. Daarnaast zijn de drie slaapkamers voorzien van een airco-installatie en zijn er in de bijkeuken voorbereidingen getroffen voor het aansluiten van een warmtepomp.

Droom jij van een ruime leefkeuken? Een grote tuin? Een moderne badkamer? Dit huis heeft het allemaal. Bij de moderniseringen zijn ook karakterelementen behouden gebleven waardoor er in dit huis een perfecte balans is tussen modern en karakteristiek.

De indeling en ruimte, vormen dat deze woning een heerlijke plek is die garant staat voor jarenlang woonplezier.

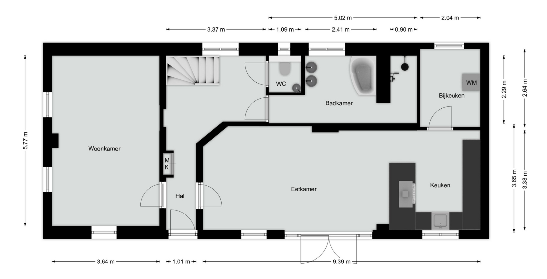
Indeling

Begane grond
Entree/hal voorzien van een tegelvloer met trapopgang en meterkast en toegang tot woonkamer, leefkeuken, badkamer en toilet.
Aan de voorzijde is de knusse woonkamer gesitueerd (circa 21 m2). Deze is voorzien van een tegelvloer met vloerverwarming. De woonkamer is verder voorzien van strak en neutraal afgewerkte wanden, gecombineerd met een plafond met sierbalken en karakteristieke ramen en deuren. Dit maakt de woonkamer een sfeervol geheel.
De ruime leefkeuken (circa 32 m2) is eveneens voorzien van eenzelfde tegelvloer met vloerverwarming en een moderne keuken. Deze complete keuken is opgesteld in een U-vorm met hoge kastenwand, schiereiland en de navolgende installaties: spoelbak, 5-pits gaskookplaat, vaatwasser, combi-magnetron, oven, koelkast, diepvries en diverse opbergkastjes en lades. Het is een lichte ruimte met volop tuincontact door de aanwezigheid van ramen en openslaande tuindeuren. De keuken is voorzien van strak en neutraal afgewerkte wanden en plafonds.
Vanuit de keuken is er toegang tot de praktische bijkeuken (circa 5 m2) met aansluitpunten voor het witgoed en voorbereidingen voor het plaatsen van een warmtepomp.
Vanuit de hal is er tevens toegang tot de in 2022 vernieuwde badkamer en separate gastentoilet. De toiletruimte is modern afgewerkt met zwevend closet en fonteintje. Ook de badkamer is in dezelfde stijl modern afgewerkt en voorzien van een inloopdouche, ruim hoekbad en dubbele wastafel.

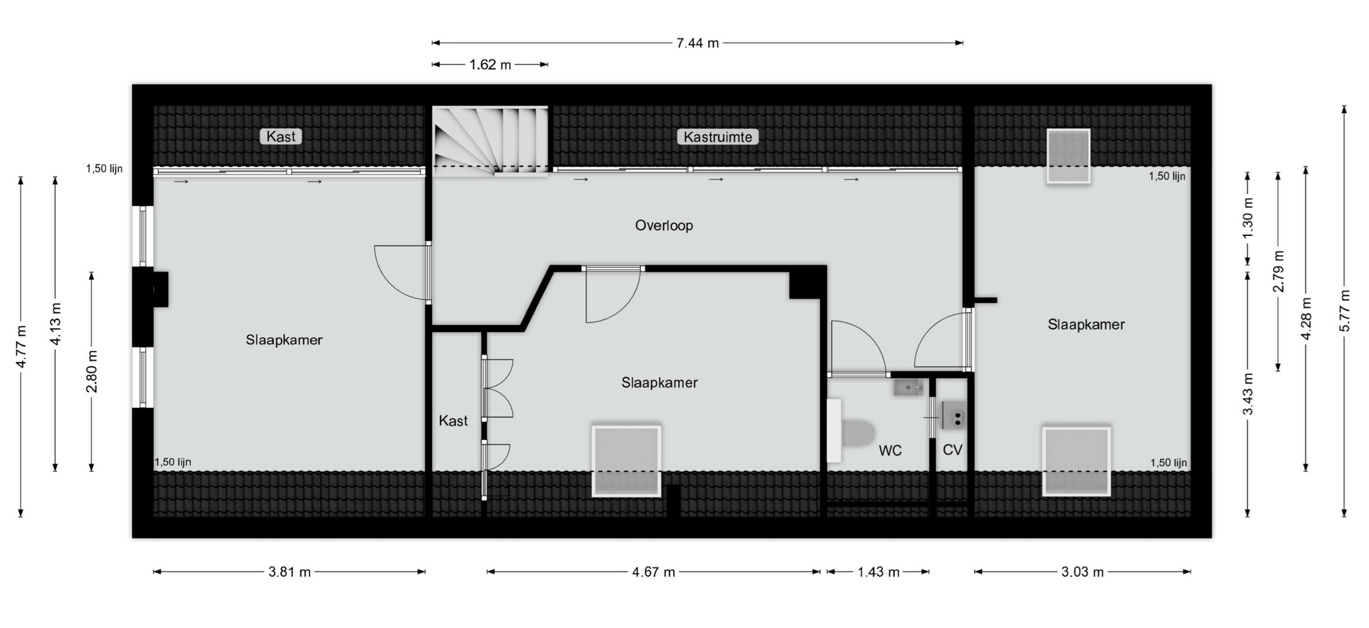
Eerste verdieping
Overloop die toegang geeft tot de drie slaapkamers en toiletruimte. De drie slaapkamers zijn ruim opgezet en respectievelijk circa 16 m2, 14 m2 en 13 m2. Alle slaapkamers zijn voorzien van laminaatvloeren en airco-installaties. Tevens is er ook aan opbergruimte gedacht door de aanwezigheid van muurkasten en schuifkasten wanden in de knieschotten. Er is een moderne toiletruimte (vernieuwd in 2022) aanwezig met zwevend closet en fonteintje en een aparte muurkast alwaar de cv-ketel is opgesteld (2012, eigendom). In 2019 zijn de veluxdakramen vervangen en voorzien van verduisteringsgordijnen, zonwering en horren. Het dak is geheel nageïsoleerd en voorzien van Unidek dakelementen. Doordat er nog op verschillende plekken balken zichtbaar zijn, geeft dit een sfeervolle uitstraling.

Tuin
De tuin is langgerekt en voorzien van verschillende leuke hoekjes. Door de lengte zijn er ook verschillende oriëntaties, zo is de tuin gelegen op het noordoosten, oosten en zuiden. Zo is er altijd wel een plekje in of uit de zon te vinden. Voor ieder wat wils. Aan de voorzijde is er een oprit aanwezig en middels grote poort toegang tot de achtertuin. De achtertuin is deels beklinkerd en deels voorzien van gazon en daarnaast zijn er verschillende (lei)boompjes, haagjes, bloemen en beplantingen aanwezig. Er zijn verschillende terrassen, waaronder een ruime terrasoverkapping en een prieeltje. De tuin is geheel omheind en er is toegang tot een grote garage (circa 18 m2) die tevens voorzien is van een zolder. Ook aan de voorzijde en zijkant is er een aangelegde tuin aanwezig.

Algemeen
– Sfeervolle, gemoderniseerde en ruime halfvrijstaande woonboerderij;
– Woonoppervlakte van circa 148 m2 en perceelsoppvlakte van circa 608 m2;
– De afgelopen jaren gemoderniseerd door de huidige eigenaren;
– Moderne elementen gecombineerd met authentieke elementen;
– Riante leefkeuken;
– Moderne badkamer en toiletruimtes in 2022 vernieuwd;
– In 2023 regenpijpen en dakgoten vernieuwd;
– Begane grond is geheel voorzien van vloerverwarming;
– Er zijn drie airco’s en 14 zonnepanelen aanwezig;
– De woning is voorzien van kunststof kozijnen met HR++ beglazing, vloerisolatie en nageïsoleerd dak;
– Ruime achtertuin met leuke hoekjes;
– Grote garage met zolder;
– In de bijkeuken zijn voorbereidingen aanwezig voor installatie warmtepomp;
– Centrale ligging nabij de voorzieningen in Posterholt.

Omgeving
De woning heeft een goed bereikbare ligging aan de rand van het centrum van Posterholt. Posterholt kent een afwisselend landelijk en bosrijke omgeving. Op korte afstand zijn verschillende voorzieningen gelegen onder andere supermarkt, drogist, basisschool, sportschool, huisartspraktijk, apotheker, tandarts en voorzieningen voor sport-, verenigingen-, horeca- en recreatie. Er zijn goede ontsluitingsmogelijkheden: autosnelweg A2-A73 (ca. 15 minuten), Roermond (ca. 20 minuten), Heinsberg (D) (ca. 10 minuten) en Sittard (ca. 20 minuten).

Aan de rand van Posterholt, aan Heerbaan 64, ligt deze karakteristieke, grotendeels gemoderniseerde, halfvrijstaande woonboerderij. Aan ruimte is hier absoluut geen gebrek. Met een woonoppervlak van circa 148 m² en een perceel van circa 608 m², biedt deze woning ruimte en mogelijkheden! Ook aan duurzaamheid is gedacht! De woning is…

Kenmerken

  • Status Beschikbaar
  • Vraagprijs € 435.000,- k.k.
  • Aanvaarding In overleg
  • Soort woonhuis Twee onder een kapwoning
  • Soort bouw Bestaande bouw
  • Bouwjaar 1935
  • Soort dak Zadeldak
  • Onderhoud binnen Goed tot uitstekend
  • Onderhoud buiten Goed
  • Gebruiksoppervlakte wonen ca. 148 m2
  • Externe bergruimte ca. 18 m2
  • Inhoud ca. 500 m3
  • Perceeloppervlakte ca. 608 m2
  • Aantal kamers 5 kamers
  • Aantal slaapkamers 3
  • Aantal badkamers 1 badkamer
  • Badkamervoorzieningen Ligbad, dubbele wastafel, inloopdouche
  • Aantal woonlagen 2 woonlagen
  • Voorzieningen Tv kabel, airconditioning, dakraam, zonnepanelen
  • Energielabel B
  • Isolatie Dakisolatie, vloerisolatie, hr glas
  • Verwarming Cv ketel, vloerverwarming gedeeltelijk, elektrische verwarming
  • Warm water Cv ketel
  • C.v.-ketel type Gas
  • C.v.-ketel bouwjaar 2012
  • Eigendom Eigendom
  • Ligging In woonwijk
  • Hoofdtuin Achtertuin
  • Oppervlakte hoofdtuin ca. 437 m2
  • Ligging hoofdtuin Zuidoost
  • Achterom Ja
  • Kwaliteit tuin Normaal
  • Schuur / berging Vrijstaand hout
  • Aantal schuren / bergingen 1
  • Parkeerfaciliteiten Openbaar parkeren, op eigen terrein
  • Garage Vrijstaand hout
Meer kenmerken Minder kenmerken

Plattegronden

Statistieken

Cijfers voor de wijk

Burgerlijke staat

  • Gehuwd
  • Ongehuwd
  • Gescheiden
  • Verweduwd

Leeftijd in gemeente

Leeftijd buurtbewoners

  • 0-15 14%
  • 15-15 11%
  • 25-45 21%
  • 45-65 35%
  • 65+ 20%

Benieuwd naar de waarde van je woning?

Maak dan een afspraak voor een gratis waardebepaling zonder verplichtingen.

Even binnenkijken?

Neem vrijblijvend contact met ons op.